











Жилой комплекс представляет собой футуристичный городской квартал, состоящий из нескольких урбан-блоков. Архитектурной доминантой является блок UB9, состоящий из 5 разноэтажных корпусов высотой от 5 до 59 этажей. Небоскребы объединены низкоэтажной стилобатной частью с благоустроенным изолированным двором. В лобби расположены зоны для коворкинга, занятий йогой, переговорные и просторный лаундж с мягкой мебелью. Помимо полноценных функциональных пространств в лобби есть отдельные почтовые комнаты, просторные колясочные и помещения для мойки лап домашних питомцев, а для курьеров предусмотрены отдельные входы.
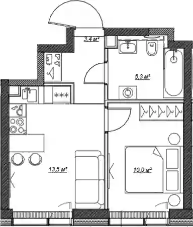
В проекте предложено более 200 уникальных планировочных решений, разработанных с учетом розничных сценариев жизни. Планировками предусмотрено разделение пространства на общую и частную зоны. Уникальные форматы включают в себя лоты с террасами, мастер-спальнями, дополнительными построчными комнатами и кладовыми при кухне. Все квартиры сдаются с отделкой White Box. Из панорамных окон квартир открываются виды на парк «Долина реки Сетунь» и центр Москвы.
Комплекс имеет собственную инфраструктуру. На территории жилого квартала запланирована современная школа, детские сады, рестораны, фитнес-центр с бассейном, летние веранды и кафе, а также детский центр и школа искусств. Внутренняя территория двора разделена на 4 зоны, плавно перетекающие друг в друга и объединенные сетью уединенных маршрутов. Во дворе оборудованы игровые площадки для детей разных возрастов, спортивная зона, зона отдыха, чайный домик, пруд с навесом и амфитеатр. Для владельцев автомобилей предусмотрен теплый двухуровневый подземный паркинг на 695 мест c зарядками для электромобилей, сервисом подкачки шин и велопарковками.
Жилой комплекс расположен в Можайском районе, на улице Багрицкого. Район находится в центре развитой инфраструктурной сети западного округа, который традиционно считается одним из самых престижных для жизни в столице. В пешей доступности расположены парк «Долина реки Сетунь», Троекуровский лес, Поклонная гора и Дом творчества Переделкино. Ближайшее метро «Давыдково» находится в 1,6 километрах от жилого квартала. До МКАД на автомобиле дорога займет 10 минут, до ТТК — 15 минут, а до Садового кольца — 20 минут.

Жилой комплекс представляет собой футуристичный городской квартал, состоящий из нескольких урбан-блоков. Архитектурной доминантой является блок UB9, состоящий из 5 разноэтажных корпусов высотой от 5 до 59 этажей. Небоскребы объединены низкоэтажной стилобатной частью с благоустроенным изолированным двором. В лобби расположены зоны для коворкинга, занятий йогой, переговорные и просторный лаундж с мягкой мебелью. Помимо полноценных функциональных пространств в лобби есть отдельные почтовые комнаты, просторные колясочные и помещения для мойки лап домашних питомцев, а для курьеров предусмотрены отдельные входы.
В проекте предложено более 200 уникальных планировочных решений, разработанных с учетом розничных сценариев жизни. Планировками предусмотрено разделение пространства на общую и частную зоны. Уникальные форматы включают в себя лоты с террасами, мастер-спальнями, дополнительными построчными комнатами и кладовыми при кухне. Все квартиры сдаются с отделкой White Box. Из панорамных окон квартир открываются виды на парк «Долина реки Сетунь» и центр Москвы.
Комплекс имеет собственную инфраструктуру. На территории жилого квартала запланирована современная школа, детские сады, рестораны, фитнес-центр с бассейном, летние веранды и кафе, а также детский центр и школа искусств. Внутренняя территория двора разделена на 4 зоны, плавно перетекающие друг в друга и объединенные сетью уединенных маршрутов. Во дворе оборудованы игровые площадки для детей разных возрастов, спортивная зона, зона отдыха, чайный домик, пруд с навесом и амфитеатр. Для владельцев автомобилей предусмотрен теплый двухуровневый подземный паркинг на 695 мест c зарядками для электромобилей, сервисом подкачки шин и велопарковками.
Жилой комплекс расположен в Можайском районе, на улице Багрицкого. Район находится в центре развитой инфраструктурной сети западного округа, который традиционно считается одним из самых престижных для жизни в столице. В пешей доступности расположены парк «Долина реки Сетунь», Троекуровский лес, Поклонная гора и Дом творчества Переделкино. Ближайшее метро «Давыдково» находится в 1,6 километрах от жилого квартала. До МКАД на автомобиле дорога займет 10 минут, до ТТК — 15 минут, а до Садового кольца — 20 минут.
Жилой комплекс представляет собой футуристичный городской квартал, состоящий из нескольких урбан-блоков. Архитектурной доминантой является блок UB9, состоящий из 5 разноэтажных корпусов высотой от 5 до 59 этажей. Небоскребы объединены низкоэтажной стилобатной частью с благоустроенным изолированным двором. В лобби расположены зоны для коворкинга, занятий йогой, переговорные и просторный лаундж с мягкой мебелью. Помимо полноценных функциональных пространств в лобби есть отдельные почтовые комнаты, просторные колясочные и помещения для мойки лап домашних питомцев, а для курьеров предусмотрены отдельные входы.
В проекте предложено более 200 уникальных планировочных решений, разработанных с учетом розничных сценариев жизни. Планировками предусмотрено разделение пространства на общую и частную зоны. Уникальные форматы включают в себя лоты с террасами, мастер-спальнями, дополнительными построчными комнатами и кладовыми при кухне. Все квартиры сдаются с отделкой White Box. Из панорамных окон квартир открываются виды на парк «Долина реки Сетунь» и центр Москвы.
Комплекс имеет собственную инфраструктуру. На территории жилого квартала запланирована современная школа, детские сады, рестораны, фитнес-центр с бассейном, летние веранды и кафе, а также детский центр и школа искусств. Внутренняя территория двора разделена на 4 зоны, плавно перетекающие друг в друга и объединенные сетью уединенных маршрутов. Во дворе оборудованы игровые площадки для детей разных возрастов, спортивная зона, зона отдыха, чайный домик, пруд с навесом и амфитеатр. Для владельцев автомобилей предусмотрен теплый двухуровневый подземный паркинг на 695 мест c зарядками для электромобилей, сервисом подкачки шин и велопарковками.
Жилой комплекс расположен в Можайском районе, на улице Багрицкого. Район находится в центре развитой инфраструктурной сети западного округа, который традиционно считается одним из самых престижных для жизни в столице. В пешей доступности расположены парк «Долина реки Сетунь», Троекуровский лес, Поклонная гора и Дом творчества Переделкино. Ближайшее метро «Давыдково» находится в 1,6 километрах от жилого квартала. До МКАД на автомобиле дорога займет 10 минут, до ТТК — 15 минут, а до Садового кольца — 20 минут.
Жилой комплекс представляет собой футуристичный городской квартал, состоящий из нескольких урбан-блоков. Архитектурной доминантой является блок UB9, состоящий из 5 разноэтажных корпусов высотой от 5 до 59 этажей. Небоскребы объединены низкоэтажной стилобатной частью с благоустроенным изолированным двором. В лобби расположены зоны для коворкинга, занятий йогой, переговорные и просторный лаундж с мягкой мебелью. Помимо полноценных функциональных пространств в лобби есть отдельные почтовые комнаты, просторные колясочные и помещения для мойки лап домашних питомцев, а для курьеров предусмотрены отдельные входы.
В проекте предложено более 200 уникальных планировочных решений, разработанных с учетом розничных сценариев жизни. Планировками предусмотрено разделение пространства на общую и частную зоны. Уникальные форматы включают в себя лоты с террасами, мастер-спальнями, дополнительными построчными комнатами и кладовыми при кухне. Все квартиры сдаются с отделкой White Box. Из панорамных окон квартир открываются виды на парк «Долина реки Сетунь» и центр Москвы.
Комплекс имеет собственную инфраструктуру. На территории жилого квартала запланирована современная школа, детские сады, рестораны, фитнес-центр с бассейном, летние веранды и кафе, а также детский центр и школа искусств. Внутренняя территория двора разделена на 4 зоны, плавно перетекающие друг в друга и объединенные сетью уединенных маршрутов. Во дворе оборудованы игровые площадки для детей разных возрастов, спортивная зона, зона отдыха, чайный домик, пруд с навесом и амфитеатр. Для владельцев автомобилей предусмотрен теплый двухуровневый подземный паркинг на 695 мест c зарядками для электромобилей, сервисом подкачки шин и велопарковками.
Жилой комплекс расположен в Можайском районе, на улице Багрицкого. Район находится в центре развитой инфраструктурной сети западного округа, который традиционно считается одним из самых престижных для жизни в столице. В пешей доступности расположены парк «Долина реки Сетунь», Троекуровский лес, Поклонная гора и Дом творчества Переделкино. Ближайшее метро «Давыдково» находится в 1,6 километрах от жилого квартала. До МКАД на автомобиле дорога займет 10 минут, до ТТК — 15 минут, а до Садового кольца — 20 минут.
Жилой комплекс представляет собой футуристичный городской квартал, состоящий из нескольких урбан-блоков. Архитектурной доминантой является блок UB9, состоящий из 5 разноэтажных корпусов высотой от 5 до 59 этажей. Небоскребы объединены низкоэтажной стилобатной частью с благоустроенным изолированным двором. В лобби расположены зоны для коворкинга, занятий йогой, переговорные и просторный лаундж с мягкой мебелью. Помимо полноценных функциональных пространств в лобби есть отдельные почтовые комнаты, просторные колясочные и помещения для мойки лап домашних питомцев, а для курьеров предусмотрены отдельные входы.
В проекте предложено более 200 уникальных планировочных решений, разработанных с учетом розничных сценариев жизни. Планировками предусмотрено разделение пространства на общую и частную зоны. Уникальные форматы включают в себя лоты с террасами, мастер-спальнями, дополнительными построчными комнатами и кладовыми при кухне. Все квартиры сдаются с отделкой White Box. Из панорамных окон квартир открываются виды на парк «Долина реки Сетунь» и центр Москвы.
Комплекс имеет собственную инфраструктуру. На территории жилого квартала запланирована современная школа, детские сады, рестораны, фитнес-центр с бассейном, летние веранды и кафе, а также детский центр и школа искусств. Внутренняя территория двора разделена на 4 зоны, плавно перетекающие друг в друга и объединенные сетью уединенных маршрутов. Во дворе оборудованы игровые площадки для детей разных возрастов, спортивная зона, зона отдыха, чайный домик, пруд с навесом и амфитеатр. Для владельцев автомобилей предусмотрен теплый двухуровневый подземный паркинг на 695 мест c зарядками для электромобилей, сервисом подкачки шин и велопарковками.
Жилой комплекс расположен в Можайском районе, на улице Багрицкого. Район находится в центре развитой инфраструктурной сети западного округа, который традиционно считается одним из самых престижных для жизни в столице. В пешей доступности расположены парк «Долина реки Сетунь», Троекуровский лес, Поклонная гора и Дом творчества Переделкино. Ближайшее метро «Давыдково» находится в 1,6 километрах от жилого квартала. До МКАД на автомобиле дорога займет 10 минут, до ТТК — 15 минут, а до Садового кольца — 20 минут.
Жилой комплекс представляет собой футуристичный городской квартал, состоящий из нескольких урбан-блоков. Архитектурной доминантой является блок UB9, состоящий из 5 разноэтажных корпусов высотой от 5 до 59 этажей. Небоскребы объединены низкоэтажной стилобатной частью с благоустроенным изолированным двором. В лобби расположены зоны для коворкинга, занятий йогой, переговорные и просторный лаундж с мягкой мебелью. Помимо полноценных функциональных пространств в лобби есть отдельные почтовые комнаты, просторные колясочные и помещения для мойки лап домашних питомцев, а для курьеров предусмотрены отдельные входы.
В проекте предложено более 200 уникальных планировочных решений, разработанных с учетом розничных сценариев жизни. Планировками предусмотрено разделение пространства на общую и частную зоны. Уникальные форматы включают в себя лоты с террасами, мастер-спальнями, дополнительными построчными комнатами и кладовыми при кухне. Все квартиры сдаются с отделкой White Box. Из панорамных окон квартир открываются виды на парк «Долина реки Сетунь» и центр Москвы.
Комплекс имеет собственную инфраструктуру. На территории жилого квартала запланирована современная школа, детские сады, рестораны, фитнес-центр с бассейном, летние веранды и кафе, а также детский центр и школа искусств. Внутренняя территория двора разделена на 4 зоны, плавно перетекающие друг в друга и объединенные сетью уединенных маршрутов. Во дворе оборудованы игровые площадки для детей разных возрастов, спортивная зона, зона отдыха, чайный домик, пруд с навесом и амфитеатр. Для владельцев автомобилей предусмотрен теплый двухуровневый подземный паркинг на 695 мест c зарядками для электромобилей, сервисом подкачки шин и велопарковками.
Жилой комплекс расположен в Можайском районе, на улице Багрицкого. Район находится в центре развитой инфраструктурной сети западного округа, который традиционно считается одним из самых престижных для жизни в столице. В пешей доступности расположены парк «Долина реки Сетунь», Троекуровский лес, Поклонная гора и Дом творчества Переделкино. Ближайшее метро «Давыдково» находится в 1,6 километрах от жилого квартала. До МКАД на автомобиле дорога займет 10 минут, до ТТК — 15 минут, а до Садового кольца — 20 минут.
Жилой комплекс представляет собой футуристичный городской квартал, состоящий из нескольких урбан-блоков. Архитектурной доминантой является блок UB9, состоящий из 5 разноэтажных корпусов высотой от 5 до 59 этажей. Небоскребы объединены низкоэтажной стилобатной частью с благоустроенным изолированным двором. В лобби расположены зоны для коворкинга, занятий йогой, переговорные и просторный лаундж с мягкой мебелью. Помимо полноценных функциональных пространств в лобби есть отдельные почтовые комнаты, просторные колясочные и помещения для мойки лап домашних питомцев, а для курьеров предусмотрены отдельные входы.
В проекте предложено более 200 уникальных планировочных решений, разработанных с учетом розничных сценариев жизни. Планировками предусмотрено разделение пространства на общую и частную зоны. Уникальные форматы включают в себя лоты с террасами, мастер-спальнями, дополнительными построчными комнатами и кладовыми при кухне. Все квартиры сдаются с отделкой White Box. Из панорамных окон квартир открываются виды на парк «Долина реки Сетунь» и центр Москвы.
Комплекс имеет собственную инфраструктуру. На территории жилого квартала запланирована современная школа, детские сады, рестораны, фитнес-центр с бассейном, летние веранды и кафе, а также детский центр и школа искусств. Внутренняя территория двора разделена на 4 зоны, плавно перетекающие друг в друга и объединенные сетью уединенных маршрутов. Во дворе оборудованы игровые площадки для детей разных возрастов, спортивная зона, зона отдыха, чайный домик, пруд с навесом и амфитеатр. Для владельцев автомобилей предусмотрен теплый двухуровневый подземный паркинг на 695 мест c зарядками для электромобилей, сервисом подкачки шин и велопарковками.
Жилой комплекс расположен в Можайском районе, на улице Багрицкого. Район находится в центре развитой инфраструктурной сети западного округа, который традиционно считается одним из самых престижных для жизни в столице. В пешей доступности расположены парк «Долина реки Сетунь», Троекуровский лес, Поклонная гора и Дом творчества Переделкино. Ближайшее метро «Давыдково» находится в 1,6 километрах от жилого квартала. До МКАД на автомобиле дорога займет 10 минут, до ТТК — 15 минут, а до Садового кольца — 20 минут.
Жилой комплекс представляет собой футуристичный городской квартал, состоящий из нескольких урбан-блоков. Архитектурной доминантой является блок UB9, состоящий из 5 разноэтажных корпусов высотой от 5 до 59 этажей. Небоскребы объединены низкоэтажной стилобатной частью с благоустроенным изолированным двором. В лобби расположены зоны для коворкинга, занятий йогой, переговорные и просторный лаундж с мягкой мебелью. Помимо полноценных функциональных пространств в лобби есть отдельные почтовые комнаты, просторные колясочные и помещения для мойки лап домашних питомцев, а для курьеров предусмотрены отдельные входы.
В проекте предложено более 200 уникальных планировочных решений, разработанных с учетом розничных сценариев жизни. Планировками предусмотрено разделение пространства на общую и частную зоны. Уникальные форматы включают в себя лоты с террасами, мастер-спальнями, дополнительными построчными комнатами и кладовыми при кухне. Все квартиры сдаются с отделкой White Box. Из панорамных окон квартир открываются виды на парк «Долина реки Сетунь» и центр Москвы.
Комплекс имеет собственную инфраструктуру. На территории жилого квартала запланирована современная школа, детские сады, рестораны, фитнес-центр с бассейном, летние веранды и кафе, а также детский центр и школа искусств. Внутренняя территория двора разделена на 4 зоны, плавно перетекающие друг в друга и объединенные сетью уединенных маршрутов. Во дворе оборудованы игровые площадки для детей разных возрастов, спортивная зона, зона отдыха, чайный домик, пруд с навесом и амфитеатр. Для владельцев автомобилей предусмотрен теплый двухуровневый подземный паркинг на 695 мест c зарядками для электромобилей, сервисом подкачки шин и велопарковками.
Жилой комплекс расположен в Можайском районе, на улице Багрицкого. Район находится в центре развитой инфраструктурной сети западного округа, который традиционно считается одним из самых престижных для жизни в столице. В пешей доступности расположены парк «Долина реки Сетунь», Троекуровский лес, Поклонная гора и Дом творчества Переделкино. Ближайшее метро «Давыдково» находится в 1,6 километрах от жилого квартала. До МКАД на автомобиле дорога займет 10 минут, до ТТК — 15 минут, а до Садового кольца — 20 минут.
Жилой комплекс представляет собой футуристичный городской квартал, состоящий из нескольких урбан-блоков. Архитектурной доминантой является блок UB9, состоящий из 5 разноэтажных корпусов высотой от 5 до 59 этажей. Небоскребы объединены низкоэтажной стилобатной частью с благоустроенным изолированным двором. В лобби расположены зоны для коворкинга, занятий йогой, переговорные и просторный лаундж с мягкой мебелью. Помимо полноценных функциональных пространств в лобби есть отдельные почтовые комнаты, просторные колясочные и помещения для мойки лап домашних питомцев, а для курьеров предусмотрены отдельные входы.
В проекте предложено более 200 уникальных планировочных решений, разработанных с учетом розничных сценариев жизни. Планировками предусмотрено разделение пространства на общую и частную зоны. Уникальные форматы включают в себя лоты с террасами, мастер-спальнями, дополнительными построчными комнатами и кладовыми при кухне. Все квартиры сдаются с отделкой White Box. Из панорамных окон квартир открываются виды на парк «Долина реки Сетунь» и центр Москвы.
Комплекс имеет собственную инфраструктуру. На территории жилого квартала запланирована современная школа, детские сады, рестораны, фитнес-центр с бассейном, летние веранды и кафе, а также детский центр и школа искусств. Внутренняя территория двора разделена на 4 зоны, плавно перетекающие друг в друга и объединенные сетью уединенных маршрутов. Во дворе оборудованы игровые площадки для детей разных возрастов, спортивная зона, зона отдыха, чайный домик, пруд с навесом и амфитеатр. Для владельцев автомобилей предусмотрен теплый двухуровневый подземный паркинг на 695 мест c зарядками для электромобилей, сервисом подкачки шин и велопарковками.
Жилой комплекс расположен в Можайском районе, на улице Багрицкого. Район находится в центре развитой инфраструктурной сети западного округа, который традиционно считается одним из самых престижных для жизни в столице. В пешей доступности расположены парк «Долина реки Сетунь», Троекуровский лес, Поклонная гора и Дом творчества Переделкино. Ближайшее метро «Давыдково» находится в 1,6 километрах от жилого квартала. До МКАД на автомобиле дорога займет 10 минут, до ТТК — 15 минут, а до Садового кольца — 20 минут.
Проект «Famous» — это 58-этажный небоскреб, выполненный в футуристическом стиле от бюро ADM. Нижняя часть фасада — фактурная, со стеклянными эркерами. Для облицовки элементов фасада используются алюминиевые кассеты. В верхней части витражных конструкций предусмотрены воздухозаборные решетки для индивидуальной системы вентиляции, интегрированные в фасад. Многофункциональное стекло используемое на фасадах сочетает в себе солнцезащитные и энергосберегающие свойства.
В проекте «Famous» предложены квартиры европейского формата. Из окон которых открывается панорамный вид на достопримечательности Москвы, парк Фили, Москва-Сити и Поклонную гору. Сдаются квартиры с подчистовой отделкой и чистовой на выбор, высота потолков — 3.1 метра, а на 57 этаже расположились пентхаусы с высотой потолков 5.2 метра.
Территория комплекса «Famous» спроектированна бюро ADM. Помимо пространства, непосредственно прилегающего к зданию, в распоряжении резидентов — вся инфраструктура 1-й очереди ЖК «Фили Сити». Придомовая территория продумана в лучших европейских традициях: ландшафтный дизайн в стиле натургарден с рокарием и яркими газонами, уютная площадь с фонтаном и летними верандами, небольшой парк-променад, детские и спортивные площадки. Для занятия спортом предусмотрены различные зоны: баскетбольная площадка, воркаут, тропа здоровья, беговой и веломаршрут, батутная площадка, пин-понг. С помощью специального приложения в смартфоне жители смогут планировать занятия, получать консультации, устраивать совместные тренировки. Для владельцев автомобилей предусмотрен подземный двухуровневый паркинг на 275 мест, въезд в него осуществляется по считывателю государственного номера автомобиля.
Проект «Famous» находится в районе Филёвский парк. Этот район является одним из старейших в составе Москвы. Развитая инфраструктура, хорошая экология, памятники архитектуры и близость к Москве-реке. В пешей доступности три станции метро: «Парк Победы», «Фили», «Багратионовская». В 10 минутах пешком находится парк Фили и набережная.
ЖК «Селигер Сити» разработан проектным бюроMLA Plus. Архитектура комплекса выполнена в голландском стиле. Корпуса представлены разной этажности. Места общего пользования имеют дизайнерскую отделку и выполнены изкачественных материалов.
Проектом предусмотрен собственный парк и пруд на территории комплекса, спортивные и детские площадки, зоны отдыха для взрослых и детей. В жилом комплексе установлены современные инженерные системы: качественные лифты Otis и Schindler, системы видеонаблюдения и контроля доступа, видеодомофоны с системой управления.
ЖК «Селигер Сити» расположен на севере Москвы — в развитом Бескудниковском районе, в пешей доступности от метро «Селигерская». Имеется удобный выезд на Дмитровское шоссе и МКАД.
На территории комплекса предусмотрены собственные школа и детский сад, а также кафе, магазины, студия йоги и фитнес-центр.
ЖК «Селигер Сити» разработан проектным бюроMLA Plus. Архитектура комплекса выполнена в голландском стиле. Корпуса представлены разной этажности. Места общего пользования имеют дизайнерскую отделку и выполнены изкачественных материалов.
Проектом предусмотрен собственный парк и пруд на территории комплекса, спортивные и детские площадки, зоны отдыха для взрослых и детей. В жилом комплексе установлены современные инженерные системы: качественные лифты Otis и Schindler, системы видеонаблюдения и контроля доступа, видеодомофоны с системой управления.
ЖК «Селигер Сити» расположен на севере Москвы — в развитом Бескудниковском районе, в пешей доступности от метро «Селигерская». Имеется удобный выезд на Дмитровское шоссе и МКАД.
На территории комплекса предусмотрены собственные школа и детский сад, а также кафе, магазины, студия йоги и фитнес-центр.
ЖК «Селигер Сити» разработан проектным бюроMLA Plus. Архитектура комплекса выполнена в голландском стиле. Корпуса представлены разной этажности. Места общего пользования имеют дизайнерскую отделку и выполнены изкачественных материалов.
Проектом предусмотрен собственный парк и пруд на территории комплекса, спортивные и детские площадки, зоны отдыха для взрослых и детей. В жилом комплексе установлены современные инженерные системы: качественные лифты Otis и Schindler, системы видеонаблюдения и контроля доступа, видеодомофоны с системой управления.
ЖК «Селигер Сити» расположен на севере Москвы — в развитом Бескудниковском районе, в пешей доступности от метро «Селигерская». Имеется удобный выезд на Дмитровское шоссе и МКАД.
На территории комплекса предусмотрены собственные школа и детский сад, а также кафе, магазины, студия йоги и фитнес-центр.
ЖК «Селигер Сити» разработан проектным бюроMLA Plus. Архитектура комплекса выполнена в голландском стиле. Корпуса представлены разной этажности. Места общего пользования имеют дизайнерскую отделку и выполнены изкачественных материалов.
Проектом предусмотрен собственный парк и пруд на территории комплекса, спортивные и детские площадки, зоны отдыха для взрослых и детей. В жилом комплексе установлены современные инженерные системы: качественные лифты Otis и Schindler, системы видеонаблюдения и контроля доступа, видеодомофоны с системой управления.
ЖК «Селигер Сити» расположен на севере Москвы — в развитом Бескудниковском районе, в пешей доступности от метро «Селигерская». Имеется удобный выезд на Дмитровское шоссе и МКАД.
На территории комплекса предусмотрены собственные школа и детский сад, а также кафе, магазины, студия йоги и фитнес-центр.
Проект «Метрополия» включает в себя семь монолитных жилых корпусов и развитую сеть собственной инфраструктуры. Архитектурная концепция ЖК, разработанная известным бюро «Speech», выполнена в стиле кирпичного импрессионизма, что придает каждой новостройке необычный и эффектный облик. Все здания в комплексе имеют собственные имена, взятые от крупнейших мегаполисов мира: Рим, Токио, Берлин, Москва, Париж, Нью-Йорк и Лондон. Высота каждого дома — 30 этажей.
Покупателям квартир в ЖК «Метрополия» предложено множество планировочных решений: в наличии квартиры преимущественно евроформата. В них предусмотрены потолки высотой 3,15м, панорамные окна, из которых открываются живописные виды на окрестности, компактные прихожие и гардеробные комнаты. Квартиры передаются покупателям без отделки.
Архитектура корпусов образует закрытые дворы с системой контроля доступа и видеонаблюдением. На придомовой территории расположены пешеходные дорожки и тротуары, зеленые зоны с ландшафтным дизайном, места для отдыха, детские и спортивные площадки с безопасным резиновым покрытием. Для автовладельцев предусмотрен подземный паркинг на 930 места. В состав комплекса входят коммерческие помещения на первых этажах, где разместятся магазины продуктов и бытовых товаров, сервисные организации, офисы, стоматологические клиники и заведения общепита.
Жилой комплекс «Метрополия» возводится в Южнопортовом районе ЮВАО Москвы. В пешей доступности от новостройки есть благоустроенная набережная, работают супермаркеты и образовательные учреждения, спортивные объекты, библиотека и поликлиника. Метро «Угрешская» находится в пяти минутах пешком.
Проект «Метрополия» включает в себя семь монолитных жилых корпусов и развитую сеть собственной инфраструктуры. Архитектурная концепция ЖК, разработанная известным бюро «Speech», выполнена в стиле кирпичного импрессионизма, что придает каждой новостройке необычный и эффектный облик. Все здания в комплексе имеют собственные имена, взятые от крупнейших мегаполисов мира: Рим, Токио, Берлин, Москва, Париж, Нью-Йорк и Лондон. Высота каждого дома — 30 этажей.
Покупателям квартир в ЖК «Метрополия» предложено множество планировочных решений: в наличии квартиры преимущественно евроформата. В них предусмотрены потолки высотой 3,15м, панорамные окна, из которых открываются живописные виды на окрестности, компактные прихожие и гардеробные комнаты. Квартиры передаются покупателям без отделки.
Архитектура корпусов образует закрытые дворы с системой контроля доступа и видеонаблюдением. На придомовой территории расположены пешеходные дорожки и тротуары, зеленые зоны с ландшафтным дизайном, места для отдыха, детские и спортивные площадки с безопасным резиновым покрытием. Для автовладельцев предусмотрен подземный паркинг на 930 места. В состав комплекса входят коммерческие помещения на первых этажах, где разместятся магазины продуктов и бытовых товаров, сервисные организации, офисы, стоматологические клиники и заведения общепита.
Жилой комплекс «Метрополия» возводится в Южнопортовом районе ЮВАО Москвы. В пешей доступности от новостройки есть благоустроенная набережная, работают супермаркеты и образовательные учреждения, спортивные объекты, библиотека и поликлиника. Метро «Угрешская» находится в пяти минутах пешком.
Проект «Метрополия» включает в себя семь монолитных жилых корпусов и развитую сеть собственной инфраструктуры. Архитектурная концепция ЖК, разработанная известным бюро «Speech», выполнена в стиле кирпичного импрессионизма, что придает каждой новостройке необычный и эффектный облик. Все здания в комплексе имеют собственные имена, взятые от крупнейших мегаполисов мира: Рим, Токио, Берлин, Москва, Париж, Нью-Йорк и Лондон. Высота каждого дома — 30 этажей.
Покупателям квартир в ЖК «Метрополия» предложено множество планировочных решений: в наличии квартиры преимущественно евроформата. В них предусмотрены потолки высотой 3,15м, панорамные окна, из которых открываются живописные виды на окрестности, компактные прихожие и гардеробные комнаты. Квартиры передаются покупателям без отделки.
Архитектура корпусов образует закрытые дворы с системой контроля доступа и видеонаблюдением. На придомовой территории расположены пешеходные дорожки и тротуары, зеленые зоны с ландшафтным дизайном, места для отдыха, детские и спортивные площадки с безопасным резиновым покрытием. Для автовладельцев предусмотрен подземный паркинг на 930 места. В состав комплекса входят коммерческие помещения на первых этажах, где разместятся магазины продуктов и бытовых товаров, сервисные организации, офисы, стоматологические клиники и заведения общепита.
Жилой комплекс «Метрополия» возводится в Южнопортовом районе ЮВАО Москвы. В пешей доступности от новостройки есть благоустроенная набережная, работают супермаркеты и образовательные учреждения, спортивные объекты, библиотека и поликлиника. Метро «Угрешская» находится в пяти минутах пешком.
Проект «Метрополия» включает в себя семь монолитных жилых корпусов и развитую сеть собственной инфраструктуры. Архитектурная концепция ЖК, разработанная известным бюро «Speech», выполнена в стиле кирпичного импрессионизма, что придает каждой новостройке необычный и эффектный облик. Все здания в комплексе имеют собственные имена, взятые от крупнейших мегаполисов мира: Рим, Токио, Берлин, Москва, Париж, Нью-Йорк и Лондон. Высота каждого дома — 30 этажей.
Покупателям квартир в ЖК «Метрополия» предложено множество планировочных решений: в наличии квартиры преимущественно евроформата. В них предусмотрены потолки высотой 3,15м, панорамные окна, из которых открываются живописные виды на окрестности, компактные прихожие и гардеробные комнаты. Квартиры передаются покупателям без отделки.
Архитектура корпусов образует закрытые дворы с системой контроля доступа и видеонаблюдением. На придомовой территории расположены пешеходные дорожки и тротуары, зеленые зоны с ландшафтным дизайном, места для отдыха, детские и спортивные площадки с безопасным резиновым покрытием. Для автовладельцев предусмотрен подземный паркинг на 930 места. В состав комплекса входят коммерческие помещения на первых этажах, где разместятся магазины продуктов и бытовых товаров, сервисные организации, офисы, стоматологические клиники и заведения общепита.
Жилой комплекс «Метрополия» возводится в Южнопортовом районе ЮВАО Москвы. В пешей доступности от новостройки есть благоустроенная набережная, работают супермаркеты и образовательные учреждения, спортивные объекты, библиотека и поликлиника. Метро «Угрешская» находится в пяти минутах пешком.
Проект «City Bay» представляет собой квартальную застройку в стиле Нью-Йорка. Каждый квартал получил имя по названию одного из мировых океанов — Atlantic, Pacific, Indian, North. Корпуса высотой от 8 до 55 этажей образуют четыре закрытых двора, связанных бульваром и собственной набережной. Архитектурный проект разработан одно из ведущих бюро Москвы – Kamen. Дизайн входных групп разработан студией Jaime Beriestain (Испания), проект благоустройства - бюро Arteza.
В комплексе предложено множество планировочных решений: в наличии квартиры, как классического типа, так и европланировки. Квартиры сдаются с подчистовой отделкой, высотой потолков 3 м и панорамным остеклением в пол.
Дворы закрыты от автомобилей и случайных прохожих. Для автовладельцев предусмотрен подземный паркинг на 710 мест. Территория комплекса благоустроена: собственная набережная, прогулочная зона, зеленый двор. На первых этажах зданий разместятся кафе, салон красоты, аптека, магазины.
ЖК «City Bay» находится на пересечении МКАД и Волоколамского шоссе. Выезд на МКАД в 5 минутах транспортом, метро «Трикотажная» — 10 минут пешком.
Проект «City Bay» представляет собой квартальную застройку в стиле Нью-Йорка. Каждый квартал получил имя по названию одного из мировых океанов — Atlantic, Pacific, Indian, North. Корпуса высотой от 8 до 55 этажей образуют четыре закрытых двора, связанных бульваром и собственной набережной. Архитектурный проект разработан одно из ведущих бюро Москвы – Kamen. Дизайн входных групп разработан студией Jaime Beriestain (Испания), проект благоустройства - бюро Arteza.
В комплексе предложено множество планировочных решений: в наличии квартиры, как классического типа, так и европланировки. Квартиры сдаются с подчистовой отделкой, высотой потолков 3 м и панорамным остеклением в пол.
Дворы закрыты от автомобилей и случайных прохожих. Для автовладельцев предусмотрен подземный паркинг на 710 мест. Территория комплекса благоустроена: собственная набережная, прогулочная зона, зеленый двор. На первых этажах зданий разместятся кафе, салон красоты, аптека, магазины.
ЖК «City Bay» находится на пересечении МКАД и Волоколамского шоссе. Выезд на МКАД в 5 минутах транспортом, метро «Трикотажная» — 10 минут пешком.
Проект «City Bay» представляет собой квартальную застройку в стиле Нью-Йорка. Каждый квартал получил имя по названию одного из мировых океанов — Atlantic, Pacific, Indian, North. Корпуса высотой от 8 до 55 этажей образуют четыре закрытых двора, связанных бульваром и собственной набережной. Архитектурный проект разработан одно из ведущих бюро Москвы – Kamen. Дизайн входных групп разработан студией Jaime Beriestain (Испания), проект благоустройства - бюро Arteza.
В комплексе предложено множество планировочных решений: в наличии квартиры, как классического типа, так и европланировки. Квартиры сдаются с подчистовой отделкой, высотой потолков 3 м и панорамным остеклением в пол.
Дворы закрыты от автомобилей и случайных прохожих. Для автовладельцев предусмотрен подземный паркинг на 710 мест. Территория комплекса благоустроена: собственная набережная, прогулочная зона, зеленый двор. На первых этажах зданий разместятся кафе, салон красоты, аптека, магазины.
ЖК «City Bay» находится на пересечении МКАД и Волоколамского шоссе. Выезд на МКАД в 5 минутах транспортом, метро «Трикотажная» — 10 минут пешком.
Проект «City Bay» представляет собой квартальную застройку в стиле Нью-Йорка. Каждый квартал получил имя по названию одного из мировых океанов — Atlantic, Pacific, Indian, North. Корпуса высотой от 8 до 55 этажей образуют четыре закрытых двора, связанных бульваром и собственной набережной. Архитектурный проект разработан одно из ведущих бюро Москвы – Kamen. Дизайн входных групп разработан студией Jaime Beriestain (Испания), проект благоустройства - бюро Arteza.
В комплексе предложено множество планировочных решений: в наличии квартиры, как классического типа, так и европланировки. Квартиры сдаются с подчистовой отделкой, высотой потолков 3 м и панорамным остеклением в пол.
Дворы закрыты от автомобилей и случайных прохожих. Для автовладельцев предусмотрен подземный паркинг на 710 мест. Территория комплекса благоустроена: собственная набережная, прогулочная зона, зеленый двор. На первых этажах зданий разместятся кафе, салон красоты, аптека, магазины.
ЖК «City Bay» находится на пересечении МКАД и Волоколамского шоссе. Выезд на МКАД в 5 минутах транспортом, метро «Трикотажная» — 10 минут пешком.
Проект «City Bay» представляет собой квартальную застройку в стиле Нью-Йорка. Каждый квартал получил имя по названию одного из мировых океанов — Atlantic, Pacific, Indian, North. Корпуса высотой от 8 до 55 этажей образуют четыре закрытых двора, связанных бульваром и собственной набережной. Архитектурный проект разработан одно из ведущих бюро Москвы – Kamen. Дизайн входных групп разработан студией Jaime Beriestain (Испания), проект благоустройства - бюро Arteza.
В комплексе предложено множество планировочных решений: в наличии квартиры, как классического типа, так и европланировки. Квартиры сдаются с подчистовой отделкой, высотой потолков 3 м и панорамным остеклением в пол.
Дворы закрыты от автомобилей и случайных прохожих. Для автовладельцев предусмотрен подземный паркинг на 710 мест. Территория комплекса благоустроена: собственная набережная, прогулочная зона, зеленый двор. На первых этажах зданий разместятся кафе, салон красоты, аптека, магазины.
ЖК «City Bay» находится на пересечении МКАД и Волоколамского шоссе. Выезд на МКАД в 5 минутах транспортом, метро «Трикотажная» — 10 минут пешком.
Проект «City Bay» представляет собой квартальную застройку в стиле Нью-Йорка. Каждый квартал получил имя по названию одного из мировых океанов — Atlantic, Pacific, Indian, North. Корпуса высотой от 8 до 55 этажей образуют четыре закрытых двора, связанных бульваром и собственной набережной. Архитектурный проект разработан одно из ведущих бюро Москвы – Kamen. Дизайн входных групп разработан студией Jaime Beriestain (Испания), проект благоустройства - бюро Arteza.
В комплексе предложено множество планировочных решений: в наличии квартиры, как классического типа, так и европланировки. Квартиры сдаются с подчистовой отделкой, высотой потолков 3 м и панорамным остеклением в пол.
Дворы закрыты от автомобилей и случайных прохожих. Для автовладельцев предусмотрен подземный паркинг на 710 мест. Территория комплекса благоустроена: собственная набережная, прогулочная зона, зеленый двор. На первых этажах зданий разместятся кафе, салон красоты, аптека, магазины.
ЖК «City Bay» находится на пересечении МКАД и Волоколамского шоссе. Выезд на МКАД в 5 минутах транспортом, метро «Трикотажная» — 10 минут пешком.
Проект «City Bay» представляет собой квартальную застройку в стиле Нью-Йорка. Каждый квартал получил имя по названию одного из мировых океанов — Atlantic, Pacific, Indian, North. Корпуса высотой от 8 до 55 этажей образуют четыре закрытых двора, связанных бульваром и собственной набережной. Архитектурный проект разработан одно из ведущих бюро Москвы – Kamen. Дизайн входных групп разработан студией Jaime Beriestain (Испания), проект благоустройства - бюро Arteza.
В комплексе предложено множество планировочных решений: в наличии квартиры, как классического типа, так и европланировки. Квартиры сдаются с подчистовой отделкой, высотой потолков 3 м и панорамным остеклением в пол.
Дворы закрыты от автомобилей и случайных прохожих. Для автовладельцев предусмотрен подземный паркинг на 710 мест. Территория комплекса благоустроена: собственная набережная, прогулочная зона, зеленый двор. На первых этажах зданий разместятся кафе, салон красоты, аптека, магазины.
ЖК «City Bay» находится на пересечении МКАД и Волоколамского шоссе. Выезд на МКАД в 5 минутах транспортом, метро «Трикотажная» — 10 минут пешком.
Проект «City Bay» представляет собой квартальную застройку в стиле Нью-Йорка. Каждый квартал получил имя по названию одного из мировых океанов — Atlantic, Pacific, Indian, North. Корпуса высотой от 8 до 55 этажей образуют четыре закрытых двора, связанных бульваром и собственной набережной. Архитектурный проект разработан одно из ведущих бюро Москвы – Kamen. Дизайн входных групп разработан студией Jaime Beriestain (Испания), проект благоустройства - бюро Arteza.
В комплексе предложено множество планировочных решений: в наличии квартиры, как классического типа, так и европланировки. Квартиры сдаются с подчистовой отделкой, высотой потолков 3 м и панорамным остеклением в пол.
Дворы закрыты от автомобилей и случайных прохожих. Для автовладельцев предусмотрен подземный паркинг на 710 мест. Территория комплекса благоустроена: собственная набережная, прогулочная зона, зеленый двор. На первых этажах зданий разместятся кафе, салон красоты, аптека, магазины.
ЖК «City Bay» находится на пересечении МКАД и Волоколамского шоссе. Выезд на МКАД в 5 минутах транспортом, метро «Трикотажная» — 10 минут пешком.
Проект «City Bay» представляет собой квартальную застройку в стиле Нью-Йорка. Каждый квартал получил имя по названию одного из мировых океанов — Atlantic, Pacific, Indian, North. Корпуса высотой от 8 до 55 этажей образуют четыре закрытых двора, связанных бульваром и собственной набережной. Архитектурный проект разработан одно из ведущих бюро Москвы – Kamen. Дизайн входных групп разработан студией Jaime Beriestain (Испания), проект благоустройства - бюро Arteza.
В комплексе предложено множество планировочных решений: в наличии квартиры, как классического типа, так и европланировки. Квартиры сдаются с подчистовой отделкой, высотой потолков 3 м и панорамным остеклением в пол.
Дворы закрыты от автомобилей и случайных прохожих. Для автовладельцев предусмотрен подземный паркинг на 710 мест. Территория комплекса благоустроена: собственная набережная, прогулочная зона, зеленый двор. На первых этажах зданий разместятся кафе, салон красоты, аптека, магазины.
ЖК «City Bay» находится на пересечении МКАД и Волоколамского шоссе. Выезд на МКАД в 5 минутах транспортом, метро «Трикотажная» — 10 минут пешком.
Проект «City Bay» представляет собой квартальную застройку в стиле Нью-Йорка. Каждый квартал получил имя по названию одного из мировых океанов — Atlantic, Pacific, Indian, North. Корпуса высотой от 8 до 55 этажей образуют четыре закрытых двора, связанных бульваром и собственной набережной. Архитектурный проект разработан одно из ведущих бюро Москвы – Kamen. Дизайн входных групп разработан студией Jaime Beriestain (Испания), проект благоустройства - бюро Arteza.
В комплексе предложено множество планировочных решений: в наличии квартиры, как классического типа, так и европланировки. Квартиры сдаются с подчистовой отделкой, высотой потолков 3 м и панорамным остеклением в пол.
Дворы закрыты от автомобилей и случайных прохожих. Для автовладельцев предусмотрен подземный паркинг на 710 мест. Территория комплекса благоустроена: собственная набережная, прогулочная зона, зеленый двор. На первых этажах зданий разместятся кафе, салон красоты, аптека, магазины.
ЖК «City Bay» находится на пересечении МКАД и Волоколамского шоссе. Выезд на МКАД в 5 минутах транспортом, метро «Трикотажная» — 10 минут пешком.
Проект «City Bay» представляет собой квартальную застройку в стиле Нью-Йорка. Каждый квартал получил имя по названию одного из мировых океанов — Atlantic, Pacific, Indian, North. Корпуса высотой от 8 до 55 этажей образуют четыре закрытых двора, связанных бульваром и собственной набережной. Архитектурный проект разработан одно из ведущих бюро Москвы – Kamen. Дизайн входных групп разработан студией Jaime Beriestain (Испания), проект благоустройства - бюро Arteza.
В комплексе предложено множество планировочных решений: в наличии квартиры, как классического типа, так и европланировки. Квартиры сдаются с подчистовой отделкой, высотой потолков 3 м и панорамным остеклением в пол.
Дворы закрыты от автомобилей и случайных прохожих. Для автовладельцев предусмотрен подземный паркинг на 710 мест. Территория комплекса благоустроена: собственная набережная, прогулочная зона, зеленый двор. На первых этажах зданий разместятся кафе, салон красоты, аптека, магазины.
ЖК «City Bay» находится на пересечении МКАД и Волоколамского шоссе. Выезд на МКАД в 5 минутах транспортом, метро «Трикотажная» — 10 минут пешком.
Проект «City Bay» представляет собой квартальную застройку в стиле Нью-Йорка. Каждый квартал получил имя по названию одного из мировых океанов — Atlantic, Pacific, Indian, North. Корпуса высотой от 8 до 55 этажей образуют четыре закрытых двора, связанных бульваром и собственной набережной. Архитектурный проект разработан одно из ведущих бюро Москвы – Kamen. Дизайн входных групп разработан студией Jaime Beriestain (Испания), проект благоустройства - бюро Arteza.
В комплексе предложено множество планировочных решений: в наличии квартиры, как классического типа, так и европланировки. Квартиры сдаются с подчистовой отделкой, высотой потолков 3 м и панорамным остеклением в пол.
Дворы закрыты от автомобилей и случайных прохожих. Для автовладельцев предусмотрен подземный паркинг на 710 мест. Территория комплекса благоустроена: собственная набережная, прогулочная зона, зеленый двор. На первых этажах зданий разместятся кафе, салон красоты, аптека, магазины.
ЖК «City Bay» находится на пересечении МКАД и Волоколамского шоссе. Выезд на МКАД в 5 минутах транспортом, метро «Трикотажная» — 10 минут пешком.
Проект «City Bay» представляет собой квартальную застройку в стиле Нью-Йорка. Каждый квартал получил имя по названию одного из мировых океанов — Atlantic, Pacific, Indian, North. Корпуса высотой от 8 до 55 этажей образуют четыре закрытых двора, связанных бульваром и собственной набережной. Архитектурный проект разработан одно из ведущих бюро Москвы – Kamen. Дизайн входных групп разработан студией Jaime Beriestain (Испания), проект благоустройства - бюро Arteza.
В комплексе предложено множество планировочных решений: в наличии квартиры, как классического типа, так и европланировки. Квартиры сдаются с подчистовой отделкой, высотой потолков 3 м и панорамным остеклением в пол.
Дворы закрыты от автомобилей и случайных прохожих. Для автовладельцев предусмотрен подземный паркинг на 710 мест. Территория комплекса благоустроена: собственная набережная, прогулочная зона, зеленый двор. На первых этажах зданий разместятся кафе, салон красоты, аптека, магазины.
ЖК «City Bay» находится на пересечении МКАД и Волоколамского шоссе. Выезд на МКАД в 5 минутах транспортом, метро «Трикотажная» — 10 минут пешком.
Проект «City Bay» представляет собой квартальную застройку в стиле Нью-Йорка. Каждый квартал получил имя по названию одного из мировых океанов — Atlantic, Pacific, Indian, North. Корпуса высотой от 8 до 55 этажей образуют четыре закрытых двора, связанных бульваром и собственной набережной. Архитектурный проект разработан одно из ведущих бюро Москвы – Kamen. Дизайн входных групп разработан студией Jaime Beriestain (Испания), проект благоустройства - бюро Arteza.
В комплексе предложено множество планировочных решений: в наличии квартиры, как классического типа, так и европланировки. Квартиры сдаются с подчистовой отделкой, высотой потолков 3 м и панорамным остеклением в пол.
Дворы закрыты от автомобилей и случайных прохожих. Для автовладельцев предусмотрен подземный паркинг на 710 мест. Территория комплекса благоустроена: собственная набережная, прогулочная зона, зеленый двор. На первых этажах зданий разместятся кафе, салон красоты, аптека, магазины.
ЖК «City Bay» находится на пересечении МКАД и Волоколамского шоссе. Выезд на МКАД в 5 минутах транспортом, метро «Трикотажная» — 10 минут пешком.
Проект «City Bay» представляет собой квартальную застройку в стиле Нью-Йорка. Каждый квартал получил имя по названию одного из мировых океанов — Atlantic, Pacific, Indian, North. Корпуса высотой от 8 до 55 этажей образуют четыре закрытых двора, связанных бульваром и собственной набережной. Архитектурный проект разработан одно из ведущих бюро Москвы – Kamen. Дизайн входных групп разработан студией Jaime Beriestain (Испания), проект благоустройства - бюро Arteza.
В комплексе предложено множество планировочных решений: в наличии квартиры, как классического типа, так и европланировки. Квартиры сдаются с подчистовой отделкой, высотой потолков 3 м и панорамным остеклением в пол.
Дворы закрыты от автомобилей и случайных прохожих. Для автовладельцев предусмотрен подземный паркинг на 710 мест. Территория комплекса благоустроена: собственная набережная, прогулочная зона, зеленый двор. На первых этажах зданий разместятся кафе, салон красоты, аптека, магазины.
ЖК «City Bay» находится на пересечении МКАД и Волоколамского шоссе. Выезд на МКАД в 5 минутах транспортом, метро «Трикотажная» — 10 минут пешком.
Проект «City Bay» представляет собой квартальную застройку в стиле Нью-Йорка. Каждый квартал получил имя по названию одного из мировых океанов — Atlantic, Pacific, Indian, North. Корпуса высотой от 8 до 55 этажей образуют четыре закрытых двора, связанных бульваром и собственной набережной. Архитектурный проект разработан одно из ведущих бюро Москвы – Kamen. Дизайн входных групп разработан студией Jaime Beriestain (Испания), проект благоустройства - бюро Arteza.
В комплексе предложено множество планировочных решений: в наличии квартиры, как классического типа, так и европланировки. Квартиры сдаются с подчистовой отделкой, высотой потолков 3 м и панорамным остеклением в пол.
Дворы закрыты от автомобилей и случайных прохожих. Для автовладельцев предусмотрен подземный паркинг на 710 мест. Территория комплекса благоустроена: собственная набережная, прогулочная зона, зеленый двор. На первых этажах зданий разместятся кафе, салон красоты, аптека, магазины.
ЖК «City Bay» находится на пересечении МКАД и Волоколамского шоссе. Выезд на МКАД в 5 минутах транспортом, метро «Трикотажная» — 10 минут пешком.
Проект «City Bay» представляет собой квартальную застройку в стиле Нью-Йорка. Каждый квартал получил имя по названию одного из мировых океанов — Atlantic, Pacific, Indian, North. Корпуса высотой от 8 до 55 этажей образуют четыре закрытых двора, связанных бульваром и собственной набережной. Архитектурный проект разработан одно из ведущих бюро Москвы – Kamen. Дизайн входных групп разработан студией Jaime Beriestain (Испания), проект благоустройства - бюро Arteza.
В комплексе предложено множество планировочных решений: в наличии квартиры, как классического типа, так и европланировки. Квартиры сдаются с подчистовой отделкой, высотой потолков 3 м и панорамным остеклением в пол.
Дворы закрыты от автомобилей и случайных прохожих. Для автовладельцев предусмотрен подземный паркинг на 710 мест. Территория комплекса благоустроена: собственная набережная, прогулочная зона, зеленый двор. На первых этажах зданий разместятся кафе, салон красоты, аптека, магазины.
ЖК «City Bay» находится на пересечении МКАД и Волоколамского шоссе. Выезд на МКАД в 5 минутах транспортом, метро «Трикотажная» — 10 минут пешком.
Проект «City Bay» представляет собой квартальную застройку в стиле Нью-Йорка. Каждый квартал получил имя по названию одного из мировых океанов — Atlantic, Pacific, Indian, North. Корпуса высотой от 8 до 55 этажей образуют четыре закрытых двора, связанных бульваром и собственной набережной. Архитектурный проект разработан одно из ведущих бюро Москвы – Kamen. Дизайн входных групп разработан студией Jaime Beriestain (Испания), проект благоустройства - бюро Arteza.
В комплексе предложено множество планировочных решений: в наличии квартиры, как классического типа, так и европланировки. Квартиры сдаются с подчистовой отделкой, высотой потолков 3 м и панорамным остеклением в пол.
Дворы закрыты от автомобилей и случайных прохожих. Для автовладельцев предусмотрен подземный паркинг на 710 мест. Территория комплекса благоустроена: собственная набережная, прогулочная зона, зеленый двор. На первых этажах зданий разместятся кафе, салон красоты, аптека, магазины.
ЖК «City Bay» находится на пересечении МКАД и Волоколамского шоссе. Выезд на МКАД в 5 минутах транспортом, метро «Трикотажная» — 10 минут пешком.
Проект «City Bay» представляет собой квартальную застройку в стиле Нью-Йорка. Каждый квартал получил имя по названию одного из мировых океанов — Atlantic, Pacific, Indian, North. Корпуса высотой от 8 до 55 этажей образуют четыре закрытых двора, связанных бульваром и собственной набережной. Архитектурный проект разработан одно из ведущих бюро Москвы – Kamen. Дизайн входных групп разработан студией Jaime Beriestain (Испания), проект благоустройства - бюро Arteza.
В комплексе предложено множество планировочных решений: в наличии квартиры, как классического типа, так и европланировки. Квартиры сдаются с подчистовой отделкой, высотой потолков 3 м и панорамным остеклением в пол.
Дворы закрыты от автомобилей и случайных прохожих. Для автовладельцев предусмотрен подземный паркинг на 710 мест. Территория комплекса благоустроена: собственная набережная, прогулочная зона, зеленый двор. На первых этажах зданий разместятся кафе, салон красоты, аптека, магазины.
ЖК «City Bay» находится на пересечении МКАД и Волоколамского шоссе. Выезд на МКАД в 5 минутах транспортом, метро «Трикотажная» — 10 минут пешком.
Проект «City Bay» представляет собой квартальную застройку в стиле Нью-Йорка. Каждый квартал получил имя по названию одного из мировых океанов — Atlantic, Pacific, Indian, North. Корпуса высотой от 8 до 55 этажей образуют четыре закрытых двора, связанных бульваром и собственной набережной. Архитектурный проект разработан одно из ведущих бюро Москвы – Kamen. Дизайн входных групп разработан студией Jaime Beriestain (Испания), проект благоустройства - бюро Arteza.
В комплексе предложено множество планировочных решений: в наличии квартиры, как классического типа, так и европланировки. Квартиры сдаются с подчистовой отделкой, высотой потолков 3 м и панорамным остеклением в пол.
Дворы закрыты от автомобилей и случайных прохожих. Для автовладельцев предусмотрен подземный паркинг на 710 мест. Территория комплекса благоустроена: собственная набережная, прогулочная зона, зеленый двор. На первых этажах зданий разместятся кафе, салон красоты, аптека, магазины.
ЖК «City Bay» находится на пересечении МКАД и Волоколамского шоссе. Выезд на МКАД в 5 минутах транспортом, метро «Трикотажная» — 10 минут пешком.
Проект «City Bay» представляет собой квартальную застройку в стиле Нью-Йорка. Каждый квартал получил имя по названию одного из мировых океанов — Atlantic, Pacific, Indian, North. Корпуса высотой от 8 до 55 этажей образуют четыре закрытых двора, связанных бульваром и собственной набережной. Архитектурный проект разработан одно из ведущих бюро Москвы – Kamen. Дизайн входных групп разработан студией Jaime Beriestain (Испания), проект благоустройства - бюро Arteza.
В комплексе предложено множество планировочных решений: в наличии квартиры, как классического типа, так и европланировки. Квартиры сдаются с подчистовой отделкой, высотой потолков 3 м и панорамным остеклением в пол.
Дворы закрыты от автомобилей и случайных прохожих. Для автовладельцев предусмотрен подземный паркинг на 710 мест. Территория комплекса благоустроена: собственная набережная, прогулочная зона, зеленый двор. На первых этажах зданий разместятся кафе, салон красоты, аптека, магазины.
ЖК «City Bay» находится на пересечении МКАД и Волоколамского шоссе. Выезд на МКАД в 5 минутах транспортом, метро «Трикотажная» — 10 минут пешком.
Проект «City Bay» представляет собой квартальную застройку в стиле Нью-Йорка. Каждый квартал получил имя по названию одного из мировых океанов — Atlantic, Pacific, Indian, North. Корпуса высотой от 8 до 55 этажей образуют четыре закрытых двора, связанных бульваром и собственной набережной. Архитектурный проект разработан одно из ведущих бюро Москвы – Kamen. Дизайн входных групп разработан студией Jaime Beriestain (Испания), проект благоустройства - бюро Arteza.
В комплексе предложено множество планировочных решений: в наличии квартиры, как классического типа, так и европланировки. Квартиры сдаются с подчистовой отделкой, высотой потолков 3 м и панорамным остеклением в пол.
Дворы закрыты от автомобилей и случайных прохожих. Для автовладельцев предусмотрен подземный паркинг на 710 мест. Территория комплекса благоустроена: собственная набережная, прогулочная зона, зеленый двор. На первых этажах зданий разместятся кафе, салон красоты, аптека, магазины.
ЖК «City Bay» находится на пересечении МКАД и Волоколамского шоссе. Выезд на МКАД в 5 минутах транспортом, метро «Трикотажная» — 10 минут пешком.
Жилой комплекс «Jois» представляет собой 4 разновысотные башни, объединенные многоуровневым ландшафтным парком. Проект разработан архитектурным бюро Genpro. Башни имеют ступенчатую форму, с открытыми террасами на каждом уровне. Для облицовки фасадов использованы современные экологичные материалы: стекло и алюминиевые панели, оформление фасадов подчеркивается декоративной подсветкой, индивидуально придуманной для каждой башни. В лобби выполнен премиальный дизайн от студии Jaime Beriestain с авторской мебелью и арт-объектами в современном стиле. Для жителей комплекса открыто досуговое пространство с библиотекой, коворкингом, лаундж-зоной, гостиной с мини-кухней и игровыми комнатами для детей всех возрастов. Для владельцев автомобилей предусмотрен двухуровневый подземный паркинг.
В ЖК «Jois» предложено множество планировочных решений от студий до 3-комнатных квартир европейского формата с просторной кухней-гостиной. Доступны также эксклюзивные лоты: двухуровневые пентхаусы со вторым светом и сауной, квартиры с мастер-спальней, квартиры с открытыми террасами с зоной для камина, джакузи или барбекю. На террасах выполнено озеленение. Квартиры сдаются с подчистовой отделкой, панорамным остеклением и высокими потолками от 2,9 до 6 метров.
В проекте разработано многоуровневое благоустройство территории с всесезонным озеленением и грамотным зонированием. Оборудованы зоны отдыха, детские площадки, зоны для пикника, площадка для выгула собак, есть променад у воды и парящий мост со смотровой площадкой. На территории есть все для занятий спортом на открытом воздухе. Во внутреннем пространстве комплекса расположены площадки для футбола, баскетбола, волейбола, зона со столами для игры в настольный теннис, современные спортивные тренажеры. Также есть собственный фитнес-центр с панорамным бассейном и джакузи под открытым небом.
В ЖК «Jois» расположен перспективном районе Хорошево-Мневники, между деловым центром города и природными зонами. В пешей доступности от комплекса работают продовольственные магазины, ТРЦ, кафе, рестораны, фитнес-центры, дошкольные учреждения, школы и ВУЗы. Рядом несколько крупных парков: Филевский парк, Серебряный бор, Березовая роща. Метро «Хорошево» в 5 минутах пешком.
Жилой комплекс «Jois» представляет собой 4 разновысотные башни, объединенные многоуровневым ландшафтным парком. Проект разработан архитектурным бюро Genpro. Башни имеют ступенчатую форму, с открытыми террасами на каждом уровне. Для облицовки фасадов использованы современные экологичные материалы: стекло и алюминиевые панели, оформление фасадов подчеркивается декоративной подсветкой, индивидуально придуманной для каждой башни. В лобби выполнен премиальный дизайн от студии Jaime Beriestain с авторской мебелью и арт-объектами в современном стиле. Для жителей комплекса открыто досуговое пространство с библиотекой, коворкингом, лаундж-зоной, гостиной с мини-кухней и игровыми комнатами для детей всех возрастов. Для владельцев автомобилей предусмотрен двухуровневый подземный паркинг.
В ЖК «Jois» предложено множество планировочных решений от студий до 3-комнатных квартир европейского формата с просторной кухней-гостиной. Доступны также эксклюзивные лоты: двухуровневые пентхаусы со вторым светом и сауной, квартиры с мастер-спальней, квартиры с открытыми террасами с зоной для камина, джакузи или барбекю. На террасах выполнено озеленение. Квартиры сдаются с подчистовой отделкой, панорамным остеклением и высокими потолками от 2,9 до 6 метров.
В проекте разработано многоуровневое благоустройство территории с всесезонным озеленением и грамотным зонированием. Оборудованы зоны отдыха, детские площадки, зоны для пикника, площадка для выгула собак, есть променад у воды и парящий мост со смотровой площадкой. На территории есть все для занятий спортом на открытом воздухе. Во внутреннем пространстве комплекса расположены площадки для футбола, баскетбола, волейбола, зона со столами для игры в настольный теннис, современные спортивные тренажеры. Также есть собственный фитнес-центр с панорамным бассейном и джакузи под открытым небом.
В ЖК «Jois» расположен перспективном районе Хорошево-Мневники, между деловым центром города и природными зонами. В пешей доступности от комплекса работают продовольственные магазины, ТРЦ, кафе, рестораны, фитнес-центры, дошкольные учреждения, школы и ВУЗы. Рядом несколько крупных парков: Филевский парк, Серебряный бор, Березовая роща. Метро «Хорошево» в 5 минутах пешком.
Комплекс представляет собой премиальный загородный проект, включающий урбан-блоки переменной этажности, клубные дома, таунхаусы и коттеджи. Здания возведены по монолитной технологии, обеспечивающей высокую надежность и долговечность конструкций. Фасады облицованы керамическим и клинкерным кирпичом, металлическими элементами и алюминиевыми панелями. Корзины для монтажа кондиционеров скрыты элементами искусственного озеленения. В общественных зонах предусмотрены функциональные пространства: лобби с авторским дизайном, зона ожидания, мини-библиотека, помещения для хранения детских колясок и лапомойки. Установлены пассажирские и грузовые лифты.
Планировочные решения включают как классические форматы, так и европланировки. Квартиры сдаются без отделки, с потолками высотой 3,1 метра и увеличенной площадью остекления. В некоторых квартирах предусмотрены просторные террасы.
Территория проекта огорожена и представляет собой закрытый двор-парк с собственной инфраструктурой. Выполнено ландшафтное озеленение, функциональные зоны соединены прогулочными маршрутами. На территории расположены детский сад, спортивный комплекс, четыре теннисных корта. В стилобатной части здания размещены коммерческие помещения. Для автовладельцев предусмотрен крытый паркинг на 500 машиномест.
Проект расположен в деревне Ликино Одинцовского городского округа, в окружении зеленых зон. В радиусе 5-10 минут транспортной доступности находятся детские сады, школы, медицинские учреждения, торговые центры, парки и спортивные секции. Дорога до ММДЦ «Москва-Сити» занимает 25 минут по платной трассе М1.
Комплекс представляет собой премиальный загородный проект, включающий урбан-блоки переменной этажности, клубные дома, таунхаусы и коттеджи. Здания возведены по монолитной технологии, обеспечивающей высокую надежность и долговечность конструкций. Фасады облицованы керамическим и клинкерным кирпичом, металлическими элементами и алюминиевыми панелями. Корзины для монтажа кондиционеров скрыты элементами искусственного озеленения. В общественных зонах предусмотрены функциональные пространства: лобби с авторским дизайном, зона ожидания, мини-библиотека, помещения для хранения детских колясок и лапомойки. Установлены пассажирские и грузовые лифты.
Планировочные решения включают как классические форматы, так и европланировки. Квартиры сдаются без отделки, с потолками высотой 3,1 метра и увеличенной площадью остекления. В некоторых квартирах предусмотрены просторные террасы.
Территория проекта огорожена и представляет собой закрытый двор-парк с собственной инфраструктурой. Выполнено ландшафтное озеленение, функциональные зоны соединены прогулочными маршрутами. На территории расположены детский сад, спортивный комплекс, четыре теннисных корта. В стилобатной части здания размещены коммерческие помещения. Для автовладельцев предусмотрен крытый паркинг на 500 машиномест.
Проект расположен в деревне Ликино Одинцовского городского округа, в окружении зеленых зон. В радиусе 5-10 минут транспортной доступности находятся детские сады, школы, медицинские учреждения, торговые центры, парки и спортивные секции. Дорога до ММДЦ «Москва-Сити» занимает 25 минут по платной трассе М1.
Первая очередь мультиквартала включает в себя два урбан-блока Parus и Volna и состоит из 9 домов высотой от 10 до 48 этажей. Башни одного блока объединены 4-х этажными стилобатами и образуют закрытый периметр двора. Архитектурная концепция проекта разработана бюро СПИЧ. Каждый дом имеет уникальный облик и выделяется в общей композиции за счет применения разных фасадных материалов и архитектурных решений. В домах предусмотрены многофункциональные лобби с дизайнерской отделкой в стиле mid-century, художественным освещением и авторскими арт-объектами. В каждом лобби имеются переговорные комнаты, коворкинги, зоны ожидания с мягкой мебелью, колясочные, лапомойки и гостевые санузлы. Входы выполнены на уровне земли, а сами входные группы сделаны сквозными. Первые этажи зданий отведены под коммерческие помещения, а подземные уровни занимают кладовые и паркинг.
В проекте предложен широкий выбор планировочных решений от студий до 4-комнатных квартир. Есть лоты с кухнями-гостиными, мастер-спальнями, террасами, эркерами, лоджиями и балконами. Все квартиры представлены в подчистовой отделке White box по стандарту MR Base. Из панорамных окон открывается вид на парк и набережную Сходненского канала.
Концепция благоустройства предусматривает большое количество зеленых насаждений, извилистые дорожки и приватные зоны отдыха. Есть игровые пространства для детей разных возрастов, воркаут-площадка, места для выгула собак, лобби-гостиная и бзнес-гарден для работы на улице. Дворы закрыты для проезда машин, на территории предусмотрено видеонаблюдение.
Жилой комплекс расположен на Вишневой улице, в районе Покровское-Стрешнево, в окружении 18 парков, скверов и пляжей. Рядом находятся Усадьба Братцево, Сходненский ковш и парк Покровское-Стрешнево. Метро и D2 «Тушинская» в 5 минутах пешком.
Первая очередь мультиквартала включает в себя два урбан-блока Parus и Volna и состоит из 9 домов высотой от 10 до 48 этажей. Башни одного блока объединены 4-х этажными стилобатами и образуют закрытый периметр двора. Архитектурная концепция проекта разработана бюро СПИЧ. Каждый дом имеет уникальный облик и выделяется в общей композиции за счет применения разных фасадных материалов и архитектурных решений. В домах предусмотрены многофункциональные лобби с дизайнерской отделкой в стиле mid-century, художественным освещением и авторскими арт-объектами. В каждом лобби имеются переговорные комнаты, коворкинги, зоны ожидания с мягкой мебелью, колясочные, лапомойки и гостевые санузлы. Входы выполнены на уровне земли, а сами входные группы сделаны сквозными. Первые этажи зданий отведены под коммерческие помещения, а подземные уровни занимают кладовые и паркинг.
В проекте предложен широкий выбор планировочных решений от студий до 4-комнатных квартир. Есть лоты с кухнями-гостиными, мастер-спальнями, террасами, эркерами, лоджиями и балконами. Все квартиры представлены в подчистовой отделке White box по стандарту MR Base. Из панорамных окон открывается вид на парк и набережную Сходненского канала.
Концепция благоустройства предусматривает большое количество зеленых насаждений, извилистые дорожки и приватные зоны отдыха. Есть игровые пространства для детей разных возрастов, воркаут-площадка, места для выгула собак, лобби-гостиная и бзнес-гарден для работы на улице. Дворы закрыты для проезда машин, на территории предусмотрено видеонаблюдение.
Жилой комплекс расположен на Вишневой улице, в районе Покровское-Стрешнево, в окружении 18 парков, скверов и пляжей. Рядом находятся Усадьба Братцево, Сходненский ковш и парк Покровское-Стрешнево. Метро и D2 «Тушинская» в 5 минутах пешком.
Первая очередь мультиквартала включает в себя два урбан-блока Parus и Volna и состоит из 9 домов высотой от 10 до 48 этажей. Башни одного блока объединены 4-х этажными стилобатами и образуют закрытый периметр двора. Архитектурная концепция проекта разработана бюро СПИЧ. Каждый дом имеет уникальный облик и выделяется в общей композиции за счет применения разных фасадных материалов и архитектурных решений. В домах предусмотрены многофункциональные лобби с дизайнерской отделкой в стиле mid-century, художественным освещением и авторскими арт-объектами. В каждом лобби имеются переговорные комнаты, коворкинги, зоны ожидания с мягкой мебелью, колясочные, лапомойки и гостевые санузлы. Входы выполнены на уровне земли, а сами входные группы сделаны сквозными. Первые этажи зданий отведены под коммерческие помещения, а подземные уровни занимают кладовые и паркинг.
В проекте предложен широкий выбор планировочных решений от студий до 4-комнатных квартир. Есть лоты с кухнями-гостиными, мастер-спальнями, террасами, эркерами, лоджиями и балконами. Все квартиры представлены в подчистовой отделке White box по стандарту MR Base. Из панорамных окон открывается вид на парк и набережную Сходненского канала.
Концепция благоустройства предусматривает большое количество зеленых насаждений, извилистые дорожки и приватные зоны отдыха. Есть игровые пространства для детей разных возрастов, воркаут-площадка, места для выгула собак, лобби-гостиная и бзнес-гарден для работы на улице. Дворы закрыты для проезда машин, на территории предусмотрено видеонаблюдение.
Жилой комплекс расположен на Вишневой улице, в районе Покровское-Стрешнево, в окружении 18 парков, скверов и пляжей. Рядом находятся Усадьба Братцево, Сходненский ковш и парк Покровское-Стрешнево. Метро и D2 «Тушинская» в 5 минутах пешком.
Первая очередь мультиквартала включает в себя два урбан-блока Parus и Volna и состоит из 9 домов высотой от 10 до 48 этажей. Башни одного блока объединены 4-х этажными стилобатами и образуют закрытый периметр двора. Архитектурная концепция проекта разработана бюро СПИЧ. Каждый дом имеет уникальный облик и выделяется в общей композиции за счет применения разных фасадных материалов и архитектурных решений. В домах предусмотрены многофункциональные лобби с дизайнерской отделкой в стиле mid-century, художественным освещением и авторскими арт-объектами. В каждом лобби имеются переговорные комнаты, коворкинги, зоны ожидания с мягкой мебелью, колясочные, лапомойки и гостевые санузлы. Входы выполнены на уровне земли, а сами входные группы сделаны сквозными. Первые этажи зданий отведены под коммерческие помещения, а подземные уровни занимают кладовые и паркинг.
В проекте предложен широкий выбор планировочных решений от студий до 4-комнатных квартир. Есть лоты с кухнями-гостиными, мастер-спальнями, террасами, эркерами, лоджиями и балконами. Все квартиры представлены в подчистовой отделке White box по стандарту MR Base. Из панорамных окон открывается вид на парк и набережную Сходненского канала.
Концепция благоустройства предусматривает большое количество зеленых насаждений, извилистые дорожки и приватные зоны отдыха. Есть игровые пространства для детей разных возрастов, воркаут-площадка, места для выгула собак, лобби-гостиная и бзнес-гарден для работы на улице. Дворы закрыты для проезда машин, на территории предусмотрено видеонаблюдение.
Жилой комплекс расположен на Вишневой улице, в районе Покровское-Стрешнево, в окружении 18 парков, скверов и пляжей. Рядом находятся Усадьба Братцево, Сходненский ковш и парк Покровское-Стрешнево. Метро и D2 «Тушинская» в 5 минутах пешком.
Первая очередь мультиквартала включает в себя два урбан-блока Parus и Volna и состоит из 9 домов высотой от 10 до 48 этажей. Башни одного блока объединены 4-х этажными стилобатами и образуют закрытый периметр двора. Архитектурная концепция проекта разработана бюро СПИЧ. Каждый дом имеет уникальный облик и выделяется в общей композиции за счет применения разных фасадных материалов и архитектурных решений. В домах предусмотрены многофункциональные лобби с дизайнерской отделкой в стиле mid-century, художественным освещением и авторскими арт-объектами. В каждом лобби имеются переговорные комнаты, коворкинги, зоны ожидания с мягкой мебелью, колясочные, лапомойки и гостевые санузлы. Входы выполнены на уровне земли, а сами входные группы сделаны сквозными. Первые этажи зданий отведены под коммерческие помещения, а подземные уровни занимают кладовые и паркинг.
В проекте предложен широкий выбор планировочных решений от студий до 4-комнатных квартир. Есть лоты с кухнями-гостиными, мастер-спальнями, террасами, эркерами, лоджиями и балконами. Все квартиры представлены в подчистовой отделке White box по стандарту MR Base. Из панорамных окон открывается вид на парк и набережную Сходненского канала.
Концепция благоустройства предусматривает большое количество зеленых насаждений, извилистые дорожки и приватные зоны отдыха. Есть игровые пространства для детей разных возрастов, воркаут-площадка, места для выгула собак, лобби-гостиная и бзнес-гарден для работы на улице. Дворы закрыты для проезда машин, на территории предусмотрено видеонаблюдение.
Жилой комплекс расположен на Вишневой улице, в районе Покровское-Стрешнево, в окружении 18 парков, скверов и пляжей. Рядом находятся Усадьба Братцево, Сходненский ковш и парк Покровское-Стрешнево. Метро и D2 «Тушинская» в 5 минутах пешком.
Первая очередь мультиквартала включает в себя два урбан-блока Parus и Volna и состоит из 9 домов высотой от 10 до 48 этажей. Башни одного блока объединены 4-х этажными стилобатами и образуют закрытый периметр двора. Архитектурная концепция проекта разработана бюро СПИЧ. Каждый дом имеет уникальный облик и выделяется в общей композиции за счет применения разных фасадных материалов и архитектурных решений. В домах предусмотрены многофункциональные лобби с дизайнерской отделкой в стиле mid-century, художественным освещением и авторскими арт-объектами. В каждом лобби имеются переговорные комнаты, коворкинги, зоны ожидания с мягкой мебелью, колясочные, лапомойки и гостевые санузлы. Входы выполнены на уровне земли, а сами входные группы сделаны сквозными. Первые этажи зданий отведены под коммерческие помещения, а подземные уровни занимают кладовые и паркинг.
В проекте предложен широкий выбор планировочных решений от студий до 4-комнатных квартир. Есть лоты с кухнями-гостиными, мастер-спальнями, террасами, эркерами, лоджиями и балконами. Все квартиры представлены в подчистовой отделке White box по стандарту MR Base. Из панорамных окон открывается вид на парк и набережную Сходненского канала.
Концепция благоустройства предусматривает большое количество зеленых насаждений, извилистые дорожки и приватные зоны отдыха. Есть игровые пространства для детей разных возрастов, воркаут-площадка, места для выгула собак, лобби-гостиная и бзнес-гарден для работы на улице. Дворы закрыты для проезда машин, на территории предусмотрено видеонаблюдение.
Жилой комплекс расположен на Вишневой улице, в районе Покровское-Стрешнево, в окружении 18 парков, скверов и пляжей. Рядом находятся Усадьба Братцево, Сходненский ковш и парк Покровское-Стрешнево. Метро и D2 «Тушинская» в 5 минутах пешком.
Первая очередь мультиквартала включает в себя два урбан-блока Parus и Volna и состоит из 9 домов высотой от 10 до 48 этажей. Башни одного блока объединены 4-х этажными стилобатами и образуют закрытый периметр двора. Архитектурная концепция проекта разработана бюро СПИЧ. Каждый дом имеет уникальный облик и выделяется в общей композиции за счет применения разных фасадных материалов и архитектурных решений. В домах предусмотрены многофункциональные лобби с дизайнерской отделкой в стиле mid-century, художественным освещением и авторскими арт-объектами. В каждом лобби имеются переговорные комнаты, коворкинги, зоны ожидания с мягкой мебелью, колясочные, лапомойки и гостевые санузлы. Входы выполнены на уровне земли, а сами входные группы сделаны сквозными. Первые этажи зданий отведены под коммерческие помещения, а подземные уровни занимают кладовые и паркинг.
В проекте предложен широкий выбор планировочных решений от студий до 4-комнатных квартир. Есть лоты с кухнями-гостиными, мастер-спальнями, террасами, эркерами, лоджиями и балконами. Все квартиры представлены в подчистовой отделке White box по стандарту MR Base. Из панорамных окон открывается вид на парк и набережную Сходненского канала.
Концепция благоустройства предусматривает большое количество зеленых насаждений, извилистые дорожки и приватные зоны отдыха. Есть игровые пространства для детей разных возрастов, воркаут-площадка, места для выгула собак, лобби-гостиная и бзнес-гарден для работы на улице. Дворы закрыты для проезда машин, на территории предусмотрено видеонаблюдение.
Жилой комплекс расположен на Вишневой улице, в районе Покровское-Стрешнево, в окружении 18 парков, скверов и пляжей. Рядом находятся Усадьба Братцево, Сходненский ковш и парк Покровское-Стрешнево. Метро и D2 «Тушинская» в 5 минутах пешком.
Первая очередь мультиквартала включает в себя два урбан-блока Parus и Volna и состоит из 9 домов высотой от 10 до 48 этажей. Башни одного блока объединены 4-х этажными стилобатами и образуют закрытый периметр двора. Архитектурная концепция проекта разработана бюро СПИЧ. Каждый дом имеет уникальный облик и выделяется в общей композиции за счет применения разных фасадных материалов и архитектурных решений. В домах предусмотрены многофункциональные лобби с дизайнерской отделкой в стиле mid-century, художественным освещением и авторскими арт-объектами. В каждом лобби имеются переговорные комнаты, коворкинги, зоны ожидания с мягкой мебелью, колясочные, лапомойки и гостевые санузлы. Входы выполнены на уровне земли, а сами входные группы сделаны сквозными. Первые этажи зданий отведены под коммерческие помещения, а подземные уровни занимают кладовые и паркинг.
В проекте предложен широкий выбор планировочных решений от студий до 4-комнатных квартир. Есть лоты с кухнями-гостиными, мастер-спальнями, террасами, эркерами, лоджиями и балконами. Все квартиры представлены в подчистовой отделке White box по стандарту MR Base. Из панорамных окон открывается вид на парк и набережную Сходненского канала.
Концепция благоустройства предусматривает большое количество зеленых насаждений, извилистые дорожки и приватные зоны отдыха. Есть игровые пространства для детей разных возрастов, воркаут-площадка, места для выгула собак, лобби-гостиная и бзнес-гарден для работы на улице. Дворы закрыты для проезда машин, на территории предусмотрено видеонаблюдение.
Жилой комплекс расположен на Вишневой улице, в районе Покровское-Стрешнево, в окружении 18 парков, скверов и пляжей. Рядом находятся Усадьба Братцево, Сходненский ковш и парк Покровское-Стрешнево. Метро и D2 «Тушинская» в 5 минутах пешком.
Первая очередь мультиквартала включает в себя два урбан-блока Parus и Volna и состоит из 9 домов высотой от 10 до 48 этажей. Башни одного блока объединены 4-х этажными стилобатами и образуют закрытый периметр двора. Архитектурная концепция проекта разработана бюро СПИЧ. Каждый дом имеет уникальный облик и выделяется в общей композиции за счет применения разных фасадных материалов и архитектурных решений. В домах предусмотрены многофункциональные лобби с дизайнерской отделкой в стиле mid-century, художественным освещением и авторскими арт-объектами. В каждом лобби имеются переговорные комнаты, коворкинги, зоны ожидания с мягкой мебелью, колясочные, лапомойки и гостевые санузлы. Входы выполнены на уровне земли, а сами входные группы сделаны сквозными. Первые этажи зданий отведены под коммерческие помещения, а подземные уровни занимают кладовые и паркинг.
В проекте предложен широкий выбор планировочных решений от студий до 4-комнатных квартир. Есть лоты с кухнями-гостиными, мастер-спальнями, террасами, эркерами, лоджиями и балконами. Все квартиры представлены в подчистовой отделке White box по стандарту MR Base. Из панорамных окон открывается вид на парк и набережную Сходненского канала.
Концепция благоустройства предусматривает большое количество зеленых насаждений, извилистые дорожки и приватные зоны отдыха. Есть игровые пространства для детей разных возрастов, воркаут-площадка, места для выгула собак, лобби-гостиная и бзнес-гарден для работы на улице. Дворы закрыты для проезда машин, на территории предусмотрено видеонаблюдение.
Жилой комплекс расположен на Вишневой улице, в районе Покровское-Стрешнево, в окружении 18 парков, скверов и пляжей. Рядом находятся Усадьба Братцево, Сходненский ковш и парк Покровское-Стрешнево. Метро и D2 «Тушинская» в 5 минутах пешком.
Жилой квартал состоит из 3 урбан-блоков, каждый из которых выполнен в своей стилистической концепции. В первом урбан-блоке предусмотрено 3 жилых корпуса переменной этажности: 18, 45 и 59 этажей. Они объединены стилобатом, в котором размещены инфраструктурные объекты. Архитектурный проект комплекса принадлежит знаменитому бюро СПИЧ. В основу архитектурного решения комплекса положен образ современного небоскреба. Эффектная геометрия подчеркивается за счет ступенчатых объемов башен, на которых организованы террасы, а на верхних этажах находятся общедоступные смотровые площадки. В просторных светлых лобби создана гостеприимная атмосфера первоклассного отеля. В лобби предусмотрены зоны ресепшен с дежурным консьержем, библиотека, комната для проведения мероприятий, переговорные, лапомойки, колясочные, санузлы и постамат.
В комплексе предложен широкий выбор планировочных решений: от компактных студий площадью 22 кв. метра до просторных резиденций площадью 120 кв. метров. Планировками предусмотрены мастер-спальни с гардеробной и санузлом, просторные кухни-гостиные, гардеробные и системы хранения, выделенные рабочие зоны в спальнях и террасы с панорамным видом на город. Во всех квартирах панорамные окна и высокие потолки от 2,85 метра. Квартиры сдаются с отделкой White box.
Жилой комплекс включает в себя не только современные жилые корпуса, но и разнообразные инфраструктурные объекты: фитнес-клуб с бассейном, детскую школу искусств, центр культуры и досуга, медицинский центр, собственную школу на 1500 учеников и детский сад на 450 мест. Во дворах предусмотрены зоны как для активного, так и для расслабленного отдыха: воркаут-площадка с современными уличными тренажерами, двухуровневая детская игровая зона с безопасными резиновыми покрытиями и технологичным оборудованием, площадка для йоги, уличная терраса и собственный водоем. Для владельцев автомобилей предусмотрен подземный паркинг на 495 мест с зарядками для электрокаров, постами подкачки шин и автомойкой.
Комплекс расположен в Можайском районе, на Верейской улице, между природной зоной долины реки Сетунь, Кутузовским и Мичуринским проспектами. Рядом находится Школа управления Сколково, Мещерский парк, экотропа «Сетунь». В 20 минутах ходьбы расположено метро «Давыдково», а природный парк «Долина реки Сетунь» находится всего в 3 минутах.
Жилой квартал состоит из 3 урбан-блоков, каждый из которых выполнен в своей стилистической концепции. В первом урбан-блоке предусмотрено 3 жилых корпуса переменной этажности: 18, 45 и 59 этажей. Они объединены стилобатом, в котором размещены инфраструктурные объекты. Архитектурный проект комплекса принадлежит знаменитому бюро СПИЧ. В основу архитектурного решения комплекса положен образ современного небоскреба. Эффектная геометрия подчеркивается за счет ступенчатых объемов башен, на которых организованы террасы, а на верхних этажах находятся общедоступные смотровые площадки. В просторных светлых лобби создана гостеприимная атмосфера первоклассного отеля. В лобби предусмотрены зоны ресепшен с дежурным консьержем, библиотека, комната для проведения мероприятий, переговорные, лапомойки, колясочные, санузлы и постамат.
В комплексе предложен широкий выбор планировочных решений: от компактных студий площадью 22 кв. метра до просторных резиденций площадью 120 кв. метров. Планировками предусмотрены мастер-спальни с гардеробной и санузлом, просторные кухни-гостиные, гардеробные и системы хранения, выделенные рабочие зоны в спальнях и террасы с панорамным видом на город. Во всех квартирах панорамные окна и высокие потолки от 2,85 метра. Квартиры сдаются с отделкой White box.
Жилой комплекс включает в себя не только современные жилые корпуса, но и разнообразные инфраструктурные объекты: фитнес-клуб с бассейном, детскую школу искусств, центр культуры и досуга, медицинский центр, собственную школу на 1500 учеников и детский сад на 450 мест. Во дворах предусмотрены зоны как для активного, так и для расслабленного отдыха: воркаут-площадка с современными уличными тренажерами, двухуровневая детская игровая зона с безопасными резиновыми покрытиями и технологичным оборудованием, площадка для йоги, уличная терраса и собственный водоем. Для владельцев автомобилей предусмотрен подземный паркинг на 495 мест с зарядками для электрокаров, постами подкачки шин и автомойкой.
Комплекс расположен в Можайском районе, на Верейской улице, между природной зоной долины реки Сетунь, Кутузовским и Мичуринским проспектами. Рядом находится Школа управления Сколково, Мещерский парк, экотропа «Сетунь». В 20 минутах ходьбы расположено метро «Давыдково», а природный парк «Долина реки Сетунь» находится всего в 3 минутах.
Жилой квартал состоит из 3 урбан-блоков, каждый из которых выполнен в своей стилистической концепции. В первом урбан-блоке предусмотрено 3 жилых корпуса переменной этажности: 18, 45 и 59 этажей. Они объединены стилобатом, в котором размещены инфраструктурные объекты. Архитектурный проект комплекса принадлежит знаменитому бюро СПИЧ. В основу архитектурного решения комплекса положен образ современного небоскреба. Эффектная геометрия подчеркивается за счет ступенчатых объемов башен, на которых организованы террасы, а на верхних этажах находятся общедоступные смотровые площадки. В просторных светлых лобби создана гостеприимная атмосфера первоклассного отеля. В лобби предусмотрены зоны ресепшен с дежурным консьержем, библиотека, комната для проведения мероприятий, переговорные, лапомойки, колясочные, санузлы и постамат.
В комплексе предложен широкий выбор планировочных решений: от компактных студий площадью 22 кв. метра до просторных резиденций площадью 120 кв. метров. Планировками предусмотрены мастер-спальни с гардеробной и санузлом, просторные кухни-гостиные, гардеробные и системы хранения, выделенные рабочие зоны в спальнях и террасы с панорамным видом на город. Во всех квартирах панорамные окна и высокие потолки от 2,85 метра. Квартиры сдаются с отделкой White box.
Жилой комплекс включает в себя не только современные жилые корпуса, но и разнообразные инфраструктурные объекты: фитнес-клуб с бассейном, детскую школу искусств, центр культуры и досуга, медицинский центр, собственную школу на 1500 учеников и детский сад на 450 мест. Во дворах предусмотрены зоны как для активного, так и для расслабленного отдыха: воркаут-площадка с современными уличными тренажерами, двухуровневая детская игровая зона с безопасными резиновыми покрытиями и технологичным оборудованием, площадка для йоги, уличная терраса и собственный водоем. Для владельцев автомобилей предусмотрен подземный паркинг на 495 мест с зарядками для электрокаров, постами подкачки шин и автомойкой.
Комплекс расположен в Можайском районе, на Верейской улице, между природной зоной долины реки Сетунь, Кутузовским и Мичуринским проспектами. Рядом находится Школа управления Сколково, Мещерский парк, экотропа «Сетунь». В 20 минутах ходьбы расположено метро «Давыдково», а природный парк «Долина реки Сетунь» находится всего в 3 минутах.
Жилой квартал состоит из 3 урбан-блоков, каждый из которых выполнен в своей стилистической концепции. В первом урбан-блоке предусмотрено 3 жилых корпуса переменной этажности: 18, 45 и 59 этажей. Они объединены стилобатом, в котором размещены инфраструктурные объекты. Архитектурный проект комплекса принадлежит знаменитому бюро СПИЧ. В основу архитектурного решения комплекса положен образ современного небоскреба. Эффектная геометрия подчеркивается за счет ступенчатых объемов башен, на которых организованы террасы, а на верхних этажах находятся общедоступные смотровые площадки. В просторных светлых лобби создана гостеприимная атмосфера первоклассного отеля. В лобби предусмотрены зоны ресепшен с дежурным консьержем, библиотека, комната для проведения мероприятий, переговорные, лапомойки, колясочные, санузлы и постамат.
В комплексе предложен широкий выбор планировочных решений: от компактных студий площадью 22 кв. метра до просторных резиденций площадью 120 кв. метров. Планировками предусмотрены мастер-спальни с гардеробной и санузлом, просторные кухни-гостиные, гардеробные и системы хранения, выделенные рабочие зоны в спальнях и террасы с панорамным видом на город. Во всех квартирах панорамные окна и высокие потолки от 2,85 метра. Квартиры сдаются с отделкой White box.
Жилой комплекс включает в себя не только современные жилые корпуса, но и разнообразные инфраструктурные объекты: фитнес-клуб с бассейном, детскую школу искусств, центр культуры и досуга, медицинский центр, собственную школу на 1500 учеников и детский сад на 450 мест. Во дворах предусмотрены зоны как для активного, так и для расслабленного отдыха: воркаут-площадка с современными уличными тренажерами, двухуровневая детская игровая зона с безопасными резиновыми покрытиями и технологичным оборудованием, площадка для йоги, уличная терраса и собственный водоем. Для владельцев автомобилей предусмотрен подземный паркинг на 495 мест с зарядками для электрокаров, постами подкачки шин и автомойкой.
Комплекс расположен в Можайском районе, на Верейской улице, между природной зоной долины реки Сетунь, Кутузовским и Мичуринским проспектами. Рядом находится Школа управления Сколково, Мещерский парк, экотропа «Сетунь». В 20 минутах ходьбы расположено метро «Давыдково», а природный парк «Долина реки Сетунь» находится всего в 3 минутах.
Жилой квартал состоит из 3 урбан-блоков, каждый из которых выполнен в своей стилистической концепции. В первом урбан-блоке предусмотрено 3 жилых корпуса переменной этажности: 18, 45 и 59 этажей. Они объединены стилобатом, в котором размещены инфраструктурные объекты. Архитектурный проект комплекса принадлежит знаменитому бюро СПИЧ. В основу архитектурного решения комплекса положен образ современного небоскреба. Эффектная геометрия подчеркивается за счет ступенчатых объемов башен, на которых организованы террасы, а на верхних этажах находятся общедоступные смотровые площадки. В просторных светлых лобби создана гостеприимная атмосфера первоклассного отеля. В лобби предусмотрены зоны ресепшен с дежурным консьержем, библиотека, комната для проведения мероприятий, переговорные, лапомойки, колясочные, санузлы и постамат.
В комплексе предложен широкий выбор планировочных решений: от компактных студий площадью 22 кв. метра до просторных резиденций площадью 120 кв. метров. Планировками предусмотрены мастер-спальни с гардеробной и санузлом, просторные кухни-гостиные, гардеробные и системы хранения, выделенные рабочие зоны в спальнях и террасы с панорамным видом на город. Во всех квартирах панорамные окна и высокие потолки от 2,85 метра. Квартиры сдаются с отделкой White box.
Жилой комплекс включает в себя не только современные жилые корпуса, но и разнообразные инфраструктурные объекты: фитнес-клуб с бассейном, детскую школу искусств, центр культуры и досуга, медицинский центр, собственную школу на 1500 учеников и детский сад на 450 мест. Во дворах предусмотрены зоны как для активного, так и для расслабленного отдыха: воркаут-площадка с современными уличными тренажерами, двухуровневая детская игровая зона с безопасными резиновыми покрытиями и технологичным оборудованием, площадка для йоги, уличная терраса и собственный водоем. Для владельцев автомобилей предусмотрен подземный паркинг на 495 мест с зарядками для электрокаров, постами подкачки шин и автомойкой.
Комплекс расположен в Можайском районе, на Верейской улице, между природной зоной долины реки Сетунь, Кутузовским и Мичуринским проспектами. Рядом находится Школа управления Сколково, Мещерский парк, экотропа «Сетунь». В 20 минутах ходьбы расположено метро «Давыдково», а природный парк «Долина реки Сетунь» находится всего в 3 минутах.
Жилой квартал состоит из 3 урбан-блоков, каждый из которых выполнен в своей стилистической концепции. В первом урбан-блоке предусмотрено 3 жилых корпуса переменной этажности: 18, 45 и 59 этажей. Они объединены стилобатом, в котором размещены инфраструктурные объекты. Архитектурный проект комплекса принадлежит знаменитому бюро СПИЧ. В основу архитектурного решения комплекса положен образ современного небоскреба. Эффектная геометрия подчеркивается за счет ступенчатых объемов башен, на которых организованы террасы, а на верхних этажах находятся общедоступные смотровые площадки. В просторных светлых лобби создана гостеприимная атмосфера первоклассного отеля. В лобби предусмотрены зоны ресепшен с дежурным консьержем, библиотека, комната для проведения мероприятий, переговорные, лапомойки, колясочные, санузлы и постамат.
В комплексе предложен широкий выбор планировочных решений: от компактных студий площадью 22 кв. метра до просторных резиденций площадью 120 кв. метров. Планировками предусмотрены мастер-спальни с гардеробной и санузлом, просторные кухни-гостиные, гардеробные и системы хранения, выделенные рабочие зоны в спальнях и террасы с панорамным видом на город. Во всех квартирах панорамные окна и высокие потолки от 2,85 метра. Квартиры сдаются с отделкой White box.
Жилой комплекс включает в себя не только современные жилые корпуса, но и разнообразные инфраструктурные объекты: фитнес-клуб с бассейном, детскую школу искусств, центр культуры и досуга, медицинский центр, собственную школу на 1500 учеников и детский сад на 450 мест. Во дворах предусмотрены зоны как для активного, так и для расслабленного отдыха: воркаут-площадка с современными уличными тренажерами, двухуровневая детская игровая зона с безопасными резиновыми покрытиями и технологичным оборудованием, площадка для йоги, уличная терраса и собственный водоем. Для владельцев автомобилей предусмотрен подземный паркинг на 495 мест с зарядками для электрокаров, постами подкачки шин и автомойкой.
Комплекс расположен в Можайском районе, на Верейской улице, между природной зоной долины реки Сетунь, Кутузовским и Мичуринским проспектами. Рядом находится Школа управления Сколково, Мещерский парк, экотропа «Сетунь». В 20 минутах ходьбы расположено метро «Давыдково», а природный парк «Долина реки Сетунь» находится всего в 3 минутах.
Жилой квартал состоит из 3 урбан-блоков, каждый из которых выполнен в своей стилистической концепции. В первом урбан-блоке предусмотрено 3 жилых корпуса переменной этажности: 18, 45 и 59 этажей. Они объединены стилобатом, в котором размещены инфраструктурные объекты. Архитектурный проект комплекса принадлежит знаменитому бюро СПИЧ. В основу архитектурного решения комплекса положен образ современного небоскреба. Эффектная геометрия подчеркивается за счет ступенчатых объемов башен, на которых организованы террасы, а на верхних этажах находятся общедоступные смотровые площадки. В просторных светлых лобби создана гостеприимная атмосфера первоклассного отеля. В лобби предусмотрены зоны ресепшен с дежурным консьержем, библиотека, комната для проведения мероприятий, переговорные, лапомойки, колясочные, санузлы и постамат.
В комплексе предложен широкий выбор планировочных решений: от компактных студий площадью 22 кв. метра до просторных резиденций площадью 120 кв. метров. Планировками предусмотрены мастер-спальни с гардеробной и санузлом, просторные кухни-гостиные, гардеробные и системы хранения, выделенные рабочие зоны в спальнях и террасы с панорамным видом на город. Во всех квартирах панорамные окна и высокие потолки от 2,85 метра. Квартиры сдаются с отделкой White box.
Жилой комплекс включает в себя не только современные жилые корпуса, но и разнообразные инфраструктурные объекты: фитнес-клуб с бассейном, детскую школу искусств, центр культуры и досуга, медицинский центр, собственную школу на 1500 учеников и детский сад на 450 мест. Во дворах предусмотрены зоны как для активного, так и для расслабленного отдыха: воркаут-площадка с современными уличными тренажерами, двухуровневая детская игровая зона с безопасными резиновыми покрытиями и технологичным оборудованием, площадка для йоги, уличная терраса и собственный водоем. Для владельцев автомобилей предусмотрен подземный паркинг на 495 мест с зарядками для электрокаров, постами подкачки шин и автомойкой.
Комплекс расположен в Можайском районе, на Верейской улице, между природной зоной долины реки Сетунь, Кутузовским и Мичуринским проспектами. Рядом находится Школа управления Сколково, Мещерский парк, экотропа «Сетунь». В 20 минутах ходьбы расположено метро «Давыдково», а природный парк «Долина реки Сетунь» находится всего в 3 минутах.
Жилой квартал состоит из 3 урбан-блоков, каждый из которых выполнен в своей стилистической концепции. В первом урбан-блоке предусмотрено 3 жилых корпуса переменной этажности: 18, 45 и 59 этажей. Они объединены стилобатом, в котором размещены инфраструктурные объекты. Архитектурный проект комплекса принадлежит знаменитому бюро СПИЧ. В основу архитектурного решения комплекса положен образ современного небоскреба. Эффектная геометрия подчеркивается за счет ступенчатых объемов башен, на которых организованы террасы, а на верхних этажах находятся общедоступные смотровые площадки. В просторных светлых лобби создана гостеприимная атмосфера первоклассного отеля. В лобби предусмотрены зоны ресепшен с дежурным консьержем, библиотека, комната для проведения мероприятий, переговорные, лапомойки, колясочные, санузлы и постамат.
В комплексе предложен широкий выбор планировочных решений: от компактных студий площадью 22 кв. метра до просторных резиденций площадью 120 кв. метров. Планировками предусмотрены мастер-спальни с гардеробной и санузлом, просторные кухни-гостиные, гардеробные и системы хранения, выделенные рабочие зоны в спальнях и террасы с панорамным видом на город. Во всех квартирах панорамные окна и высокие потолки от 2,85 метра. Квартиры сдаются с отделкой White box.
Жилой комплекс включает в себя не только современные жилые корпуса, но и разнообразные инфраструктурные объекты: фитнес-клуб с бассейном, детскую школу искусств, центр культуры и досуга, медицинский центр, собственную школу на 1500 учеников и детский сад на 450 мест. Во дворах предусмотрены зоны как для активного, так и для расслабленного отдыха: воркаут-площадка с современными уличными тренажерами, двухуровневая детская игровая зона с безопасными резиновыми покрытиями и технологичным оборудованием, площадка для йоги, уличная терраса и собственный водоем. Для владельцев автомобилей предусмотрен подземный паркинг на 495 мест с зарядками для электрокаров, постами подкачки шин и автомойкой.
Комплекс расположен в Можайском районе, на Верейской улице, между природной зоной долины реки Сетунь, Кутузовским и Мичуринским проспектами. Рядом находится Школа управления Сколково, Мещерский парк, экотропа «Сетунь». В 20 минутах ходьбы расположено метро «Давыдково», а природный парк «Долина реки Сетунь» находится всего в 3 минутах.
Комплекс апартаментов «SLAVA» состоит из 6 корпусов переменной этажности от 8 до 17 этажей. Архитектурная концепция комплекса разработана международным бюро Dyer. В отделке фасадов из натурального камня и клинкерного кирпича гармонично сочетаются оттенки серебристого металла, темного кварцита и платинового серого цвета. Входная группа каждого корпуса ведет в просторное лобби с дизайнерской отделкой от бюро «Sundukovy Sisters», где организованы лаунж-зоны, многофункциональные переговорные комнаты и лоби-бар совмещенный с зоной ресепшен. В комплексе предусмотрены VRF-системы, поддерживающие приятный микроклимат, установлена система умных датчиков потребления.
В комплексе апартаментов «SLAVA» предложено множество планировочных решений от компактных студий до просторных трехкомнатных апартаментов. Сдаются они с отделкой «White box» и высотой потолков до 3,28 метра. Во всех апартаментах выполнено панорамное остекление с пониженной теплопроводностью, из окон открываются завораживающие виды на исторический центр Москвы.
На первых этажах 3 корпусов расположены лаунж-зоны, детский сад, фитнес-центр, кафе и рестораны, супермаркеты, консьерж сервис и другая необходимая инфраструктура. Благоустройство дворов выполнено международным бюро Gillespies и включает в себя: двор-сад, оранжерею под открытым небом, водную композицию, центральный променад, террасу для отдыха, детские игровые и спортивные площадки, деревянные беседки и парковые скамейки, а так же озелененные сады. На закрытой придомовой территории выполнен ландшафтный дизайн, организованы места для отдыха и спроектирована площадь с фонтаном. Для владельцев автомобилей предусмотрен подземный паркинг оборудованный системами подкачки шин и зарядкой для электромобилей.
Комплекс «SLAVA» расположен в Беговом районе с развитой инфраструктурой, в пешей доступности: медицинские учреждения, детский сад и гимназия, кафе, магазины, рестораны, салоны красоты, бизнес-центр «Белая площадь» и фудмолл «Депо». До торгового центра «Савеловский» — 10 минут транспортом. До метро «Белорусская» — 5 минут пешком.
Комплекс апартаментов «SLAVA» состоит из 6 корпусов переменной этажности от 8 до 17 этажей. Архитектурная концепция комплекса разработана международным бюро Dyer. В отделке фасадов из натурального камня и клинкерного кирпича гармонично сочетаются оттенки серебристого металла, темного кварцита и платинового серого цвета. Входная группа каждого корпуса ведет в просторное лобби с дизайнерской отделкой от бюро «Sundukovy Sisters», где организованы лаунж-зоны, многофункциональные переговорные комнаты и лоби-бар совмещенный с зоной ресепшен. В комплексе предусмотрены VRF-системы, поддерживающие приятный микроклимат, установлена система умных датчиков потребления.
В комплексе апартаментов «SLAVA» предложено множество планировочных решений от компактных студий до просторных трехкомнатных апартаментов. Сдаются они с отделкой «White box» и высотой потолков до 3,28 метра. Во всех апартаментах выполнено панорамное остекление с пониженной теплопроводностью, из окон открываются завораживающие виды на исторический центр Москвы.
На первых этажах 3 корпусов расположены лаунж-зоны, детский сад, фитнес-центр, кафе и рестораны, супермаркеты, консьерж сервис и другая необходимая инфраструктура. Благоустройство дворов выполнено международным бюро Gillespies и включает в себя: двор-сад, оранжерею под открытым небом, водную композицию, центральный променад, террасу для отдыха, детские игровые и спортивные площадки, деревянные беседки и парковые скамейки, а так же озелененные сады. На закрытой придомовой территории выполнен ландшафтный дизайн, организованы места для отдыха и спроектирована площадь с фонтаном. Для владельцев автомобилей предусмотрен подземный паркинг оборудованный системами подкачки шин и зарядкой для электромобилей.
Комплекс «SLAVA» расположен в Беговом районе с развитой инфраструктурой, в пешей доступности: медицинские учреждения, детский сад и гимназия, кафе, магазины, рестораны, салоны красоты, бизнес-центр «Белая площадь» и фудмолл «Депо». До торгового центра «Савеловский» — 10 минут транспортом. До метро «Белорусская» — 5 минут пешком.
Проект «Эко Видное 2.0» — это продолжение уже завершенного микрорайона ЖК «Эко Видное». Новостройка располагается на участке в 16 гектаров на берегу реки Купелинка. Архитектурный проект разработан компанией ADM. Жилой комплекс состоит из шести жилых корпусов переменной этажности, носящих имена великих художников И. Шишкина, И. Левитана, А. Саврасова, В. Васнецова, В. Поленова, М. Нестерова.
Квартиры в ЖК представлены классическими планировками от студий до трёхкомнатных. Есть возможность выбрать квартиру без отделки, с подчистовой и чистовой отделкой.
Первые этажи в ЖК «Эко Видное 2.0» будут отданы под магазины, супермаркеты, салоны красоты. Проект предусматривает строительство школы на 1100 мест и двух детских садов на 510 мест. Дворы закрыты для машин. Открытые автостоянки вынесены за пределы жилой зоны. Во дворе предусмотрены детские игровые и спортивные площадки. Квартал расположен возле реки Купелинки, на берегу которой застройщик проложит набережную, устроит беседки и места для барбекю.
ЖК «Эко Видное 2.0» расположен вдали от промышленных зон и трассы. Рядом Видновский лесопарк. За полчаса автобус доезжает до Видного. Комплекс находится в 4 километрах от МКАД, от метро «Домодедовская» 35 минут транспортом.
Проект «Эко Видное 2.0» — это продолжение уже завершенного микрорайона ЖК «Эко Видное». Новостройка располагается на участке в 16 гектаров на берегу реки Купелинка. Архитектурный проект разработан компанией ADM. Жилой комплекс состоит из шести жилых корпусов переменной этажности, носящих имена великих художников И. Шишкина, И. Левитана, А. Саврасова, В. Васнецова, В. Поленова, М. Нестерова.
Квартиры в ЖК представлены классическими планировками от студий до трёхкомнатных. Есть возможность выбрать квартиру без отделки, с подчистовой и чистовой отделкой.
Первые этажи в ЖК «Эко Видное 2.0» будут отданы под магазины, супермаркеты, салоны красоты. Проект предусматривает строительство школы на 1100 мест и двух детских садов на 510 мест. Дворы закрыты для машин. Открытые автостоянки вынесены за пределы жилой зоны. Во дворе предусмотрены детские игровые и спортивные площадки. Квартал расположен возле реки Купелинки, на берегу которой застройщик проложит набережную, устроит беседки и места для барбекю.
ЖК «Эко Видное 2.0» расположен вдали от промышленных зон и трассы. Рядом Видновский лесопарк. За полчаса автобус доезжает до Видного. Комплекс находится в 4 километрах от МКАД, от метро «Домодедовская» 35 минут транспортом.
Проект представляет собой жилой квартал в едином визуальном стиле. Архитектурный облик зданий сочетает в себе современные элементы и связь с архитектурным наследием района. Комплекс состоит из 3 корпусов, каждый из которых облицован своим собственным оттенком: темно-серым, нежно-розовым и светло-серым. Во всех корпусах представлено дизайнерское лобби от бюро GAAG Studio. В лобби — 2 холла, колясочная, лапомойка, зоны для ожидания, стойка ресепшн, зона для курьеров и доставок.
В комплексе представлены квартиры с 1–3 спальнями и таунхаусы. Квартиры сдаются с предчистовой отделкой MR BASE, что позволяет сконцентрироваться на создании интерьера под свой стиль. В квартирах установлены системы «Умная квартира» с контролем освещения и отопления, а также предусмотрена защита от протечек.
На территории благоустроенного двора находятся детские и спортивные площадки, центральная площадь с фонтаном, зеленые дорожки и зоны отдыха. В комплексе есть 2 ресторана с живописным видом на парк, 3 уютных кафе и современная фитнес-студия. Для владельцев автомобилей предусмотрен подземный паркинг на 344 места. Территория закрыта, с системой контроля доступа и круглосуточным видеонаблюдением.
Комплекс расположен в Алексеевском районе, на северо-востоке Москвы. Рядом раскинулись природные и культурные достопримечательности, такие как парк Акведук и река Яуза. В 10 минутах пешком находится масштабный выставочный комплекс ВДНХ, в 15 минутах пешком — станция метро «ВДНХ».
Проект представляет собой жилой квартал в едином визуальном стиле. Архитектурный облик зданий сочетает в себе современные элементы и связь с архитектурным наследием района. Комплекс состоит из 3 корпусов, каждый из которых облицован своим собственным оттенком: темно-серым, нежно-розовым и светло-серым. Во всех корпусах представлено дизайнерское лобби от бюро GAAG Studio. В лобби — 2 холла, колясочная, лапомойка, зоны для ожидания, стойка ресепшн, зона для курьеров и доставок.
В комплексе представлены квартиры с 1–3 спальнями и таунхаусы. Квартиры сдаются с предчистовой отделкой MR BASE, что позволяет сконцентрироваться на создании интерьера под свой стиль. В квартирах установлены системы «Умная квартира» с контролем освещения и отопления, а также предусмотрена защита от протечек.
На территории благоустроенного двора находятся детские и спортивные площадки, центральная площадь с фонтаном, зеленые дорожки и зоны отдыха. В комплексе есть 2 ресторана с живописным видом на парк, 3 уютных кафе и современная фитнес-студия. Для владельцев автомобилей предусмотрен подземный паркинг на 344 места. Территория закрыта, с системой контроля доступа и круглосуточным видеонаблюдением.
Комплекс расположен в Алексеевском районе, на северо-востоке Москвы. Рядом раскинулись природные и культурные достопримечательности, такие как парк Акведук и река Яуза. В 10 минутах пешком находится масштабный выставочный комплекс ВДНХ, в 15 минутах пешком — станция метро «ВДНХ».
Проект представляет собой жилой квартал в едином визуальном стиле. Архитектурный облик зданий сочетает в себе современные элементы и связь с архитектурным наследием района. Комплекс состоит из 3 корпусов, каждый из которых облицован своим собственным оттенком: темно-серым, нежно-розовым и светло-серым. Во всех корпусах представлено дизайнерское лобби от бюро GAAG Studio. В лобби — 2 холла, колясочная, лапомойка, зоны для ожидания, стойка ресепшн, зона для курьеров и доставок.
В комплексе представлены квартиры с 1–3 спальнями и таунхаусы. Квартиры сдаются с предчистовой отделкой MR BASE, что позволяет сконцентрироваться на создании интерьера под свой стиль. В квартирах установлены системы «Умная квартира» с контролем освещения и отопления, а также предусмотрена защита от протечек.
На территории благоустроенного двора находятся детские и спортивные площадки, центральная площадь с фонтаном, зеленые дорожки и зоны отдыха. В комплексе есть 2 ресторана с живописным видом на парк, 3 уютных кафе и современная фитнес-студия. Для владельцев автомобилей предусмотрен подземный паркинг на 344 места. Территория закрыта, с системой контроля доступа и круглосуточным видеонаблюдением.
Комплекс расположен в Алексеевском районе, на северо-востоке Москвы. Рядом раскинулись природные и культурные достопримечательности, такие как парк Акведук и река Яуза. В 10 минутах пешком находится масштабный выставочный комплекс ВДНХ, в 15 минутах пешком — станция метро «ВДНХ».
ЖК «Mod» — это 3 башни высотой в 44-55 этажей: Mod.D, Mod.C, Mod.M. А также 2 клубных дома высотой в 9 этажей: Mod.R, Mod.S, первые 3 этажа которых являются стилобатом с коммерческими помещениями. Фасады выполнены из натуральный каменя на уровне 1-го этажа, пластин из анодированного алюминия под золото и медь. В лобби сделана дизайнерская отделка, материал отделки интерьеров и стойки ресепшн — натуральный камень. В холле расположены лапомойки для животных, колясочные, гостевые санузлы, точки зарядки для гаджетов, различные зоны ожидания и времяпрепровождения.
В комплексе «Mod» предложено множество планировочных решений: в наличии квартиры, как классического типа, европланировки, на верхних этажах корпусов Mod.D, Mod.C, Mod.M. находятся пентхаусы. В квартирах спроектированы французские балконы, панорамное остекление, высокие потолки, сдаются они с чистовой отделкой.
В ЖК «Mod» продуманное благоустройство с зонированием. Территория комплекса закрытая, с контролем доступа. Высокий уровень безопасности обеспечивают камеры видеонаблюдения, охранные службы и консьерж. Для пешеходных прогулок и отдыха в центре двора расположен мост со смотровой площадкой и зеркальной поверхностью основания. На придомовой территории спроектированы игровые площадки для детей разных возрастов и зоны ожидания для родителей. Для любителей активного отдыха разработаны многофункциональные спортивные площадки, турники для различных уровней физической подготовки. На территории комплекса расположены тихие, уютные зоны отдыха с гамаками и скамейками, 3 искусственных водоёма с подсветкой, проведено ландшафтное озеленение. В проекте предусмотрена центральная площадь — место для проведения масштабных мероприятий: ярмарки, выставки цветов, установка центральной елки. На ней расположились: места для отдыха, напольные шахматы, сухой фонтан. Для владельцев автомобилей и мотоциклов предусмотрен двухуровневый подземный паркинг, оборудованный контролем доступа: въезд возможен только по биометрии или по звонку хозяина квартиры.
ЖК «Mod» расположен в историческом районе Москвы — Марьина Роща. Инфраструктура развита, в шаговой доступности: школы, детские сады, салоны красоты, поликлиники. До метро «Марьина Роща» и парка «Фестивальный» — 5 минут пешком.
ЖК «Mod» — это 3 башни высотой в 44-55 этажей: Mod.D, Mod.C, Mod.M. А также 2 клубных дома высотой в 9 этажей: Mod.R, Mod.S, первые 3 этажа которых являются стилобатом с коммерческими помещениями. Фасады выполнены из натуральный каменя на уровне 1-го этажа, пластин из анодированного алюминия под золото и медь. В лобби сделана дизайнерская отделка, материал отделки интерьеров и стойки ресепшн — натуральный камень. В холле расположены лапомойки для животных, колясочные, гостевые санузлы, точки зарядки для гаджетов, различные зоны ожидания и времяпрепровождения.
В комплексе «Mod» предложено множество планировочных решений: в наличии квартиры, как классического типа, европланировки, на верхних этажах корпусов Mod.D, Mod.C, Mod.M. находятся пентхаусы. В квартирах спроектированы французские балконы, панорамное остекление, высокие потолки, сдаются они с чистовой отделкой.
В ЖК «Mod» продуманное благоустройство с зонированием. Территория комплекса закрытая, с контролем доступа. Высокий уровень безопасности обеспечивают камеры видеонаблюдения, охранные службы и консьерж. Для пешеходных прогулок и отдыха в центре двора расположен мост со смотровой площадкой и зеркальной поверхностью основания. На придомовой территории спроектированы игровые площадки для детей разных возрастов и зоны ожидания для родителей. Для любителей активного отдыха разработаны многофункциональные спортивные площадки, турники для различных уровней физической подготовки. На территории комплекса расположены тихие, уютные зоны отдыха с гамаками и скамейками, 3 искусственных водоёма с подсветкой, проведено ландшафтное озеленение. В проекте предусмотрена центральная площадь — место для проведения масштабных мероприятий: ярмарки, выставки цветов, установка центральной елки. На ней расположились: места для отдыха, напольные шахматы, сухой фонтан. Для владельцев автомобилей и мотоциклов предусмотрен двухуровневый подземный паркинг, оборудованный контролем доступа: въезд возможен только по биометрии или по звонку хозяина квартиры.
ЖК «Mod» расположен в историческом районе Москвы — Марьина Роща. Инфраструктура развита, в шаговой доступности: школы, детские сады, салоны красоты, поликлиники. До метро «Марьина Роща» и парка «Фестивальный» — 5 минут пешком.
Проект «Hide» включает в себя 3 небоскреба высотой до 41 этажа. Архитектурная концепция комплекса выполнена бюро ADM. Высотки облицованы разными материалами: натуральным камнем белого цвета, кирпичом темно-коричневого и серого цветов, медными кассетами. Жилой комплекс оснащен современным инженерным оборудованием по системе «Умный дом» и «Умная квартира», а также индивидуальной приточной системой вентиляции и климат-контроля Zehnder и скоростными лифтами.
В «Hide» предложено множество планировочных решений: в наличии квартиры, как классического типа, так и европланировки. Они сдаются с подчистовой отделкой. Во всех квартирах выполнено панорамное остекление. на последних этажах предусмотрены пентхаусы с видами на «Москва-Сити». На эксплуатируемой кровле башен организована смотровая площадка с видом на Поклонную гору и полноценное пространство для отдыха и досуга.
В стилобате комплекса расположены лаунж, коворкинг, фитнес, детский центр развития на 90 мест, кафе и супермаркет. В подземной части оборудован двухуровневый паркинг на 634 места с автомойкой. Территория закрыта для посторонних. Проход в здание осуществляется по биометрической системе доступа со считыванием отпечатков пальцев, а въезд в паркинг по автоматическому считыванию номеров. Во дворах предусмотрены игровые площадки с батутами, качелями и горками, спроектирован собственный сад, где устроены прогулочные дорожки, амфитеатр и зона воркаута. Отдельно предусмотрена зона барбекю. Проект благоустройства включает площадки для йоги, места для выгула собак и велодорожку с выездом к реке. На всей территории wi-fi-покрытие и места с usb-зарядками для ноутбуков.
Жилой комплекс «Hide» расположен в престижном районе на западе Москвы. Рядом долина реки Сетунь.
ЖК «Symphony 34» состоит из 4 жилых небоскребов разной высотности. Архитектурная концепция проекта разработана известным бюро Kleinewelt Architekten. Для фасадов каждого строения выбрано свое визуальное решение с использованием таких материалов как медь, железо, стекло и алюминий. В проекте «Symphony 34» предусмотрено 114 кладовых в подземной части и 540 кладовых на этажах. Во всех корпусах выполнена дизайнерская отделка входных групп.
В ЖК «Symphony 34» предусмотрен широкий выбор планировочных решений — от студий до четырехкомнатных квартир и пентхаусов с возможностью объединения. Все квартиры отличаются увеличенной площадью остекления. Высота панорамных окон - от 2 метров. Квартиры сдаются с подчистовой отделкой и высотой потолков от 3 до 4.7 метров.
Концепция благоустройства проекта разработана градостроительным и ландшафтным бюро WEST8. На первых этажах расположены коммерческие помещения. Территория комплекса закрытая, во дворах спроектированы зоны отдыха с фонтаном, беседками и скамейками, выполнено озеленение. Для владельцев автомобилей предусмотрен подземный паркинг на 662 машиноместа.
ЖК «Symphony 34» находится в районе «Савеловский». В 10 минутах пешком расположены модные пространства «Хлебозавод № 2» и дизайн-завод «Флакон», где проводятся выставки, лекции известных спикеров, фестивали и перформансы. В 15 минутах пешком — Тимирязевский парк 232 га и парк «Дубки».
ЖК «Symphony 34» состоит из 4 жилых небоскребов разной высотности. Архитектурная концепция проекта разработана известным бюро Kleinewelt Architekten. Для фасадов каждого строения выбрано свое визуальное решение с использованием таких материалов как медь, железо, стекло и алюминий. В проекте «Symphony 34» предусмотрено 114 кладовых в подземной части и 540 кладовых на этажах. Во всех корпусах выполнена дизайнерская отделка входных групп.
В ЖК «Symphony 34» предусмотрен широкий выбор планировочных решений — от студий до четырехкомнатных квартир и пентхаусов с возможностью объединения. Все квартиры отличаются увеличенной площадью остекления. Высота панорамных окон - от 2 метров. Квартиры сдаются с подчистовой отделкой и высотой потолков от 3 до 4.7 метров.
Концепция благоустройства проекта разработана градостроительным и ландшафтным бюро WEST8. На первых этажах расположены коммерческие помещения. Территория комплекса закрытая, во дворах спроектированы зоны отдыха с фонтаном, беседками и скамейками, выполнено озеленение. Для владельцев автомобилей предусмотрен подземный паркинг на 662 машиноместа.
ЖК «Symphony 34» находится в районе «Савеловский». В 10 минутах пешком расположены модные пространства «Хлебозавод № 2» и дизайн-завод «Флакон», где проводятся выставки, лекции известных спикеров, фестивали и перформансы. В 15 минутах пешком — Тимирязевский парк 232 га и парк «Дубки».
ЖК «Symphony 34» состоит из 4 жилых небоскребов разной высотности. Архитектурная концепция проекта разработана известным бюро Kleinewelt Architekten. Для фасадов каждого строения выбрано свое визуальное решение с использованием таких материалов как медь, железо, стекло и алюминий. В проекте «Symphony 34» предусмотрено 114 кладовых в подземной части и 540 кладовых на этажах. Во всех корпусах выполнена дизайнерская отделка входных групп.
В ЖК «Symphony 34» предусмотрен широкий выбор планировочных решений — от студий до четырехкомнатных квартир и пентхаусов с возможностью объединения. Все квартиры отличаются увеличенной площадью остекления. Высота панорамных окон - от 2 метров. Квартиры сдаются с подчистовой отделкой и высотой потолков от 3 до 4.7 метров.
Концепция благоустройства проекта разработана градостроительным и ландшафтным бюро WEST8. На первых этажах расположены коммерческие помещения. Территория комплекса закрытая, во дворах спроектированы зоны отдыха с фонтаном, беседками и скамейками, выполнено озеленение. Для владельцев автомобилей предусмотрен подземный паркинг на 662 машиноместа.
ЖК «Symphony 34» находится в районе «Савеловский». В 10 минутах пешком расположены модные пространства «Хлебозавод № 2» и дизайн-завод «Флакон», где проводятся выставки, лекции известных спикеров, фестивали и перформансы. В 15 минутах пешком — Тимирязевский парк 232 га и парк «Дубки».
ЖК «Symphony 34» состоит из 4 жилых небоскребов разной высотности. Архитектурная концепция проекта разработана известным бюро Kleinewelt Architekten. Для фасадов каждого строения выбрано свое визуальное решение с использованием таких материалов как медь, железо, стекло и алюминий. В проекте «Symphony 34» предусмотрено 114 кладовых в подземной части и 540 кладовых на этажах. Во всех корпусах выполнена дизайнерская отделка входных групп.
В ЖК «Symphony 34» предусмотрен широкий выбор планировочных решений — от студий до четырехкомнатных квартир и пентхаусов с возможностью объединения. Все квартиры отличаются увеличенной площадью остекления. Высота панорамных окон - от 2 метров. Квартиры сдаются с подчистовой отделкой и высотой потолков от 3 до 4.7 метров.
Концепция благоустройства проекта разработана градостроительным и ландшафтным бюро WEST8. На первых этажах расположены коммерческие помещения. Территория комплекса закрытая, во дворах спроектированы зоны отдыха с фонтаном, беседками и скамейками, выполнено озеленение. Для владельцев автомобилей предусмотрен подземный паркинг на 662 машиноместа.
ЖК «Symphony 34» находится в районе «Савеловский». В 10 минутах пешком расположены модные пространства «Хлебозавод № 2» и дизайн-завод «Флакон», где проводятся выставки, лекции известных спикеров, фестивали и перформансы. В 15 минутах пешком — Тимирязевский парк 232 га и парк «Дубки».
Проект «Павелецкая Сити» включает в себя 5 жилых корпусов высотой 9 - 46 этажей. Архитектура всех корпусов выполнена в в стиле нью-йоркской архитектуры по авторскому дизайн-проекту бюро Speech. Высотные башни названы в честь культовых фигур американского кинематографа: Марлона Брандо, Чарли Чаплина, Грейс Келли, Мэрилин Монро и Фрэнка Синатры. В оформлении фасадов использованы натуральный камень и клинкерная плитка. В лобби также выполнена дизайнерская отделка от бюро Олега Клодта.
В комплексе предложено множество планировочных решений: в наличии квартиры, как классического типа, так и европланировки. На последних этажах расположены пентхаусы. Из окон квартир открывается вид на «Москва-Сити», исторический центр Москвы и Москва-реку. Они сдаются с подчистовой отделкой, панорамным остеклением и высотой потолков 3 м.
Первые этажи отведены под коммерческие помещения. Для автовладельцев предусмотрен подземный паркинг на 372 места с автомойкой. Внутренний двор благоустроен и закрыт от автомобилей и случайных прохожих.
Жилой комплекс «Павелецкая Сити» расположится в Даниловском районе Москвы. Рядом расположены Данилов монастырь, Даниловский рынок, «Павелецкая Плаза», «Вивальди Плаза», театры и Нескучный сад. До Садового кольца на автомобиле можно добраться за 5 минуты. Метро «Павелецкая», «Добрынинская» и «Серпуховская» находится в 15 минутах пешком.
Проект «Павелецкая Сити» включает в себя 5 жилых корпусов высотой 9 - 46 этажей. Архитектура всех корпусов выполнена в в стиле нью-йоркской архитектуры по авторскому дизайн-проекту бюро Speech. Высотные башни названы в честь культовых фигур американского кинематографа: Марлона Брандо, Чарли Чаплина, Грейс Келли, Мэрилин Монро и Фрэнка Синатры. В оформлении фасадов использованы натуральный камень и клинкерная плитка. В лобби также выполнена дизайнерская отделка от бюро Олега Клодта.
В комплексе предложено множество планировочных решений: в наличии квартиры, как классического типа, так и европланировки. На последних этажах расположены пентхаусы. Из окон квартир открывается вид на «Москва-Сити», исторический центр Москвы и Москва-реку. Они сдаются с подчистовой отделкой, панорамным остеклением и высотой потолков 3 м.
Первые этажи отведены под коммерческие помещения. Для автовладельцев предусмотрен подземный паркинг на 372 места с автомойкой. Внутренний двор благоустроен и закрыт от автомобилей и случайных прохожих.
Жилой комплекс «Павелецкая Сити» расположится в Даниловском районе Москвы. Рядом расположены Данилов монастырь, Даниловский рынок, «Павелецкая Плаза», «Вивальди Плаза», театры и Нескучный сад. До Садового кольца на автомобиле можно добраться за 5 минуты. Метро «Павелецкая», «Добрынинская» и «Серпуховская» находится в 15 минутах пешком.
Проект «Павелецкая Сити» включает в себя 5 жилых корпусов высотой 9 - 46 этажей. Архитектура всех корпусов выполнена в в стиле нью-йоркской архитектуры по авторскому дизайн-проекту бюро Speech. Высотные башни названы в честь культовых фигур американского кинематографа: Марлона Брандо, Чарли Чаплина, Грейс Келли, Мэрилин Монро и Фрэнка Синатры. В оформлении фасадов использованы натуральный камень и клинкерная плитка. В лобби также выполнена дизайнерская отделка от бюро Олега Клодта.
В комплексе предложено множество планировочных решений: в наличии квартиры, как классического типа, так и европланировки. На последних этажах расположены пентхаусы. Из окон квартир открывается вид на «Москва-Сити», исторический центр Москвы и Москва-реку. Они сдаются с подчистовой отделкой, панорамным остеклением и высотой потолков 3 м.
Первые этажи отведены под коммерческие помещения. Для автовладельцев предусмотрен подземный паркинг на 372 места с автомойкой. Внутренний двор благоустроен и закрыт от автомобилей и случайных прохожих.
Жилой комплекс «Павелецкая Сити» расположится в Даниловском районе Москвы. Рядом расположены Данилов монастырь, Даниловский рынок, «Павелецкая Плаза», «Вивальди Плаза», театры и Нескучный сад. До Садового кольца на автомобиле можно добраться за 5 минуты. Метро «Павелецкая», «Добрынинская» и «Серпуховская» находится в 15 минутах пешком.

