
Жилой комплекс комфорт-класса состоит из 4 домов, возведенных по кирпично-монолитной технологии. Фасады выполнены с применением вентилируемой системы с облицовкой кирпичом. В корпусах установлены пассажирские и грузовые лифты.
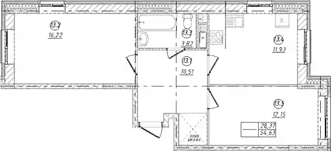
В проекте предлагаются квартиры с 1–4 комнатами. Во всех лотах предусмотрены стандартные окна, в части квартир открываются виды на лес. Высота потолков составляет 2,95 м. Базовый формат передачи — без стен: бетонные стены без возведения межкомнатных перегородок с трассировкой, электричество заведено без разводки и подключения. Дополнительно доступны варианты отделки подчистовая White box и чистовая под ключ.
На территории предусмотрено благоустройство с учетом разных сценариев проживания. Запроектированы безопасные детские площадки, спортивная площадка и уютная зона отдыха. На первых этажах зданий размещены коммерческие помещения.
Жилой комплекс расположен в городе Ступино, в 5 минутах транспортом от центра города. В 5–20 минутах пешком находятся детские сады, школы, медицинские учреждения, магазины, аптеки, пункты выдачи, кафе и рестораны, салоны красоты, фитнес-клубы, торговые центры и Городской пруд. Аэропорт Домодедово расположен в 1 часе транспортом, до МКАД — 1 час 5 минут, до центра Москвы — 1 час 40 минут.
