











Жилой комплекс «1-й Донской» — современный 24х-этажный проект, включающий в себя 2 корпуса переменной этажности с функцией подсветки в ночное время. Фасады теплой цветовой палитры разработаны испанским бюро «Citythinking». Для удобства жителей во входных группах расположены уборные для взрослых и детей, а также лапомойки для домашних животных. В лобби предусмотрено место для хранения велосипедов и колясок.
Проектом предусмотрен большой выбор планировок: от 1-комнатных до 4х-комнатных, среди которых есть квартиры, выходящие на 2-3 стороны света. Также имеются просторные застекленные лоджии.
Концепция благоустройства территории разработана известным архитектурным бюро Mont Design. На территории квартала предусмотрены муниципальные детские сады и школа. Первые этажи зданий отведены под коммерческие помещения. Дом оборудован автоматизированной системой «Умный Дом».
В пешей доступности от жилого комплекса находится набережная реки Купелинки, Ермолинский лесопарк и Жуковский парк.

«1-й Южный» — жилой комплекс, включающий в себя несколько корпусов высотой в 25 этажей. Фасады комплекса были разработаны архитектором Рустамом Керимовым с использованием стратегий испанского бюро «Citythinking». В каждом подъезде предусмотрен безбарьерной вход в здание. Парадные группы оборудованы колясочными и лапомойками.
Предложен большой выбор планировочных решений: от студий до 3х-комнатных квартир с подчисткой или дизайнерской чистовой отделкой.
На территории комплекса выполнен ландшафтный дизайн, обустроены места отдыха, имеются 3 детских сада и 2 школы. Сам комплекс находится в окружении зеленых зон. Для удобства жителей, здания оборудованы системой «Умный Дом».
Инфраструктура района развита хорошо: рядом находится гипермаркет, отделения банков, рестораны быстрого питания и ледовая арена. Жилой комплекс «1-й Южный» находится в 1 километре от МКАД.
«1-й Южный» — жилой комплекс, включающий в себя несколько корпусов высотой в 25 этажей. Фасады комплекса были разработаны архитектором Рустамом Керимовым с использованием стратегий испанского бюро «Citythinking». В каждом подъезде предусмотрен безбарьерной вход в здание. Парадные группы оборудованы колясочными и лапомойками.
Предложен большой выбор планировочных решений: от студий до 3х-комнатных квартир с подчисткой или дизайнерской чистовой отделкой.
На территории комплекса выполнен ландшафтный дизайн, обустроены места отдыха, имеются 3 детских сада и 2 школы. Сам комплекс находится в окружении зеленых зон. Для удобства жителей, здания оборудованы системой «Умный Дом».
Инфраструктура района развита хорошо: рядом находится гипермаркет, отделения банков, рестораны быстрого питания и ледовая арена. Жилой комплекс «1-й Южный» находится в 1 километре от МКАД.
Жилой комплекс представляет собой разноэтажную застройку высотой от 4 до 17 этажей с перепадами между секциями до 10 этажей. Отделка фасадов домов выдержана в природной цветовой гамме, с декоративной подсветкой. Входные группы представляют собой современное минималистичное пространство с безбарьерными сквозными проходами с улицы и со двора. В лобби в каждой секции предусмотрены место для размещения стойки ресепшен и зона коворкинга с мягкой мебелью. Во всех секциях расположены колясочные, лапомойки и санузлы для жителей. На -1 этаже расположены кладовые.
В комплексе предложен широкий выбор планировочных решений от компактных студий до 4-х комнатных квартир евро-формата. В квартирах предусмотрены лоджии с чистовой отделкой и остеклением, а в планировках евро-формата два окна в кухне-гостиной. Квартиры сдаются как с отделкой White Box, так и с финишной дизайнерской отделкой в нескольких цветовых решениях. Во всех квартирах предусмотрена возможность установки интеллектуальной системы «Умная квартира».
В проекте предусмотрена богатая коммерческая инфраструктура со своим торговым центром, муниципальной школой, 3 детскими садами, поликлиникой и пожарной станцией. На первых этажах зданий располагаются кофейни, пекарни, аптеки, химчистки и пункты выдачи маркетплейсов. Изюминкой жилого комплекса являются спортивно-оздоровительный комплекс с термами и SPA и семейный парк развлечений. На территории комплекса проложены закольцованные велосипедные и беговые дорожки, установлены современные детские игровые площадки, оборудованы зоны для отдыха взрослых. Спортивные площадки вынесены за пределы двора и размещены в зоне событийной площади для обеспечения шумового комфорта жителей. Для владельцев автомобилей в комплексе предусмотрены подземный паркинг на -1 этаже, станция техобслуживания и автомойка на территории.
Жилой комплекс расположен в городе Химки, занимает территорию 102 га и органично вписан в природное окружение Химкинского леса и канала им. Москвы. Жители жилого комплекса в любое время года наслаждаются свежим воздухом, отдыхом у воды или прогулками по лесу. В 8-10 минутах пешком от комплекса находятся остановки наземного общественного транспорта, доехать до ближайших МЦД-3 «Химки», МЦД-1 «Хлебниково» можно за 15 минут. Ближайшие станции метро «Речной вокзал» и «Ховрино» в 25 минутах транспортом. До МКАД на автомобиле дорога займет за 18 минут.
Жилой комплекс представляет собой разноэтажную застройку высотой от 4 до 17 этажей с перепадами между секциями до 10 этажей. Отделка фасадов домов выдержана в природной цветовой гамме, с декоративной подсветкой. Входные группы представляют собой современное минималистичное пространство с безбарьерными сквозными проходами с улицы и со двора. В лобби в каждой секции предусмотрены место для размещения стойки ресепшен и зона коворкинга с мягкой мебелью. Во всех секциях расположены колясочные, лапомойки и санузлы для жителей. На -1 этаже расположены кладовые.
В комплексе предложен широкий выбор планировочных решений от компактных студий до 4-х комнатных квартир евро-формата. В квартирах предусмотрены лоджии с чистовой отделкой и остеклением, а в планировках евро-формата два окна в кухне-гостиной. Квартиры сдаются как с отделкой White Box, так и с финишной дизайнерской отделкой в нескольких цветовых решениях. Во всех квартирах предусмотрена возможность установки интеллектуальной системы «Умная квартира».
В проекте предусмотрена богатая коммерческая инфраструктура со своим торговым центром, муниципальной школой, 3 детскими садами, поликлиникой и пожарной станцией. На первых этажах зданий располагаются кофейни, пекарни, аптеки, химчистки и пункты выдачи маркетплейсов. Изюминкой жилого комплекса являются спортивно-оздоровительный комплекс с термами и SPA и семейный парк развлечений. На территории комплекса проложены закольцованные велосипедные и беговые дорожки, установлены современные детские игровые площадки, оборудованы зоны для отдыха взрослых. Спортивные площадки вынесены за пределы двора и размещены в зоне событийной площади для обеспечения шумового комфорта жителей. Для владельцев автомобилей в комплексе предусмотрены подземный паркинг на -1 этаже, станция техобслуживания и автомойка на территории.
Жилой комплекс расположен в городе Химки, занимает территорию 102 га и органично вписан в природное окружение Химкинского леса и канала им. Москвы. Жители жилого комплекса в любое время года наслаждаются свежим воздухом, отдыхом у воды или прогулками по лесу. В 8-10 минутах пешком от комплекса находятся остановки наземного общественного транспорта, доехать до ближайших МЦД-3 «Химки», МЦД-1 «Хлебниково» можно за 15 минут. Ближайшие станции метро «Речной вокзал» и «Ховрино» в 25 минутах транспортом. До МКАД на автомобиле дорога займет за 18 минут.
Жилой комплекс представляет собой разноэтажную застройку высотой от 4 до 17 этажей с перепадами между секциями до 10 этажей. Отделка фасадов домов выдержана в природной цветовой гамме, с декоративной подсветкой. Входные группы представляют собой современное минималистичное пространство с безбарьерными сквозными проходами с улицы и со двора. В лобби в каждой секции предусмотрены место для размещения стойки ресепшен и зона коворкинга с мягкой мебелью. Во всех секциях расположены колясочные, лапомойки и санузлы для жителей. На -1 этаже расположены кладовые.
В комплексе предложен широкий выбор планировочных решений от компактных студий до 4-х комнатных квартир евро-формата. В квартирах предусмотрены лоджии с чистовой отделкой и остеклением, а в планировках евро-формата два окна в кухне-гостиной. Квартиры сдаются как с отделкой White Box, так и с финишной дизайнерской отделкой в нескольких цветовых решениях. Во всех квартирах предусмотрена возможность установки интеллектуальной системы «Умная квартира».
В проекте предусмотрена богатая коммерческая инфраструктура со своим торговым центром, муниципальной школой, 3 детскими садами, поликлиникой и пожарной станцией. На первых этажах зданий располагаются кофейни, пекарни, аптеки, химчистки и пункты выдачи маркетплейсов. Изюминкой жилого комплекса являются спортивно-оздоровительный комплекс с термами и SPA и семейный парк развлечений. На территории комплекса проложены закольцованные велосипедные и беговые дорожки, установлены современные детские игровые площадки, оборудованы зоны для отдыха взрослых. Спортивные площадки вынесены за пределы двора и размещены в зоне событийной площади для обеспечения шумового комфорта жителей. Для владельцев автомобилей в комплексе предусмотрены подземный паркинг на -1 этаже, станция техобслуживания и автомойка на территории.
Жилой комплекс расположен в городе Химки, занимает территорию 102 га и органично вписан в природное окружение Химкинского леса и канала им. Москвы. Жители жилого комплекса в любое время года наслаждаются свежим воздухом, отдыхом у воды или прогулками по лесу. В 8-10 минутах пешком от комплекса находятся остановки наземного общественного транспорта, доехать до ближайших МЦД-3 «Химки», МЦД-1 «Хлебниково» можно за 15 минут. Ближайшие станции метро «Речной вокзал» и «Ховрино» в 25 минутах транспортом. До МКАД на автомобиле дорога займет за 18 минут.
Жилой комплекс представляет собой разноэтажную застройку высотой от 4 до 17 этажей с перепадами между секциями до 10 этажей. Отделка фасадов домов выдержана в природной цветовой гамме, с декоративной подсветкой. Входные группы представляют собой современное минималистичное пространство с безбарьерными сквозными проходами с улицы и со двора. В лобби в каждой секции предусмотрены место для размещения стойки ресепшен и зона коворкинга с мягкой мебелью. Во всех секциях расположены колясочные, лапомойки и санузлы для жителей. На -1 этаже расположены кладовые.
В комплексе предложен широкий выбор планировочных решений от компактных студий до 4-х комнатных квартир евро-формата. В квартирах предусмотрены лоджии с чистовой отделкой и остеклением, а в планировках евро-формата два окна в кухне-гостиной. Квартиры сдаются как с отделкой White Box, так и с финишной дизайнерской отделкой в нескольких цветовых решениях. Во всех квартирах предусмотрена возможность установки интеллектуальной системы «Умная квартира».
В проекте предусмотрена богатая коммерческая инфраструктура со своим торговым центром, муниципальной школой, 3 детскими садами, поликлиникой и пожарной станцией. На первых этажах зданий располагаются кофейни, пекарни, аптеки, химчистки и пункты выдачи маркетплейсов. Изюминкой жилого комплекса являются спортивно-оздоровительный комплекс с термами и SPA и семейный парк развлечений. На территории комплекса проложены закольцованные велосипедные и беговые дорожки, установлены современные детские игровые площадки, оборудованы зоны для отдыха взрослых. Спортивные площадки вынесены за пределы двора и размещены в зоне событийной площади для обеспечения шумового комфорта жителей. Для владельцев автомобилей в комплексе предусмотрены подземный паркинг на -1 этаже, станция техобслуживания и автомойка на территории.
Жилой комплекс расположен в городе Химки, занимает территорию 102 га и органично вписан в природное окружение Химкинского леса и канала им. Москвы. Жители жилого комплекса в любое время года наслаждаются свежим воздухом, отдыхом у воды или прогулками по лесу. В 8-10 минутах пешком от комплекса находятся остановки наземного общественного транспорта, доехать до ближайших МЦД-3 «Химки», МЦД-1 «Хлебниково» можно за 15 минут. Ближайшие станции метро «Речной вокзал» и «Ховрино» в 25 минутах транспортом. До МКАД на автомобиле дорога займет за 18 минут.
Жилой комплекс «Первый Ленинградский» — состоит из 6 панельных корпусов, построенных в современном урбанистическом стиле. Фасады выполнены в песочном, белом, коричневом тонах с яркими оранжевыми акцентами. Во всех домах выполнена дизайнерская отделка входных групп и установлены современные лифты, а вход расположен на уровне земли.
В проекте «Первый Ленинградский» предложено множество планировочных решений: в наличии квартиры, как классического типа, так и европланировки. Сдаются они с подчистовой и чистовой отделкой из 4 вариантов на выбор. В каждой квартире предусмотрена система «Умная квартира», которая в базовой комплектации предполагает систему контроля протечек, управление освещением и умную колонку «Алиса».
Территория комплекса «Первый Ленинградский» благоустроена,на ней проведено озеленение и выполнен ландшафтный дизайн. В закрытых от машин дворах установлены детские игровые и спортивные площадки. Детские зоны отделены от взрослых, спортивные площадки и зоны воркаута с их шумными играми вынесены за пределы дворов. В обустройстве всех зон использованы только экологичные материалы. Оборудование для игровых площадок разрабатывалось с привлечением детских психологов. Территорию комплекса пронизали стрелы прогулочных бульваров, уменьшенные копии петербургских проспектов. Центральную площадь квартала украшает сухой фонтан. На территории комплекса предусмотрен свой детский сад. Для владельцев автомобилей спроектирована стоянка.
ЖК «Первый Ленинградский» находится в Молжаниновском районе. Инфраструктура района развита: работают школы, детские сады, медицинские учреждения, кафе, магазины, конно-спортивный комплекс, Московская школа гольфа, Квадротрек Formula 7, торгово-развлекательный центр «Мега». Бурцевские пруды находятся всего в 10 минутах пешком. До метро «Ховрино» — 20 минут транспортом.
Жилой комплекс «Первый Ленинградский» — состоит из 6 панельных корпусов, построенных в современном урбанистическом стиле. Фасады выполнены в песочном, белом, коричневом тонах с яркими оранжевыми акцентами. Во всех домах выполнена дизайнерская отделка входных групп и установлены современные лифты, а вход расположен на уровне земли.
В проекте «Первый Ленинградский» предложено множество планировочных решений: в наличии квартиры, как классического типа, так и европланировки. Сдаются они с подчистовой и чистовой отделкой из 4 вариантов на выбор. В каждой квартире предусмотрена система «Умная квартира», которая в базовой комплектации предполагает систему контроля протечек, управление освещением и умную колонку «Алиса».
Территория комплекса «Первый Ленинградский» благоустроена,на ней проведено озеленение и выполнен ландшафтный дизайн. В закрытых от машин дворах установлены детские игровые и спортивные площадки. Детские зоны отделены от взрослых, спортивные площадки и зоны воркаута с их шумными играми вынесены за пределы дворов. В обустройстве всех зон использованы только экологичные материалы. Оборудование для игровых площадок разрабатывалось с привлечением детских психологов. Территорию комплекса пронизали стрелы прогулочных бульваров, уменьшенные копии петербургских проспектов. Центральную площадь квартала украшает сухой фонтан. На территории комплекса предусмотрен свой детский сад. Для владельцев автомобилей спроектирована стоянка.
ЖК «Первый Ленинградский» находится в Молжаниновском районе. Инфраструктура района развита: работают школы, детские сады, медицинские учреждения, кафе, магазины, конно-спортивный комплекс, Московская школа гольфа, Квадротрек Formula 7, торгово-развлекательный центр «Мега». Бурцевские пруды находятся всего в 10 минутах пешком. До метро «Ховрино» — 20 минут транспортом.
Жилой комплекс «1-й Шереметьевский» —16-этажный проект с тематическими дизайнерскими иллюстрациями во входных группах. Лаунж и коворкинг-зона оборудованы удобными диванами и креслами. Первые этажи комплекса отведены под коммерческие помещения.
Планировки представлены в нескольких вариантах: 1-комнатные, 2х-комнатные и 3х-комнатные квартиры с подчистовой или чистовой дизайнерской отделкой.
Инфраструктура на территории комплекса развита—имеются закольцованные велосипедные и беговые дорожки, собственная школа и детский сад. В квартале спроектирована площадка для занятий спортом и йогой. Предусмотрена парковка для двухколесного транспорта.
Жилой комплекс находится в микрорайоне Подрезково, в 500 метрах от одноименной железнодорожной станции. До международного аэропорта Шереметьево дорога займет 15 минут транспортом.
Проект «Первый Лермонтовский» представляет собой 5 жилых корпусов высотой 25 этажей. На первом этаже предусмотрены комнаты для консьержей и кладовые помещения. В ЖК предложено множество планировочных решений: в наличии квартиры, как классического типа, так и европланировки. Они сдаются подчистовой отделкой формата White box. В квартирах увеличенная площадь остекления, а в некоторых предусмотрены окна в ванной и гардеробных.
Также в состав комплекса входит детский сад на 560 мест, школа на 1500 мест и поликлиника. Первые этажи отведены под коммерцию. Дворы благоустроены и закрыт для проезда автомобилей. Предусмотрены игровые и спортивные площадки, прогулочный бульвар с зонами отдыха.
ЖК расположен в Люберцах, в 200 метрах от лесопарка. В пешей доступности находятся торговый центр, универсам, супермаркет, школа и гимназия. До метро «Котельники» можно доехать за 10 минут.
Проект «Первый Лермонтовский» представляет собой 5 жилых корпусов высотой 25 этажей. На первом этаже предусмотрены комнаты для консьержей и кладовые помещения. В ЖК предложено множество планировочных решений: в наличии квартиры, как классического типа, так и европланировки. Они сдаются подчистовой отделкой формата White box. В квартирах увеличенная площадь остекления, а в некоторых предусмотрены окна в ванной и гардеробных.
Также в состав комплекса входит детский сад на 560 мест, школа на 1500 мест и поликлиника. Первые этажи отведены под коммерцию. Дворы благоустроены и закрыт для проезда автомобилей. Предусмотрены игровые и спортивные площадки, прогулочный бульвар с зонами отдыха.
ЖК расположен в Люберцах, в 200 метрах от лесопарка. В пешей доступности находятся торговый центр, универсам, супермаркет, школа и гимназия. До метро «Котельники» можно доехать за 10 минут.
Проект «Первый Лермонтовский» представляет собой 5 жилых корпусов высотой 25 этажей. На первом этаже предусмотрены комнаты для консьержей и кладовые помещения. В ЖК предложено множество планировочных решений: в наличии квартиры, как классического типа, так и европланировки. Они сдаются подчистовой отделкой формата White box. В квартирах увеличенная площадь остекления, а в некоторых предусмотрены окна в ванной и гардеробных.
Также в состав комплекса входит детский сад на 560 мест, школа на 1500 мест и поликлиника. Первые этажи отведены под коммерцию. Дворы благоустроены и закрыт для проезда автомобилей. Предусмотрены игровые и спортивные площадки, прогулочный бульвар с зонами отдыха.
ЖК расположен в Люберцах, в 200 метрах от лесопарка. В пешей доступности находятся торговый центр, универсам, супермаркет, школа и гимназия. До метро «Котельники» можно доехать за 10 минут.
Жилой комплекс «1-й Измайловский» состоит из корпусов разной этажности: от 9-этажных секций до акцентных 100-метровых башен. Архитектурный облик комплекса разработан российским бюро «Крупный план». Фасады выполнены в спокойных тонах с преобладанием естественной палитры, в отделке первых этажей использована рельефная кирпичная кладка, верхние этажи украшает паттерн из металлических шевронов с бионическим рисунком. В лобби выполнена дизайнерская отделка с использованием предметов искусства и нестандартного озеленения. Витражное остекление обеспечивает приток естественного света. В каждом подъезде оборудованы колясочные, лапомойки и гостевые санузлы. На подземном этаже размещены кладовые помещения.
В ЖК «1-й Измайловский» предложено большое количество планировочных решений — от компактных студий от 20 кв. метров до просторных 4-комнатных площадью более 100 кв. метров. В проекте предусмотрены также планировки евроформата с возможностью полноценного деления на кухню и гостиную, квартиры с гардеробными и построчными, варианты планировок с возможностью оборудовать остров на кухне. На выбор предложено 5 видов отделки: 4 варианта дизайнерской отделки и отделка White Box.
На закрытой территории комплекса, оформленной ландшафтным бюро «Вьюга» размещены: тренажеры на открытом воздухе, закольцованные беговые и велодорожки, пешеходные бульвары, детские площадки, разделенные по возрастам, детский скалодром, зоны для занятий йогой, спортивные площадки для тенниса, стрит-бола и рампа для роликов. Отличительной особенностью жилого комплекса является собственный исцеляющий сад. На первых этажах комплекса работают магазины и аптека, кафе и детский досуговый центр и фитнес-студия. Для владельцев автомобилей предусмотрен подземный паркинг.
ЖК «1-й Измайловский» расположен в районе Гольяново, но пересечении Монтажной и Амурской улиц. Инфраструктура района хорошо развита. В пешей доступности работают торговые центры и сетевые магазины, больше десятка детских садов, 2 крупных школы, поликлиники и медицинские центры. В радиусе четырех километров от квартала расположены несколько стадионов. Комплекс окружен крупнейшими московскими лесопарками: рядом Национальный парк Лосиный Остров, Лесопарк Измайлово, Парк Сокольники.
Жилой комплекс «1-й Измайловский» состоит из корпусов разной этажности: от 9-этажных секций до акцентных 100-метровых башен. Архитектурный облик комплекса разработан российским бюро «Крупный план». Фасады выполнены в спокойных тонах с преобладанием естественной палитры, в отделке первых этажей использована рельефная кирпичная кладка, верхние этажи украшает паттерн из металлических шевронов с бионическим рисунком. В лобби выполнена дизайнерская отделка с использованием предметов искусства и нестандартного озеленения. Витражное остекление обеспечивает приток естественного света. В каждом подъезде оборудованы колясочные, лапомойки и гостевые санузлы. На подземном этаже размещены кладовые помещения.
В ЖК «1-й Измайловский» предложено большое количество планировочных решений — от компактных студий от 20 кв. метров до просторных 4-комнатных площадью более 100 кв. метров. В проекте предусмотрены также планировки евроформата с возможностью полноценного деления на кухню и гостиную, квартиры с гардеробными и построчными, варианты планировок с возможностью оборудовать остров на кухне. На выбор предложено 5 видов отделки: 4 варианта дизайнерской отделки и отделка White Box.
На закрытой территории комплекса, оформленной ландшафтным бюро «Вьюга» размещены: тренажеры на открытом воздухе, закольцованные беговые и велодорожки, пешеходные бульвары, детские площадки, разделенные по возрастам, детский скалодром, зоны для занятий йогой, спортивные площадки для тенниса, стрит-бола и рампа для роликов. Отличительной особенностью жилого комплекса является собственный исцеляющий сад. На первых этажах комплекса работают магазины и аптека, кафе и детский досуговый центр и фитнес-студия. Для владельцев автомобилей предусмотрен подземный паркинг.
ЖК «1-й Измайловский» расположен в районе Гольяново, но пересечении Монтажной и Амурской улиц. Инфраструктура района хорошо развита. В пешей доступности работают торговые центры и сетевые магазины, больше десятка детских садов, 2 крупных школы, поликлиники и медицинские центры. В радиусе четырех километров от квартала расположены несколько стадионов. Комплекс окружен крупнейшими московскими лесопарками: рядом Национальный парк Лосиный Остров, Лесопарк Измайлово, Парк Сокольники.
Жилой комплекс «1-й Измайловский» состоит из корпусов разной этажности: от 9-этажных секций до акцентных 100-метровых башен. Архитектурный облик комплекса разработан российским бюро «Крупный план». Фасады выполнены в спокойных тонах с преобладанием естественной палитры, в отделке первых этажей использована рельефная кирпичная кладка, верхние этажи украшает паттерн из металлических шевронов с бионическим рисунком. В лобби выполнена дизайнерская отделка с использованием предметов искусства и нестандартного озеленения. Витражное остекление обеспечивает приток естественного света. В каждом подъезде оборудованы колясочные, лапомойки и гостевые санузлы. На подземном этаже размещены кладовые помещения.
В ЖК «1-й Измайловский» предложено большое количество планировочных решений — от компактных студий от 20 кв. метров до просторных 4-комнатных площадью более 100 кв. метров. В проекте предусмотрены также планировки евроформата с возможностью полноценного деления на кухню и гостиную, квартиры с гардеробными и построчными, варианты планировок с возможностью оборудовать остров на кухне. На выбор предложено 5 видов отделки: 4 варианта дизайнерской отделки и отделка White Box.
На закрытой территории комплекса, оформленной ландшафтным бюро «Вьюга» размещены: тренажеры на открытом воздухе, закольцованные беговые и велодорожки, пешеходные бульвары, детские площадки, разделенные по возрастам, детский скалодром, зоны для занятий йогой, спортивные площадки для тенниса, стрит-бола и рампа для роликов. Отличительной особенностью жилого комплекса является собственный исцеляющий сад. На первых этажах комплекса работают магазины и аптека, кафе и детский досуговый центр и фитнес-студия. Для владельцев автомобилей предусмотрен подземный паркинг.
ЖК «1-й Измайловский» расположен в районе Гольяново, но пересечении Монтажной и Амурской улиц. Инфраструктура района хорошо развита. В пешей доступности работают торговые центры и сетевые магазины, больше десятка детских садов, 2 крупных школы, поликлиники и медицинские центры. В радиусе четырех километров от квартала расположены несколько стадионов. Комплекс окружен крупнейшими московскими лесопарками: рядом Национальный парк Лосиный Остров, Лесопарк Измайлово, Парк Сокольники.
Жилой комплекс «1-й Измайловский» состоит из корпусов разной этажности: от 9-этажных секций до акцентных 100-метровых башен. Архитектурный облик комплекса разработан российским бюро «Крупный план». Фасады выполнены в спокойных тонах с преобладанием естественной палитры, в отделке первых этажей использована рельефная кирпичная кладка, верхние этажи украшает паттерн из металлических шевронов с бионическим рисунком. В лобби выполнена дизайнерская отделка с использованием предметов искусства и нестандартного озеленения. Витражное остекление обеспечивает приток естественного света. В каждом подъезде оборудованы колясочные, лапомойки и гостевые санузлы. На подземном этаже размещены кладовые помещения.
В ЖК «1-й Измайловский» предложено большое количество планировочных решений — от компактных студий от 20 кв. метров до просторных 4-комнатных площадью более 100 кв. метров. В проекте предусмотрены также планировки евроформата с возможностью полноценного деления на кухню и гостиную, квартиры с гардеробными и построчными, варианты планировок с возможностью оборудовать остров на кухне. На выбор предложено 5 видов отделки: 4 варианта дизайнерской отделки и отделка White Box.
На закрытой территории комплекса, оформленной ландшафтным бюро «Вьюга» размещены: тренажеры на открытом воздухе, закольцованные беговые и велодорожки, пешеходные бульвары, детские площадки, разделенные по возрастам, детский скалодром, зоны для занятий йогой, спортивные площадки для тенниса, стрит-бола и рампа для роликов. Отличительной особенностью жилого комплекса является собственный исцеляющий сад. На первых этажах комплекса работают магазины и аптека, кафе и детский досуговый центр и фитнес-студия. Для владельцев автомобилей предусмотрен подземный паркинг.
ЖК «1-й Измайловский» расположен в районе Гольяново, но пересечении Монтажной и Амурской улиц. Инфраструктура района хорошо развита. В пешей доступности работают торговые центры и сетевые магазины, больше десятка детских садов, 2 крупных школы, поликлиники и медицинские центры. В радиусе четырех километров от квартала расположены несколько стадионов. Комплекс окружен крупнейшими московскими лесопарками: рядом Национальный парк Лосиный Остров, Лесопарк Измайлово, Парк Сокольники.
Жилой комплекс «1-й Ясеневский» состоит из 4 корпусов переменной этажности высотой от 6 до18 этажей. Фасады имеют индивидуальный для каждого корпуса дизайн с металлическими шевронами и цветочными орнаментами. В темное время суток предусмотрена фронтальная подсветка. Вход в сквозные подъезды расположен на уровне земли, сплошное остекление лобби обеспечивает приток естественного света. В каждом подъезде оборудованы колясочные и лапомойки. На подземном этаже размещены кладовые помещения.
В ЖК «1-й Ясеневский» предложено множество планировочных решений: от компактных студий до 3-комнатных квартир. В том числе уникальные форматы: с окном в гардеробной, мастер-спальней и высокими потолками до 3,12 метра. Все квартиры сдаются с чистовой отделкой или отделкой White box.
На закрытой территории «1-го Ясеневского» размещены: зеленый освещенный бульвар со спортивными и игровыми площадками, зоны отдыха, система велодорожек, маленькая городская площадь, кафе, пекарни и кофе поинты. Изюминкой благоустройства являются фруктовые деревья во дворах и городские сады. Для владельцев автомобилей предусмотрен наземный многоуровневый паркинг.
ЖК «1-й Ясеневский» расположен на на территории Новой Москвы, на улице Адмирала Корнилова, в 1 км от МКАД и в 500 метрах от Калужского шоссе. Рядом с комплексом работают современная школа IT-кластером и бассейном и 2 детских сада. В пешей доступности расположены Троицкий лесопарк и парк-усадьба Троицкое.
Жилой комплекс «1-й Ясеневский» состоит из 4 корпусов переменной этажности высотой от 6 до18 этажей. Фасады имеют индивидуальный для каждого корпуса дизайн с металлическими шевронами и цветочными орнаментами. В темное время суток предусмотрена фронтальная подсветка. Вход в сквозные подъезды расположен на уровне земли, сплошное остекление лобби обеспечивает приток естественного света. В каждом подъезде оборудованы колясочные и лапомойки. На подземном этаже размещены кладовые помещения.
В ЖК «1-й Ясеневский» предложено множество планировочных решений: от компактных студий до 3-комнатных квартир. В том числе уникальные форматы: с окном в гардеробной, мастер-спальней и высокими потолками до 3,12 метра. Все квартиры сдаются с чистовой отделкой или отделкой White box.
На закрытой территории «1-го Ясеневского» размещены: зеленый освещенный бульвар со спортивными и игровыми площадками, зоны отдыха, система велодорожек, маленькая городская площадь, кафе, пекарни и кофе поинты. Изюминкой благоустройства являются фруктовые деревья во дворах и городские сады. Для владельцев автомобилей предусмотрен наземный многоуровневый паркинг.
ЖК «1-й Ясеневский» расположен на на территории Новой Москвы, на улице Адмирала Корнилова, в 1 км от МКАД и в 500 метрах от Калужского шоссе. Рядом с комплексом работают современная школа IT-кластером и бассейном и 2 детских сада. В пешей доступности расположены Троицкий лесопарк и парк-усадьба Троицкое.
Жилой комплекс «1-й Ясеневский» состоит из 4 корпусов переменной этажности высотой от 6 до18 этажей. Фасады имеют индивидуальный для каждого корпуса дизайн с металлическими шевронами и цветочными орнаментами. В темное время суток предусмотрена фронтальная подсветка. Вход в сквозные подъезды расположен на уровне земли, сплошное остекление лобби обеспечивает приток естественного света. В каждом подъезде оборудованы колясочные и лапомойки. На подземном этаже размещены кладовые помещения.
В ЖК «1-й Ясеневский» предложено множество планировочных решений: от компактных студий до 3-комнатных квартир. В том числе уникальные форматы: с окном в гардеробной, мастер-спальней и высокими потолками до 3,12 метра. Все квартиры сдаются с чистовой отделкой или отделкой White box.
На закрытой территории «1-го Ясеневского» размещены: зеленый освещенный бульвар со спортивными и игровыми площадками, зоны отдыха, система велодорожек, маленькая городская площадь, кафе, пекарни и кофе поинты. Изюминкой благоустройства являются фруктовые деревья во дворах и городские сады. Для владельцев автомобилей предусмотрен наземный многоуровневый паркинг.
ЖК «1-й Ясеневский» расположен на на территории Новой Москвы, на улице Адмирала Корнилова, в 1 км от МКАД и в 500 метрах от Калужского шоссе. Рядом с комплексом работают современная школа IT-кластером и бассейном и 2 детских сада. В пешей доступности расположены Троицкий лесопарк и парк-усадьба Троицкое.
Жилой комплекс «Южная Битца» - это 12 жилых корпусов разной высоты от 17 до 25 этажей. Корпуса выполнены в стиле современной архитектуры с фасадами из штукатурки в разных оттенках бело-коричневой цветовой гаммы.
Квартиры в комплексе представлены большим разнообразием классических планировок площадью от 32,7 до 98,9 квадратных метров. Застройщик предлагает покупателям жилые помещения с подчистовой и чистовой отделкой в 6 стилях на выбор.Также есть возможность приобрести квартиру с видом на лесопарк.
На первых этажах корпусов предусмотрены коммерческие помещения, а для автовладельцев спроектированы надземные и подземные паркинги. Территория комплекса благоустроена. Здесь есть детские и спортивные площадки, прогулочные зоны, места для отдыха и площадка для дрессировки собак. Дворы закрыты от автомобилей, а внутридворовое пространство удобно организовано. Внутренняя инфраструктура также включает в себя четыре детских сада, две школы и поликлинику.
«Южная Битца» удобно расположена между Варшавским и Симферопольским шоссе. Жителям комплекса доступна вся внешняя инфраструктура района: образовательные учреждения, объекты здравоохранения, спортивные комплексы, кинотеатры, кафе, рестораны и парки. Из торговых и развлекательных центров доступны ТРЦ «Шёлковый путь», Каширский двор, Леруа Мерлен, ТЦ «Галерея Атлантис» и Мега Теплый Стан. До выезда на МКАД 10 минут. Метро «Бульвар Дмитрия Донского» находится в 15 минутах транспортом.
Жилой комплекс «Южная Битца» - это 12 жилых корпусов разной высоты от 17 до 25 этажей. Корпуса выполнены в стиле современной архитектуры с фасадами из штукатурки в разных оттенках бело-коричневой цветовой гаммы.
Квартиры в комплексе представлены большим разнообразием классических планировок площадью от 32,7 до 98,9 квадратных метров. Застройщик предлагает покупателям жилые помещения с подчистовой и чистовой отделкой в 6 стилях на выбор.Также есть возможность приобрести квартиру с видом на лесопарк.
На первых этажах корпусов предусмотрены коммерческие помещения, а для автовладельцев спроектированы надземные и подземные паркинги. Территория комплекса благоустроена. Здесь есть детские и спортивные площадки, прогулочные зоны, места для отдыха и площадка для дрессировки собак. Дворы закрыты от автомобилей, а внутридворовое пространство удобно организовано. Внутренняя инфраструктура также включает в себя четыре детских сада, две школы и поликлинику.
«Южная Битца» удобно расположена между Варшавским и Симферопольским шоссе. Жителям комплекса доступна вся внешняя инфраструктура района: образовательные учреждения, объекты здравоохранения, спортивные комплексы, кинотеатры, кафе, рестораны и парки. Из торговых и развлекательных центров доступны ТРЦ «Шёлковый путь», Каширский двор, Леруа Мерлен, ТЦ «Галерея Атлантис» и Мега Теплый Стан. До выезда на МКАД 10 минут. Метро «Бульвар Дмитрия Донского» находится в 15 минутах транспортом.
Жилой комплекс «Южная Битца» - это 12 жилых корпусов разной высоты от 17 до 25 этажей. Корпуса выполнены в стиле современной архитектуры с фасадами из штукатурки в разных оттенках бело-коричневой цветовой гаммы.
Квартиры в комплексе представлены большим разнообразием классических планировок площадью от 32,7 до 98,9 квадратных метров. Застройщик предлагает покупателям жилые помещения с подчистовой и чистовой отделкой в 6 стилях на выбор.Также есть возможность приобрести квартиру с видом на лесопарк.
На первых этажах корпусов предусмотрены коммерческие помещения, а для автовладельцев спроектированы надземные и подземные паркинги. Территория комплекса благоустроена. Здесь есть детские и спортивные площадки, прогулочные зоны, места для отдыха и площадка для дрессировки собак. Дворы закрыты от автомобилей, а внутридворовое пространство удобно организовано. Внутренняя инфраструктура также включает в себя четыре детских сада, две школы и поликлинику.
«Южная Битца» удобно расположена между Варшавским и Симферопольским шоссе. Жителям комплекса доступна вся внешняя инфраструктура района: образовательные учреждения, объекты здравоохранения, спортивные комплексы, кинотеатры, кафе, рестораны и парки. Из торговых и развлекательных центров доступны ТРЦ «Шёлковый путь», Каширский двор, Леруа Мерлен, ТЦ «Галерея Атлантис» и Мега Теплый Стан. До выезда на МКАД 10 минут. Метро «Бульвар Дмитрия Донского» находится в 15 минутах транспортом.
Жилой комплекс «Южная Битца» - это 12 жилых корпусов разной высоты от 17 до 25 этажей. Корпуса выполнены в стиле современной архитектуры с фасадами из штукатурки в разных оттенках бело-коричневой цветовой гаммы.
Квартиры в комплексе представлены большим разнообразием классических планировок площадью от 32,7 до 98,9 квадратных метров. Застройщик предлагает покупателям жилые помещения с подчистовой и чистовой отделкой в 6 стилях на выбор.Также есть возможность приобрести квартиру с видом на лесопарк.
На первых этажах корпусов предусмотрены коммерческие помещения, а для автовладельцев спроектированы надземные и подземные паркинги. Территория комплекса благоустроена. Здесь есть детские и спортивные площадки, прогулочные зоны, места для отдыха и площадка для дрессировки собак. Дворы закрыты от автомобилей, а внутридворовое пространство удобно организовано. Внутренняя инфраструктура также включает в себя четыре детских сада, две школы и поликлинику.
«Южная Битца» удобно расположена между Варшавским и Симферопольским шоссе. Жителям комплекса доступна вся внешняя инфраструктура района: образовательные учреждения, объекты здравоохранения, спортивные комплексы, кинотеатры, кафе, рестораны и парки. Из торговых и развлекательных центров доступны ТРЦ «Шёлковый путь», Каширский двор, Леруа Мерлен, ТЦ «Галерея Атлантис» и Мега Теплый Стан. До выезда на МКАД 10 минут. Метро «Бульвар Дмитрия Донского» находится в 15 минутах транспортом.
Жилой комплекс «Южная Битца» - это 12 жилых корпусов разной высоты от 17 до 25 этажей. Корпуса выполнены в стиле современной архитектуры с фасадами из штукатурки в разных оттенках бело-коричневой цветовой гаммы.
Квартиры в комплексе представлены большим разнообразием классических планировок площадью от 32,7 до 98,9 квадратных метров. Застройщик предлагает покупателям жилые помещения с подчистовой и чистовой отделкой в 6 стилях на выбор.Также есть возможность приобрести квартиру с видом на лесопарк.
На первых этажах корпусов предусмотрены коммерческие помещения, а для автовладельцев спроектированы надземные и подземные паркинги. Территория комплекса благоустроена. Здесь есть детские и спортивные площадки, прогулочные зоны, места для отдыха и площадка для дрессировки собак. Дворы закрыты от автомобилей, а внутридворовое пространство удобно организовано. Внутренняя инфраструктура также включает в себя четыре детских сада, две школы и поликлинику.
«Южная Битца» удобно расположена между Варшавским и Симферопольским шоссе. Жителям комплекса доступна вся внешняя инфраструктура района: образовательные учреждения, объекты здравоохранения, спортивные комплексы, кинотеатры, кафе, рестораны и парки. Из торговых и развлекательных центров доступны ТРЦ «Шёлковый путь», Каширский двор, Леруа Мерлен, ТЦ «Галерея Атлантис» и Мега Теплый Стан. До выезда на МКАД 10 минут. Метро «Бульвар Дмитрия Донского» находится в 15 минутах транспортом.
Жилой комплекс «Южная Битца» - это 12 жилых корпусов разной высоты от 17 до 25 этажей. Корпуса выполнены в стиле современной архитектуры с фасадами из штукатурки в разных оттенках бело-коричневой цветовой гаммы.
Квартиры в комплексе представлены большим разнообразием классических планировок площадью от 32,7 до 98,9 квадратных метров. Застройщик предлагает покупателям жилые помещения с подчистовой и чистовой отделкой в 6 стилях на выбор.Также есть возможность приобрести квартиру с видом на лесопарк.
На первых этажах корпусов предусмотрены коммерческие помещения, а для автовладельцев спроектированы надземные и подземные паркинги. Территория комплекса благоустроена. Здесь есть детские и спортивные площадки, прогулочные зоны, места для отдыха и площадка для дрессировки собак. Дворы закрыты от автомобилей, а внутридворовое пространство удобно организовано. Внутренняя инфраструктура также включает в себя четыре детских сада, две школы и поликлинику.
«Южная Битца» удобно расположена между Варшавским и Симферопольским шоссе. Жителям комплекса доступна вся внешняя инфраструктура района: образовательные учреждения, объекты здравоохранения, спортивные комплексы, кинотеатры, кафе, рестораны и парки. Из торговых и развлекательных центров доступны ТРЦ «Шёлковый путь», Каширский двор, Леруа Мерлен, ТЦ «Галерея Атлантис» и Мега Теплый Стан. До выезда на МКАД 10 минут. Метро «Бульвар Дмитрия Донского» находится в 15 минутах транспортом.
Жилой комплекс «Южная Битца» - это 12 жилых корпусов разной высоты от 17 до 25 этажей. Корпуса выполнены в стиле современной архитектуры с фасадами из штукатурки в разных оттенках бело-коричневой цветовой гаммы.
Квартиры в комплексе представлены большим разнообразием классических планировок площадью от 32,7 до 98,9 квадратных метров. Застройщик предлагает покупателям жилые помещения с подчистовой и чистовой отделкой в 6 стилях на выбор.Также есть возможность приобрести квартиру с видом на лесопарк.
На первых этажах корпусов предусмотрены коммерческие помещения, а для автовладельцев спроектированы надземные и подземные паркинги. Территория комплекса благоустроена. Здесь есть детские и спортивные площадки, прогулочные зоны, места для отдыха и площадка для дрессировки собак. Дворы закрыты от автомобилей, а внутридворовое пространство удобно организовано. Внутренняя инфраструктура также включает в себя четыре детских сада, две школы и поликлинику.
«Южная Битца» удобно расположена между Варшавским и Симферопольским шоссе. Жителям комплекса доступна вся внешняя инфраструктура района: образовательные учреждения, объекты здравоохранения, спортивные комплексы, кинотеатры, кафе, рестораны и парки. Из торговых и развлекательных центров доступны ТРЦ «Шёлковый путь», Каширский двор, Леруа Мерлен, ТЦ «Галерея Атлантис» и Мега Теплый Стан. До выезда на МКАД 10 минут. Метро «Бульвар Дмитрия Донского» находится в 15 минутах транспортом.
Комплекс состоит из семи корпусов высотой от 9 до 25 этажей, возведенных по технологии панельного строительства с комбинированными фасадами. В проекте представлены современные дизайнерские входные группы, оснащенные пассажирским и грузовым лифтами, а также колясочными, стойкой консьержа и комнатами «чистых лапок» для питомцев.
В жилом комплексе представлены квартиры различных планировок: от студий до 4‑х комнатных квартир. Отделка может быть выполнена в подчистовом варианте или с чистовой отделкой. В каждой квартире предусмотрены просторные балконы и стандартные окна, обеспечивающие хорошее естественное освещение. Высота потолков от 2,84 м. Оснащение квартир включает современные инженерные системы и качественные строительные материалы.
Внутренняя инфраструктура комплекса включает школы и детские сады на территории, детские игровые площадки, спортивные зоны и места для отдыха. В проекте также предусмотрены магазины, аптеки и другие объекты коммерческой инфраструктуры. Для безопасности жителей территория комплекса огорожена и оборудована системами видеонаблюдения и круглосуточной охраной. Для автовладельцев предусмотрены подземные и открытые паркинги.
Жилой комплекс расположен в районе с хорошо развитой инфраструктурой. В непосредственной близости от комплекса находятся ТРЦ «Саларис», гипермаркет «Глобус», школы и детские сады. Также удобная транспортная доступность обеспечивается близостью к основным магистралям, таким как Киевское шоссе и МКАД. Жители комплекса имеют доступ к многочисленным паркам и лесопарковым зонам, таким как Мещерский парк и Ульяновский лесопарк. Метро «Саларьево» в 10 минутах ходьбы.
Комплекс состоит из семи корпусов высотой от 9 до 25 этажей, возведенных по технологии панельного строительства с комбинированными фасадами. В проекте представлены современные дизайнерские входные группы, оснащенные пассажирским и грузовым лифтами, а также колясочными, стойкой консьержа и комнатами «чистых лапок» для питомцев.
В жилом комплексе представлены квартиры различных планировок: от студий до 4‑х комнатных квартир. Отделка может быть выполнена в подчистовом варианте или с чистовой отделкой. В каждой квартире предусмотрены просторные балконы и стандартные окна, обеспечивающие хорошее естественное освещение. Высота потолков от 2,84 м. Оснащение квартир включает современные инженерные системы и качественные строительные материалы.
Внутренняя инфраструктура комплекса включает школы и детские сады на территории, детские игровые площадки, спортивные зоны и места для отдыха. В проекте также предусмотрены магазины, аптеки и другие объекты коммерческой инфраструктуры. Для безопасности жителей территория комплекса огорожена и оборудована системами видеонаблюдения и круглосуточной охраной. Для автовладельцев предусмотрены подземные и открытые паркинги.
Жилой комплекс расположен в районе с хорошо развитой инфраструктурой. В непосредственной близости от комплекса находятся ТРЦ «Саларис», гипермаркет «Глобус», школы и детские сады. Также удобная транспортная доступность обеспечивается близостью к основным магистралям, таким как Киевское шоссе и МКАД. Жители комплекса имеют доступ к многочисленным паркам и лесопарковым зонам, таким как Мещерский парк и Ульяновский лесопарк. Метро «Саларьево» в 10 минутах ходьбы.
Комплекс состоит из семи корпусов высотой от 9 до 25 этажей, возведенных по технологии панельного строительства с комбинированными фасадами. В проекте представлены современные дизайнерские входные группы, оснащенные пассажирским и грузовым лифтами, а также колясочными, стойкой консьержа и комнатами «чистых лапок» для питомцев.
В жилом комплексе представлены квартиры различных планировок: от студий до 4‑х комнатных квартир. Отделка может быть выполнена в подчистовом варианте или с чистовой отделкой. В каждой квартире предусмотрены просторные балконы и стандартные окна, обеспечивающие хорошее естественное освещение. Высота потолков от 2,84 м. Оснащение квартир включает современные инженерные системы и качественные строительные материалы.
Внутренняя инфраструктура комплекса включает школы и детские сады на территории, детские игровые площадки, спортивные зоны и места для отдыха. В проекте также предусмотрены магазины, аптеки и другие объекты коммерческой инфраструктуры. Для безопасности жителей территория комплекса огорожена и оборудована системами видеонаблюдения и круглосуточной охраной. Для автовладельцев предусмотрены подземные и открытые паркинги.
Жилой комплекс расположен в районе с хорошо развитой инфраструктурой. В непосредственной близости от комплекса находятся ТРЦ «Саларис», гипермаркет «Глобус», школы и детские сады. Также удобная транспортная доступность обеспечивается близостью к основным магистралям, таким как Киевское шоссе и МКАД. Жители комплекса имеют доступ к многочисленным паркам и лесопарковым зонам, таким как Мещерский парк и Ульяновский лесопарк. Метро «Саларьево» в 10 минутах ходьбы.
Комплекс состоит из семи корпусов высотой от 9 до 25 этажей, возведенных по технологии панельного строительства с комбинированными фасадами. В проекте представлены современные дизайнерские входные группы, оснащенные пассажирским и грузовым лифтами, а также колясочными, стойкой консьержа и комнатами «чистых лапок» для питомцев.
В жилом комплексе представлены квартиры различных планировок: от студий до 4‑х комнатных квартир. Отделка может быть выполнена в подчистовом варианте или с чистовой отделкой. В каждой квартире предусмотрены просторные балконы и стандартные окна, обеспечивающие хорошее естественное освещение. Высота потолков от 2,84 м. Оснащение квартир включает современные инженерные системы и качественные строительные материалы.
Внутренняя инфраструктура комплекса включает школы и детские сады на территории, детские игровые площадки, спортивные зоны и места для отдыха. В проекте также предусмотрены магазины, аптеки и другие объекты коммерческой инфраструктуры. Для безопасности жителей территория комплекса огорожена и оборудована системами видеонаблюдения и круглосуточной охраной. Для автовладельцев предусмотрены подземные и открытые паркинги.
Жилой комплекс расположен в районе с хорошо развитой инфраструктурой. В непосредственной близости от комплекса находятся ТРЦ «Саларис», гипермаркет «Глобус», школы и детские сады. Также удобная транспортная доступность обеспечивается близостью к основным магистралям, таким как Киевское шоссе и МКАД. Жители комплекса имеют доступ к многочисленным паркам и лесопарковым зонам, таким как Мещерский парк и Ульяновский лесопарк. Метро «Саларьево» в 10 минутах ходьбы.
Комплекс состоит из семи корпусов высотой от 9 до 25 этажей, возведенных по технологии панельного строительства с комбинированными фасадами. В проекте представлены современные дизайнерские входные группы, оснащенные пассажирским и грузовым лифтами, а также колясочными, стойкой консьержа и комнатами «чистых лапок» для питомцев.
В жилом комплексе представлены квартиры различных планировок: от студий до 4‑х комнатных квартир. Отделка может быть выполнена в подчистовом варианте или с чистовой отделкой. В каждой квартире предусмотрены просторные балконы и стандартные окна, обеспечивающие хорошее естественное освещение. Высота потолков от 2,84 м. Оснащение квартир включает современные инженерные системы и качественные строительные материалы.
Внутренняя инфраструктура комплекса включает школы и детские сады на территории, детские игровые площадки, спортивные зоны и места для отдыха. В проекте также предусмотрены магазины, аптеки и другие объекты коммерческой инфраструктуры. Для безопасности жителей территория комплекса огорожена и оборудована системами видеонаблюдения и круглосуточной охраной. Для автовладельцев предусмотрены подземные и открытые паркинги.
Жилой комплекс расположен в районе с хорошо развитой инфраструктурой. В непосредственной близости от комплекса находятся ТРЦ «Саларис», гипермаркет «Глобус», школы и детские сады. Также удобная транспортная доступность обеспечивается близостью к основным магистралям, таким как Киевское шоссе и МКАД. Жители комплекса имеют доступ к многочисленным паркам и лесопарковым зонам, таким как Мещерский парк и Ульяновский лесопарк. Метро «Саларьево» в 10 минутах ходьбы.
Комплекс состоит из семи корпусов высотой от 9 до 25 этажей, возведенных по технологии панельного строительства с комбинированными фасадами. В проекте представлены современные дизайнерские входные группы, оснащенные пассажирским и грузовым лифтами, а также колясочными, стойкой консьержа и комнатами «чистых лапок» для питомцев.
В жилом комплексе представлены квартиры различных планировок: от студий до 4‑х комнатных квартир. Отделка может быть выполнена в подчистовом варианте или с чистовой отделкой. В каждой квартире предусмотрены просторные балконы и стандартные окна, обеспечивающие хорошее естественное освещение. Высота потолков от 2,84 м. Оснащение квартир включает современные инженерные системы и качественные строительные материалы.
Внутренняя инфраструктура комплекса включает школы и детские сады на территории, детские игровые площадки, спортивные зоны и места для отдыха. В проекте также предусмотрены магазины, аптеки и другие объекты коммерческой инфраструктуры. Для безопасности жителей территория комплекса огорожена и оборудована системами видеонаблюдения и круглосуточной охраной. Для автовладельцев предусмотрены подземные и открытые паркинги.
Жилой комплекс расположен в районе с хорошо развитой инфраструктурой. В непосредственной близости от комплекса находятся ТРЦ «Саларис», гипермаркет «Глобус», школы и детские сады. Также удобная транспортная доступность обеспечивается близостью к основным магистралям, таким как Киевское шоссе и МКАД. Жители комплекса имеют доступ к многочисленным паркам и лесопарковым зонам, таким как Мещерский парк и Ульяновский лесопарк. Метро «Саларьево» в 10 минутах ходьбы.
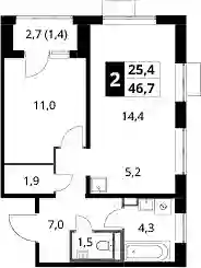
Жилой комплекс «1-й Донской» — современный 24х-этажный проект, включающий в себя 2 корпуса переменной этажности с функцией подсветки в ночное время. Фасады теплой цветовой палитры разработаны испанским бюро «Citythinking». Для удобства жителей во входных группах расположены уборные для взрослых и детей, а также лапомойки для домашних животных. В лобби предусмотрено место для хранения велосипедов и колясок.
Проектом предусмотрен большой выбор планировок: от 1-комнатных до 4х-комнатных, среди которых есть квартиры, выходящие на 2-3 стороны света. Также имеются просторные застекленные лоджии.
Концепция благоустройства территории разработана известным архитектурным бюро Mont Design. На территории квартала предусмотрены муниципальные детские сады и школа. Первые этажи зданий отведены под коммерческие помещения. Дом оборудован автоматизированной системой «Умный Дом».
В пешей доступности от жилого комплекса находится набережная реки Купелинки, Ермолинский лесопарк и Жуковский парк.
Жилой комплекс «1-й Донской» — современный 24х-этажный проект, включающий в себя 2 корпуса переменной этажности с функцией подсветки в ночное время. Фасады теплой цветовой палитры разработаны испанским бюро «Citythinking». Для удобства жителей во входных группах расположены уборные для взрослых и детей, а также лапомойки для домашних животных. В лобби предусмотрено место для хранения велосипедов и колясок.
Проектом предусмотрен большой выбор планировок: от 1-комнатных до 4х-комнатных, среди которых есть квартиры, выходящие на 2-3 стороны света. Также имеются просторные застекленные лоджии.
Концепция благоустройства территории разработана известным архитектурным бюро Mont Design. На территории квартала предусмотрены муниципальные детские сады и школа. Первые этажи зданий отведены под коммерческие помещения. Дом оборудован автоматизированной системой «Умный Дом».
В пешей доступности от жилого комплекса находится набережная реки Купелинки, Ермолинский лесопарк и Жуковский парк.
Жилой комплекс «1-й Донской» — современный 24х-этажный проект, включающий в себя 2 корпуса переменной этажности с функцией подсветки в ночное время. Фасады теплой цветовой палитры разработаны испанским бюро «Citythinking». Для удобства жителей во входных группах расположены уборные для взрослых и детей, а также лапомойки для домашних животных. В лобби предусмотрено место для хранения велосипедов и колясок.
Проектом предусмотрен большой выбор планировок: от 1-комнатных до 4х-комнатных, среди которых есть квартиры, выходящие на 2-3 стороны света. Также имеются просторные застекленные лоджии.
Концепция благоустройства территории разработана известным архитектурным бюро Mont Design. На территории квартала предусмотрены муниципальные детские сады и школа. Первые этажи зданий отведены под коммерческие помещения. Дом оборудован автоматизированной системой «Умный Дом».
В пешей доступности от жилого комплекса находится набережная реки Купелинки, Ермолинский лесопарк и Жуковский парк.
Жилой комплекс «1-й Донской» — современный 24х-этажный проект, включающий в себя 2 корпуса переменной этажности с функцией подсветки в ночное время. Фасады теплой цветовой палитры разработаны испанским бюро «Citythinking». Для удобства жителей во входных группах расположены уборные для взрослых и детей, а также лапомойки для домашних животных. В лобби предусмотрено место для хранения велосипедов и колясок.
Проектом предусмотрен большой выбор планировок: от 1-комнатных до 4х-комнатных, среди которых есть квартиры, выходящие на 2-3 стороны света. Также имеются просторные застекленные лоджии.
Концепция благоустройства территории разработана известным архитектурным бюро Mont Design. На территории квартала предусмотрены муниципальные детские сады и школа. Первые этажи зданий отведены под коммерческие помещения. Дом оборудован автоматизированной системой «Умный Дом».
В пешей доступности от жилого комплекса находится набережная реки Купелинки, Ермолинский лесопарк и Жуковский парк.
Жилой комплекс «1-й Донской» — современный 24х-этажный проект, включающий в себя 2 корпуса переменной этажности с функцией подсветки в ночное время. Фасады теплой цветовой палитры разработаны испанским бюро «Citythinking». Для удобства жителей во входных группах расположены уборные для взрослых и детей, а также лапомойки для домашних животных. В лобби предусмотрено место для хранения велосипедов и колясок.
Проектом предусмотрен большой выбор планировок: от 1-комнатных до 4х-комнатных, среди которых есть квартиры, выходящие на 2-3 стороны света. Также имеются просторные застекленные лоджии.
Концепция благоустройства территории разработана известным архитектурным бюро Mont Design. На территории квартала предусмотрены муниципальные детские сады и школа. Первые этажи зданий отведены под коммерческие помещения. Дом оборудован автоматизированной системой «Умный Дом».
В пешей доступности от жилого комплекса находится набережная реки Купелинки, Ермолинский лесопарк и Жуковский парк.
Жилой комплекс «1-й Донской» — современный 24х-этажный проект, включающий в себя 2 корпуса переменной этажности с функцией подсветки в ночное время. Фасады теплой цветовой палитры разработаны испанским бюро «Citythinking». Для удобства жителей во входных группах расположены уборные для взрослых и детей, а также лапомойки для домашних животных. В лобби предусмотрено место для хранения велосипедов и колясок.
Проектом предусмотрен большой выбор планировок: от 1-комнатных до 4х-комнатных, среди которых есть квартиры, выходящие на 2-3 стороны света. Также имеются просторные застекленные лоджии.
Концепция благоустройства территории разработана известным архитектурным бюро Mont Design. На территории квартала предусмотрены муниципальные детские сады и школа. Первые этажи зданий отведены под коммерческие помещения. Дом оборудован автоматизированной системой «Умный Дом».
В пешей доступности от жилого комплекса находится набережная реки Купелинки, Ермолинский лесопарк и Жуковский парк.


