
Микрорайон «Большое Путилково» представляет собой масштабный проект комплексного освоения территории с собственной инфраструктурой. Благодаря оригинальному архитектурному проекту, разработанному специально для этой новостройки, все здания гармонично вписываются в окружающий природный ландшафт, а современные технологии и материалы высокого качества, используемые при строительстве, обеспечивают корпусам долговечность и великолепные эксплуатационные характеристики.
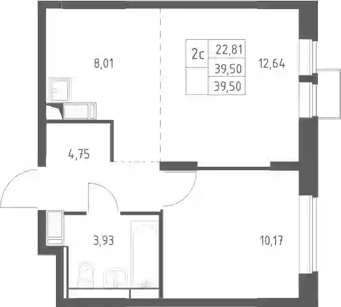
В ЖК «Большое Путилково»предложено множество планировочных решений: в наличии квартиры, как классического типа, так и европланировки. Квартиры сдаются с чистовой отделкой.
На первых этажах домов комплекса «Большое Путилково»находятся кафе, магазины, салоны красоты и аптеки. На придомовой территории располагаются детские и спортивные площадки, пешеходные дорожки и места для отдыха. Для автовладельцев предусмотрены подземные паркинги.
Микрорайон «Большое Путилково» располагается в экологически чистом месте на северо-западе от Москвы, вблизи природного парка Куркино и заповедной зоны — Алёшкинского леса. Метро «Митино» находится в 10 минутах транспортом, выезд на МКАД — в 500 м.
