











Жилой комплекс «Деснаречье» — Современный проект, возведенный по технологии кирпично-монолитного строительства с комбинированными фасадами. Первые этажи здания отведены под коммерческие помещения.
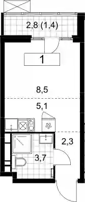
В проекте представлено множество планировочных решений — от студий до просторных 4х-комнатных квартир как классических так и европланировок с мастер-спальнями и кладовыми. Все лоты сдаются с базовой отделкой и возможностью дозаказа чистовой, высотой потолков 2,99 метра и увеличенными окнами.
Территория комплекса благоустроена — имеется 3 детских сада и 2 школы, для автовладельцев предусмотрен подземный паркинг.
Жилой комплекс «Деснаречье» расположен в районе с хорошо развитой инфраструктурой — в пешей доступности имеется все необходимое: продовольственные магазины, аптеки, медицинские и образовательные учреждения, места для прогулок и отдыха.

Жилой комплекс «Родные кварталы» состоит из кирпично-монолитных корпусов средней этажности высотой до 10 этажей. В отделке используется сочетание вентилируемого фасада с облицовкой из фибробетонной плитки и штукатуркой. Выразительность и динамику облику зданий придают контрастные цвета, чередование объемов и материалов отделки, окна различных размеров и их нелинейное расположение. В домах предусмотрены дизайнерские входные группы с вестибюлем, зоной ожидания, местами для мойки колес и лап питомцев, колясочными и велосипедными. Витражное остекление входных групп обеспечивает приток естественного света. Все дома обеспечены подземными паркингами и кладовыми. Первые этажи зданий занимают коммерческие помещения.
В ЖК «Родные кварталы» предложено множество планировочных решений – от функциональных компактных студий до просторных 4-комнатных квартир европейского формата. Квартиры сдаются без отделки, высота потолков составляет 2,95 метра.
Ландшафтный дизайн территории выполнен архитектурной студией GAFA. Во дворах обустроены природные зоны, напоминающие ландшафты разных регионов России, установлены площадки с народными играми. Территорию комплекса покрывает сеть пешеходных и велосипедных маршрутов протяженностью 4 километра.
ЖК «Родные кварталы» расположен в экологически чистом районе, вблизи деревни Постниково. Комплекс окружают малоэтажные поселки и живописный Ульяновский лесопарк. В районе хорошо развита инфраструктура для спорта и активного отдыха, рядом расположены: конный клуб, центр практического и игрового развития «Лучшее время», парк «Ручеек». До аэропорта Внуково можно добраться за 15 минут на автомобиле. Ближайшее метро «Пыхтино» в 10 минутах транспортом.
Жилой комплекс «Родные кварталы» состоит из кирпично-монолитных корпусов средней этажности высотой до 10 этажей. В отделке используется сочетание вентилируемого фасада с облицовкой из фибробетонной плитки и штукатуркой. Выразительность и динамику облику зданий придают контрастные цвета, чередование объемов и материалов отделки, окна различных размеров и их нелинейное расположение. В домах предусмотрены дизайнерские входные группы с вестибюлем, зоной ожидания, местами для мойки колес и лап питомцев, колясочными и велосипедными. Витражное остекление входных групп обеспечивает приток естественного света. Все дома обеспечены подземными паркингами и кладовыми. Первые этажи зданий занимают коммерческие помещения.
В ЖК «Родные кварталы» предложено множество планировочных решений – от функциональных компактных студий до просторных 4-комнатных квартир европейского формата. Квартиры сдаются без отделки, высота потолков составляет 2,95 метра.
Ландшафтный дизайн территории выполнен архитектурной студией GAFA. Во дворах обустроены природные зоны, напоминающие ландшафты разных регионов России, установлены площадки с народными играми. Территорию комплекса покрывает сеть пешеходных и велосипедных маршрутов протяженностью 4 километра.
ЖК «Родные кварталы» расположен в экологически чистом районе, вблизи деревни Постниково. Комплекс окружают малоэтажные поселки и живописный Ульяновский лесопарк. В районе хорошо развита инфраструктура для спорта и активного отдыха, рядом расположены: конный клуб, центр практического и игрового развития «Лучшее время», парк «Ручеек». До аэропорта Внуково можно добраться за 15 минут на автомобиле. Ближайшее метро «Пыхтино» в 10 минутах транспортом.
Жилой комплекс «Родные кварталы» состоит из кирпично-монолитных корпусов средней этажности высотой до 10 этажей. В отделке используется сочетание вентилируемого фасада с облицовкой из фибробетонной плитки и штукатуркой. Выразительность и динамику облику зданий придают контрастные цвета, чередование объемов и материалов отделки, окна различных размеров и их нелинейное расположение. В домах предусмотрены дизайнерские входные группы с вестибюлем, зоной ожидания, местами для мойки колес и лап питомцев, колясочными и велосипедными. Витражное остекление входных групп обеспечивает приток естественного света. Все дома обеспечены подземными паркингами и кладовыми. Первые этажи зданий занимают коммерческие помещения.
В ЖК «Родные кварталы» предложено множество планировочных решений – от функциональных компактных студий до просторных 4-комнатных квартир европейского формата. Квартиры сдаются без отделки, высота потолков составляет 2,95 метра.
Ландшафтный дизайн территории выполнен архитектурной студией GAFA. Во дворах обустроены природные зоны, напоминающие ландшафты разных регионов России, установлены площадки с народными играми. Территорию комплекса покрывает сеть пешеходных и велосипедных маршрутов протяженностью 4 километра.
ЖК «Родные кварталы» расположен в экологически чистом районе, вблизи деревни Постниково. Комплекс окружают малоэтажные поселки и живописный Ульяновский лесопарк. В районе хорошо развита инфраструктура для спорта и активного отдыха, рядом расположены: конный клуб, центр практического и игрового развития «Лучшее время», парк «Ручеек». До аэропорта Внуково можно добраться за 15 минут на автомобиле. Ближайшее метро «Пыхтино» в 10 минутах транспортом.
Жилой комплекс «Родные кварталы» состоит из кирпично-монолитных корпусов средней этажности высотой до 10 этажей. В отделке используется сочетание вентилируемого фасада с облицовкой из фибробетонной плитки и штукатуркой. Выразительность и динамику облику зданий придают контрастные цвета, чередование объемов и материалов отделки, окна различных размеров и их нелинейное расположение. В домах предусмотрены дизайнерские входные группы с вестибюлем, зоной ожидания, местами для мойки колес и лап питомцев, колясочными и велосипедными. Витражное остекление входных групп обеспечивает приток естественного света. Все дома обеспечены подземными паркингами и кладовыми. Первые этажи зданий занимают коммерческие помещения.
В ЖК «Родные кварталы» предложено множество планировочных решений – от функциональных компактных студий до просторных 4-комнатных квартир европейского формата. Квартиры сдаются без отделки, высота потолков составляет 2,95 метра.
Ландшафтный дизайн территории выполнен архитектурной студией GAFA. Во дворах обустроены природные зоны, напоминающие ландшафты разных регионов России, установлены площадки с народными играми. Территорию комплекса покрывает сеть пешеходных и велосипедных маршрутов протяженностью 4 километра.
ЖК «Родные кварталы» расположен в экологически чистом районе, вблизи деревни Постниково. Комплекс окружают малоэтажные поселки и живописный Ульяновский лесопарк. В районе хорошо развита инфраструктура для спорта и активного отдыха, рядом расположены: конный клуб, центр практического и игрового развития «Лучшее время», парк «Ручеек». До аэропорта Внуково можно добраться за 15 минут на автомобиле. Ближайшее метро «Пыхтино» в 10 минутах транспортом.
Жилой комплекс «Родные кварталы» состоит из кирпично-монолитных корпусов средней этажности высотой до 10 этажей. В отделке используется сочетание вентилируемого фасада с облицовкой из фибробетонной плитки и штукатуркой. Выразительность и динамику облику зданий придают контрастные цвета, чередование объемов и материалов отделки, окна различных размеров и их нелинейное расположение. В домах предусмотрены дизайнерские входные группы с вестибюлем, зоной ожидания, местами для мойки колес и лап питомцев, колясочными и велосипедными. Витражное остекление входных групп обеспечивает приток естественного света. Все дома обеспечены подземными паркингами и кладовыми. Первые этажи зданий занимают коммерческие помещения.
В ЖК «Родные кварталы» предложено множество планировочных решений – от функциональных компактных студий до просторных 4-комнатных квартир европейского формата. Квартиры сдаются без отделки, высота потолков составляет 2,95 метра.
Ландшафтный дизайн территории выполнен архитектурной студией GAFA. Во дворах обустроены природные зоны, напоминающие ландшафты разных регионов России, установлены площадки с народными играми. Территорию комплекса покрывает сеть пешеходных и велосипедных маршрутов протяженностью 4 километра.
ЖК «Родные кварталы» расположен в экологически чистом районе, вблизи деревни Постниково. Комплекс окружают малоэтажные поселки и живописный Ульяновский лесопарк. В районе хорошо развита инфраструктура для спорта и активного отдыха, рядом расположены: конный клуб, центр практического и игрового развития «Лучшее время», парк «Ручеек». До аэропорта Внуково можно добраться за 15 минут на автомобиле. Ближайшее метро «Пыхтино» в 10 минутах транспортом.
Жилой комплекс «Родные кварталы» состоит из кирпично-монолитных корпусов средней этажности высотой до 10 этажей. В отделке используется сочетание вентилируемого фасада с облицовкой из фибробетонной плитки и штукатуркой. Выразительность и динамику облику зданий придают контрастные цвета, чередование объемов и материалов отделки, окна различных размеров и их нелинейное расположение. В домах предусмотрены дизайнерские входные группы с вестибюлем, зоной ожидания, местами для мойки колес и лап питомцев, колясочными и велосипедными. Витражное остекление входных групп обеспечивает приток естественного света. Все дома обеспечены подземными паркингами и кладовыми. Первые этажи зданий занимают коммерческие помещения.
В ЖК «Родные кварталы» предложено множество планировочных решений – от функциональных компактных студий до просторных 4-комнатных квартир европейского формата. Квартиры сдаются без отделки, высота потолков составляет 2,95 метра.
Ландшафтный дизайн территории выполнен архитектурной студией GAFA. Во дворах обустроены природные зоны, напоминающие ландшафты разных регионов России, установлены площадки с народными играми. Территорию комплекса покрывает сеть пешеходных и велосипедных маршрутов протяженностью 4 километра.
ЖК «Родные кварталы» расположен в экологически чистом районе, вблизи деревни Постниково. Комплекс окружают малоэтажные поселки и живописный Ульяновский лесопарк. В районе хорошо развита инфраструктура для спорта и активного отдыха, рядом расположены: конный клуб, центр практического и игрового развития «Лучшее время», парк «Ручеек». До аэропорта Внуково можно добраться за 15 минут на автомобиле. Ближайшее метро «Пыхтино» в 10 минутах транспортом.
Жилой комплекс «Родные кварталы» состоит из кирпично-монолитных корпусов средней этажности высотой до 10 этажей. В отделке используется сочетание вентилируемого фасада с облицовкой из фибробетонной плитки и штукатуркой. Выразительность и динамику облику зданий придают контрастные цвета, чередование объемов и материалов отделки, окна различных размеров и их нелинейное расположение. В домах предусмотрены дизайнерские входные группы с вестибюлем, зоной ожидания, местами для мойки колес и лап питомцев, колясочными и велосипедными. Витражное остекление входных групп обеспечивает приток естественного света. Все дома обеспечены подземными паркингами и кладовыми. Первые этажи зданий занимают коммерческие помещения.
В ЖК «Родные кварталы» предложено множество планировочных решений – от функциональных компактных студий до просторных 4-комнатных квартир европейского формата. Квартиры сдаются без отделки, высота потолков составляет 2,95 метра.
Ландшафтный дизайн территории выполнен архитектурной студией GAFA. Во дворах обустроены природные зоны, напоминающие ландшафты разных регионов России, установлены площадки с народными играми. Территорию комплекса покрывает сеть пешеходных и велосипедных маршрутов протяженностью 4 километра.
ЖК «Родные кварталы» расположен в экологически чистом районе, вблизи деревни Постниково. Комплекс окружают малоэтажные поселки и живописный Ульяновский лесопарк. В районе хорошо развита инфраструктура для спорта и активного отдыха, рядом расположены: конный клуб, центр практического и игрового развития «Лучшее время», парк «Ручеек». До аэропорта Внуково можно добраться за 15 минут на автомобиле. Ближайшее метро «Пыхтино» в 10 минутах транспортом.
Жилой комплекс «Родные кварталы» состоит из кирпично-монолитных корпусов средней этажности высотой до 10 этажей. В отделке используется сочетание вентилируемого фасада с облицовкой из фибробетонной плитки и штукатуркой. Выразительность и динамику облику зданий придают контрастные цвета, чередование объемов и материалов отделки, окна различных размеров и их нелинейное расположение. В домах предусмотрены дизайнерские входные группы с вестибюлем, зоной ожидания, местами для мойки колес и лап питомцев, колясочными и велосипедными. Витражное остекление входных групп обеспечивает приток естественного света. Все дома обеспечены подземными паркингами и кладовыми. Первые этажи зданий занимают коммерческие помещения.
В ЖК «Родные кварталы» предложено множество планировочных решений – от функциональных компактных студий до просторных 4-комнатных квартир европейского формата. Квартиры сдаются без отделки, высота потолков составляет 2,95 метра.
Ландшафтный дизайн территории выполнен архитектурной студией GAFA. Во дворах обустроены природные зоны, напоминающие ландшафты разных регионов России, установлены площадки с народными играми. Территорию комплекса покрывает сеть пешеходных и велосипедных маршрутов протяженностью 4 километра.
ЖК «Родные кварталы» расположен в экологически чистом районе, вблизи деревни Постниково. Комплекс окружают малоэтажные поселки и живописный Ульяновский лесопарк. В районе хорошо развита инфраструктура для спорта и активного отдыха, рядом расположены: конный клуб, центр практического и игрового развития «Лучшее время», парк «Ручеек». До аэропорта Внуково можно добраться за 15 минут на автомобиле. Ближайшее метро «Пыхтино» в 10 минутах транспортом.
Жилой комплекс «Бунинские кварталы» это комплексная застройка монолитными домами переменной этажности: от 9 до 19 этажей. Дома отличает выразительная, динамическая пластика фасадов со смещением элементов отделки, сочетание контрастных тонов и большое количество остекления. В дизайнерских входных группах предусмотрены зона ожидания, санузел, лапомойки и места для хранения колясок.
В ЖК «Бунинские кварталы» предложено множество планировочных решений: в наличии квартиры, как классического типа, так и европланировки. Сдаются они без отделки и подчистовой отделкой, высотой потолков 2,99 метра и увеличенными окнами.
В закрытых дворах жилого комплекса «Бунинские кварталы» расположены детские и спортивные площадки, спроектированы места для отдыха. На территории комплекса предусмотрен образовательный центр. На первых этажах домов расположены коммерческие помещения, а для владельцев автомобилей предусмотрен подземный паркинг с прямым доступом на лифте.
ЖК «Бунинские кварталы» расположен в районе Новая Москва. В пешей доступности находятся Ивановский пруд, Потаповские пруды, крытый каток МИЦ «Арена», фитнес клуб, ландшафтный парк «Южное Бутово», магазины, школы и детские сады. Метро «Бунинская Аллея» находится в 10 минутах транспортом.
Жилой комплекс «Бунинские кварталы» это комплексная застройка монолитными домами переменной этажности: от 9 до 19 этажей. Дома отличает выразительная, динамическая пластика фасадов со смещением элементов отделки, сочетание контрастных тонов и большое количество остекления. В дизайнерских входных группах предусмотрены зона ожидания, санузел, лапомойки и места для хранения колясок.
В ЖК «Бунинские кварталы» предложено множество планировочных решений: в наличии квартиры, как классического типа, так и европланировки. Сдаются они без отделки и подчистовой отделкой, высотой потолков 2,99 метра и увеличенными окнами.
В закрытых дворах жилого комплекса «Бунинские кварталы» расположены детские и спортивные площадки, спроектированы места для отдыха. На территории комплекса предусмотрен образовательный центр. На первых этажах домов расположены коммерческие помещения, а для владельцев автомобилей предусмотрен подземный паркинг с прямым доступом на лифте.
ЖК «Бунинские кварталы» расположен в районе Новая Москва. В пешей доступности находятся Ивановский пруд, Потаповские пруды, крытый каток МИЦ «Арена», фитнес клуб, ландшафтный парк «Южное Бутово», магазины, школы и детские сады. Метро «Бунинская Аллея» находится в 10 минутах транспортом.
Жилой комплекс «Бунинские кварталы» это комплексная застройка монолитными домами переменной этажности: от 9 до 19 этажей. Дома отличает выразительная, динамическая пластика фасадов со смещением элементов отделки, сочетание контрастных тонов и большое количество остекления. В дизайнерских входных группах предусмотрены зона ожидания, санузел, лапомойки и места для хранения колясок.
В ЖК «Бунинские кварталы» предложено множество планировочных решений: в наличии квартиры, как классического типа, так и европланировки. Сдаются они без отделки и подчистовой отделкой, высотой потолков 2,99 метра и увеличенными окнами.
В закрытых дворах жилого комплекса «Бунинские кварталы» расположены детские и спортивные площадки, спроектированы места для отдыха. На территории комплекса предусмотрен образовательный центр. На первых этажах домов расположены коммерческие помещения, а для владельцев автомобилей предусмотрен подземный паркинг с прямым доступом на лифте.
ЖК «Бунинские кварталы» расположен в районе Новая Москва. В пешей доступности находятся Ивановский пруд, Потаповские пруды, крытый каток МИЦ «Арена», фитнес клуб, ландшафтный парк «Южное Бутово», магазины, школы и детские сады. Метро «Бунинская Аллея» находится в 10 минутах транспортом.
Жилой комплекс «Бунинские кварталы» это комплексная застройка монолитными домами переменной этажности: от 9 до 19 этажей. Дома отличает выразительная, динамическая пластика фасадов со смещением элементов отделки, сочетание контрастных тонов и большое количество остекления. В дизайнерских входных группах предусмотрены зона ожидания, санузел, лапомойки и места для хранения колясок.
В ЖК «Бунинские кварталы» предложено множество планировочных решений: в наличии квартиры, как классического типа, так и европланировки. Сдаются они без отделки и подчистовой отделкой, высотой потолков 2,99 метра и увеличенными окнами.
В закрытых дворах жилого комплекса «Бунинские кварталы» расположены детские и спортивные площадки, спроектированы места для отдыха. На территории комплекса предусмотрен образовательный центр. На первых этажах домов расположены коммерческие помещения, а для владельцев автомобилей предусмотрен подземный паркинг с прямым доступом на лифте.
ЖК «Бунинские кварталы» расположен в районе Новая Москва. В пешей доступности находятся Ивановский пруд, Потаповские пруды, крытый каток МИЦ «Арена», фитнес клуб, ландшафтный парк «Южное Бутово», магазины, школы и детские сады. Метро «Бунинская Аллея» находится в 10 минутах транспортом.
Жилой комплекс «Бунинские кварталы» это комплексная застройка монолитными домами переменной этажности: от 9 до 19 этажей. Дома отличает выразительная, динамическая пластика фасадов со смещением элементов отделки, сочетание контрастных тонов и большое количество остекления. В дизайнерских входных группах предусмотрены зона ожидания, санузел, лапомойки и места для хранения колясок.
В ЖК «Бунинские кварталы» предложено множество планировочных решений: в наличии квартиры, как классического типа, так и европланировки. Сдаются они без отделки и подчистовой отделкой, высотой потолков 2,99 метра и увеличенными окнами.
В закрытых дворах жилого комплекса «Бунинские кварталы» расположены детские и спортивные площадки, спроектированы места для отдыха. На территории комплекса предусмотрен образовательный центр. На первых этажах домов расположены коммерческие помещения, а для владельцев автомобилей предусмотрен подземный паркинг с прямым доступом на лифте.
ЖК «Бунинские кварталы» расположен в районе Новая Москва. В пешей доступности находятся Ивановский пруд, Потаповские пруды, крытый каток МИЦ «Арена», фитнес клуб, ландшафтный парк «Южное Бутово», магазины, школы и детские сады. Метро «Бунинская Аллея» находится в 10 минутах транспортом.
Жилой квартал «Скандинавия» включает в себя 19 корпусов высотой от 7 до 16 этажей. Навесные вентилируемые фасады светлых оттенков выполнены в лаконичном дизайне.
Из окон открываются виды на зеленые зоны. Квартиры передаются дольщикам без отделки, также в некоторых корпусах застройщик предлагает чистовую отделку на выбор в трех вариантах: «Скандинавское утро», «Классический стиль», «Вечер в Скандинавии».
В состав объекта входят детский сад и школа, а также подземный паркинг. На территории жилого комплекса находится собственный парк для отдыха и спорта с 20 многовековыми дубами. Во дворе расположены прогулочная аллея и выезд на велосипедную дорожку длиной в 15 км. Напротив дома находятся благоустроенные зоны отдыха у ручьев и пруда. Также в составе объекта есть торгово-общественный комплекс, собственная баня у леса и SPA-центр.
Жилой квартал окружен лесными массивами, для жителей предусмотрен собственный выход в Бутовский лесопарк. В пешей доступности находятся продуктовые магазины, спортивные и медицинские центры. В 10 минутах транспортом расположен ТРЦ «МЕГА Тёплый стан», где работают «Ашан» и «Икеа». Выезд на МКАД, а также метро «Тёплый Стан» и «Коммунарка» находится в 20 минутах транспортом.
Жилой квартал «Скандинавия» включает в себя 19 корпусов высотой от 7 до 16 этажей. Навесные вентилируемые фасады светлых оттенков выполнены в лаконичном дизайне.
Из окон открываются виды на зеленые зоны. Квартиры передаются дольщикам без отделки, также в некоторых корпусах застройщик предлагает чистовую отделку на выбор в трех вариантах: «Скандинавское утро», «Классический стиль», «Вечер в Скандинавии».
В состав объекта входят детский сад и школа, а также подземный паркинг. На территории жилого комплекса находится собственный парк для отдыха и спорта с 20 многовековыми дубами. Во дворе расположены прогулочная аллея и выезд на велосипедную дорожку длиной в 15 км. Напротив дома находятся благоустроенные зоны отдыха у ручьев и пруда. Также в составе объекта есть торгово-общественный комплекс, собственная баня у леса и SPA-центр.
Жилой квартал окружен лесными массивами, для жителей предусмотрен собственный выход в Бутовский лесопарк. В пешей доступности находятся продуктовые магазины, спортивные и медицинские центры. В 10 минутах транспортом расположен ТРЦ «МЕГА Тёплый стан», где работают «Ашан» и «Икеа». Выезд на МКАД, а также метро «Тёплый Стан» и «Коммунарка» находится в 20 минутах транспортом.
Жилой квартал «Скандинавия» включает в себя 19 корпусов высотой от 7 до 16 этажей. Навесные вентилируемые фасады светлых оттенков выполнены в лаконичном дизайне.
Из окон открываются виды на зеленые зоны. Квартиры передаются дольщикам без отделки, также в некоторых корпусах застройщик предлагает чистовую отделку на выбор в трех вариантах: «Скандинавское утро», «Классический стиль», «Вечер в Скандинавии».
В состав объекта входят детский сад и школа, а также подземный паркинг. На территории жилого комплекса находится собственный парк для отдыха и спорта с 20 многовековыми дубами. Во дворе расположены прогулочная аллея и выезд на велосипедную дорожку длиной в 15 км. Напротив дома находятся благоустроенные зоны отдыха у ручьев и пруда. Также в составе объекта есть торгово-общественный комплекс, собственная баня у леса и SPA-центр.
Жилой квартал окружен лесными массивами, для жителей предусмотрен собственный выход в Бутовский лесопарк. В пешей доступности находятся продуктовые магазины, спортивные и медицинские центры. В 10 минутах транспортом расположен ТРЦ «МЕГА Тёплый стан», где работают «Ашан» и «Икеа». Выезд на МКАД, а также метро «Тёплый Стан» и «Коммунарка» находится в 20 минутах транспортом.
Жилой квартал «Скандинавия» включает в себя 19 корпусов высотой от 7 до 16 этажей. Навесные вентилируемые фасады светлых оттенков выполнены в лаконичном дизайне.
Из окон открываются виды на зеленые зоны. Квартиры передаются дольщикам без отделки, также в некоторых корпусах застройщик предлагает чистовую отделку на выбор в трех вариантах: «Скандинавское утро», «Классический стиль», «Вечер в Скандинавии».
В состав объекта входят детский сад и школа, а также подземный паркинг. На территории жилого комплекса находится собственный парк для отдыха и спорта с 20 многовековыми дубами. Во дворе расположены прогулочная аллея и выезд на велосипедную дорожку длиной в 15 км. Напротив дома находятся благоустроенные зоны отдыха у ручьев и пруда. Также в составе объекта есть торгово-общественный комплекс, собственная баня у леса и SPA-центр.
Жилой квартал окружен лесными массивами, для жителей предусмотрен собственный выход в Бутовский лесопарк. В пешей доступности находятся продуктовые магазины, спортивные и медицинские центры. В 10 минутах транспортом расположен ТРЦ «МЕГА Тёплый стан», где работают «Ашан» и «Икеа». Выезд на МКАД, а также метро «Тёплый Стан» и «Коммунарка» находится в 20 минутах транспортом.
Жилой комплекс «Деснаречье» — Современный проект, возведенный по технологии кирпично-монолитного строительства с комбинированными фасадами. Первые этажи здания отведены под коммерческие помещения.
В проекте представлено множество планировочных решений — от студий до просторных 4х-комнатных квартир как классических так и европланировок с мастер-спальнями и кладовыми. Все лоты сдаются с базовой отделкой и возможностью дозаказа чистовой, высотой потолков 2,99 метра и увеличенными окнами.
Территория комплекса благоустроена — имеется 3 детских сада и 2 школы, для автовладельцев предусмотрен подземный паркинг.
Жилой комплекс «Деснаречье» расположен в районе с хорошо развитой инфраструктурой — в пешей доступности имеется все необходимое: продовольственные магазины, аптеки, медицинские и образовательные учреждения, места для прогулок и отдыха.
Жилой комплекс «Деснаречье» — Современный проект, возведенный по технологии кирпично-монолитного строительства с комбинированными фасадами. Первые этажи здания отведены под коммерческие помещения.
В проекте представлено множество планировочных решений — от студий до просторных 4х-комнатных квартир как классических так и европланировок с мастер-спальнями и кладовыми. Все лоты сдаются с базовой отделкой и возможностью дозаказа чистовой, высотой потолков 2,99 метра и увеличенными окнами.
Территория комплекса благоустроена — имеется 3 детских сада и 2 школы, для автовладельцев предусмотрен подземный паркинг.
Жилой комплекс «Деснаречье» расположен в районе с хорошо развитой инфраструктурой — в пешей доступности имеется все необходимое: продовольственные магазины, аптеки, медицинские и образовательные учреждения, места для прогулок и отдыха.
Жилой комплекс «Деснаречье» — Современный проект, возведенный по технологии кирпично-монолитного строительства с комбинированными фасадами. Первые этажи здания отведены под коммерческие помещения.
В проекте представлено множество планировочных решений — от студий до просторных 4х-комнатных квартир как классических так и европланировок с мастер-спальнями и кладовыми. Все лоты сдаются с базовой отделкой и возможностью дозаказа чистовой, высотой потолков 2,99 метра и увеличенными окнами.
Территория комплекса благоустроена — имеется 3 детских сада и 2 школы, для автовладельцев предусмотрен подземный паркинг.
Жилой комплекс «Деснаречье» расположен в районе с хорошо развитой инфраструктурой — в пешей доступности имеется все необходимое: продовольственные магазины, аптеки, медицинские и образовательные учреждения, места для прогулок и отдыха.
Жилой комплекс «Деснаречье» — Современный проект, возведенный по технологии кирпично-монолитного строительства с комбинированными фасадами. Первые этажи здания отведены под коммерческие помещения.
В проекте представлено множество планировочных решений — от студий до просторных 4х-комнатных квартир как классических так и европланировок с мастер-спальнями и кладовыми. Все лоты сдаются с базовой отделкой и возможностью дозаказа чистовой, высотой потолков 2,99 метра и увеличенными окнами.
Территория комплекса благоустроена — имеется 3 детских сада и 2 школы, для автовладельцев предусмотрен подземный паркинг.
Жилой комплекс «Деснаречье» расположен в районе с хорошо развитой инфраструктурой — в пешей доступности имеется все необходимое: продовольственные магазины, аптеки, медицинские и образовательные учреждения, места для прогулок и отдыха.
Жилой комплекс «Деснаречье» — Современный проект, возведенный по технологии кирпично-монолитного строительства с комбинированными фасадами. Первые этажи здания отведены под коммерческие помещения.
В проекте представлено множество планировочных решений — от студий до просторных 4х-комнатных квартир как классических так и европланировок с мастер-спальнями и кладовыми. Все лоты сдаются с базовой отделкой и возможностью дозаказа чистовой, высотой потолков 2,99 метра и увеличенными окнами.
Территория комплекса благоустроена — имеется 3 детских сада и 2 школы, для автовладельцев предусмотрен подземный паркинг.
Жилой комплекс «Деснаречье» расположен в районе с хорошо развитой инфраструктурой — в пешей доступности имеется все необходимое: продовольственные магазины, аптеки, медицинские и образовательные учреждения, места для прогулок и отдыха.
Жилой комплекс «Деснаречье» — Современный проект, возведенный по технологии кирпично-монолитного строительства с комбинированными фасадами. Первые этажи здания отведены под коммерческие помещения.
В проекте представлено множество планировочных решений — от студий до просторных 4х-комнатных квартир как классических так и европланировок с мастер-спальнями и кладовыми. Все лоты сдаются с базовой отделкой и возможностью дозаказа чистовой, высотой потолков 2,99 метра и увеличенными окнами.
Территория комплекса благоустроена — имеется 3 детских сада и 2 школы, для автовладельцев предусмотрен подземный паркинг.
Жилой комплекс «Деснаречье» расположен в районе с хорошо развитой инфраструктурой — в пешей доступности имеется все необходимое: продовольственные магазины, аптеки, медицинские и образовательные учреждения, места для прогулок и отдыха.
Жилой комплекс «Деснаречье» — Современный проект, возведенный по технологии кирпично-монолитного строительства с комбинированными фасадами. Первые этажи здания отведены под коммерческие помещения.
В проекте представлено множество планировочных решений — от студий до просторных 4х-комнатных квартир как классических так и европланировок с мастер-спальнями и кладовыми. Все лоты сдаются с базовой отделкой и возможностью дозаказа чистовой, высотой потолков 2,99 метра и увеличенными окнами.
Территория комплекса благоустроена — имеется 3 детских сада и 2 школы, для автовладельцев предусмотрен подземный паркинг.
Жилой комплекс «Деснаречье» расположен в районе с хорошо развитой инфраструктурой — в пешей доступности имеется все необходимое: продовольственные магазины, аптеки, медицинские и образовательные учреждения, места для прогулок и отдыха.
Жилой комплекс «Деснаречье» — Современный проект, возведенный по технологии кирпично-монолитного строительства с комбинированными фасадами. Первые этажи здания отведены под коммерческие помещения.
В проекте представлено множество планировочных решений — от студий до просторных 4х-комнатных квартир как классических так и европланировок с мастер-спальнями и кладовыми. Все лоты сдаются с базовой отделкой и возможностью дозаказа чистовой, высотой потолков 2,99 метра и увеличенными окнами.
Территория комплекса благоустроена — имеется 3 детских сада и 2 школы, для автовладельцев предусмотрен подземный паркинг.
Жилой комплекс «Деснаречье» расположен в районе с хорошо развитой инфраструктурой — в пешей доступности имеется все необходимое: продовольственные магазины, аптеки, медицинские и образовательные учреждения, места для прогулок и отдыха.
Жилой комплекс «Деснаречье» — Современный проект, возведенный по технологии кирпично-монолитного строительства с комбинированными фасадами. Первые этажи здания отведены под коммерческие помещения.
В проекте представлено множество планировочных решений — от студий до просторных 4х-комнатных квартир как классических так и европланировок с мастер-спальнями и кладовыми. Все лоты сдаются с базовой отделкой и возможностью дозаказа чистовой, высотой потолков 2,99 метра и увеличенными окнами.
Территория комплекса благоустроена — имеется 3 детских сада и 2 школы, для автовладельцев предусмотрен подземный паркинг.
Жилой комплекс «Деснаречье» расположен в районе с хорошо развитой инфраструктурой — в пешей доступности имеется все необходимое: продовольственные магазины, аптеки, медицинские и образовательные учреждения, места для прогулок и отдыха.
Жилой комплекс «Деснаречье» — Современный проект, возведенный по технологии кирпично-монолитного строительства с комбинированными фасадами. Первые этажи здания отведены под коммерческие помещения.
В проекте представлено множество планировочных решений — от студий до просторных 4х-комнатных квартир как классических так и европланировок с мастер-спальнями и кладовыми. Все лоты сдаются с базовой отделкой и возможностью дозаказа чистовой, высотой потолков 2,99 метра и увеличенными окнами.
Территория комплекса благоустроена — имеется 3 детских сада и 2 школы, для автовладельцев предусмотрен подземный паркинг.
Жилой комплекс «Деснаречье» расположен в районе с хорошо развитой инфраструктурой — в пешей доступности имеется все необходимое: продовольственные магазины, аптеки, медицинские и образовательные учреждения, места для прогулок и отдыха.
Жилой комплекс «Деснаречье» — Современный проект, возведенный по технологии кирпично-монолитного строительства с комбинированными фасадами. Первые этажи здания отведены под коммерческие помещения.
В проекте представлено множество планировочных решений — от студий до просторных 4х-комнатных квартир как классических так и европланировок с мастер-спальнями и кладовыми. Все лоты сдаются с базовой отделкой и возможностью дозаказа чистовой, высотой потолков 2,99 метра и увеличенными окнами.
Территория комплекса благоустроена — имеется 3 детских сада и 2 школы, для автовладельцев предусмотрен подземный паркинг.
Жилой комплекс «Деснаречье» расположен в районе с хорошо развитой инфраструктурой — в пешей доступности имеется все необходимое: продовольственные магазины, аптеки, медицинские и образовательные учреждения, места для прогулок и отдыха.
Жилой комплекс «Деснаречье» — Современный проект, возведенный по технологии кирпично-монолитного строительства с комбинированными фасадами. Первые этажи здания отведены под коммерческие помещения.
В проекте представлено множество планировочных решений — от студий до просторных 4х-комнатных квартир как классических так и европланировок с мастер-спальнями и кладовыми. Все лоты сдаются с базовой отделкой и возможностью дозаказа чистовой, высотой потолков 2,99 метра и увеличенными окнами.
Территория комплекса благоустроена — имеется 3 детских сада и 2 школы, для автовладельцев предусмотрен подземный паркинг.
Жилой комплекс «Деснаречье» расположен в районе с хорошо развитой инфраструктурой — в пешей доступности имеется все необходимое: продовольственные магазины, аптеки, медицинские и образовательные учреждения, места для прогулок и отдыха.
Жилой комплекс «Деснаречье» — Современный проект, возведенный по технологии кирпично-монолитного строительства с комбинированными фасадами. Первые этажи здания отведены под коммерческие помещения.
В проекте представлено множество планировочных решений — от студий до просторных 4х-комнатных квартир как классических так и европланировок с мастер-спальнями и кладовыми. Все лоты сдаются с базовой отделкой и возможностью дозаказа чистовой, высотой потолков 2,99 метра и увеличенными окнами.
Территория комплекса благоустроена — имеется 3 детских сада и 2 школы, для автовладельцев предусмотрен подземный паркинг.
Жилой комплекс «Деснаречье» расположен в районе с хорошо развитой инфраструктурой — в пешей доступности имеется все необходимое: продовольственные магазины, аптеки, медицинские и образовательные учреждения, места для прогулок и отдыха.
Жилой комплекс «Деснаречье» — Современный проект, возведенный по технологии кирпично-монолитного строительства с комбинированными фасадами. Первые этажи здания отведены под коммерческие помещения.
В проекте представлено множество планировочных решений — от студий до просторных 4х-комнатных квартир как классических так и европланировок с мастер-спальнями и кладовыми. Все лоты сдаются с базовой отделкой и возможностью дозаказа чистовой, высотой потолков 2,99 метра и увеличенными окнами.
Территория комплекса благоустроена — имеется 3 детских сада и 2 школы, для автовладельцев предусмотрен подземный паркинг.
Жилой комплекс «Деснаречье» расположен в районе с хорошо развитой инфраструктурой — в пешей доступности имеется все необходимое: продовольственные магазины, аптеки, медицинские и образовательные учреждения, места для прогулок и отдыха.
Жилой комплекс «Деснаречье» — Современный проект, возведенный по технологии кирпично-монолитного строительства с комбинированными фасадами. Первые этажи здания отведены под коммерческие помещения.
В проекте представлено множество планировочных решений — от студий до просторных 4х-комнатных квартир как классических так и европланировок с мастер-спальнями и кладовыми. Все лоты сдаются с базовой отделкой и возможностью дозаказа чистовой, высотой потолков 2,99 метра и увеличенными окнами.
Территория комплекса благоустроена — имеется 3 детских сада и 2 школы, для автовладельцев предусмотрен подземный паркинг.
Жилой комплекс «Деснаречье» расположен в районе с хорошо развитой инфраструктурой — в пешей доступности имеется все необходимое: продовольственные магазины, аптеки, медицинские и образовательные учреждения, места для прогулок и отдыха.

