











Жилой комплекс состоит из 12 разноэтажных секций высотой до 23 этажей и выполнен в стиле современного американского традиционализма. Трехчастный фасад облицован натуральным камнем, кирпичом, металлом и архитектурным бетоном. Центральный элемент ансамбля — выразительная 23-этажная башня. Ее обрамляют две симметричные невысокие секции, замыкающие квартал. В комплексе спроектировано одноэтажное парадное лобби с зоной ресепшн, большими витражами, переговорными комнатами, зеленой террасой на крыше и большим навесом, ведущим до места остановки такси. Весь первый этаж дома спроектирован как клуб для жителей, где можно встретить гостей, поработать, отдохнуть в тишине и поиграть с детьми. На крыше лобби спроектированы общественные террасы с зимним садом и чайной. В вестибюле будут работать консьерж-сервис, игровая, рядом с главным лобби размещена детская комната. А со стороны двора общественная гостиная — помещение для мероприятий с кухней и санузлом. Подъезды — сквозные, без ступеней, с высокими и прозрачными входными группами, с домофоном в теплом тамбуре. На первом этаже каждой секции предусмотрены колясочные, а уровнем ниже размещены техпомещения с креплениями для велосипедов.
В комплексе предложен широкий выбор планировочных решений: в наличии квартиры как классического типа, так и европланировки. Есть и уникальные форматы: двухуровневые квартиры, квартиры с видовыми террасами и пентхаусы. Все квартиры сдаются с подчистовой отделкой.
Комплекс имеет два приватных двора. Первый — гостевой, с зонами для отдыха под открытым небом. Второй — более традиционный, с детскими, игровыми и спортивными площадками. На эксплуатируемых кровлях размещены общественные пространства. В инфраструктуру проекта входят 2 павильона с кафетерием и детским клубом, фитнес-студия, ресторан и винотека. Для владельцев автомобилей в комплексе предусмотрен подземный паркинг.
Жилой комплекс находится в Даниловском районе, на Дубнинской улице, в 20 минутах пешком от метро «Павелецкая».

Жилой комплекс включает в себя 7 корпусов переменной этажности высотой от 4 до 17 этажей. В домах спроектированы прозрачные входные группы. Входы сделаны без ступеней и расположены на уровне земли. Предусмотрены сквозные подъезды, которые связывают улицу и двор. В каждом подъезде на первых этажах есть просторные колясочные.
В проекте предложено множество планировочных решений: в наличии квартиры как классического типа, так и европланировки. Доступны также эксклюзивные лоты: двухуровневые квартиры со вторым светом, квартиры с отдельным входом с улицы, квартиры с террасами на кровле. Во всех вариантах планировок предусмотрены увеличенные окна, теплые лоджии и балконы. Квартиры сдаются с подчистовой отделкой. Высота потолков составляет от 2,7 до 4 метров.
Инфраструктура комплекса включает в себя общеобразовательную школу, рассчитанную на 1675 учащихся, детский сад на 210 мест, торговый центр, а также предприятия услуг и офисные помещения, расположенные на первых этажах зданий. Каждый дом в квартале имеет закрытый благоустроенный двор, где созданы современные детские и спортивные площадки с игровыми модулями. Здесь есть лазалки, скалодром, качели, лабиринты, пружинки, батут и песочница. Для спокойного отдыха предусмотрены беседки-перголы. Также имеется большой спортивный корт для игры в баскетбол с мягким покрытием. Безопасность обеспечивают камеры видеонаблюдения и охрана, а доступ на территорию осуществляется с помощью магнитных ключей. В центре квартала находится парк с сетью небольших прудов, островами и аккуратными тропинками. Для детей здесь предусмотрена игровая площадка с природной тематикой, а для любителей спорта — воркаут. В мобильном павильоне расположены кофейня и коворкинг. По периметру парка работают кафе с летними верандами. Для владельцев автомобилей предусмотрены подземный паркинг и открытые стоянки.
Жилой комплекс находится в Ленинском районе Московской области в 6 микрорайоне города Видное. В районе уже сформированная инфраструктура: торговые центры, продуктовые магазины, аптеки, кафе, поликлиники, детские центры и другие повседневные сервисы в шаговой доступности. Рядом находится конечная остановка общественного транспорта, с которой можно доехать до метро — «Домодедовская», «Аннино», «Царицыно», и железнодорожной станции «Расторгуево» за 20 минут, откуда за 25 минут можно добраться до Павелецкого вокзала в центре Москвы.
Жилой комплекс включает в себя 7 корпусов переменной этажности высотой от 4 до 17 этажей. В домах спроектированы прозрачные входные группы. Входы сделаны без ступеней и расположены на уровне земли. Предусмотрены сквозные подъезды, которые связывают улицу и двор. В каждом подъезде на первых этажах есть просторные колясочные.
В проекте предложено множество планировочных решений: в наличии квартиры как классического типа, так и европланировки. Доступны также эксклюзивные лоты: двухуровневые квартиры со вторым светом, квартиры с отдельным входом с улицы, квартиры с террасами на кровле. Во всех вариантах планировок предусмотрены увеличенные окна, теплые лоджии и балконы. Квартиры сдаются с подчистовой отделкой. Высота потолков составляет от 2,7 до 4 метров.
Инфраструктура комплекса включает в себя общеобразовательную школу, рассчитанную на 1675 учащихся, детский сад на 210 мест, торговый центр, а также предприятия услуг и офисные помещения, расположенные на первых этажах зданий. Каждый дом в квартале имеет закрытый благоустроенный двор, где созданы современные детские и спортивные площадки с игровыми модулями. Здесь есть лазалки, скалодром, качели, лабиринты, пружинки, батут и песочница. Для спокойного отдыха предусмотрены беседки-перголы. Также имеется большой спортивный корт для игры в баскетбол с мягким покрытием. Безопасность обеспечивают камеры видеонаблюдения и охрана, а доступ на территорию осуществляется с помощью магнитных ключей. В центре квартала находится парк с сетью небольших прудов, островами и аккуратными тропинками. Для детей здесь предусмотрена игровая площадка с природной тематикой, а для любителей спорта — воркаут. В мобильном павильоне расположены кофейня и коворкинг. По периметру парка работают кафе с летними верандами. Для владельцев автомобилей предусмотрены подземный паркинг и открытые стоянки.
Жилой комплекс находится в Ленинском районе Московской области в 6 микрорайоне города Видное. В районе уже сформированная инфраструктура: торговые центры, продуктовые магазины, аптеки, кафе, поликлиники, детские центры и другие повседневные сервисы в шаговой доступности. Рядом находится конечная остановка общественного транспорта, с которой можно доехать до метро — «Домодедовская», «Аннино», «Царицыно», и железнодорожной станции «Расторгуево» за 20 минут, откуда за 25 минут можно добраться до Павелецкого вокзала в центре Москвы.
Жилой комплекс включает в себя 7 корпусов переменной этажности высотой от 4 до 17 этажей. В домах спроектированы прозрачные входные группы. Входы сделаны без ступеней и расположены на уровне земли. Предусмотрены сквозные подъезды, которые связывают улицу и двор. В каждом подъезде на первых этажах есть просторные колясочные.
В проекте предложено множество планировочных решений: в наличии квартиры как классического типа, так и европланировки. Доступны также эксклюзивные лоты: двухуровневые квартиры со вторым светом, квартиры с отдельным входом с улицы, квартиры с террасами на кровле. Во всех вариантах планировок предусмотрены увеличенные окна, теплые лоджии и балконы. Квартиры сдаются с подчистовой отделкой. Высота потолков составляет от 2,7 до 4 метров.
Инфраструктура комплекса включает в себя общеобразовательную школу, рассчитанную на 1675 учащихся, детский сад на 210 мест, торговый центр, а также предприятия услуг и офисные помещения, расположенные на первых этажах зданий. Каждый дом в квартале имеет закрытый благоустроенный двор, где созданы современные детские и спортивные площадки с игровыми модулями. Здесь есть лазалки, скалодром, качели, лабиринты, пружинки, батут и песочница. Для спокойного отдыха предусмотрены беседки-перголы. Также имеется большой спортивный корт для игры в баскетбол с мягким покрытием. Безопасность обеспечивают камеры видеонаблюдения и охрана, а доступ на территорию осуществляется с помощью магнитных ключей. В центре квартала находится парк с сетью небольших прудов, островами и аккуратными тропинками. Для детей здесь предусмотрена игровая площадка с природной тематикой, а для любителей спорта — воркаут. В мобильном павильоне расположены кофейня и коворкинг. По периметру парка работают кафе с летними верандами. Для владельцев автомобилей предусмотрены подземный паркинг и открытые стоянки.
Жилой комплекс находится в Ленинском районе Московской области в 6 микрорайоне города Видное. В районе уже сформированная инфраструктура: торговые центры, продуктовые магазины, аптеки, кафе, поликлиники, детские центры и другие повседневные сервисы в шаговой доступности. Рядом находится конечная остановка общественного транспорта, с которой можно доехать до метро — «Домодедовская», «Аннино», «Царицыно», и железнодорожной станции «Расторгуево» за 20 минут, откуда за 25 минут можно добраться до Павелецкого вокзала в центре Москвы.
Жилой комплекс включает в себя 7 корпусов переменной этажности высотой от 4 до 17 этажей. В домах спроектированы прозрачные входные группы. Входы сделаны без ступеней и расположены на уровне земли. Предусмотрены сквозные подъезды, которые связывают улицу и двор. В каждом подъезде на первых этажах есть просторные колясочные.
В проекте предложено множество планировочных решений: в наличии квартиры как классического типа, так и европланировки. Доступны также эксклюзивные лоты: двухуровневые квартиры со вторым светом, квартиры с отдельным входом с улицы, квартиры с террасами на кровле. Во всех вариантах планировок предусмотрены увеличенные окна, теплые лоджии и балконы. Квартиры сдаются с подчистовой отделкой. Высота потолков составляет от 2,7 до 4 метров.
Инфраструктура комплекса включает в себя общеобразовательную школу, рассчитанную на 1675 учащихся, детский сад на 210 мест, торговый центр, а также предприятия услуг и офисные помещения, расположенные на первых этажах зданий. Каждый дом в квартале имеет закрытый благоустроенный двор, где созданы современные детские и спортивные площадки с игровыми модулями. Здесь есть лазалки, скалодром, качели, лабиринты, пружинки, батут и песочница. Для спокойного отдыха предусмотрены беседки-перголы. Также имеется большой спортивный корт для игры в баскетбол с мягким покрытием. Безопасность обеспечивают камеры видеонаблюдения и охрана, а доступ на территорию осуществляется с помощью магнитных ключей. В центре квартала находится парк с сетью небольших прудов, островами и аккуратными тропинками. Для детей здесь предусмотрена игровая площадка с природной тематикой, а для любителей спорта — воркаут. В мобильном павильоне расположены кофейня и коворкинг. По периметру парка работают кафе с летними верандами. Для владельцев автомобилей предусмотрены подземный паркинг и открытые стоянки.
Жилой комплекс находится в Ленинском районе Московской области в 6 микрорайоне города Видное. В районе уже сформированная инфраструктура: торговые центры, продуктовые магазины, аптеки, кафе, поликлиники, детские центры и другие повседневные сервисы в шаговой доступности. Рядом находится конечная остановка общественного транспорта, с которой можно доехать до метро — «Домодедовская», «Аннино», «Царицыно», и железнодорожной станции «Расторгуево» за 20 минут, откуда за 25 минут можно добраться до Павелецкого вокзала в центре Москвы.
Жилой комплекс включает в себя 7 корпусов переменной этажности высотой от 4 до 17 этажей. В домах спроектированы прозрачные входные группы. Входы сделаны без ступеней и расположены на уровне земли. Предусмотрены сквозные подъезды, которые связывают улицу и двор. В каждом подъезде на первых этажах есть просторные колясочные.
В проекте предложено множество планировочных решений: в наличии квартиры как классического типа, так и европланировки. Доступны также эксклюзивные лоты: двухуровневые квартиры со вторым светом, квартиры с отдельным входом с улицы, квартиры с террасами на кровле. Во всех вариантах планировок предусмотрены увеличенные окна, теплые лоджии и балконы. Квартиры сдаются с подчистовой отделкой. Высота потолков составляет от 2,7 до 4 метров.
Инфраструктура комплекса включает в себя общеобразовательную школу, рассчитанную на 1675 учащихся, детский сад на 210 мест, торговый центр, а также предприятия услуг и офисные помещения, расположенные на первых этажах зданий. Каждый дом в квартале имеет закрытый благоустроенный двор, где созданы современные детские и спортивные площадки с игровыми модулями. Здесь есть лазалки, скалодром, качели, лабиринты, пружинки, батут и песочница. Для спокойного отдыха предусмотрены беседки-перголы. Также имеется большой спортивный корт для игры в баскетбол с мягким покрытием. Безопасность обеспечивают камеры видеонаблюдения и охрана, а доступ на территорию осуществляется с помощью магнитных ключей. В центре квартала находится парк с сетью небольших прудов, островами и аккуратными тропинками. Для детей здесь предусмотрена игровая площадка с природной тематикой, а для любителей спорта — воркаут. В мобильном павильоне расположены кофейня и коворкинг. По периметру парка работают кафе с летними верандами. Для владельцев автомобилей предусмотрены подземный паркинг и открытые стоянки.
Жилой комплекс находится в Ленинском районе Московской области в 6 микрорайоне города Видное. В районе уже сформированная инфраструктура: торговые центры, продуктовые магазины, аптеки, кафе, поликлиники, детские центры и другие повседневные сервисы в шаговой доступности. Рядом находится конечная остановка общественного транспорта, с которой можно доехать до метро — «Домодедовская», «Аннино», «Царицыно», и железнодорожной станции «Расторгуево» за 20 минут, откуда за 25 минут можно добраться до Павелецкого вокзала в центре Москвы.
Жилой комплекс включает в себя 7 корпусов переменной этажности высотой от 4 до 17 этажей. В домах спроектированы прозрачные входные группы. Входы сделаны без ступеней и расположены на уровне земли. Предусмотрены сквозные подъезды, которые связывают улицу и двор. В каждом подъезде на первых этажах есть просторные колясочные.
В проекте предложено множество планировочных решений: в наличии квартиры как классического типа, так и европланировки. Доступны также эксклюзивные лоты: двухуровневые квартиры со вторым светом, квартиры с отдельным входом с улицы, квартиры с террасами на кровле. Во всех вариантах планировок предусмотрены увеличенные окна, теплые лоджии и балконы. Квартиры сдаются с подчистовой отделкой. Высота потолков составляет от 2,7 до 4 метров.
Инфраструктура комплекса включает в себя общеобразовательную школу, рассчитанную на 1675 учащихся, детский сад на 210 мест, торговый центр, а также предприятия услуг и офисные помещения, расположенные на первых этажах зданий. Каждый дом в квартале имеет закрытый благоустроенный двор, где созданы современные детские и спортивные площадки с игровыми модулями. Здесь есть лазалки, скалодром, качели, лабиринты, пружинки, батут и песочница. Для спокойного отдыха предусмотрены беседки-перголы. Также имеется большой спортивный корт для игры в баскетбол с мягким покрытием. Безопасность обеспечивают камеры видеонаблюдения и охрана, а доступ на территорию осуществляется с помощью магнитных ключей. В центре квартала находится парк с сетью небольших прудов, островами и аккуратными тропинками. Для детей здесь предусмотрена игровая площадка с природной тематикой, а для любителей спорта — воркаут. В мобильном павильоне расположены кофейня и коворкинг. По периметру парка работают кафе с летними верандами. Для владельцев автомобилей предусмотрены подземный паркинг и открытые стоянки.
Жилой комплекс находится в Ленинском районе Московской области в 6 микрорайоне города Видное. В районе уже сформированная инфраструктура: торговые центры, продуктовые магазины, аптеки, кафе, поликлиники, детские центры и другие повседневные сервисы в шаговой доступности. Рядом находится конечная остановка общественного транспорта, с которой можно доехать до метро — «Домодедовская», «Аннино», «Царицыно», и железнодорожной станции «Расторгуево» за 20 минут, откуда за 25 минут можно добраться до Павелецкого вокзала в центре Москвы.
Жилой комплекс включает в себя 7 корпусов переменной этажности высотой от 4 до 17 этажей. В домах спроектированы прозрачные входные группы. Входы сделаны без ступеней и расположены на уровне земли. Предусмотрены сквозные подъезды, которые связывают улицу и двор. В каждом подъезде на первых этажах есть просторные колясочные.
В проекте предложено множество планировочных решений: в наличии квартиры как классического типа, так и европланировки. Доступны также эксклюзивные лоты: двухуровневые квартиры со вторым светом, квартиры с отдельным входом с улицы, квартиры с террасами на кровле. Во всех вариантах планировок предусмотрены увеличенные окна, теплые лоджии и балконы. Квартиры сдаются с подчистовой отделкой. Высота потолков составляет от 2,7 до 4 метров.
Инфраструктура комплекса включает в себя общеобразовательную школу, рассчитанную на 1675 учащихся, детский сад на 210 мест, торговый центр, а также предприятия услуг и офисные помещения, расположенные на первых этажах зданий. Каждый дом в квартале имеет закрытый благоустроенный двор, где созданы современные детские и спортивные площадки с игровыми модулями. Здесь есть лазалки, скалодром, качели, лабиринты, пружинки, батут и песочница. Для спокойного отдыха предусмотрены беседки-перголы. Также имеется большой спортивный корт для игры в баскетбол с мягким покрытием. Безопасность обеспечивают камеры видеонаблюдения и охрана, а доступ на территорию осуществляется с помощью магнитных ключей. В центре квартала находится парк с сетью небольших прудов, островами и аккуратными тропинками. Для детей здесь предусмотрена игровая площадка с природной тематикой, а для любителей спорта — воркаут. В мобильном павильоне расположены кофейня и коворкинг. По периметру парка работают кафе с летними верандами. Для владельцев автомобилей предусмотрены подземный паркинг и открытые стоянки.
Жилой комплекс находится в Ленинском районе Московской области в 6 микрорайоне города Видное. В районе уже сформированная инфраструктура: торговые центры, продуктовые магазины, аптеки, кафе, поликлиники, детские центры и другие повседневные сервисы в шаговой доступности. Рядом находится конечная остановка общественного транспорта, с которой можно доехать до метро — «Домодедовская», «Аннино», «Царицыно», и железнодорожной станции «Расторгуево» за 20 минут, откуда за 25 минут можно добраться до Павелецкого вокзала в центре Москвы.
Жилой комплекс включает в себя 7 корпусов переменной этажности высотой от 4 до 17 этажей. В домах спроектированы прозрачные входные группы. Входы сделаны без ступеней и расположены на уровне земли. Предусмотрены сквозные подъезды, которые связывают улицу и двор. В каждом подъезде на первых этажах есть просторные колясочные.
В проекте предложено множество планировочных решений: в наличии квартиры как классического типа, так и европланировки. Доступны также эксклюзивные лоты: двухуровневые квартиры со вторым светом, квартиры с отдельным входом с улицы, квартиры с террасами на кровле. Во всех вариантах планировок предусмотрены увеличенные окна, теплые лоджии и балконы. Квартиры сдаются с подчистовой отделкой. Высота потолков составляет от 2,7 до 4 метров.
Инфраструктура комплекса включает в себя общеобразовательную школу, рассчитанную на 1675 учащихся, детский сад на 210 мест, торговый центр, а также предприятия услуг и офисные помещения, расположенные на первых этажах зданий. Каждый дом в квартале имеет закрытый благоустроенный двор, где созданы современные детские и спортивные площадки с игровыми модулями. Здесь есть лазалки, скалодром, качели, лабиринты, пружинки, батут и песочница. Для спокойного отдыха предусмотрены беседки-перголы. Также имеется большой спортивный корт для игры в баскетбол с мягким покрытием. Безопасность обеспечивают камеры видеонаблюдения и охрана, а доступ на территорию осуществляется с помощью магнитных ключей. В центре квартала находится парк с сетью небольших прудов, островами и аккуратными тропинками. Для детей здесь предусмотрена игровая площадка с природной тематикой, а для любителей спорта — воркаут. В мобильном павильоне расположены кофейня и коворкинг. По периметру парка работают кафе с летними верандами. Для владельцев автомобилей предусмотрены подземный паркинг и открытые стоянки.
Жилой комплекс находится в Ленинском районе Московской области в 6 микрорайоне города Видное. В районе уже сформированная инфраструктура: торговые центры, продуктовые магазины, аптеки, кафе, поликлиники, детские центры и другие повседневные сервисы в шаговой доступности. Рядом находится конечная остановка общественного транспорта, с которой можно доехать до метро — «Домодедовская», «Аннино», «Царицыно», и железнодорожной станции «Расторгуево» за 20 минут, откуда за 25 минут можно добраться до Павелецкого вокзала в центре Москвы.
Жилой комплекс включает в себя 7 корпусов переменной этажности высотой от 4 до 17 этажей. В домах спроектированы прозрачные входные группы. Входы сделаны без ступеней и расположены на уровне земли. Предусмотрены сквозные подъезды, которые связывают улицу и двор. В каждом подъезде на первых этажах есть просторные колясочные.
В проекте предложено множество планировочных решений: в наличии квартиры как классического типа, так и европланировки. Доступны также эксклюзивные лоты: двухуровневые квартиры со вторым светом, квартиры с отдельным входом с улицы, квартиры с террасами на кровле. Во всех вариантах планировок предусмотрены увеличенные окна, теплые лоджии и балконы. Квартиры сдаются с подчистовой отделкой. Высота потолков составляет от 2,7 до 4 метров.
Инфраструктура комплекса включает в себя общеобразовательную школу, рассчитанную на 1675 учащихся, детский сад на 210 мест, торговый центр, а также предприятия услуг и офисные помещения, расположенные на первых этажах зданий. Каждый дом в квартале имеет закрытый благоустроенный двор, где созданы современные детские и спортивные площадки с игровыми модулями. Здесь есть лазалки, скалодром, качели, лабиринты, пружинки, батут и песочница. Для спокойного отдыха предусмотрены беседки-перголы. Также имеется большой спортивный корт для игры в баскетбол с мягким покрытием. Безопасность обеспечивают камеры видеонаблюдения и охрана, а доступ на территорию осуществляется с помощью магнитных ключей. В центре квартала находится парк с сетью небольших прудов, островами и аккуратными тропинками. Для детей здесь предусмотрена игровая площадка с природной тематикой, а для любителей спорта — воркаут. В мобильном павильоне расположены кофейня и коворкинг. По периметру парка работают кафе с летними верандами. Для владельцев автомобилей предусмотрены подземный паркинг и открытые стоянки.
Жилой комплекс находится в Ленинском районе Московской области в 6 микрорайоне города Видное. В районе уже сформированная инфраструктура: торговые центры, продуктовые магазины, аптеки, кафе, поликлиники, детские центры и другие повседневные сервисы в шаговой доступности. Рядом находится конечная остановка общественного транспорта, с которой можно доехать до метро — «Домодедовская», «Аннино», «Царицыно», и железнодорожной станции «Расторгуево» за 20 минут, откуда за 25 минут можно добраться до Павелецкого вокзала в центре Москвы.
Жилой комплекс включает в себя 7 корпусов переменной этажности высотой от 4 до 17 этажей. В домах спроектированы прозрачные входные группы. Входы сделаны без ступеней и расположены на уровне земли. Предусмотрены сквозные подъезды, которые связывают улицу и двор. В каждом подъезде на первых этажах есть просторные колясочные.
В проекте предложено множество планировочных решений: в наличии квартиры как классического типа, так и европланировки. Доступны также эксклюзивные лоты: двухуровневые квартиры со вторым светом, квартиры с отдельным входом с улицы, квартиры с террасами на кровле. Во всех вариантах планировок предусмотрены увеличенные окна, теплые лоджии и балконы. Квартиры сдаются с подчистовой отделкой. Высота потолков составляет от 2,7 до 4 метров.
Инфраструктура комплекса включает в себя общеобразовательную школу, рассчитанную на 1675 учащихся, детский сад на 210 мест, торговый центр, а также предприятия услуг и офисные помещения, расположенные на первых этажах зданий. Каждый дом в квартале имеет закрытый благоустроенный двор, где созданы современные детские и спортивные площадки с игровыми модулями. Здесь есть лазалки, скалодром, качели, лабиринты, пружинки, батут и песочница. Для спокойного отдыха предусмотрены беседки-перголы. Также имеется большой спортивный корт для игры в баскетбол с мягким покрытием. Безопасность обеспечивают камеры видеонаблюдения и охрана, а доступ на территорию осуществляется с помощью магнитных ключей. В центре квартала находится парк с сетью небольших прудов, островами и аккуратными тропинками. Для детей здесь предусмотрена игровая площадка с природной тематикой, а для любителей спорта — воркаут. В мобильном павильоне расположены кофейня и коворкинг. По периметру парка работают кафе с летними верандами. Для владельцев автомобилей предусмотрены подземный паркинг и открытые стоянки.
Жилой комплекс находится в Ленинском районе Московской области в 6 микрорайоне города Видное. В районе уже сформированная инфраструктура: торговые центры, продуктовые магазины, аптеки, кафе, поликлиники, детские центры и другие повседневные сервисы в шаговой доступности. Рядом находится конечная остановка общественного транспорта, с которой можно доехать до метро — «Домодедовская», «Аннино», «Царицыно», и железнодорожной станции «Расторгуево» за 20 минут, откуда за 25 минут можно добраться до Павелецкого вокзала в центре Москвы.
Жилой комплекс состоит из 5 корпусов высотой от 2 до 45 этажей̆ и спроектирован как «город в миниатюре» — с площадями и цепочкой бульваров, с городским сквером, офисно-деловым и торговым центрами. Со стороны Огородного проезда спроектирован торговый променад, между офисным центром и жилыми группами — зеленая улица, переходящая в систему небольших площадей. На бульварах размещены управляющая компания, консьерж-служба, медицинский центр и соседское комьюнити. В домах предусмотрены светлые лобби без ступеней, высокие и прозрачные входные группы, домофон в теплом тамбуре, понятная навигация в холле и на этажах и установлены большие бесшумные лифты KOYO. Управлять жилым кварталом будет собственная компания застройщика.
В проекте предложено 50 вариантов планировочных решений. На первых и последних этажах — уникальные форматы: с террасами, отдельным входом, двухуровневые. Их всего 126. На последних этажах башен предложены квартиры со вторым светом, несколькими террасами, бассейном, сауной, дымоходом под камин, помещениями под зимний сад. Все квартиры сдаются с подчистовой отделкой.
Пространство дворов спроектировано в стиле пэчворк, с каменными садами. взрослыми деревьями и кустарниками. Современные детские площадки, размещённые на территории комплекса, были разработаны совместно с психологами. Для жителей первой очереди на крыше торгово-развлекательного центра спроектирован приватный двор-сад с коворкингом, детской зоной, песочницей и местом для отдыха с лежаками.
Жилой комплекс расположен в Бутырском районе, на Огородном проезде. В пешей доступности метро «Фонвизинская» и «Улица Милашенкова».
Жилой комплекс состоит из 5 корпусов высотой от 2 до 45 этажей̆ и спроектирован как «город в миниатюре» — с площадями и цепочкой бульваров, с городским сквером, офисно-деловым и торговым центрами. Со стороны Огородного проезда спроектирован торговый променад, между офисным центром и жилыми группами — зеленая улица, переходящая в систему небольших площадей. На бульварах размещены управляющая компания, консьерж-служба, медицинский центр и соседское комьюнити. В домах предусмотрены светлые лобби без ступеней, высокие и прозрачные входные группы, домофон в теплом тамбуре, понятная навигация в холле и на этажах и установлены большие бесшумные лифты KOYO. Управлять жилым кварталом будет собственная компания застройщика.
В проекте предложено 50 вариантов планировочных решений. На первых и последних этажах — уникальные форматы: с террасами, отдельным входом, двухуровневые. Их всего 126. На последних этажах башен предложены квартиры со вторым светом, несколькими террасами, бассейном, сауной, дымоходом под камин, помещениями под зимний сад. Все квартиры сдаются с подчистовой отделкой.
Пространство дворов спроектировано в стиле пэчворк, с каменными садами. взрослыми деревьями и кустарниками. Современные детские площадки, размещённые на территории комплекса, были разработаны совместно с психологами. Для жителей первой очереди на крыше торгово-развлекательного центра спроектирован приватный двор-сад с коворкингом, детской зоной, песочницей и местом для отдыха с лежаками.
Жилой комплекс расположен в Бутырском районе, на Огородном проезде. В пешей доступности метро «Фонвизинская» и «Улица Милашенкова».
Жилой комплекс состоит из 5 корпусов высотой от 2 до 45 этажей̆ и спроектирован как «город в миниатюре» — с площадями и цепочкой бульваров, с городским сквером, офисно-деловым и торговым центрами. Со стороны Огородного проезда спроектирован торговый променад, между офисным центром и жилыми группами — зеленая улица, переходящая в систему небольших площадей. На бульварах размещены управляющая компания, консьерж-служба, медицинский центр и соседское комьюнити. В домах предусмотрены светлые лобби без ступеней, высокие и прозрачные входные группы, домофон в теплом тамбуре, понятная навигация в холле и на этажах и установлены большие бесшумные лифты KOYO. Управлять жилым кварталом будет собственная компания застройщика.
В проекте предложено 50 вариантов планировочных решений. На первых и последних этажах — уникальные форматы: с террасами, отдельным входом, двухуровневые. Их всего 126. На последних этажах башен предложены квартиры со вторым светом, несколькими террасами, бассейном, сауной, дымоходом под камин, помещениями под зимний сад. Все квартиры сдаются с подчистовой отделкой.
Пространство дворов спроектировано в стиле пэчворк, с каменными садами. взрослыми деревьями и кустарниками. Современные детские площадки, размещённые на территории комплекса, были разработаны совместно с психологами. Для жителей первой очереди на крыше торгово-развлекательного центра спроектирован приватный двор-сад с коворкингом, детской зоной, песочницей и местом для отдыха с лежаками.
Жилой комплекс расположен в Бутырском районе, на Огородном проезде. В пешей доступности метро «Фонвизинская» и «Улица Милашенкова».
Жилой комплекс состоит из 5 корпусов высотой от 2 до 45 этажей̆ и спроектирован как «город в миниатюре» — с площадями и цепочкой бульваров, с городским сквером, офисно-деловым и торговым центрами. Со стороны Огородного проезда спроектирован торговый променад, между офисным центром и жилыми группами — зеленая улица, переходящая в систему небольших площадей. На бульварах размещены управляющая компания, консьерж-служба, медицинский центр и соседское комьюнити. В домах предусмотрены светлые лобби без ступеней, высокие и прозрачные входные группы, домофон в теплом тамбуре, понятная навигация в холле и на этажах и установлены большие бесшумные лифты KOYO. Управлять жилым кварталом будет собственная компания застройщика.
В проекте предложено 50 вариантов планировочных решений. На первых и последних этажах — уникальные форматы: с террасами, отдельным входом, двухуровневые. Их всего 126. На последних этажах башен предложены квартиры со вторым светом, несколькими террасами, бассейном, сауной, дымоходом под камин, помещениями под зимний сад. Все квартиры сдаются с подчистовой отделкой.
Пространство дворов спроектировано в стиле пэчворк, с каменными садами. взрослыми деревьями и кустарниками. Современные детские площадки, размещённые на территории комплекса, были разработаны совместно с психологами. Для жителей первой очереди на крыше торгово-развлекательного центра спроектирован приватный двор-сад с коворкингом, детской зоной, песочницей и местом для отдыха с лежаками.
Жилой комплекс расположен в Бутырском районе, на Огородном проезде. В пешей доступности метро «Фонвизинская» и «Улица Милашенкова».
Жилой комплекс состоит из 5 корпусов высотой от 15 до 29 этажей. Вдохновением для авторов послужила архитектура Цюриха, соединяющая в себе легкость и брутальность. Квартал отличает чистая композиция, простая геометрия, разбитая на сегменты строгая сетка, фактура и тактильность материалов, ритмика летних помещений, безрамное остекление. Дома объединены стилобатом, в котором размещен дизайнерский паркинг и коммерческие помещения. На первых этажах башен появятся спортивный и детский клубы, медицинский центр, кафе и ресторан, супермаркет и соседский центр. Между домами и на эксплуатируемой кровле стилобата разбиты дворы-сады со взрослыми растениями. В домах предусмотрены высокие и прозрачные входные группы, домофон в теплом тамбуре, понятная навигация в холле и на этажах.
В проекте предложено 50 вариантов планировок с подчистовой отделкой. Две трети из них — с балконами. На первых этажах спроектировано несколько одно- и двухуровневых квартир с террасами, часть квартир имеет отдельный вход со стороны двора.
Приватный двор-сад комплекса спроектирован в технике лоскутного шитья. Каждая его часть имеет свой характер, но вместе они составляют единое целое. 70% двора занимают растения, подобранные по календарю цветения. На стилобате, объединяющем корпуса квартала, спроектированы прогулочные зеленые террасы с частными патио, всесезонный общий сад, площадки для отдыха, детский уголок. Рядом с комплексом появится новый ландшафтный парк, проект которого разработан вместе с российско-швейцарским бюро.
Жилой комплекс расположен в Нижегородском районе, на Перовском шоссе.
Жилой комплекс состоит из 5 корпусов высотой от 15 до 29 этажей. Вдохновением для авторов послужила архитектура Цюриха, соединяющая в себе легкость и брутальность. Квартал отличает чистая композиция, простая геометрия, разбитая на сегменты строгая сетка, фактура и тактильность материалов, ритмика летних помещений, безрамное остекление. Дома объединены стилобатом, в котором размещен дизайнерский паркинг и коммерческие помещения. На первых этажах башен появятся спортивный и детский клубы, медицинский центр, кафе и ресторан, супермаркет и соседский центр. Между домами и на эксплуатируемой кровле стилобата разбиты дворы-сады со взрослыми растениями. В домах предусмотрены высокие и прозрачные входные группы, домофон в теплом тамбуре, понятная навигация в холле и на этажах.
В проекте предложено 50 вариантов планировок с подчистовой отделкой. Две трети из них — с балконами. На первых этажах спроектировано несколько одно- и двухуровневых квартир с террасами, часть квартир имеет отдельный вход со стороны двора.
Приватный двор-сад комплекса спроектирован в технике лоскутного шитья. Каждая его часть имеет свой характер, но вместе они составляют единое целое. 70% двора занимают растения, подобранные по календарю цветения. На стилобате, объединяющем корпуса квартала, спроектированы прогулочные зеленые террасы с частными патио, всесезонный общий сад, площадки для отдыха, детский уголок. Рядом с комплексом появится новый ландшафтный парк, проект которого разработан вместе с российско-швейцарским бюро.
Жилой комплекс расположен в Нижегородском районе, на Перовском шоссе.
Жилой комплекс состоит из 5 корпусов высотой от 15 до 29 этажей. Вдохновением для авторов послужила архитектура Цюриха, соединяющая в себе легкость и брутальность. Квартал отличает чистая композиция, простая геометрия, разбитая на сегменты строгая сетка, фактура и тактильность материалов, ритмика летних помещений, безрамное остекление. Дома объединены стилобатом, в котором размещен дизайнерский паркинг и коммерческие помещения. На первых этажах башен появятся спортивный и детский клубы, медицинский центр, кафе и ресторан, супермаркет и соседский центр. Между домами и на эксплуатируемой кровле стилобата разбиты дворы-сады со взрослыми растениями. В домах предусмотрены высокие и прозрачные входные группы, домофон в теплом тамбуре, понятная навигация в холле и на этажах.
В проекте предложено 50 вариантов планировок с подчистовой отделкой. Две трети из них — с балконами. На первых этажах спроектировано несколько одно- и двухуровневых квартир с террасами, часть квартир имеет отдельный вход со стороны двора.
Приватный двор-сад комплекса спроектирован в технике лоскутного шитья. Каждая его часть имеет свой характер, но вместе они составляют единое целое. 70% двора занимают растения, подобранные по календарю цветения. На стилобате, объединяющем корпуса квартала, спроектированы прогулочные зеленые террасы с частными патио, всесезонный общий сад, площадки для отдыха, детский уголок. Рядом с комплексом появится новый ландшафтный парк, проект которого разработан вместе с российско-швейцарским бюро.
Жилой комплекс расположен в Нижегородском районе, на Перовском шоссе.
Жилой комплекс «Метроном» — современный проект, возведенный по технологии кирпично-монолитного строительства с вентилируемыми фасадами из керамогранита. В комплексе имеются пассажирские и грузовые лифты, колясочные и места для хранения велосипедов. Первые этажи отведены под коммерческие помещения.
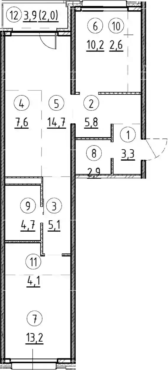
В проекте представлено множество планировочных решений — от студий до просторных 4-х комнатных квартир. Все лоты сдаются с подчистовой отделкой, высотой потолков до 2,7 метров и увеличенными окнами.
Территория комплекса благоустроена и озеленена: имеется система контроля доступа, открытые террасы на крышах, для автовладельцев предусмотрен подземный паркинг.
Жилой комплекс «Метроном» расположен в районе с хорошо развитой инфраструктурой. В пешей доступности имеется все необходимое: продовольственные магазины, медицинские и образовательные учреждения, аптеки, кафе и рестораны.
Жилой комплекс «Метроном» — современный проект, возведенный по технологии кирпично-монолитного строительства с вентилируемыми фасадами из керамогранита. В комплексе имеются пассажирские и грузовые лифты, колясочные и места для хранения велосипедов. Первые этажи отведены под коммерческие помещения.
В проекте представлено множество планировочных решений — от студий до просторных 4-х комнатных квартир. Все лоты сдаются с подчистовой отделкой, высотой потолков до 2,7 метров и увеличенными окнами.
Территория комплекса благоустроена и озеленена: имеется система контроля доступа, открытые террасы на крышах, для автовладельцев предусмотрен подземный паркинг.
Жилой комплекс «Метроном» расположен в районе с хорошо развитой инфраструктурой. В пешей доступности имеется все необходимое: продовольственные магазины, медицинские и образовательные учреждения, аптеки, кафе и рестораны.

