










Жилой комплекс «Квартал Домашний» — современный проект переменной этажности, возведенный по технологии кирпично-монолитного строительства. В отделке фасадов используются материалы природных оттенков: песочного, зеленого, терракотового и серого. На зданиях установлены корзины для кондиционеров.
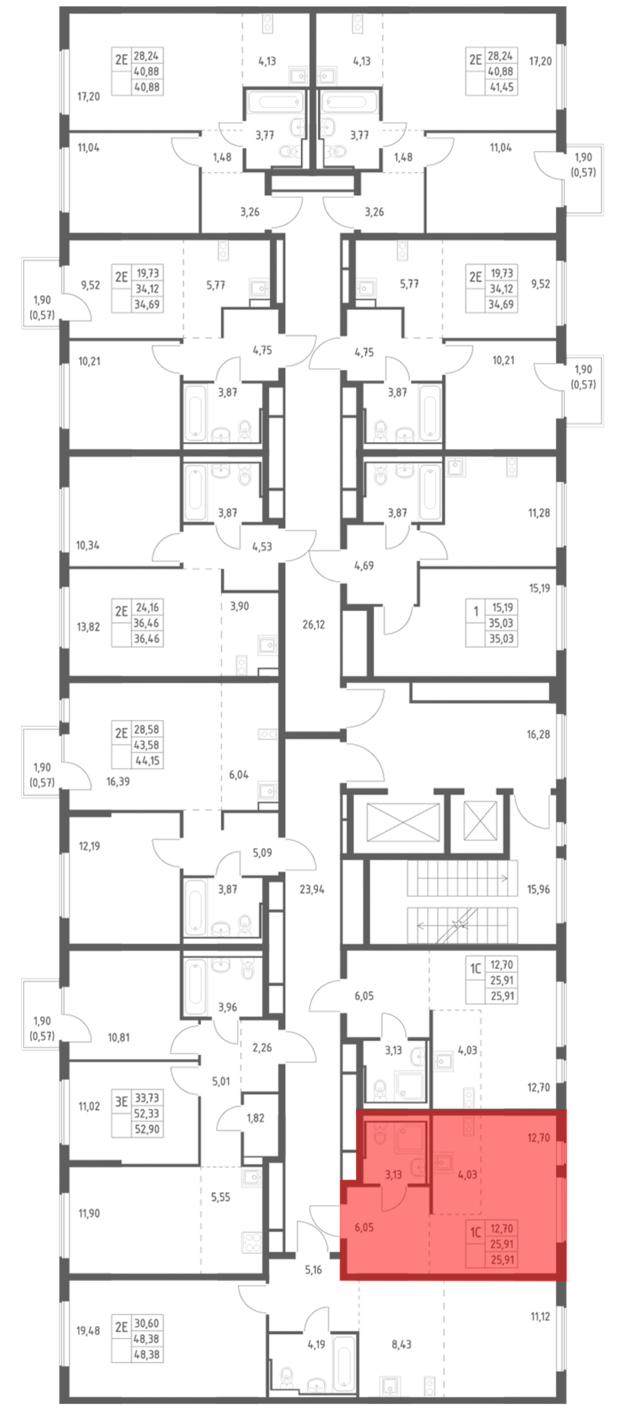
В проекте представлено большое количество планировок — от студий до просторных 5ти-комнатных квартир евроформата, среди которых лоты с эркерами, угловым и панорамным остеклением и просторными лоджиями. Все квартиры сдаются с чистовой отделкой.
Территория комплекса закрытая и хорошо благоустроена. Созданы безопасные пространства для детских игр и развития. Для автовладельцев предусмотрен подземный и наземный паркинги.
Инфраструктура района развита хорошо — в пешей доступности расположены продовольственные магазины, аптеки, медицинские центоы и образовательные учреждения. Дорога до парка «Борисовские пруды» займет 15 минут на автомобиле, до парка «850-летия Москвы» дорога занимает 5 минут пешком.
Жилой комплекс «Квартал Домашний» — современный проект переменной этажности, возведенный по технологии кирпично-монолитного строительства. В отделке фасадов используются материалы природных оттенков: песочного, зеленого, терракотового и серого. На зданиях установлены корзины для кондиционеров.
В проекте представлено большое количество планировок — от студий до просторных 5ти-комнатных квартир евроформата, среди которых лоты с эркерами, угловым и панорамным остеклением и просторными лоджиями. Все квартиры сдаются с чистовой отделкой.
Территория комплекса закрытая и хорошо благоустроена. Созданы безопасные пространства для детских игр и развития. Для автовладельцев предусмотрен подземный и наземный паркинги.
Инфраструктура района развита хорошо — в пешей доступности расположены продовольственные магазины, аптеки, медицинские центоы и образовательные учреждения. Дорога до парка «Борисовские пруды» займет 15 минут на автомобиле, до парка «850-летия Москвы» дорога занимает 5 минут пешком.
ЖК «Прибрежный Парк» состоит из нескольких очередей монолитных домов с оформлением из кирпича и керамогранита. В проекте реализуется концепция безбарьерной среды. Вход в подъезд — на уровне земли, в холлах — крупная навигация и естественное освещение. На первых этажах есть колясочные, и места для хранения велосипедов. Дизайн входных групп повторяет тему реки. На стенах — композиции в виде водопадов, светильники имитируют водную рябь.
В проекте «Прибрежный Парк»» предложено множество планировочных решений: в наличии квартиры, как классического типа,так и европланировки. Сдаются квартиры с чистовой отделкой, высота потолков 2.75 метра. Из окон открываются живописные виды на излучину водоема и лес.
Дворы жилого комплекса закрытые — сюда нельзя заехать на машине, а доступ во двор есть только у жителей. ЖК «Прибрежный Парк» находится под охраной и видеонаблюдением. На первых этажах расположены коммерческие помещения. На территории комплекса спроектированы 3 детских сада на 800 мест, школа на 1650 мест и поликлиника. Всю территорию проекта огибает благоустроенная набережная. В центральной части жилого комплекса находится прогулочный бульвар «Речной берег» со стрит-ритейлом, а также сеть велодорожек и пешеходных аллей. Для детей спроектирован всесезонный тематический плей хаб “Волна” со скалодромом, горками и игровыми площадками из дерева и безопасных материалов. Для занятий спортом — современная воркаут-площадка, лужайки для йоги, футбольное и баскетбольное поле. Для автовладельцев предусмотрен многоуровневый паркинг.
ЖК «Прибрежный Парк» находится в ГО Домодедово. ТЦ «Торговый квартал» находится в 10 минутах транспортом, в соседнем городе Домодедово. Гипермаркет «Лента» — в 15 минутах транспортом, торговый центр «Вегас» — в 20 минутах транспортом. До железнодорожной станции «Ленинская» можно дойти за 15 минут. До метро «Домодедовская» — в 25 минутах транспортом.
ЖК «Верейская 41» — это урбан-блоки средней этажности. Дома возведены по долговечной кирпично-монолитной технологии. В облицовке фасадов зданий используется навесной вентилируемый фасад. В домах выполнена дизайнерская отделка входных групп и установлены современные лифты.
В ЖК «Верейская 41» предложено множество планировочных решений: от студий до четырехкомнатных апартаментов евроформата. Можно подобрать планировку с патио или террасой, а на верхних этажах расположены пентхаусы с роскошными видами на парк и потолками высотой 4,8 метра.
Вход на территорию ЖК «Верейская 41» осуществляется только по смарт-картам и системе распознавания лиц. Во дворах предусмотрены детские площадки, воркаут, зоны отдыха. Также в жилом комплексе организовано общественное пространство на крыше и продуманы коммерческие помещения. За пределами дворов раскинулись городская площадь, прогулочные аллеи и центральный бульвар, велосипедные дорожки и тихий сад под перголой.
ЖК «Верейская 41» расположен в Можайском районе. В пешей доступности находятся станция метро «Давыдково» и остановки общественного транспорта. До Москва-Сити всего 20 минут транспортом.
ЖК «Верейская 41» — это урбан-блоки средней этажности. Дома возведены по долговечной кирпично-монолитной технологии. В облицовке фасадов зданий используется навесной вентилируемый фасад. В домах выполнена дизайнерская отделка входных групп и установлены современные лифты.
В ЖК «Верейская 41» предложено множество планировочных решений: от студий до четырехкомнатных апартаментов евроформата. Можно подобрать планировку с патио или террасой, а на верхних этажах расположены пентхаусы с роскошными видами на парк и потолками высотой 4,8 метра.
Вход на территорию ЖК «Верейская 41» осуществляется только по смарт-картам и системе распознавания лиц. Во дворах предусмотрены детские площадки, воркаут, зоны отдыха. Также в жилом комплексе организовано общественное пространство на крыше и продуманы коммерческие помещения. За пределами дворов раскинулись городская площадь, прогулочные аллеи и центральный бульвар, велосипедные дорожки и тихий сад под перголой.
ЖК «Верейская 41» расположен в Можайском районе. В пешей доступности находятся станция метро «Давыдково» и остановки общественного транспорта. До Москва-Сити всего 20 минут транспортом.
ЖК «Верейская 41» — это урбан-блоки средней этажности. Дома возведены по долговечной кирпично-монолитной технологии. В облицовке фасадов зданий используется навесной вентилируемый фасад. В домах выполнена дизайнерская отделка входных групп и установлены современные лифты.
В ЖК «Верейская 41» предложено множество планировочных решений: от студий до четырехкомнатных апартаментов евроформата. Можно подобрать планировку с патио или террасой, а на верхних этажах расположены пентхаусы с роскошными видами на парк и потолками высотой 4,8 метра.
Вход на территорию ЖК «Верейская 41» осуществляется только по смарт-картам и системе распознавания лиц. Во дворах предусмотрены детские площадки, воркаут, зоны отдыха. Также в жилом комплексе организовано общественное пространство на крыше и продуманы коммерческие помещения. За пределами дворов раскинулись городская площадь, прогулочные аллеи и центральный бульвар, велосипедные дорожки и тихий сад под перголой.
ЖК «Верейская 41» расположен в Можайском районе. В пешей доступности находятся станция метро «Давыдково» и остановки общественного транспорта. До Москва-Сити всего 20 минут транспортом.
ЖК «Верейская 41» — это урбан-блоки средней этажности. Дома возведены по долговечной кирпично-монолитной технологии. В облицовке фасадов зданий используется навесной вентилируемый фасад. В домах выполнена дизайнерская отделка входных групп и установлены современные лифты.
В ЖК «Верейская 41» предложено множество планировочных решений: от студий до четырехкомнатных апартаментов евроформата. Можно подобрать планировку с патио или террасой, а на верхних этажах расположены пентхаусы с роскошными видами на парк и потолками высотой 4,8 метра.
Вход на территорию ЖК «Верейская 41» осуществляется только по смарт-картам и системе распознавания лиц. Во дворах предусмотрены детские площадки, воркаут, зоны отдыха. Также в жилом комплексе организовано общественное пространство на крыше и продуманы коммерческие помещения. За пределами дворов раскинулись городская площадь, прогулочные аллеи и центральный бульвар, велосипедные дорожки и тихий сад под перголой.
ЖК «Верейская 41» расположен в Можайском районе. В пешей доступности находятся станция метро «Давыдково» и остановки общественного транспорта. До Москва-Сити всего 20 минут транспортом.
ЖК «Верейская 41» — это урбан-блоки средней этажности. Дома возведены по долговечной кирпично-монолитной технологии. В облицовке фасадов зданий используется навесной вентилируемый фасад. В домах выполнена дизайнерская отделка входных групп и установлены современные лифты.
В ЖК «Верейская 41» предложено множество планировочных решений: от студий до четырехкомнатных апартаментов евроформата. Можно подобрать планировку с патио или террасой, а на верхних этажах расположены пентхаусы с роскошными видами на парк и потолками высотой 4,8 метра.
Вход на территорию ЖК «Верейская 41» осуществляется только по смарт-картам и системе распознавания лиц. Во дворах предусмотрены детские площадки, воркаут, зоны отдыха. Также в жилом комплексе организовано общественное пространство на крыше и продуманы коммерческие помещения. За пределами дворов раскинулись городская площадь, прогулочные аллеи и центральный бульвар, велосипедные дорожки и тихий сад под перголой.
ЖК «Верейская 41» расположен в Можайском районе. В пешей доступности находятся станция метро «Давыдково» и остановки общественного транспорта. До Москва-Сити всего 20 минут транспортом.
ЖК «Верейская 41» — это урбан-блоки средней этажности. Дома возведены по долговечной кирпично-монолитной технологии. В облицовке фасадов зданий используется навесной вентилируемый фасад. В домах выполнена дизайнерская отделка входных групп и установлены современные лифты.
В ЖК «Верейская 41» предложено множество планировочных решений: от студий до четырехкомнатных апартаментов евроформата. Можно подобрать планировку с патио или террасой, а на верхних этажах расположены пентхаусы с роскошными видами на парк и потолками высотой 4,8 метра.
Вход на территорию ЖК «Верейская 41» осуществляется только по смарт-картам и системе распознавания лиц. Во дворах предусмотрены детские площадки, воркаут, зоны отдыха. Также в жилом комплексе организовано общественное пространство на крыше и продуманы коммерческие помещения. За пределами дворов раскинулись городская площадь, прогулочные аллеи и центральный бульвар, велосипедные дорожки и тихий сад под перголой.
ЖК «Верейская 41» расположен в Можайском районе. В пешей доступности находятся станция метро «Давыдково» и остановки общественного транспорта. До Москва-Сити всего 20 минут транспортом.
ЖК «Верейская 41» — это урбан-блоки средней этажности. Дома возведены по долговечной кирпично-монолитной технологии. В облицовке фасадов зданий используется навесной вентилируемый фасад. В домах выполнена дизайнерская отделка входных групп и установлены современные лифты.
В ЖК «Верейская 41» предложено множество планировочных решений: от студий до четырехкомнатных апартаментов евроформата. Можно подобрать планировку с патио или террасой, а на верхних этажах расположены пентхаусы с роскошными видами на парк и потолками высотой 4,8 метра.
Вход на территорию ЖК «Верейская 41» осуществляется только по смарт-картам и системе распознавания лиц. Во дворах предусмотрены детские площадки, воркаут, зоны отдыха. Также в жилом комплексе организовано общественное пространство на крыше и продуманы коммерческие помещения. За пределами дворов раскинулись городская площадь, прогулочные аллеи и центральный бульвар, велосипедные дорожки и тихий сад под перголой.
ЖК «Верейская 41» расположен в Можайском районе. В пешей доступности находятся станция метро «Давыдково» и остановки общественного транспорта. До Москва-Сити всего 20 минут транспортом.
Жилой квартал «Люберцы» – один из самых масштабных жилых комплексов в Подмосковье, который включает в себя порядка 50 корпусов. Строительство ведется по кирпично-монолитной технологии. В оформлении фасадов применяется облицовочный кирпич природных оттенков.
Из окон некоторых домов открываются виды на озеро Черное. В комплексе представлены квартиры от студий до трехкомнатных площадью от 25,4 до 80,65 кв.м. В них предусмотрена чистовая отделка, что позволит покупателям сразу после заселения приступить к созданию интерьера и расстановке мебели. Три корпуса будут сдаваться без отделки – клиенты смогут выполнить отделку по своему выбору.
Входные группы и места общего пользования оформлены в современном стиле. На первых этажах расположены коммерческие помещения. В составе объекта предусмотрены три детских сада и пять школ. Во дворе расположены четыре тематических детских городка с игровыми и спортивными площадками. Придомовая территория благоустроена ландшафтным дизайном.
Жилой квартал расположен в 8 км от МКАД и 1,5 км от строящейся станции метро «Некрасовка». В 20 минутах на автомобиле находится Салтыковский лесопарк, а напротив комплекса – берега реки Пехорка и озера Чёрное. В пешей доступности расположены продуктовые магазины и медицинский центр, в Люберцах работают различные объекты инфраструктуры. Метро «Лермонтовский проспект» находится в 25 минутах транспортом.
Проект «Мытищи Парк» предусматривает строительство 7 кварталов жилых домов переменой этажности. Входные группы расположены на уровне земли, без ступеней и пандусов. Дизайном мест общего пользования занимались специалисты архитектурных бюро Gren, GAFA и «Олимпроект». На первых этажах обустроены места для хранения колясок и велосипедов.
В ЖК «Мытищи Парк» предложено множество планировочных решений: в наличии квартиры, как классического типа, так иевропланировки. Квартиры сдаются с чистовой отделкой.
Проект «Мытищи Парк»включает 3 детских сада, 2 школы ифизкультурно-оздоровительныйкомплекс. На первых этажах размещены кафе, пекарни, магазины, детские кружки, бытовые услуги. Территория комплекса ограждена. Обустроен пешеходный бульвар с центральной площадью для проведения мероприятий. Детские площадки комплекса всесезонные и рассчитаны на детей разного возраста.
Комплекс с двух сторон окружает Пироговский лесопарк площадью 1800 га. До национального парка «Лосиный остров» и Пироговского водохранилища — 15 минут на автомобиле. В 10–15 минутах езды от «Мытищи Парк» расположены крупные ТРЦ и супермаркеты, а также школы, поликлиники, развивающие центры и спортклубы. Ближайшая ж/д станция «Строитель» расположена в 25 минутах пешком. МКАД находится в 10 км от комплекса.
Проект «Мытищи Парк» предусматривает строительство 7 кварталов жилых домов переменой этажности. Входные группы расположены на уровне земли, без ступеней и пандусов. Дизайном мест общего пользования занимались специалисты архитектурных бюро Gren, GAFA и «Олимпроект». На первых этажах обустроены места для хранения колясок и велосипедов.
В ЖК «Мытищи Парк» предложено множество планировочных решений: в наличии квартиры, как классического типа, так иевропланировки. Квартиры сдаются с чистовой отделкой.
Проект «Мытищи Парк»включает 3 детских сада, 2 школы ифизкультурно-оздоровительныйкомплекс. На первых этажах размещены кафе, пекарни, магазины, детские кружки, бытовые услуги. Территория комплекса ограждена. Обустроен пешеходный бульвар с центральной площадью для проведения мероприятий. Детские площадки комплекса всесезонные и рассчитаны на детей разного возраста.
Комплекс с двух сторон окружает Пироговский лесопарк площадью 1800 га. До национального парка «Лосиный остров» и Пироговского водохранилища — 15 минут на автомобиле. В 10–15 минутах езды от «Мытищи Парк» расположены крупные ТРЦ и супермаркеты, а также школы, поликлиники, развивающие центры и спортклубы. Ближайшая ж/д станция «Строитель» расположена в 25 минутах пешком. МКАД находится в 10 км от комплекса.
Проект «Алхимово» представляет собой жилой комплекс из нескольких корпусов высотой до 15 этажей. Лаконичные фасады корпусов выполнены в светлых и темных оттенках. Всего проект занимает площадь 44,6 га.
Покупателям в ЖК «Алхимово» предложено множество планировочных решений: в наличии квартиры, как классического типа, так и европланировки. Они передаются дольщикам с чистовой отделкой и без отделки.
Проект включает в себя детские сады и школы. Архитектурное расположение домов образует закрытый двор от машин и случайных прохожих. Для автовладельцев предусмотрены подземные паркинги. На первых этажах находятся кафе, магазины, салоны красоты и аптеки. На придомовой территории располагаются детские и спортивные площадки, пешеходные дорожки и места для отдыха.
Проект реализуется в экологически чистом районе на юге Новой Москвы. Ближайшее окружение квартала — поселение Знамя Октября, лесные массивы и берег реки Десны. В пешей доступности от дома – магазины, поликлиники, детские сады и школы. В 20 минутах ходьбы находится ж/д станция Силикатная, с которой можно за час доехать до центра Москвы. В радиусе 15 км расположено большое количество торгово-развлекательных центров: Бутово Молл, ТРЦ Акварель, ТЦ Капитолий, Карусель и гипермаркет Глобус.
Проект «Алхимово» представляет собой жилой комплекс из нескольких корпусов высотой до 15 этажей. Лаконичные фасады корпусов выполнены в светлых и темных оттенках. Всего проект занимает площадь 44,6 га.
Покупателям в ЖК «Алхимово» предложено множество планировочных решений: в наличии квартиры, как классического типа, так и европланировки. Они передаются дольщикам с чистовой отделкой и без отделки.
Проект включает в себя детские сады и школы. Архитектурное расположение домов образует закрытый двор от машин и случайных прохожих. Для автовладельцев предусмотрены подземные паркинги. На первых этажах находятся кафе, магазины, салоны красоты и аптеки. На придомовой территории располагаются детские и спортивные площадки, пешеходные дорожки и места для отдыха.
Проект реализуется в экологически чистом районе на юге Новой Москвы. Ближайшее окружение квартала — поселение Знамя Октября, лесные массивы и берег реки Десны. В пешей доступности от дома – магазины, поликлиники, детские сады и школы. В 20 минутах ходьбы находится ж/д станция Силикатная, с которой можно за час доехать до центра Москвы. В радиусе 15 км расположено большое количество торгово-развлекательных центров: Бутово Молл, ТРЦ Акварель, ТЦ Капитолий, Карусель и гипермаркет Глобус.
Жилой комплекс «Егорово Парк» состоит из кирпично-монолитных корпусов высотой в 12 этажей. В оформлении фасадов применяется штукатурка. Во всех домах выполнена дизайнерская отделка входных групп и установленные современные лифты.
В проекте «Егорово Парк» предложено множество планировочных решений: в наличии квартиры как классического типа, так и европланировки. Квартиры сдаются с чистовой отделкой и высотой потолков 2.75 метра.
Придомовая территория ЖК «Егорово Парк» благоустроена, на ней проведено озеленение, ведется видеонаблюдение, спроектированы пешеходные дорожки, прогулочный бульвар и места для отдыха. Во дворах установлены современные детские и спортивные площадки, отведены зоны для проведения спортивных игр. В состав проекта входит свой детский сад и 2 школы. Для владельцев автомобилей предусмотрены стоянка и отдельный многоуровневый паркинг.
Жилой комплекс «Егорово Парк» находится в ГО Люберцы. Инфраструктура района развита, в пешей доступности: магазины, детские сады, магазины, кафе, банкоматы. До Томилинского лесопарка можно добраться за 10 минутах транспортом. До метро «Котельники» — 15 минут транспортом.
Жилой комплекс «Богдановский Лес» — современный проект ГК Самолет, возведенный по технологии кирпично-монолитного строительства с фасадами, облицованными кирпичом. Первые этажи отведены под коммерческие помещения.
В проекте представлено множество планировочных решений — от студий до просторных 4х-комнатных квартир. Лоты сдаются с чистовой отделкой, увеличенными окнами с угловым остеклением, высотой потолков 3 метра.
Территория комплекса благоустроена и закрыта от автомобилей. Имеются площадки для воркаута, игр в баскетбол и пинг-понг, велодорожки, бульвар для неспешных прогулок, поликлиника, физкультурно-оздоровительный комплекс и торгово-развлекательный центр. Для автовладельцев предусмотрены многоуровневые паркинги.
Жилой комплекс «Богдановский Лес» расположен в окружении зеленых зон, в районе с хорошо развитой инфраструктурой. В пешей доступности от комплекса находятся продовольственные магазины, аптеки, кафе и рестораны. До метро «Домодедовская» дорога на автомобиле занимает 10 минут.
Жилой комплекс «Богдановский Лес» — современный проект ГК Самолет, возведенный по технологии кирпично-монолитного строительства с фасадами, облицованными кирпичом. Первые этажи отведены под коммерческие помещения.
В проекте представлено множество планировочных решений — от студий до просторных 4х-комнатных квартир. Лоты сдаются с чистовой отделкой, увеличенными окнами с угловым остеклением, высотой потолков 3 метра.
Территория комплекса благоустроена и закрыта от автомобилей. Имеются площадки для воркаута, игр в баскетбол и пинг-понг, велодорожки, бульвар для неспешных прогулок, поликлиника, физкультурно-оздоровительный комплекс и торгово-развлекательный центр. Для автовладельцев предусмотрены многоуровневые паркинги.
Жилой комплекс «Богдановский Лес» расположен в окружении зеленых зон, в районе с хорошо развитой инфраструктурой. В пешей доступности от комплекса находятся продовольственные магазины, аптеки, кафе и рестораны. До метро «Домодедовская» дорога на автомобиле занимает 10 минут.
Жилой комплекс «Богдановский Лес» — современный проект ГК Самолет, возведенный по технологии кирпично-монолитного строительства с фасадами, облицованными кирпичом. Первые этажи отведены под коммерческие помещения.
В проекте представлено множество планировочных решений — от студий до просторных 4х-комнатных квартир. Лоты сдаются с чистовой отделкой, увеличенными окнами с угловым остеклением, высотой потолков 3 метра.
Территория комплекса благоустроена и закрыта от автомобилей. Имеются площадки для воркаута, игр в баскетбол и пинг-понг, велодорожки, бульвар для неспешных прогулок, поликлиника, физкультурно-оздоровительный комплекс и торгово-развлекательный центр. Для автовладельцев предусмотрены многоуровневые паркинги.
Жилой комплекс «Богдановский Лес» расположен в окружении зеленых зон, в районе с хорошо развитой инфраструктурой. В пешей доступности от комплекса находятся продовольственные магазины, аптеки, кафе и рестораны. До метро «Домодедовская» дорога на автомобиле занимает 10 минут.
Жилой комплекс «Богдановский Лес» — современный проект ГК Самолет, возведенный по технологии кирпично-монолитного строительства с фасадами, облицованными кирпичом. Первые этажи отведены под коммерческие помещения.
В проекте представлено множество планировочных решений — от студий до просторных 4х-комнатных квартир. Лоты сдаются с чистовой отделкой, увеличенными окнами с угловым остеклением, высотой потолков 3 метра.
Территория комплекса благоустроена и закрыта от автомобилей. Имеются площадки для воркаута, игр в баскетбол и пинг-понг, велодорожки, бульвар для неспешных прогулок, поликлиника, физкультурно-оздоровительный комплекс и торгово-развлекательный центр. Для автовладельцев предусмотрены многоуровневые паркинги.
Жилой комплекс «Богдановский Лес» расположен в окружении зеленых зон, в районе с хорошо развитой инфраструктурой. В пешей доступности от комплекса находятся продовольственные магазины, аптеки, кафе и рестораны. До метро «Домодедовская» дорога на автомобиле занимает 10 минут.
Жилой комплекс «Богдановский Лес» — современный проект ГК Самолет, возведенный по технологии кирпично-монолитного строительства с фасадами, облицованными кирпичом. Первые этажи отведены под коммерческие помещения.
В проекте представлено множество планировочных решений — от студий до просторных 4х-комнатных квартир. Лоты сдаются с чистовой отделкой, увеличенными окнами с угловым остеклением, высотой потолков 3 метра.
Территория комплекса благоустроена и закрыта от автомобилей. Имеются площадки для воркаута, игр в баскетбол и пинг-понг, велодорожки, бульвар для неспешных прогулок, поликлиника, физкультурно-оздоровительный комплекс и торгово-развлекательный центр. Для автовладельцев предусмотрены многоуровневые паркинги.
Жилой комплекс «Богдановский Лес» расположен в окружении зеленых зон, в районе с хорошо развитой инфраструктурой. В пешей доступности от комплекса находятся продовольственные магазины, аптеки, кафе и рестораны. До метро «Домодедовская» дорога на автомобиле занимает 10 минут.
Жилой комплекс «Богдановский Лес» — современный проект ГК Самолет, возведенный по технологии кирпично-монолитного строительства с фасадами, облицованными кирпичом. Первые этажи отведены под коммерческие помещения.
В проекте представлено множество планировочных решений — от студий до просторных 4х-комнатных квартир. Лоты сдаются с чистовой отделкой, увеличенными окнами с угловым остеклением, высотой потолков 3 метра.
Территория комплекса благоустроена и закрыта от автомобилей. Имеются площадки для воркаута, игр в баскетбол и пинг-понг, велодорожки, бульвар для неспешных прогулок, поликлиника, физкультурно-оздоровительный комплекс и торгово-развлекательный центр. Для автовладельцев предусмотрены многоуровневые паркинги.
Жилой комплекс «Богдановский Лес» расположен в окружении зеленых зон, в районе с хорошо развитой инфраструктурой. В пешей доступности от комплекса находятся продовольственные магазины, аптеки, кафе и рестораны. До метро «Домодедовская» дорога на автомобиле занимает 10 минут.
Жилой комплекс «Долина Яузы» — это кирпично-монолитные дома, выполненные в европейском стиле. За выразительность фасадов отвечает сочетание балконов разной конфигурации и гладкой фактурной кирпичной кладки натуральных оттенков — от светло-серого до кирпично-красного. В домах выполнена дизайнерская отделка входных групп и установлены современные лифты. В каждом корпусе предусмотрены кладовые и места для хранения колясок и велосипедов.
В жилом комплексе «Долина Яузы» предложено множество планировочных решений: в наличии квартиры, как классического типа, так и европланировки. Сдаются они с чистовой отделкой и высотой потолков от 3 до 3,2 метров.
В проекте «Долина Яузы» предусмотрены детские и спортивные площадки, зоны отдыха под навесами и теннисные столы. На территории жилого комплекса выполнен ландшафтный дизайн. Для владельцев автомобилей предусмотрены стоянка и отдельный многоуровневый паркинг.
Жилой комплекс «Долина Яузы» находится в подмосковном городе Мытищи. За 10 минут можно дойти до набережной Яузы и Перловского парка. В 10 минутах транспортом расположен национальный парк Лосиный остров. ЖК находится в городе с развитой инфраструктурой: школы и детские сады, больницы и поликлиники, государственные учреждения. Рядом с комплексом есть выезд на МКАД. Международный аэропорт Шереметьево находится в 20 минутах транспортом.
ЖК «Пятницкие Луга» — монолитные дома не выше 12 этажей с оригинальным авторским дизайном и системой «Умный дом». Входные группы сквозные — можно выйти и во двор, и на улицу. Это безбарьерное пространство со входами на уровне земли. Благодаря панорамному остеклению подъезд наполнен естественным светом и прекрасно просматривается с улицы. Внутри обустроены отдельные помещения для колясок и велосипедов. Оформление соответствует дизайн-коду проекта и выполнено в натуральных оттенках с применением природных материалов. Для работает круглосуточное видеонаблюдение общественных мест с функциями видеоаналитики.
В жилом комплексе «Пятницкие Луга» предложено множество планировочных решений: в наличии квартиры, как классического типа, так и европланировки. По умолчанию в каждой квартире установлен пакет опций «Умный дом».
Внутренний двор в ЖК «Пятницкие Луга» — это тихий зеленый парк, свободный от автомобилей. Здесь находятся тематические зоны отдыха, отдельный сад со столами для пинг-понга, семейный сад с детскими площадками и зоной воркаута. На территории ЖК высажены цветники, многолетние кустарники и разные деревья. В районе обустроены пешеходные бульвары и скверы с арт-объектами. Берег реки Банька на границе с жилым комплексом превратился в большое пространство для отдыха со спортивными и детскими площадками в эко стиле из натурального дерева. На первых этажах находятся коммерческие помещения. Для владельцев автомобилей обустроены плоскостные и многоуровневые паркинги за пределами двора
Окружение ЖК «Пятницкие Луга» — густые леса и благоустроенные лесопарки: Захаринская пойма, Митинский лесопарк. В 5 км расположена живописная усадьба Середниково. В 7 км — загородный комплекс «Отрада», где можно покататься на лошадях, сходить на рыбалку, посетить зоопарк. Расстояние до торговых центров «Отрада», и гипермаркета «О'кей» — 7 км, до ТРЦ Vegas Крокус Сити с собственным океанариумом и яхт-клуба Just Crazy — 15 км. Полноценная инфраструктура жилого комплекса развивается — предусмотрены 2 школы, 4 детских сада и поликлиники, магазины, салоны красоты, кафе.
Проект «Тропарево Парк» включает в себя 7 корпусов высотой 16-23 этажа. Для отделки фасадов использован светлый и темный облицовочный кирпич. Дизайн входных групп выполнен по индивидуальному проекту от студии BALCON. За основу взяты спокойные оттенки: черный, серый, пыльная роза. Для акцентов использованы элементы из латуни и картины в авангардном стиле. Вход в парадные расположены на уровне земли, без ступеней и пандусов. На первых этажах предусмотрены места для хранения колясок и велосипедов.
ЖК «Тропарево Парк» предложено множество планировочных решений: в наличии квартиры, как классического типа, так и европланировки. В каждой планировке предусмотрена установка декоративных металлических корзин для кондиционеров.
Двор закрыт для автомобилей и случайных прохожих. 2 наземных паркинга вынесены за пределы двора. Разработкой общественного пространства занимается архитектурная дизайн-студия GAFA architects.Во дворе высажены деревья, кустарники и многолетние травы. Спроектированы детские площадки с горками и батутами, а также спортивные зоны с тренажерами и настольным теннисом.
Проект расположен на территории Новой Москвы вблизи Тропаревского парка. Рядом находится бизнес-парк «Румянцево» и крупный торговый центр «Саларис», а в 15 минутах транспортом — «Леруа Мерлен». В 10 минутах пешком находится метро «Румянцево», в шаговой доступности — остановка «Дудкино», от которой ходят автобусы и маршрутки до метро «Юго-Западная», платформы Переделкино и 5-го микрорайона Солнцево.
Проект «Тропарево Парк» включает в себя 7 корпусов высотой 16-23 этажа. Для отделки фасадов использован светлый и темный облицовочный кирпич. Дизайн входных групп выполнен по индивидуальному проекту от студии BALCON. За основу взяты спокойные оттенки: черный, серый, пыльная роза. Для акцентов использованы элементы из латуни и картины в авангардном стиле. Вход в парадные расположены на уровне земли, без ступеней и пандусов. На первых этажах предусмотрены места для хранения колясок и велосипедов.
ЖК «Тропарево Парк» предложено множество планировочных решений: в наличии квартиры, как классического типа, так и европланировки. В каждой планировке предусмотрена установка декоративных металлических корзин для кондиционеров.
Двор закрыт для автомобилей и случайных прохожих. 2 наземных паркинга вынесены за пределы двора. Разработкой общественного пространства занимается архитектурная дизайн-студия GAFA architects.Во дворе высажены деревья, кустарники и многолетние травы. Спроектированы детские площадки с горками и батутами, а также спортивные зоны с тренажерами и настольным теннисом.
Проект расположен на территории Новой Москвы вблизи Тропаревского парка. Рядом находится бизнес-парк «Румянцево» и крупный торговый центр «Саларис», а в 15 минутах транспортом — «Леруа Мерлен». В 10 минутах пешком находится метро «Румянцево», в шаговой доступности — остановка «Дудкино», от которой ходят автобусы и маршрутки до метро «Юго-Западная», платформы Переделкино и 5-го микрорайона Солнцево.
Проект «Тропарево Парк» включает в себя 7 корпусов высотой 16-23 этажа. Для отделки фасадов использован светлый и темный облицовочный кирпич. Дизайн входных групп выполнен по индивидуальному проекту от студии BALCON. За основу взяты спокойные оттенки: черный, серый, пыльная роза. Для акцентов использованы элементы из латуни и картины в авангардном стиле. Вход в парадные расположены на уровне земли, без ступеней и пандусов. На первых этажах предусмотрены места для хранения колясок и велосипедов.
ЖК «Тропарево Парк» предложено множество планировочных решений: в наличии квартиры, как классического типа, так и европланировки. В каждой планировке предусмотрена установка декоративных металлических корзин для кондиционеров.
Двор закрыт для автомобилей и случайных прохожих. 2 наземных паркинга вынесены за пределы двора. Разработкой общественного пространства занимается архитектурная дизайн-студия GAFA architects.Во дворе высажены деревья, кустарники и многолетние травы. Спроектированы детские площадки с горками и батутами, а также спортивные зоны с тренажерами и настольным теннисом.
Проект расположен на территории Новой Москвы вблизи Тропаревского парка. Рядом находится бизнес-парк «Румянцево» и крупный торговый центр «Саларис», а в 15 минутах транспортом — «Леруа Мерлен». В 10 минутах пешком находится метро «Румянцево», в шаговой доступности — остановка «Дудкино», от которой ходят автобусы и маршрутки до метро «Юго-Западная», платформы Переделкино и 5-го микрорайона Солнцево.
Жилой комплекс состоит из 3 корпусов в едином архитектурном стиле, высотой в 12–17 этажей. Архитектура зданий вдохновлена космической тематикой. Фасады в теплой цветовой гамме отличаются разными паттернами мощения керамической плитки. Комплекс оснащен навесными конструкциями на стенах, выполнена дизайнерская отделка лобби и входных групп. На первых этажах расположены зоны для хранения колясок и велосипедов.
В комплексе представлен большой выбор планировок: от уютной студии до 4-комнатных квартир с гардеробной. В квартирах предусмотрены увеличенные окна и потолки от 2,77 до 2,95 метра.
В проекте представлена обширная инфраструктура: детские и спортивные площадки, комплекс игровых зон с ярким покрытием, пешеходные дорожки и лаунж-зона с озелененными навесами. На территории находится собственный детский сад. Для владельцев автомобилей предусмотрено 3 многоуровневых паркинга.
Комплекс расположен в Московской области, в городе Королеве. Рядом расположено множество лесов и парков, а реки Клязьма и Яуза окружают ЖК с обеих сторон. В пешей доступности находятся магазины, детские сады, школы, кафе и пункты выдачи. Дорога до МКАД занимает 20 минут на автомобиле, до метро «Комсомольская» — 40 минут.
Жилой комплекс состоит из 3 монолитных домов высотой 16 этажей. Фасады облицованы долговечными фиброцементными панелями. Фасады и корзины для кондиционеров выполнены в едином цветовом решении, жилой комплекс выглядит сдержанно и лаконично. Входы в подъезды расположены на уровне земли, в холлах выполнено панорамное остекление и предусмотрены помещения для хранения колясок и велосипедов. На подземном этаже спроектированы индивидуальные кладовые.
В проекте предложено множество планировочных решений: в наличии квартиры как классического типа, так и европланировки. Все квартиры сдаются с универсальной чистовой отделкой, есть возможность заказать меблировку.
Комплекс имеет благоустроенный двор-парк с всесезонными детскими площадками, воркаут-зоной, баскетбольной площадкой, столами для настольного тенниса и площадкой для выгула и тренировки собак.
Жилой комплекс расположен в зеленом районе Новой Москвы, в 6 километрах от МКАД. Территория комплекса граничит с лесопарком, к которому есть прямой выход. В районе есть вся необходимая инфраструктура: детские сады, школы, медицинские центры. В 15 минутах езды частная школа-пансион «Летово». В поселке Коммунарка находится Московский многопрофильный клинический центр. Рядом развлекательный центр «Стратег», спортивно-игровой центр «Арена Плей» с катком, 7 фитнес-клубов, включая «50 GYM». В пешей доступности — торговые центры «Сиеста» и «МЕГА Теплый Стан». До агрокластера «Фуд Сити», самого большого продуктового магазина Москвы, — 15 минут на машине. Комплекс имеет удобный выезд на Калужское шоссе. В пешей доступности метро «Ольховая» и «Прокшино», в 500 метрах от комплекса есть остановка общественного транспорта.
Жилой комплекс состоит из 3 монолитных домов высотой 16 этажей. Фасады облицованы долговечными фиброцементными панелями. Фасады и корзины для кондиционеров выполнены в едином цветовом решении, жилой комплекс выглядит сдержанно и лаконично. Входы в подъезды расположены на уровне земли, в холлах выполнено панорамное остекление и предусмотрены помещения для хранения колясок и велосипедов. На подземном этаже спроектированы индивидуальные кладовые.
В проекте предложено множество планировочных решений: в наличии квартиры как классического типа, так и европланировки. Все квартиры сдаются с универсальной чистовой отделкой, есть возможность заказать меблировку.
Комплекс имеет благоустроенный двор-парк с всесезонными детскими площадками, воркаут-зоной, баскетбольной площадкой, столами для настольного тенниса и площадкой для выгула и тренировки собак.
Жилой комплекс расположен в зеленом районе Новой Москвы, в 6 километрах от МКАД. Территория комплекса граничит с лесопарком, к которому есть прямой выход. В районе есть вся необходимая инфраструктура: детские сады, школы, медицинские центры. В 15 минутах езды частная школа-пансион «Летово». В поселке Коммунарка находится Московский многопрофильный клинический центр. Рядом развлекательный центр «Стратег», спортивно-игровой центр «Арена Плей» с катком, 7 фитнес-клубов, включая «50 GYM». В пешей доступности — торговые центры «Сиеста» и «МЕГА Теплый Стан». До агрокластера «Фуд Сити», самого большого продуктового магазина Москвы, — 15 минут на машине. Комплекс имеет удобный выезд на Калужское шоссе. В пешей доступности метро «Ольховая» и «Прокшино», в 500 метрах от комплекса есть остановка общественного транспорта.
Жилой комплекс «Квартал Ивакино» — это кирпично-монолитные дома высотой от 14 до 17 этажей. В центре дизайн-кода проекта — река. Водная гладь и изгибы русла вдохновили бюро Gren при разработке дизайна. Фасады домов выполнены в серо-голубых и песочных оттенках. В отделке используются кирпич, фиброцемент и композитные алюминиевые панели. Современные входные группы с панорамным остеклением расположены на уровне земли, что обеспечивает комфорт для маломобильных жителей и родителей с колясками. В каждой секции обустроены колясочные, кладовые и стоянки для велосипедов. В домах установлена система круглосуточного видеонаблюдения.
В ЖК «Квартал Ивакино» предложено множество планировочных решений: в наличии квартиры, как классического типа, так и европланировки. Сдаются они с чистовой отделкой и высотой потолков от 2,75 до 2,9 метра.
Дворы ЖК «Квартал Ивакино» благоустроены и закрыты от машин, в них размещены спортивные и игровые площадки, прогулочные дорожки и тихие зоны для отдыха. На территории высажены околоводные растения и злаки, установлены навесы из вьющейся зелени, пешеходные дорожки вымощены каменной кладкой. Собственная инфраструктура комплекса включает две школы, три детских сада, поликлинику и физкультурно-оздоровительный центр. На первых этажах домов расположены салоны красоты, магазины, кафе и офисы. В домах первой очереди открыты два универсама, аптека и ресторан. Для владельцев автомобилей предусмотрены открытые стоянки.
ЖК «Квартал Ивакино» находится в микрорайоне Клязьма-Старбеево города Химки. Рядом с комплексом расположены река Клязьма, водохранилище и Химкинский лесопарк. Пляж Котовского залива предлагает разные виды досуга — сапсерфинг, аренда яхт или спокойный отдых. Дорога до МКАД займет 15 минут на автомобиле.До метро «Ховрино» — 20 минут транспортом.
Проект «Заречье Парк» включает в себя 5 жилых корпусов. Дизайн лобби создан по индивидуальному проекту студии «Балкон». Просторные входные группы выполнены в светлых тонах с элементами из натурального камня. Входные парадные расположены на уровне земли, без ступеней и пандусов.
Покупателям в ЖК «Заречье Парк» предложено множество планировочных решений: в наличии квартиры, как классического типа, так и европланировки. Они передаются дольщикам с чистовой отделкой.
В состав комплекса входит детский сад на 210 мест, школа на 600 мест, поликлиника и магазины. Благоустройство дворов выполнено по индивидуальному проекту от дизайнерского бюро GREN. На территории комплекса высажено множество растений и деревьев, организован гипоаллергенный сад. Предусмотрены игровые площадки для детей и для отдыха взрослых. Дворы закрыты для машин и случайных прохожих.
Жилой комплекс «Заречье Парк» расположен в Одинцовском районе, рядом с новым районом «Сколково». В 100 метрах от домов находится Мещерский парк. Рядом с жилым комплексом расположены престижные школы, кинотеатры, элитный гольф-клуб «Сколково», школа плавания Moscow Big Swim, а также модное кафе The Rink, на территории которого можно покататься на коньках или поиграть в керлинг. За 5 минут можно доехать до гипермаркета «Metro Cash&Carry» и Фермерского рынка. Метро «Озерная» и «Говорово» находятся в 10 минутах транспортом, а в 20 минутах — аэропорт Внуково.
Жилой комплекс «Квартал Авиаторов» — Современный проект, возведенный по технологии кирпично-монолитного строительства с комбинированными фасадами. Входы в подъезды расположены на уровне земли, что обеспечивает легкий доступ в здание с колясками, чемоданами и велосипедами, для которых имеется помещение для их хранения. Первые этажи отведены под коммерческие помещения.
В проекте предусмотрено множество планировок — от студий до просторных 4х-комнатных квартир. Все лоты сдаются с чистовой отделкой, высотой потолков до 3,95 метров и панорамными окнами.
Территория жилого комплекса закрыта от машин, ведется видеонаблюдение. Для детей предусмотрены игровые площадки, спортивные зоны.
Жилой комплекс расположен в районе с хорошо развитой инфраструктурой — в пешей доступности имеется все необходимое: продовольственные магазины, аптеки, поликлиника, детский сад, рестораны и кафе. Выезд на МКАД находится в 8 километрах от жилого комплекса, дорога до центра города займет 20 минут на автомобиле.
Жилой комплекс «Квартал Авиаторов» — Современный проект, возведенный по технологии кирпично-монолитного строительства с комбинированными фасадами. Входы в подъезды расположены на уровне земли, что обеспечивает легкий доступ в здание с колясками, чемоданами и велосипедами, для которых имеется помещение для их хранения. Первые этажи отведены под коммерческие помещения.
В проекте предусмотрено множество планировок — от студий до просторных 4х-комнатных квартир. Все лоты сдаются с чистовой отделкой, высотой потолков до 3,95 метров и панорамными окнами.
Территория жилого комплекса закрыта от машин, ведется видеонаблюдение. Для детей предусмотрены игровые площадки, спортивные зоны.
Жилой комплекс расположен в районе с хорошо развитой инфраструктурой — в пешей доступности имеется все необходимое: продовольственные магазины, аптеки, поликлиника, детский сад, рестораны и кафе. Выезд на МКАД находится в 8 километрах от жилого комплекса, дорога до центра города займет 20 минут на автомобиле.
Жилой комплекс «Квартал Авиаторов» — Современный проект, возведенный по технологии кирпично-монолитного строительства с комбинированными фасадами. Входы в подъезды расположены на уровне земли, что обеспечивает легкий доступ в здание с колясками, чемоданами и велосипедами, для которых имеется помещение для их хранения. Первые этажи отведены под коммерческие помещения.
В проекте предусмотрено множество планировок — от студий до просторных 4х-комнатных квартир. Все лоты сдаются с чистовой отделкой, высотой потолков до 3,95 метров и панорамными окнами.
Территория жилого комплекса закрыта от машин, ведется видеонаблюдение. Для детей предусмотрены игровые площадки, спортивные зоны.
Жилой комплекс расположен в районе с хорошо развитой инфраструктурой — в пешей доступности имеется все необходимое: продовольственные магазины, аптеки, поликлиника, детский сад, рестораны и кафе. Выезд на МКАД находится в 8 километрах от жилого комплекса, дорога до центра города займет 20 минут на автомобиле.
Жилой комплекс «Квартал Авиаторов» — Современный проект, возведенный по технологии кирпично-монолитного строительства с комбинированными фасадами. Входы в подъезды расположены на уровне земли, что обеспечивает легкий доступ в здание с колясками, чемоданами и велосипедами, для которых имеется помещение для их хранения. Первые этажи отведены под коммерческие помещения.
В проекте предусмотрено множество планировок — от студий до просторных 4х-комнатных квартир. Все лоты сдаются с чистовой отделкой, высотой потолков до 3,95 метров и панорамными окнами.
Территория жилого комплекса закрыта от машин, ведется видеонаблюдение. Для детей предусмотрены игровые площадки, спортивные зоны.
Жилой комплекс расположен в районе с хорошо развитой инфраструктурой — в пешей доступности имеется все необходимое: продовольственные магазины, аптеки, поликлиника, детский сад, рестораны и кафе. Выезд на МКАД находится в 8 километрах от жилого комплекса, дорога до центра города займет 20 минут на автомобиле.
Жилой комплекс «Квартал Авиаторов» — Современный проект, возведенный по технологии кирпично-монолитного строительства с комбинированными фасадами. Входы в подъезды расположены на уровне земли, что обеспечивает легкий доступ в здание с колясками, чемоданами и велосипедами, для которых имеется помещение для их хранения. Первые этажи отведены под коммерческие помещения.
В проекте предусмотрено множество планировок — от студий до просторных 4х-комнатных квартир. Все лоты сдаются с чистовой отделкой, высотой потолков до 3,95 метров и панорамными окнами.
Территория жилого комплекса закрыта от машин, ведется видеонаблюдение. Для детей предусмотрены игровые площадки, спортивные зоны.
Жилой комплекс расположен в районе с хорошо развитой инфраструктурой — в пешей доступности имеется все необходимое: продовольственные магазины, аптеки, поликлиника, детский сад, рестораны и кафе. Выезд на МКАД находится в 8 километрах от жилого комплекса, дорога до центра города займет 20 минут на автомобиле.
Жилой комплекс «Подольские Кварталы» — современный проект переменной этажности, возведенный по технологии кирпично-монолитного строительства. Для удобства жителей спроектирована полностью безбарьерная среда. Входы в сквозные подъезды выполнены на уровне земли, без ступеней и порогов. Также в подъезде предусмотрены отдельные помещения для хранения колясок и велосипедов. Первые этажи здания отведены под коммерческие помещения.
Жилой комплекс «Подольские Кварталы» предлагает множество планировочных решений — от студий до просторных 4х-комнатных квартир с высотой потолков от 2,78 до 3,98 метров. Все квартиры сдаются без внутренних стен.
Территория комплекса находится под круглосуточным видеонаблюдением. Имеется детский сад, школа, учебно-воспитательный комплекс. Для быстрого шоппинга построен торговый центр.
«Подольские Кварталы» находятся в 15 километрах от МКАД вблизи Дубровицкого леса. До станции МЦД-2 «Силикатная» дорога займет 10 минут на автомобиле. В окрестностях расположено множество парков и усадьб — Остафьево, Плещеево, Дубровицы.
Жилой комплекс «Подольские Кварталы» — современный проект переменной этажности, возведенный по технологии кирпично-монолитного строительства. Для удобства жителей спроектирована полностью безбарьерная среда. Входы в сквозные подъезды выполнены на уровне земли, без ступеней и порогов. Также в подъезде предусмотрены отдельные помещения для хранения колясок и велосипедов. Первые этажи здания отведены под коммерческие помещения.
Жилой комплекс «Подольские Кварталы» предлагает множество планировочных решений — от студий до просторных 4х-комнатных квартир с высотой потолков от 2,78 до 3,98 метров. Все квартиры сдаются без внутренних стен.
Территория комплекса находится под круглосуточным видеонаблюдением. Имеется детский сад, школа, учебно-воспитательный комплекс. Для быстрого шоппинга построен торговый центр.
«Подольские Кварталы» находятся в 15 километрах от МКАД вблизи Дубровицкого леса. До станции МЦД-2 «Силикатная» дорога займет 10 минут на автомобиле. В окрестностях расположено множество парков и усадьб — Остафьево, Плещеево, Дубровицы.
Жилой комплекс «Подольские Кварталы» — современный проект переменной этажности, возведенный по технологии кирпично-монолитного строительства. Для удобства жителей спроектирована полностью безбарьерная среда. Входы в сквозные подъезды выполнены на уровне земли, без ступеней и порогов. Также в подъезде предусмотрены отдельные помещения для хранения колясок и велосипедов. Первые этажи здания отведены под коммерческие помещения.
Жилой комплекс «Подольские Кварталы» предлагает множество планировочных решений — от студий до просторных 4х-комнатных квартир с высотой потолков от 2,78 до 3,98 метров. Все квартиры сдаются без внутренних стен.
Территория комплекса находится под круглосуточным видеонаблюдением. Имеется детский сад, школа, учебно-воспитательный комплекс. Для быстрого шоппинга построен торговый центр.
«Подольские Кварталы» находятся в 15 километрах от МКАД вблизи Дубровицкого леса. До станции МЦД-2 «Силикатная» дорога займет 10 минут на автомобиле. В окрестностях расположено множество парков и усадьб — Остафьево, Плещеево, Дубровицы.
Жилой комплекс «Подольские Кварталы» — современный проект переменной этажности, возведенный по технологии кирпично-монолитного строительства. Для удобства жителей спроектирована полностью безбарьерная среда. Входы в сквозные подъезды выполнены на уровне земли, без ступеней и порогов. Также в подъезде предусмотрены отдельные помещения для хранения колясок и велосипедов. Первые этажи здания отведены под коммерческие помещения.
Жилой комплекс «Подольские Кварталы» предлагает множество планировочных решений — от студий до просторных 4х-комнатных квартир с высотой потолков от 2,78 до 3,98 метров. Все квартиры сдаются без внутренних стен.
Территория комплекса находится под круглосуточным видеонаблюдением. Имеется детский сад, школа, учебно-воспитательный комплекс. Для быстрого шоппинга построен торговый центр.
«Подольские Кварталы» находятся в 15 километрах от МКАД вблизи Дубровицкого леса. До станции МЦД-2 «Силикатная» дорога займет 10 минут на автомобиле. В окрестностях расположено множество парков и усадьб — Остафьево, Плещеево, Дубровицы.
Проект «Остафьево» включает в себя шесть корпусов высотой до 14 этажей в первой очереди строительства. Фасад каждого корпуса облицован кирпичом и выполнен в светлых и темных оттенках. Входные группы спроектированы с высокими потолками, дизайнерской отделкой, витражным остеклением и двумя входами: со двора и улицы. Входы расположены на уровне земли, без ступеней и пандусов. В холлах выполнена дизайнерская отделка.
Покупателям квартир в ЖК «Остафьево» предложено множество планировочных решений: в наличии квартиры, как классического типа, так и европланировки. Квартиры сдаются с чистовой отделкой.
Проект включает в себя пять детских садов и три школы. Архитектурное расположение домов образует закрытый двор от машин и случайных прохожих. Для автовладельцев предусмотрены подземные паркинги. На первых этажах находятся кафе, магазины, салоны красоты и аптеки. На придомовой территории располагаются детские и спортивные площадки, пешеходные дорожки и места для отдыха.
ЖК «Остафьево» расположен между аэропортом, который находится сразу за Остафьевским шоссе, и сосновым лесом. В 15 минутах ходьбы от новостройки парк-усадьба «Остафьево». За 10 минут можно дойти до Молодцевского пруда. Метро «Бунинская аллея» находится в 15 минутах транспортом и 11 км до выезда на МКАД.
Проект «Остафьево» включает в себя шесть корпусов высотой до 14 этажей в первой очереди строительства. Фасад каждого корпуса облицован кирпичом и выполнен в светлых и темных оттенках. Входные группы спроектированы с высокими потолками, дизайнерской отделкой, витражным остеклением и двумя входами: со двора и улицы. Входы расположены на уровне земли, без ступеней и пандусов. В холлах выполнена дизайнерская отделка.
Покупателям квартир в ЖК «Остафьево» предложено множество планировочных решений: в наличии квартиры, как классического типа, так и европланировки. Квартиры сдаются с чистовой отделкой.
Проект включает в себя пять детских садов и три школы. Архитектурное расположение домов образует закрытый двор от машин и случайных прохожих. Для автовладельцев предусмотрены подземные паркинги. На первых этажах находятся кафе, магазины, салоны красоты и аптеки. На придомовой территории располагаются детские и спортивные площадки, пешеходные дорожки и места для отдыха.
ЖК «Остафьево» расположен между аэропортом, который находится сразу за Остафьевским шоссе, и сосновым лесом. В 15 минутах ходьбы от новостройки парк-усадьба «Остафьево». За 10 минут можно дойти до Молодцевского пруда. Метро «Бунинская аллея» находится в 15 минутах транспортом и 11 км до выезда на МКАД.

