Жилой комплекс состоит из 3 корпусов в едином архитектурном стиле, высотой в 12–17 этажей. Архитектура зданий вдохновлена космической тематикой. Фасады в теплой цветовой гамме отличаются разными паттернами мощения керамической плитки. Комплекс оснащен навесными конструкциями на стенах, выполнена дизайнерская отделка лобби и входных групп. На первых этажах расположены зоны для хранения колясок и велосипедов.
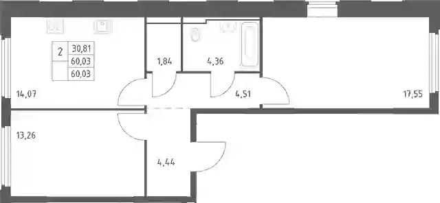
В комплексе представлен большой выбор планировок: от уютной студии до 4-комнатных квартир с гардеробной. В квартирах предусмотрены увеличенные окна и потолки от 2,77 до 2,95 метра.
В проекте представлена обширная инфраструктура: детские и спортивные площадки, комплекс игровых зон с ярким покрытием, пешеходные дорожки и лаунж-зона с озелененными навесами. На территории находится собственный детский сад. Для владельцев автомобилей предусмотрено 3 многоуровневых паркинга.
Комплекс расположен в Московской области, в городе Королеве. Рядом расположено множество лесов и парков, а реки Клязьма и Яуза окружают ЖК с обеих сторон. В пешей доступности находятся магазины, детские сады, школы, кафе и пункты выдачи. Дорога до МКАД занимает 20 минут на автомобиле, до метро «Комсомольская» — 40 минут.
