Сервис поиска и покупки квартирСервис поиска и покупки квартир в МоскваМоскве
+7 (495) 308-48-48
Сервис поиска и покупки квартир

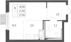
Студия, 21.9 м², 17 эт. в ЖК Мытищи Парк Корпус 4.2

148 просмотров
Беспроцентная рассрочка
с платежом 50 000 ₽ в месяц*
*Подробности уточняйте у специалиста
Траншевая ипотека
с платежом 1 ₽ за 2 года*
*Подробности уточняйте у специалиста
Длинная рассрочка
на 7 лет и 0% переплат*
*Подробности уточняйте у специалиста
Беспроцентная рассрочка
с платежом 50 000 ₽ в месяц*
*Подробности уточняйте у специалиста
«Семейная ипотека»
ставка 3% вернулась*
*Подробности уточняйте у специалиста
Выгодный первый взнос
от 5% и удобный график платежей*
*Подробности уточняйте у специалиста
Выгодный первый взнос
от 5% и удобный график платежей*
*Подробности уточняйте у специалиста
Длинная рассрочка
на 7 лет и 0% переплат*
*Подробности уточняйте у специалиста
Траншевая ипотека
с платежом 1 ₽ за 2 года*
*Подробности уточняйте у специалиста
«Семейная ипотека»
ставка 3% вернулась*
*Подробности уточняйте у специалиста
5 523 123 ₽
0 ₽/м2
+7 (495) 308-48-48
Москва, ул Стрелковая
Увидеть квартиру в доме на карте
21.9 м2
общая площадь
17 этаж
2 кв. 2025 г
срок сдачи

О доме Мытищи Парк Корпус 4.2

Кирпично-монолитный
Класс жилья «Комфорт»
Сдача в 2 кв. 2025 г

Описание новостройки

Проект «Мытищи Парк» предусматривает строительство 7 кварталов жилых домов переменой этажности. Входные группы расположены на уровне земли, без ступеней и пандусов. Дизайном мест общего пользования занимались специалисты архитектурных бюро Gren, GAFA и «Олимпроект». На первых этажах обустроены места для хранения колясок и велосипедов. В ЖК «Мытищи Парк» предложено множество планировочных решений: в наличии квартиры, как классического типа, так и европланировки. Квартиры сдаются с чистовой отделкой. Проект «Мытищи Парк» включает 3 детских сада, 2 школы и физкультурно-оздоровительный комплекс. На первых этажах размещены кафе, пекарни, магазины, детские кружки, бытовые услуги. Территория комплекса ограждена. Обустроен пешеходный бульвар с центральной площадью для проведения мероприятий. Детские площадки комплекса всесезонные и рассчитаны на детей разного возраста. Комплекс с двух сторон окружает Пироговский лесопарк площадью 1800 га. До национального парка «Лосиный остров» и Пироговского водохранилища — 15 минут на автомобиле. В 10–15 минутах езды от «Мытищи Парк» расположены крупные ТРЦ и супермаркеты, а также школы, поликлиники, развивающие центры и спортклубы. Ближайшая ж/д станция «Строитель» расположена в 25 минутах пешком. МКАД находится в 10 км от комплекса. Видео
Показать ещё

Застройщик

ГК Самолет. Москва
На рынке с 2012 года
127 строящихся ЖК
сдано: 34 ЖК и 96 домов

Способы покупки

Рассчитайте ипотеку

Расположение дома Мытищи Парк Корпус 4.2

Смотреть все ЖК на карте
МоскваГород
Мытищи городской округРайон
Москва, ул СтрелковаяАдрес

Ещё квартиры в ЖК "Мытищи Парк Корпус 4.2"

22 345 669 ₽3-к.квартира, 77.9 м², 17 эт.
Мытищи Парк Корпус 4.2
Москва, ул Стрелковая
Заселение до 2 кв. 2025
10 747 522 ₽2-к.квартира, 34.3 м², 17 эт.
Мытищи Парк Корпус 4.2
Москва, ул Стрелковая
Заселение до 2 кв. 2025
11 315 880 ₽2-к.квартира, 36.9 м², 7 эт.
Мытищи Парк Корпус 4.2
Москва, ул Стрелковая
Заселение до 2 кв. 2025
22 924 986 ₽4-к.квартира, 79.8 м², 5 эт.
Мытищи Парк Корпус 4.2
Москва, ул Стрелковая
Заселение до 2 кв. 2025
10 015 672 ₽1-к.квартира, 32.4 м², 3 эт.
Мытищи Парк Корпус 4.2
Москва, ул Стрелковая
Заселение до 2 кв. 2025
13 753 263 ₽3-к.квартира, 51.4 м², 7 эт.
Мытищи Парк Корпус 4.2
Москва, ул Стрелковая
Заселение до 2 кв. 2025
7 888 585 ₽Студия, 21.9 м², 2 эт.
Мытищи Парк Корпус 4.2
Москва, ул Стрелковая
Заселение до 2 кв. 2025
14 762 747 ₽2-к.квартира, 51.2 м², 7 эт.
Мытищи Парк Корпус 4.2
Москва, ул Стрелковая
Заселение до 2 кв. 2025
12 388 428 ₽2-к.квартира, 40.4 м², 7 эт.
Мытищи Парк Корпус 4.2
Москва, ул Стрелковая
Заселение до 2 кв. 2025
23 032 902 ₽4-к.квартира, 79.8 м², 7 эт.
Мытищи Парк Корпус 4.2
Москва, ул Стрелковая
Заселение до 2 кв. 2025
Профессиональная помощь в подборе ЖК
В базу Kvartiropoisk включены все жилые комплексы-новостройки в Москве и Подмосковье. Хотите купить квартиру — обращайтесь: бесплатный экспертный выбор.
Станислав Манин
Генеральный директор

Другие ЖК от застройщика

Смотреть все ЖК на карте
Спутник Корпус 19
от 11.5 млн ₽
Квартир в ЖК: 440
Москва, шоссе 1 км Мякининского
Сдача в 4 кв. 2026 г
Квартир в ЖК: 391
Москва, шоссе 1 км Мякининского
Сдача в 4 кв. 2026 г
Квартир в ЖК: 364
Москва, деревня Раздоры, тер Мякининское шоссе, 1-й км
Сдача в 4 кв. 2026 г
Квартир в ЖК: 450
Москва, деревня Коробово
Сдача в 3 кв. 2026 г
Квартир в ЖК: 419
Москва, деревня Коробово
Сдача в 3 кв. 2026 г
Квартир в ЖК: 532
Москва, деревня Коробово
Сдача в 3 кв. 2026 г
Квартир в ЖК: 416
Москва, деревня Коробово
Сдача в 3 кв. 2026 г
Квартир в ЖК: 182
Москва, Остафьевское шоссе
Сдача в 4 кв. 2024 г
Квартир в ЖК: 572
Москва, Остафьевское шоссе
Сдача в 4 кв. 2025 г
Квартир в ЖК: 90
Москва, Остафьевское шоссе
Сдача в 4 кв. 2025 г
Квартир в ЖК: 936
Москва, Остафьевское шоссе
Сдача в 4 кв. 2025 г
Квартир в ЖК: 572
Москва, Остафьевское шоссе,
Сдача в 4 кв. 2025 г
Квартир в ЖК: 110
Москва, Остафьевское шоссе,
Сдача в 4 кв. 2025 г
Квартир в ЖК: 650
Москва, Остафьевское шоссе,
Сдача в 4 кв. 2025 г
Квартир в ЖК: 110
Москва, Остафьевское шоссе,
Сдача в 4 кв. 2025 г
Квартир в ЖК: 1235
Москва, Московская обл, г Мытищи, ул Стрелковая
Сдача в 1 кв. 2023 г
Квартир в ЖК: 1766
Москва, г Мытищи, ул Рождественская
Сдача в 4 кв. 2023 г
Квартир в ЖК: 1317
Москва, ул Стрелковая
Сдача в 4 кв. 2024 г
Квартир в ЖК: 802
Москва, г Мытищи, ул Стрелковая
Сдача в 1 кв. 2026 г
Квартир в ЖК: 654
Москва, г Мытищи, ул Стрелковая
Сдача в 3 кв. 2026 г
Квартир в ЖК: 624
Москва, г Мытищи, ул Стрелковая
Сдача в 1 кв. 2026 г
Квартир в ЖК: 230
Москва, г Красногорск
Сдача в 2 кв. 2026 г
Квартир в ЖК: 501
Москва, 1-й Красногорский проезд,
Сдача в 2 кв. 2026 г
Квартир в ЖК: 529
Москва, г Красногорск
Сдача в 2 кв. 2026 г
Квартир в ЖК: 529
Москва, г Красногорск
Сдача в 2 кв. 2026 г
Квартир в ЖК: 253
Москва, г. Красногорск
Сдача в 4 кв. 2028 г
Квартир в ЖК: 121
Москва, г. Красногорск
Сдача в 4 кв. 2028 г
Квартир в ЖК: 253
Москва, г. Красногорск
Сдача в 4 кв. 2028 г
Квартир в ЖК: 121
Москва, г. Красногорск
Сдача в 4 кв. 2028 г
Квартир в ЖК: 746
Москва, г Королев, ул М.К.Тихонравова
Сдача в 4 кв. 2026 г
Квартир в ЖК: 240
Москва, г Мытищи, ул Трудовая
Сдача в 4 кв. 2025 г
Квартир в ЖК: 230
Москва, г Мытищи, ул Трудовая
Сдача в 4 кв. 2025 г
Квартир в ЖК: 253
Москва, г Мытищи, ул Трудовая
Сдача в 1 кв. 2026 г
Квартир в ЖК: 286
Москва, деревня Богданиха
Сдача в 4 кв. 2025 г
Квартир в ЖК: 330
Москва, деревня Богданиха
Сдача в 4 кв. 2025 г
Квартир в ЖК: 380
Москва, деревня Богданиха
Сдача в 4 кв. 2025 г
Квартир в ЖК: 121
Москва, деревня Богданиха
Сдача в 4 кв. 2025 г
Квартир в ЖК: 380
Москва, деревня Богданиха
Сдача в 4 кв. 2025 г
Квартир в ЖК: 121
Москва, деревня Богданиха
Сдача в 4 кв. 2025 г
Квартир в ЖК: 304
Москва, село Лайково
Сдача в 1 кв. 2026 г
Квартир в ЖК: 456
Москва, село Лайково
Сдача в 1 кв. 2026 г
Квартир в ЖК: 334
Москва, село Лайково
Сдача в 1 кв. 2026 г
Квартир в ЖК: 542
Москва, село Лайково
Сдача в 3 кв. 2024 г
Квартир в ЖК: 1289
Москва, Ленинградское шоссе
Сдача в 4 кв. 2024 г
Квартир в ЖК: 1068
Москва, Ленинградское шоссе
Сдача в 3 кв. 2025 г
Квартир в ЖК: 865
Москва, Ленинградское шоссе
Сдача в 3 кв. 2026 г
Квартир в ЖК: 865
Москва, Ленинградское шоссе,
Сдача в 3 кв. 2026 г
Квартир в ЖК: 789
Москва, Ленинградское шоссе,
Сдача в 3 кв. 2026 г
Квартир в ЖК: 481
Москва, г Химки, кв-л Ивакино
Сдача в 1 кв. 2025 г
Квартир в ЖК: 521
Москва, мкр Пригород Лесное (д Мисайлово), Молодежный б-р
Сдача в 3 кв. 2024 г
Квартир в ЖК: 526
Москва, мкр Пригород Лесное (д Мисайлово), Молодежный б-р
Сдача в 3 кв. 2025 г
Квартир в ЖК: 413
Москва, мкр Пригород Лесное (д Мисайлово), Молодежный б-р
Сдача в 3 кв. 2025 г
Квартир в ЖК: 526
Москва, мкр Пригород Лесное (д Мисайлово), Молодежный б-р
Сдача в 4 кв. 2025 г
Квартир в ЖК: 413
Москва, мкр Пригород Лесное (д Мисайлово), Молодежный б-р
Сдача в 4 кв. 2025 г
Квартир в ЖК: 1132
Москва, мкр Пригород Лесное (д Мисайлово), Молодежный б-р
Сдача в 1 кв. 2026 г
Квартир в ЖК: 740
Москва, мкр Пригород Лесное (д Мисайлово), Молодежный б-р
Сдача в 2 кв. 2026 г
Квартир в ЖК: 500
Москва, мкр Пригород Лесное (д Мисайлово), Молодежный б-р
Сдача в 2 кв. 2026 г
Квартир в ЖК: 176
Москва, мкр Пригород Лесное (д Мисайлово), Молодежный б-р
Сдача в 4 кв. 2027 г
Квартир в ЖК: 1132
Москва, мкр Пригород Лесное (д Мисайлово), Молодежный б-р
Сдача в 4 кв. 2027 г
Квартир в ЖК: 418
Москва, мкр Пригород Лесное (д Мисайлово), Молодежный б-р
Сдача в 4 кв. 2024 г
Квартир в ЖК: 479
Москва, поселение Рязановское, деревня Алхимово, ул Полевая
Сдача в 4 кв. 2025 г
Квартир в ЖК: 448
Москва, поселение Рязановское, деревня Алхимово
Сдача в 4 кв. 2025 г
Квартир в ЖК: 538
Москва, поселение Рязановское, деревня Алхимово
Сдача в 4 кв. 2025 г
Квартир в ЖК: 449
Москва, поселение Рязановское
Сдача в 4 кв. 2025 г
Квартир в ЖК: 379
Москва, г Балашиха, Балашихинское шоссе
Сдача в 1 кв. 2026 г
Квартир в ЖК: 335
Москва, г Балашиха, Балашихинское шоссе
Сдача в 1 кв. 2026 г
Квартир в ЖК: 253
Москва, г Балашиха, Балашихинское шоссе
Сдача в 4 кв. 2026 г
Квартир в ЖК: 176
Москва, г Балашиха, Балашихинское шоссе
Сдача в 1 кв. 2026 г
Квартир в ЖК: 528
Москва, г Балашиха, Балашихинское шоссе
Сдача в 3 кв. 2025 г
Квартир в ЖК: 165
Москва, рп Горки Ленинские
Сдача в 4 кв. 2025 г
Квартир в ЖК: 165
Москва, рп Горки Ленинские
Сдача в 4 кв. 2025 г
Квартир в ЖК: 132
Москва, рп Горки Ленинские
Сдача в 4 кв. 2026 г
Квартир в ЖК: 132
Москва, рп Горки Ленинские
Сдача в 4 кв. 2026 г
Квартир в ЖК: 714
Москва, рп Горки Ленинские
Сдача в 4 кв. 2025 г
Квартир в ЖК: 385
Москва, рп Горки Ленинские
Сдача в 4 кв. 2025 г
Квартир в ЖК: 329
Москва, рп Горки Ленинские
Сдача в 4 кв. 2025 г
Квартир в ЖК: 714
Москва, рп Горки Ленинские
Сдача в 2 кв. 2026 г
Квартир в ЖК: 396
Москва, рп Горки Ленинские
Сдача в 4 кв. 2026 г
Квартир в ЖК: 288
Москва, рп Горки Ленинские
Сдача в 4 кв. 2026 г
Квартир в ЖК: 170
Москва, ул Верейская,
Сдача в 2 кв. 2026 г
Квартир в ЖК: 126
Москва, ул Верейская
Сдача в 4 кв. 2025 г
Квартир в ЖК: 160
Москва, ул Верейская
Сдача в 4 кв. 2025 г
Квартир в ЖК: 210
Москва, ул Верейская,
Сдача в 4 кв. 2025 г
Квартир в ЖК: 162
Москва, ул Верейская
Сдача в 4 кв. 2025 г
Квартир в ЖК: 103
Москва, ул Верейская
Сдача в 4 кв. 2025 г
Квартир в ЖК: 163
Москва, ул Верейская
Сдача в 4 кв. 2025 г
Квартир в ЖК: 528
Москва, г Люберцы, рп Томилино, Новорязанское шоссе
Сдача в 2 кв. 2024 г
Квартир в ЖК: 352
Москва, поселок Мирный, Новорязанское шоссе
Сдача в 2 кв. 2024 г
Квартир в ЖК: 512
Москва, поселок Мирный, Новорязанское шоссе
Сдача в 2 кв. 2025 г
Квартир в ЖК: 960
Москва, поселок Мирный, Новорязанское шоссе
Сдача в 1 кв. 2025 г
Квартир в ЖК: 528
Москва, поселок Мирный, Новорязанское шоссе
Сдача в 2 кв. 2025 г
Квартир в ЖК: 464
Москва, поселок Мирный, Новорязанское шоссе
Сдача в 4 кв. 2025 г
Квартир в ЖК: 502
Москва, поселок Мирный, Новорязанское шоссе
Сдача в 4 кв. 2027 г
Квартир в ЖК: 684
Москва, Московская обл, ул Колхозная
Сдача в 3 кв. 2024 г
Квартир в ЖК: 660
Москва, Московская обл, ул Колхозная
Сдача в 4 кв. 2023 г
Квартир в ЖК: 770
Москва, ул Колхозная,
Сдача в 1 кв. 2026 г
Квартир в ЖК: 275
Москва, г Люберцы, поселок Жилино-1, ул Колхозная
Сдача в 2 кв. 2026 г

Похожие квартиры

В радиусе 1 километра
5 662 370 ₽Студия, 22.27 м², 9 эт.
Мытищи Парк Корпус 5
Москва, г Мытищи, ул Стрелковая
Заселение до 1 кв. 2026
5 685 954 ₽Студия, 22.27 м², 11 эт.
Мытищи Парк Корпус 5
Москва, г Мытищи, ул Стрелковая
Заселение до 1 кв. 2026
6 478 240 ₽Студия, 22.82 м², 9 эт.
Мытищи Парк Корпус 6
Москва, г Мытищи, ул Стрелковая
Заселение до 3 кв. 2026
5 528 379 ₽Студия, 21.4 м², 3 эт.
Мытищи Парк Корпус 4
Москва, ул Стрелковая
Заселение до 4 кв. 2024
Быстрый поиск новостроек
Метро
Округа и районы Москвы
Населенные пункты и районы МО
АБВГДЖЗИК
КЛМНОП