Жилой комплекс состоит из домов переменной этажности от 11 до 48 этажей. Здания возводятся по монолитной технологии с комбинированными фасадами из натурального камня и алюминиевых композитных панелей. Входные группы оформлены в современном стиле с использованием натуральных материалов, зелени и водных элементов. В домах установлены пассажирские и грузовые лифты.
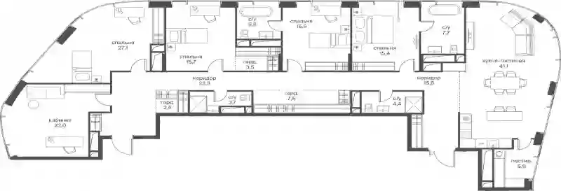
В проекте представлены студии и квартиры с 1–5 комнатами площадью от 34 до 264 кв. м. Доступны уникальные планировочные решения: лоты с террасами, лоджиями, окнами в ванной и панорамными видами на Москву-Сити. В квартирах установлены панорамные окна из алюминиевого профиля премиум-класса. Жилье передается без отделки. Предусмотрена система умного дома.
Территория комплекса благоустроена и разделена на тематические зоны: игровой двор Млечный путь, тихий двор Космический сад и спортивный двор Метеоритный сад. Для жителей предусмотрены образовательный центр, фитнес-центр с бассейном, комьюнити-центр, кафе и рестораны с летними террасами, минимаркет. На крыше нижних этажей расположен зеленый променад для прогулок и отдыха. За порядком следит профессиональная управляющая компания, также доступен круглосуточный консьерж-сервис 24/7. Установлены системы видеонаблюдения и контроля доступа в здание. Владельцам авто доступен подземный паркинг.
Проект расположен в Центральном административном округе Москвы, в Пресненском районе. В 5–15 минутах пешком находятся детские сады, школы, колледжи, вузы, медицинские учреждения, магазины, аптеки, кафе и рестораны, салоны красоты, фитнес-клубы и парки. Станция метро Улица 1905 года расположена в 20 минутах пешком. В 5 минутах транспортом — выезд на Садовое кольцо и ТТК, дорога до центра города занимает около 15 минут транспортом.
