











Проект «OPUS» представляет собой клубный дом класса DeLuxe — амбициозный проект легендарных авторов, архитектурного бюро ЦЛП. Ступенчатая внешняя фактура задает визуальный ритм, а матовый архитектурный бетон в облицовке усиливает ощущение чистоты и мягкости. Фасад продолжает основную концепцию: обилие стекла и разнообразие форм отсылают к образу водного потока. Акценты из алюминия и стали придают утонченную строгость линиям. Общественные пространства вдохновлены парижскими L’ Atelier Brancusi и Музеем Африки и Океании Musée du Quai Branly и разработаны известным дизайнером Натальей Белоноговой.
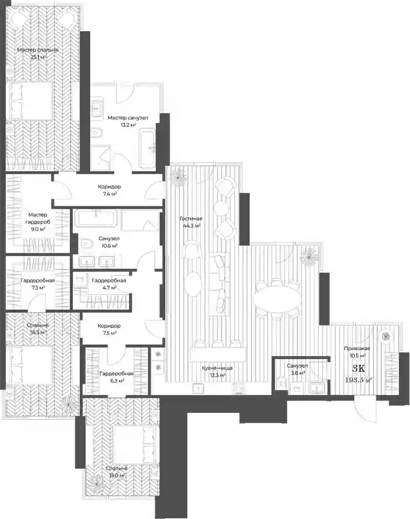
Все квартиры в проекте «OPUS» имеют максимальное остекление с видом на реку, а выступающие пилоны позволяют сохранить приватность. Активный многогранный рельеф позволил архитекторам скомпоновать оконные проёмы таким образом, чтобы виды на набережную открывались почти из всех квартир комплекса. Уникальные квартиры с 8 балконами на разные стороны света, не менее эффектные решения — кабинеты и гардеробные с отдельными балконами, а ванные комнаты с панорамными окнами и собственным балконом.
На придомовой территории ЖК «OPUS» выполнен ландшафтный дизайн. Пространство разделено на несколько зон, плавно перетекающих друг в друга. Здесь обнаруживается детская площадка в форме драгоценной жемчужины, а всесезонная спортивная площадка для командных игр в зимнее время превращается в каток. В проекте предусмотрены торговая галерея и бизнес-центр класса «А».
Проект «OPUS» располагается в историческом месте с видом на Крутицкое подворье и Симоновский вал. Совсем рядом — легендарное Замоскворечье — район, сохранивший камерную атмосферу старой Москвы. Павелецкий вокзал, аэроэкспресс в аэропорт Домодедово находятся всего в 20 минутах пешком.

Проект «SHIFT» создан архитектурным бюро «Цимайло Ляшенко и партнеры». Жилой квартал состоит из 5 башен, 4 из которых расположены по углам участка, а пятая фиксирует собой композиционный центр территории. Пространство между угловыми башнями занимают три одноэтажных павильона общественно-коммерческого назначения. В основу архитектурного решения комплекса положен модульный принцип — башни собраны из одинаковых элементов соединенных по-разному. Каждый этаж смещен относительно предыдущего, что делает пластику фасада активной и создает пространство для балконов и террас. В каждой башне предусмотрены просторные дизайнерские входные группы.
В ЖК «SHIFT» предложен широкий выбор планировок 1, 2, 3- комнатных квартир с высокими потолками от 3 метров и панорамными окнами, а также эксклюзивные лоты — квартиры с террасами и просторные пентхаусы. В наличии квартиры, как без отделки, так и с чистовой дизайнерской отделкой. Из окон открываются виды на Воробьевы горы, Нескучный сад, Москва-сити и главное здание МГУ.
Внутренний двор комплекса «SHIFT» оформлен как ландшафтный парк, кровли малоэтажных корпусов озеленяются, а на лоджиях всех башен высажены деревья в кадках. Двор украшают сделанные из камня полукруглые скамейки и пузатые кресла, необычные шезлонги, разнообразные кашпо. Для комфорта жителей предусмотрена система подогрева тротуарной плитки. На территории квартала расположены начальная школа на 210 учеников и детский сад на 100 воспитанников. В одноэтажных зданиях размещено множество сервисов: спортзал и сауна, зал для занятия с личным тренером, beauty-room, массажный кабинет, гостиная с баром, коворкинг, street retail, супермаркет, кафе и рестораны. Для владельцев автомобилей оборудован подземный паркинг с местами для электрокаров. Для хранения сезонных вещей предусмотрены келлеры и постаматы.
Жилой комплекс «SHIFT» расположен в Донском районе, на пересечении улицы Ордженикидзе и 2-Донского проезда. Инфраструктура района хорошо развита, в пешей доступности расположены школы, детские сады, магазины, крупные торговые центры. Жителям комплекса доступны прямые выезды на Ленинский проспект и ТТК. До метро «Площадь Гагарина» — 10 минут пешком.
Проект «SHIFT» создан архитектурным бюро «Цимайло Ляшенко и партнеры». Жилой квартал состоит из 5 башен, 4 из которых расположены по углам участка, а пятая фиксирует собой композиционный центр территории. Пространство между угловыми башнями занимают три одноэтажных павильона общественно-коммерческого назначения. В основу архитектурного решения комплекса положен модульный принцип — башни собраны из одинаковых элементов соединенных по-разному. Каждый этаж смещен относительно предыдущего, что делает пластику фасада активной и создает пространство для балконов и террас. В каждой башне предусмотрены просторные дизайнерские входные группы.
В ЖК «SHIFT» предложен широкий выбор планировок 1, 2, 3- комнатных квартир с высокими потолками от 3 метров и панорамными окнами, а также эксклюзивные лоты — квартиры с террасами и просторные пентхаусы. В наличии квартиры, как без отделки, так и с чистовой дизайнерской отделкой. Из окон открываются виды на Воробьевы горы, Нескучный сад, Москва-сити и главное здание МГУ.
Внутренний двор комплекса «SHIFT» оформлен как ландшафтный парк, кровли малоэтажных корпусов озеленяются, а на лоджиях всех башен высажены деревья в кадках. Двор украшают сделанные из камня полукруглые скамейки и пузатые кресла, необычные шезлонги, разнообразные кашпо. Для комфорта жителей предусмотрена система подогрева тротуарной плитки. На территории квартала расположены начальная школа на 210 учеников и детский сад на 100 воспитанников. В одноэтажных зданиях размещено множество сервисов: спортзал и сауна, зал для занятия с личным тренером, beauty-room, массажный кабинет, гостиная с баром, коворкинг, street retail, супермаркет, кафе и рестораны. Для владельцев автомобилей оборудован подземный паркинг с местами для электрокаров. Для хранения сезонных вещей предусмотрены келлеры и постаматы.
Жилой комплекс «SHIFT» расположен в Донском районе, на пересечении улицы Ордженикидзе и 2-Донского проезда. Инфраструктура района хорошо развита, в пешей доступности расположены школы, детские сады, магазины, крупные торговые центры. Жителям комплекса доступны прямые выезды на Ленинский проспект и ТТК. До метро «Площадь Гагарина» — 10 минут пешком.
Проект «SHIFT» создан архитектурным бюро «Цимайло Ляшенко и партнеры». Жилой квартал состоит из 5 башен, 4 из которых расположены по углам участка, а пятая фиксирует собой композиционный центр территории. Пространство между угловыми башнями занимают три одноэтажных павильона общественно-коммерческого назначения. В основу архитектурного решения комплекса положен модульный принцип — башни собраны из одинаковых элементов соединенных по-разному. Каждый этаж смещен относительно предыдущего, что делает пластику фасада активной и создает пространство для балконов и террас. В каждой башне предусмотрены просторные дизайнерские входные группы.
В ЖК «SHIFT» предложен широкий выбор планировок 1, 2, 3- комнатных квартир с высокими потолками от 3 метров и панорамными окнами, а также эксклюзивные лоты — квартиры с террасами и просторные пентхаусы. В наличии квартиры, как без отделки, так и с чистовой дизайнерской отделкой. Из окон открываются виды на Воробьевы горы, Нескучный сад, Москва-сити и главное здание МГУ.
Внутренний двор комплекса «SHIFT» оформлен как ландшафтный парк, кровли малоэтажных корпусов озеленяются, а на лоджиях всех башен высажены деревья в кадках. Двор украшают сделанные из камня полукруглые скамейки и пузатые кресла, необычные шезлонги, разнообразные кашпо. Для комфорта жителей предусмотрена система подогрева тротуарной плитки. На территории квартала расположены начальная школа на 210 учеников и детский сад на 100 воспитанников. В одноэтажных зданиях размещено множество сервисов: спортзал и сауна, зал для занятия с личным тренером, beauty-room, массажный кабинет, гостиная с баром, коворкинг, street retail, супермаркет, кафе и рестораны. Для владельцев автомобилей оборудован подземный паркинг с местами для электрокаров. Для хранения сезонных вещей предусмотрены келлеры и постаматы.
Жилой комплекс «SHIFT» расположен в Донском районе, на пересечении улицы Ордженикидзе и 2-Донского проезда. Инфраструктура района хорошо развита, в пешей доступности расположены школы, детские сады, магазины, крупные торговые центры. Жителям комплекса доступны прямые выезды на Ленинский проспект и ТТК. До метро «Площадь Гагарина» — 10 минут пешком.
Проект «SHIFT» создан архитектурным бюро «Цимайло Ляшенко и партнеры». Жилой квартал состоит из 5 башен, 4 из которых расположены по углам участка, а пятая фиксирует собой композиционный центр территории. Пространство между угловыми башнями занимают три одноэтажных павильона общественно-коммерческого назначения. В основу архитектурного решения комплекса положен модульный принцип — башни собраны из одинаковых элементов соединенных по-разному. Каждый этаж смещен относительно предыдущего, что делает пластику фасада активной и создает пространство для балконов и террас. В каждой башне предусмотрены просторные дизайнерские входные группы.
В ЖК «SHIFT» предложен широкий выбор планировок 1, 2, 3- комнатных квартир с высокими потолками от 3 метров и панорамными окнами, а также эксклюзивные лоты — квартиры с террасами и просторные пентхаусы. В наличии квартиры, как без отделки, так и с чистовой дизайнерской отделкой. Из окон открываются виды на Воробьевы горы, Нескучный сад, Москва-сити и главное здание МГУ.
Внутренний двор комплекса «SHIFT» оформлен как ландшафтный парк, кровли малоэтажных корпусов озеленяются, а на лоджиях всех башен высажены деревья в кадках. Двор украшают сделанные из камня полукруглые скамейки и пузатые кресла, необычные шезлонги, разнообразные кашпо. Для комфорта жителей предусмотрена система подогрева тротуарной плитки. На территории квартала расположены начальная школа на 210 учеников и детский сад на 100 воспитанников. В одноэтажных зданиях размещено множество сервисов: спортзал и сауна, зал для занятия с личным тренером, beauty-room, массажный кабинет, гостиная с баром, коворкинг, street retail, супермаркет, кафе и рестораны. Для владельцев автомобилей оборудован подземный паркинг с местами для электрокаров. Для хранения сезонных вещей предусмотрены келлеры и постаматы.
Жилой комплекс «SHIFT» расположен в Донском районе, на пересечении улицы Ордженикидзе и 2-Донского проезда. Инфраструктура района хорошо развита, в пешей доступности расположены школы, детские сады, магазины, крупные торговые центры. Жителям комплекса доступны прямые выезды на Ленинский проспект и ТТК. До метро «Площадь Гагарина» — 10 минут пешком.
ЖК «High life» — это 6 ультрасовременных башен высотой до 48 этажей. Концепцию проекта разработало московское бюро ADM. на 1 этаже разместятся колясочные, лобби с мягкой зоной и панорамными окнами, комната с почтовыми ящиками и зона ресепшн. входные группы и лифтовые холлы разработаны международной мастерской по дизайну интерьеров и ландшафтной архитектуре JAIME BERIESTAIN STUDIO.
Площадь квартир и пентхаусов в проекте «High life» составляет от 36 до 210 кв. метров, а высокие потолки создают атмосферу легкости. Квартиры представлены с панорамными окнами и стеклянными эркерами.
Перемещение по закрытой территории комплекса «High life» организовано по принципу бесключевого доступа. Дополнительно предусмотрена система обеззараживания входных групп ультрафиолетовыми лампами. Исключительный комфорт проекта дополняет безбарьерная среда с современной системой контроля доступа с распознаванием лиц, видеодомофоны, WI FI на всей территории проекта, музыкальное оформление лифтовых холлов и кабин. Уникальная особенность проекта — увеличенная площадь озеленения внутреннего пространства. В ЖК спроектирован двухуровневый внутренний двор, в центре проекта разбит сад с интересным рельефом, который украсит парящий пешеходный мост. Здесь расположены детская и спортивные площадки, оборудованы места для отдыха. Для владельцев автомобилей предусмотрен подземный паркинг.
Жилой комплекс «High life» расположен в Даниловском районе. В пешей доступности находятся детские сады, школы, магазины, кафе, медицинские учреждения, парк, фитнес клубы. До метро «Павелецкая» можно добраться за 15 минут пешком.
ЖК «High life» — это 6 ультрасовременных башен высотой до 48 этажей. Концепцию проекта разработало московское бюро ADM. на 1 этаже разместятся колясочные, лобби с мягкой зоной и панорамными окнами, комната с почтовыми ящиками и зона ресепшн. входные группы и лифтовые холлы разработаны международной мастерской по дизайну интерьеров и ландшафтной архитектуре JAIME BERIESTAIN STUDIO.
Площадь квартир и пентхаусов в проекте «High life» составляет от 36 до 210 кв. метров, а высокие потолки создают атмосферу легкости. Квартиры представлены с панорамными окнами и стеклянными эркерами.
Перемещение по закрытой территории комплекса «High life» организовано по принципу бесключевого доступа. Дополнительно предусмотрена система обеззараживания входных групп ультрафиолетовыми лампами. Исключительный комфорт проекта дополняет безбарьерная среда с современной системой контроля доступа с распознаванием лиц, видеодомофоны, WI FI на всей территории проекта, музыкальное оформление лифтовых холлов и кабин. Уникальная особенность проекта — увеличенная площадь озеленения внутреннего пространства. В ЖК спроектирован двухуровневый внутренний двор, в центре проекта разбит сад с интересным рельефом, который украсит парящий пешеходный мост. Здесь расположены детская и спортивные площадки, оборудованы места для отдыха. Для владельцев автомобилей предусмотрен подземный паркинг.
Жилой комплекс «High life» расположен в Даниловском районе. В пешей доступности находятся детские сады, школы, магазины, кафе, медицинские учреждения, парк, фитнес клубы. До метро «Павелецкая» можно добраться за 15 минут пешком.
ЖК «High life» — это 6 ультрасовременных башен высотой до 48 этажей. Концепцию проекта разработало московское бюро ADM. на 1 этаже разместятся колясочные, лобби с мягкой зоной и панорамными окнами, комната с почтовыми ящиками и зона ресепшн. входные группы и лифтовые холлы разработаны международной мастерской по дизайну интерьеров и ландшафтной архитектуре JAIME BERIESTAIN STUDIO.
Площадь квартир и пентхаусов в проекте «High life» составляет от 36 до 210 кв. метров, а высокие потолки создают атмосферу легкости. Квартиры представлены с панорамными окнами и стеклянными эркерами.
Перемещение по закрытой территории комплекса «High life» организовано по принципу бесключевого доступа. Дополнительно предусмотрена система обеззараживания входных групп ультрафиолетовыми лампами. Исключительный комфорт проекта дополняет безбарьерная среда с современной системой контроля доступа с распознаванием лиц, видеодомофоны, WI FI на всей территории проекта, музыкальное оформление лифтовых холлов и кабин. Уникальная особенность проекта — увеличенная площадь озеленения внутреннего пространства. В ЖК спроектирован двухуровневый внутренний двор, в центре проекта разбит сад с интересным рельефом, который украсит парящий пешеходный мост. Здесь расположены детская и спортивные площадки, оборудованы места для отдыха. Для владельцев автомобилей предусмотрен подземный паркинг.
Жилой комплекс «High life» расположен в Даниловском районе. В пешей доступности находятся детские сады, школы, магазины, кафе, медицинские учреждения, парк, фитнес клубы. До метро «Павелецкая» можно добраться за 15 минут пешком.

