









ЖК «Преображенская площадь» предусматривает 3 соединенных между собой корпуса «П»-образной формы и высотой от 6 до 17 этажей. В ЖК продуманы сквозные входные группы с возможностью входа как с внешней стороны здания, так и со двора. Арка с северной стороны расположена между секциями 6 и 7.
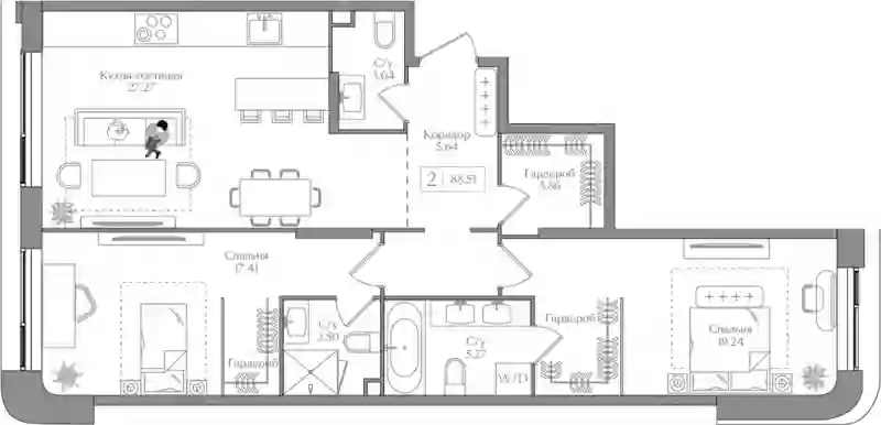
В жилом комплексе «Преображенская площадь» предложено множество планировочных решений: в наличии квартиры, как классического типа, так и европланировки. Сдаются они без отделки, высокими потолками от 3,1 метров и с увеличенными окнами.
В составе комплекса «Преображенская площадь» запроектированы собственная начальная школа на 430 мест и детский сад на 200 мест. На первых этажах расположены коммерческие помещения, а на придомовой территории выполнен ландшафтный дизайн. В жилом комплексе воплощена концепция «двор без машин». Для владельцев автомобилей предусмотрен подземный паркинг, в который спускается лифт из каждого подъезда.
ЖК «Преображенская площадь» находится в Преображенском районе, где развитая социальная и торговая инфраструктура, удобная транспортная доступность и близость к двум крупным парковым зонам — Парк Сокольники и Черкизовский парк. Метро «Преображенская площадь» расположено в 5 минутах пешком.

Жилой комплекс состоит из 3 кирпично-монолитных корпусов, высотой от 24 до 27 этажей, объединенных общим стилобатом. Архитектурная концепция проекта, разработанная бюро Atrium, основана на гармонии природных стихий и современного дизайна. В каждом корпусе есть лобби с уникальным дизайном, авторской мебелью и живыми растениями. Здесь можно отдохнуть в лаунж-зоне, посетить кафе-бар, расслабиться в клубной гостиной, а также отдохнуть в детском кафе с игровой комнатой. В комплексе предусмотрен консьерж-сервис.
В жилом комплексе представлен широкий выбор планировочных решений: от уютных студий до просторных 4-х комнатных квартир европейского формата. Площадь квартир варьируется от 28 до 88 квадратных метров. В квартирах предусмотрены ниши для шкафов и гардеробных, а также кухни-гостиные и мастер-спальни с отдельной гардеробной комнатой и санузлом. На верхних этажах находятся видовые пентхаусы площадью от 121 до 297 кв. метров с собственными террасами. Квартиры сдаются без отделки и внутренних перегородок. В каждой квартире высокие потолки и панорамное остекление. Из 95% квартир открывается вид на Москву-реку.
Территория комплекса представляет собой приватный двор-парк площадью 3 гектара. На территории проложены велосипедные и пешеходные дорожки, высажены высокие деревья и кустарники. Для удобства гостей оборудованы детские площадки для разных возрастов, «зелёные кабинеты», площадка для йоги, спортивная площадка, центральная площадь, зона открытого солярия, коворкинг-пространство, площадка для настольных игр, место для выгула собак и детский ландшафтный лабиринт. Для любителей прогулок есть благоустроенная набережная. На территории также функционирует детский сад. А для владельцев автомобилей предусмотрен подземный паркинг.
Жилой комплекс находится находится на Нагатинском полуострове на первой береговой линии Москвы-реки. Комплекс окружен разнообразной инфраструктурой: в шаговой доступности пляжный клуб Dream Beach Club с бассейнами, яхт-клуб Dream Island Marina, вейк-клуб Dream wake park, рестораны с видом на воду, магазины, фитнес-центр, спа-салон и крупный торговый центр. Рядом находится «Остров Мечты» — крупнейший крытый парк аттракционов в Европе. В пешей доступности метро «Технопарк», от комплекса 10 минут пешком до Южного речного вокзала. Садовое кольцо, деловой центр «Москва-Сити» и Красная площадь в 15 минутах транспортом.
Жилой комплекс состоит из 3 кирпично-монолитных корпусов, высотой от 24 до 27 этажей, объединенных общим стилобатом. Архитектурная концепция проекта, разработанная бюро Atrium, основана на гармонии природных стихий и современного дизайна. В каждом корпусе есть лобби с уникальным дизайном, авторской мебелью и живыми растениями. Здесь можно отдохнуть в лаунж-зоне, посетить кафе-бар, расслабиться в клубной гостиной, а также отдохнуть в детском кафе с игровой комнатой. В комплексе предусмотрен консьерж-сервис.
В жилом комплексе представлен широкий выбор планировочных решений: от уютных студий до просторных 4-х комнатных квартир европейского формата. Площадь квартир варьируется от 28 до 88 квадратных метров. В квартирах предусмотрены ниши для шкафов и гардеробных, а также кухни-гостиные и мастер-спальни с отдельной гардеробной комнатой и санузлом. На верхних этажах находятся видовые пентхаусы площадью от 121 до 297 кв. метров с собственными террасами. Квартиры сдаются без отделки и внутренних перегородок. В каждой квартире высокие потолки и панорамное остекление. Из 95% квартир открывается вид на Москву-реку.
Территория комплекса представляет собой приватный двор-парк площадью 3 гектара. На территории проложены велосипедные и пешеходные дорожки, высажены высокие деревья и кустарники. Для удобства гостей оборудованы детские площадки для разных возрастов, «зелёные кабинеты», площадка для йоги, спортивная площадка, центральная площадь, зона открытого солярия, коворкинг-пространство, площадка для настольных игр, место для выгула собак и детский ландшафтный лабиринт. Для любителей прогулок есть благоустроенная набережная. На территории также функционирует детский сад. А для владельцев автомобилей предусмотрен подземный паркинг.
Жилой комплекс находится находится на Нагатинском полуострове на первой береговой линии Москвы-реки. Комплекс окружен разнообразной инфраструктурой: в шаговой доступности пляжный клуб Dream Beach Club с бассейнами, яхт-клуб Dream Island Marina, вейк-клуб Dream wake park, рестораны с видом на воду, магазины, фитнес-центр, спа-салон и крупный торговый центр. Рядом находится «Остров Мечты» — крупнейший крытый парк аттракционов в Европе. В пешей доступности метро «Технопарк», от комплекса 10 минут пешком до Южного речного вокзала. Садовое кольцо, деловой центр «Москва-Сити» и Красная площадь в 15 минутах транспортом.
Жилой комплекс состоит из 3 кирпично-монолитных корпусов, высотой от 24 до 27 этажей, объединенных общим стилобатом. Архитектурная концепция проекта, разработанная бюро Atrium, основана на гармонии природных стихий и современного дизайна. В каждом корпусе есть лобби с уникальным дизайном, авторской мебелью и живыми растениями. Здесь можно отдохнуть в лаунж-зоне, посетить кафе-бар, расслабиться в клубной гостиной, а также отдохнуть в детском кафе с игровой комнатой. В комплексе предусмотрен консьерж-сервис.
В жилом комплексе представлен широкий выбор планировочных решений: от уютных студий до просторных 4-х комнатных квартир европейского формата. Площадь квартир варьируется от 28 до 88 квадратных метров. В квартирах предусмотрены ниши для шкафов и гардеробных, а также кухни-гостиные и мастер-спальни с отдельной гардеробной комнатой и санузлом. На верхних этажах находятся видовые пентхаусы площадью от 121 до 297 кв. метров с собственными террасами. Квартиры сдаются без отделки и внутренних перегородок. В каждой квартире высокие потолки и панорамное остекление. Из 95% квартир открывается вид на Москву-реку.
Территория комплекса представляет собой приватный двор-парк площадью 3 гектара. На территории проложены велосипедные и пешеходные дорожки, высажены высокие деревья и кустарники. Для удобства гостей оборудованы детские площадки для разных возрастов, «зелёные кабинеты», площадка для йоги, спортивная площадка, центральная площадь, зона открытого солярия, коворкинг-пространство, площадка для настольных игр, место для выгула собак и детский ландшафтный лабиринт. Для любителей прогулок есть благоустроенная набережная. На территории также функционирует детский сад. А для владельцев автомобилей предусмотрен подземный паркинг.
Жилой комплекс находится находится на Нагатинском полуострове на первой береговой линии Москвы-реки. Комплекс окружен разнообразной инфраструктурой: в шаговой доступности пляжный клуб Dream Beach Club с бассейнами, яхт-клуб Dream Island Marina, вейк-клуб Dream wake park, рестораны с видом на воду, магазины, фитнес-центр, спа-салон и крупный торговый центр. Рядом находится «Остров Мечты» — крупнейший крытый парк аттракционов в Европе. В пешей доступности метро «Технопарк», от комплекса 10 минут пешком до Южного речного вокзала. Садовое кольцо, деловой центр «Москва-Сити» и Красная площадь в 15 минутах транспортом.
ЖК «Dream Towers» состоит из 3 корпусов разной этажности. В отделке экстерьеров домов нашли отражение принципы стиля арт-деко: фасады из натурального камня, металлические декоративные элементы, панорамное остекление. Наружные стены корпусов выполнены по технологии вентилируемого фасада. В лобби башен сделана дизайнерская отделка и находится лаунж-зона.
В ЖК «Dream Towers» предложено множество планировочных решений: в наличии квартиры, как классического типа, так и европланировки. Сдаются они без отделки и высотой потолков от 3.15 метров.
Внутренняя территория ЖК «Dream Towers» закрыта для посторонних, на ней ведется постоянное видеонаблюдение. В проекте реализована концепция «двор без машин», на придомовой территории расположены детские и спортивные площадки. На первых этажах спроектированы коммерческие помещения. Для владельцев автомобилей предусмотрен подземный паркинг на 227 места, попасть на парковку можно на лифте непосредственно с жилого этажа. Всю территорию полуострова обрамляют живописные благоустроенные набережные. От подъездов до воды — 200 метров. Рядом с домами находится детский сад на 50 мест и начальная школа на 150 мест.
ЖК «Dream Towers» находится в Южном АО. До Садового кольца — 15 минут транспортом. В 5 минутах пешком — станция метро «Технопарк». Преимущество расположения Dream Towers — многочисленные парки, окружающие территорию комплекса со всех сторон: Северный и Южный ландшафтные парки, Тюфелева роща, Кожухово, через реку — знаменитый музей-заповедник Коломенское.
ЖК «Преображенская площадь» предусматривает 3 соединенных между собой корпуса «П»-образной формы и высотой от 6 до 17 этажей. В ЖК продуманы сквозные входные группы с возможностью входа как с внешней стороны здания, так и со двора. Арка с северной стороны расположена между секциями 6 и 7.
В жилом комплексе «Преображенская площадь» предложено множество планировочных решений: в наличии квартиры, как классического типа, так и европланировки. Сдаются они без отделки, высокими потолками от 3,1 метров и с увеличенными окнами.
В составе комплекса «Преображенская площадь» запроектированы собственная начальная школа на 430 мест и детский сад на 200 мест. На первых этажах расположены коммерческие помещения, а на придомовой территории выполнен ландшафтный дизайн. В жилом комплексе воплощена концепция «двор без машин». Для владельцев автомобилей предусмотрен подземный паркинг, в который спускается лифт из каждого подъезда.
ЖК «Преображенская площадь» находится в Преображенском районе, где развитая социальная и торговая инфраструктура, удобная транспортная доступность и близость к двум крупным парковым зонам — Парк Сокольники и Черкизовский парк. Метро «Преображенская площадь» расположено в 5 минутах пешком.
ЖК «Преображенская площадь» предусматривает 3 соединенных между собой корпуса «П»-образной формы и высотой от 6 до 17 этажей. В ЖК продуманы сквозные входные группы с возможностью входа как с внешней стороны здания, так и со двора. Арка с северной стороны расположена между секциями 6 и 7.
В жилом комплексе «Преображенская площадь» предложено множество планировочных решений: в наличии квартиры, как классического типа, так и европланировки. Сдаются они без отделки, высокими потолками от 3,1 метров и с увеличенными окнами.
В составе комплекса «Преображенская площадь» запроектированы собственная начальная школа на 430 мест и детский сад на 200 мест. На первых этажах расположены коммерческие помещения, а на придомовой территории выполнен ландшафтный дизайн. В жилом комплексе воплощена концепция «двор без машин». Для владельцев автомобилей предусмотрен подземный паркинг, в который спускается лифт из каждого подъезда.
ЖК «Преображенская площадь» находится в Преображенском районе, где развитая социальная и торговая инфраструктура, удобная транспортная доступность и близость к двум крупным парковым зонам — Парк Сокольники и Черкизовский парк. Метро «Преображенская площадь» расположено в 5 минутах пешком.
ЖК «Преображенская площадь» предусматривает 3 соединенных между собой корпуса «П»-образной формы и высотой от 6 до 17 этажей. В ЖК продуманы сквозные входные группы с возможностью входа как с внешней стороны здания, так и со двора. Арка с северной стороны расположена между секциями 6 и 7.
В жилом комплексе «Преображенская площадь» предложено множество планировочных решений: в наличии квартиры, как классического типа, так и европланировки. Сдаются они без отделки, высокими потолками от 3,1 метров и с увеличенными окнами.
В составе комплекса «Преображенская площадь» запроектированы собственная начальная школа на 430 мест и детский сад на 200 мест. На первых этажах расположены коммерческие помещения, а на придомовой территории выполнен ландшафтный дизайн. В жилом комплексе воплощена концепция «двор без машин». Для владельцев автомобилей предусмотрен подземный паркинг, в который спускается лифт из каждого подъезда.
ЖК «Преображенская площадь» находится в Преображенском районе, где развитая социальная и торговая инфраструктура, удобная транспортная доступность и близость к двум крупным парковым зонам — Парк Сокольники и Черкизовский парк. Метро «Преображенская площадь» расположено в 5 минутах пешком.
ЖК «Преображенская площадь» предусматривает 3 соединенных между собой корпуса «П»-образной формы и высотой от 6 до 17 этажей. В ЖК продуманы сквозные входные группы с возможностью входа как с внешней стороны здания, так и со двора. Арка с северной стороны расположена между секциями 6 и 7.
В жилом комплексе «Преображенская площадь» предложено множество планировочных решений: в наличии квартиры, как классического типа, так и европланировки. Сдаются они без отделки, высокими потолками от 3,1 метров и с увеличенными окнами.
В составе комплекса «Преображенская площадь» запроектированы собственная начальная школа на 430 мест и детский сад на 200 мест. На первых этажах расположены коммерческие помещения, а на придомовой территории выполнен ландшафтный дизайн. В жилом комплексе воплощена концепция «двор без машин». Для владельцев автомобилей предусмотрен подземный паркинг, в который спускается лифт из каждого подъезда.
ЖК «Преображенская площадь» находится в Преображенском районе, где развитая социальная и торговая инфраструктура, удобная транспортная доступность и близость к двум крупным парковым зонам — Парк Сокольники и Черкизовский парк. Метро «Преображенская площадь» расположено в 5 минутах пешком.
ЖК «Преображенская площадь» предусматривает 3 соединенных между собой корпуса «П»-образной формы и высотой от 6 до 17 этажей. В ЖК продуманы сквозные входные группы с возможностью входа как с внешней стороны здания, так и со двора. Арка с северной стороны расположена между секциями 6 и 7.
В жилом комплексе «Преображенская площадь» предложено множество планировочных решений: в наличии квартиры, как классического типа, так и европланировки. Сдаются они без отделки, высокими потолками от 3,1 метров и с увеличенными окнами.
В составе комплекса «Преображенская площадь» запроектированы собственная начальная школа на 430 мест и детский сад на 200 мест. На первых этажах расположены коммерческие помещения, а на придомовой территории выполнен ландшафтный дизайн. В жилом комплексе воплощена концепция «двор без машин». Для владельцев автомобилей предусмотрен подземный паркинг, в который спускается лифт из каждого подъезда.
ЖК «Преображенская площадь» находится в Преображенском районе, где развитая социальная и торговая инфраструктура, удобная транспортная доступность и близость к двум крупным парковым зонам — Парк Сокольники и Черкизовский парк. Метро «Преображенская площадь» расположено в 5 минутах пешком.
ЖК «Преображенская площадь» предусматривает 3 соединенных между собой корпуса «П»-образной формы и высотой от 6 до 17 этажей. В ЖК продуманы сквозные входные группы с возможностью входа как с внешней стороны здания, так и со двора. Арка с северной стороны расположена между секциями 6 и 7.
В жилом комплексе «Преображенская площадь» предложено множество планировочных решений: в наличии квартиры, как классического типа, так и европланировки. Сдаются они без отделки, высокими потолками от 3,1 метров и с увеличенными окнами.
В составе комплекса «Преображенская площадь» запроектированы собственная начальная школа на 430 мест и детский сад на 200 мест. На первых этажах расположены коммерческие помещения, а на придомовой территории выполнен ландшафтный дизайн. В жилом комплексе воплощена концепция «двор без машин». Для владельцев автомобилей предусмотрен подземный паркинг, в который спускается лифт из каждого подъезда.
ЖК «Преображенская площадь» находится в Преображенском районе, где развитая социальная и торговая инфраструктура, удобная транспортная доступность и близость к двум крупным парковым зонам — Парк Сокольники и Черкизовский парк. Метро «Преображенская площадь» расположено в 5 минутах пешком.

