
В рамках проекта планируется строительство 5 монолитных домов бизнес-класса. Первый этап строительства включает в себя 3 монолитных 9-этажных дома. Проект имеет выразительную архитектуру в спокойных теплых тонах с бионической геометрией фасадов и большой площадью остекления. В отделке фасадов применяются инновационные японские фиброцементные фасадные панели KMEW. В домах выполнен авторский дизайн мест общего пользования. В каждом подъезде предусмотрены колясочные и лапомойки. Все дома возводятся по концепции Eco-Smart с использованием современных энергоэффективных технологий и оборудованы системой «умный дом».
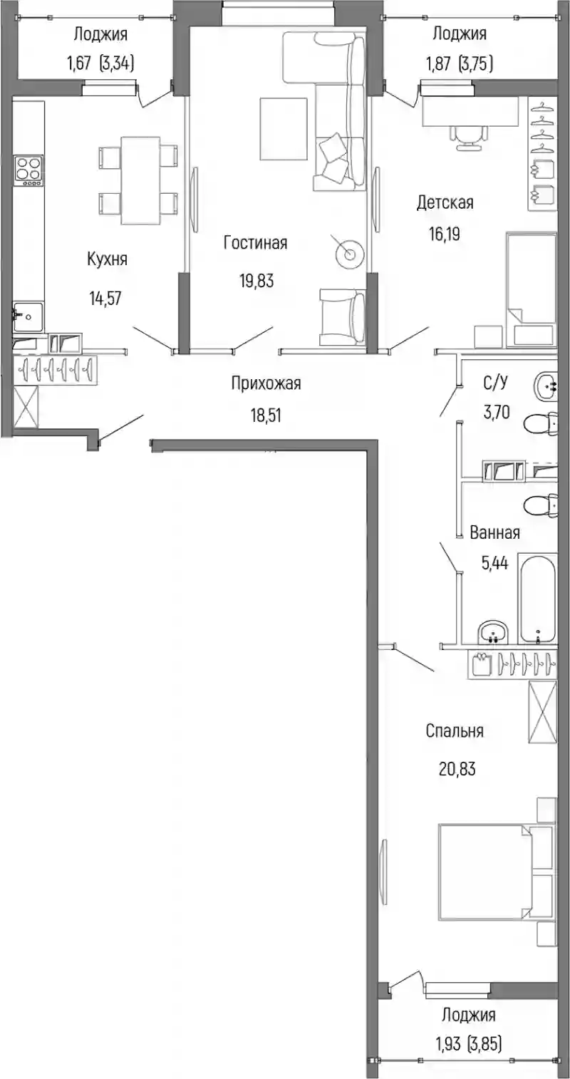
В комплексе представлен широкий выбор разнообразных планировок: от компактных студий до пятикомнатных квартир европейского формата. Есть планировки с гардеробными и несколькими санузлами. Все квартиры имеют застекленные балконы или лоджии. Квартиры сдаются в различных вариантах: с базовой подчистовой отделкой white box и без отделки с трассировкой стен.
Комплекс имеет приватный живописный двор-сад с зелеными скверами и прогулочными аллеями. Во дворе размещены игровые площадки для детей и подростков и многофункциональные спортивные площадки, беговые и велодорожки, площадки для футбола и волейбола, мини-стадионы, зона воркаута и столы для пинг-понга, площадки для выгула собак, зоны для медитации и занятий йогой, лаунж-зоны с беседками, качелями и лежаками. В комплексе предусмотрен подземный паркинг, а также гостевой уличный паркинг. На подземном этаже располагаются кладовые, рассчитанные по принципу: одна кладовая на каждую квартиру.
Жилой комплекс расположен в ГО Красногорск, у деревни Бузланово. В 10–15 минутах от комплекса расположены несколько частных и общеобразовательных школ и гимназий. До госпиталя им. А. А. Вишневского — 3 минуты, до Ильинской больницы — 7 минут. Крупный торговый центр «Ригамолл» — всего в 9 минутах езды, а до гипермаркета «Глобус», ТЦ «Ильинский» и продуктового рынка — 7 минут. В 4 минутах находится офисный центр Riga Land. В 35 минутах транспортом метро «Строгино», «Волоколамская» и «Тушинская», МЦД-2 «Павшино». Комплекс имеет собственный выезд на дублер Новорижского шоссе. В 2025 году в 10 минутах от комплекса будет открыта станция метро «Ильинская».
