
Проект представляет собой малоэтажный жилой комплекс элитного класса. Здания возведены по монолитной технологии, с вентилируемыми фасадами из декоративного белого камня. Комплекс состоит из 4 корпусов, которые названы в честь звезд. В проекте представлено гранд-лобби с лаунж-зонами и услугами консьержа.
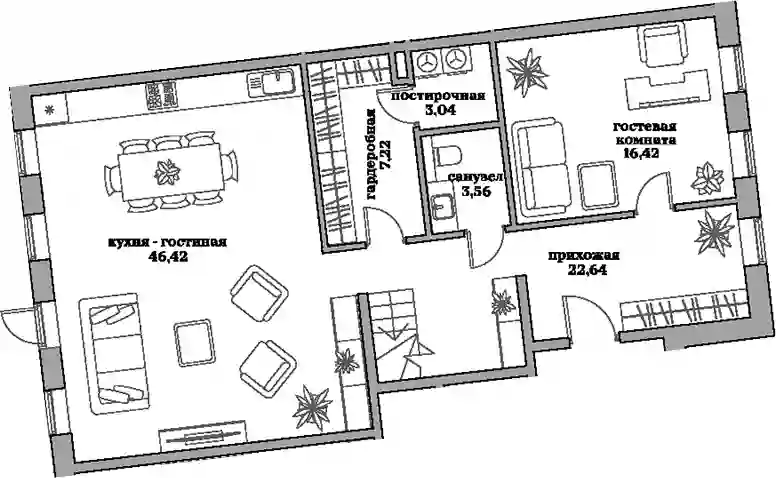
В комплексе предусмотрено множество планировок: квартиры с 1–3 спальнями, резиденции с патио, пентхаусы с террасами и уникальные урбан-виллы. Окна и террасы резиденций обращены либо на набережную, либо на приватный сад. Сдаются квартиры с панорамными окнами и высотой потолков до 3,9 метра.
На территории: комнаты для бизнес-встреч, зона для ухода за собой, зоны отдыха и современный фитнес-зал. Внутренний двор озеленен, есть ухоженный сад. Для владельцев автомобилей предусмотрен подземный паркинг. Вход в комплекс осуществляется через лобби по системе СКУД, доступ на подземный паркинг — с помощью индивидуальной метки.
Комплекс находится на первой линии острова Балчуг в Замоскворечье. ЖК расположен в 5 минутах от Садового кольца с быстрым выездом на главные транспортные артерии города. До Красной площади можно добраться за 10 минут транспортом.
