
Проект «SHIFT» создан архитектурным бюро «Цимайло Ляшенко и партнеры». Жилой квартал состоит из 5 башен, 4 из которых расположены по углам участка, а пятая фиксирует собой композиционный центр территории. Пространство между угловыми башнями занимают три одноэтажных павильона общественно-коммерческого назначения. В основу архитектурного решения комплекса положен модульный принцип — башни собраны из одинаковых элементов соединенных по-разному. Каждый этаж смещен относительно предыдущего, что делает пластику фасада активной и создает пространство для балконов и террас. В каждой башне предусмотрены просторные дизайнерские входные группы.
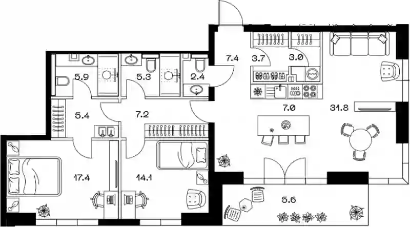
В ЖК «SHIFT» предложен широкий выбор планировок 1, 2, 3- комнатных квартир с высокими потолками от 3 метров и панорамными окнами, а также эксклюзивные лоты — квартиры с террасами и просторные пентхаусы. В наличии квартиры, как без отделки, так и с чистовой дизайнерской отделкой. Из окон открываются виды на Воробьевы горы, Нескучный сад, Москва-сити и главное здание МГУ.
Внутренний двор комплекса «SHIFT» оформлен как ландшафтный парк, кровли малоэтажных корпусов озеленяются, а на лоджиях всех башен высажены деревья в кадках. Двор украшают сделанные из камня полукруглые скамейки и пузатые кресла, необычные шезлонги, разнообразные кашпо. Для комфорта жителей предусмотрена система подогрева тротуарной плитки. На территории квартала расположены начальная школа на 210 учеников и детский сад на 100 воспитанников. В одноэтажных зданиях размещено множество сервисов: спортзал и сауна, зал для занятия с личным тренером, beauty-room, массажный кабинет, гостиная с баром, коворкинг, street retail, супермаркет, кафе и рестораны. Для владельцев автомобилей оборудован подземный паркинг с местами для электрокаров. Для хранения сезонных вещей предусмотрены келлеры и постаматы.
Жилой комплекс «SHIFT» расположен в Донском районе, на пересечении улицы Ордженикидзе и 2-Донского проезда. Инфраструктура района хорошо развита, в пешей доступности расположены школы, детские сады, магазины, крупные торговые центры. Жителям комплекса доступны прямые выезды на Ленинский проспект и ТТК. До метро «Площадь Гагарина» — 10 минут пешком.
