











Проект «Тропарево Парк» включает в себя 7 корпусов высотой 16-23 этажа. Для отделки фасадов использован светлый и темный облицовочный кирпич. Дизайн входных групп выполнен по индивидуальному проекту от студии BALCON. За основу взяты спокойные оттенки: черный, серый, пыльная роза. Для акцентов использованы элементы из латуни и картины в авангардном стиле. Вход в парадные расположены на уровне земли, без ступеней и пандусов. На первых этажах предусмотрены места для хранения колясок и велосипедов.
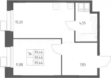
ЖК «Тропарево Парк» предложено множество планировочных решений: в наличии квартиры, как классического типа, так и европланировки. В каждой планировке предусмотрена установка декоративных металлических корзин для кондиционеров.
Двор закрыт для автомобилей и случайных прохожих. 2 наземных паркинга вынесены за пределы двора. Разработкой общественного пространства занимается архитектурная дизайн-студия GAFA architects.Во дворе высажены деревья, кустарники и многолетние травы. Спроектированы детские площадки с горками и батутами, а также спортивные зоны с тренажерами и настольным теннисом.
Проект расположен на территории Новой Москвы вблизи Тропаревского парка. Рядом находится бизнес-парк «Румянцево» и крупный торговый центр «Саларис», а в 15 минутах транспортом — «Леруа Мерлен». В 10 минутах пешком находится метро «Румянцево», в шаговой доступности — остановка «Дудкино», от которой ходят автобусы и маршрутки до метро «Юго-Западная», платформы Переделкино и 5-го микрорайона Солнцево.

Жилой квартал «Спутник» – проект архитектурных бюро Москвы «Резерв» и «Остоженка». Яркие фасады создают настроение и придают кварталу индивидуальность. Вентилируемая система продлевает долговечность фасадов и наделяет их высокими эксплуатационными характеристиками, а расцветка сохраняет единый архитектурный облик домов. Дизайн отделки просторных входных групп с высокими потолками оформлен в современном стиле.
Из окон квартир открываются виды на Живописную бухту и Липовую рощу. Застройщик предлагает более 40 разнообразных планировочных решений, в том числе совмещенные XL-планировки с возможностью объединения пространств. Квартиры передаются дольщикам с отделкой «Современная классика».
Входы в подъезды находятся на уровне земли, благодаря чему легко вернуться домой с коляской или велосипедом. В каждом корпусе предусмотрено по четыре лифта грузоподъемностью 1250 кг каждый. Один из них спускается к паркингу и кладовым в подземной части. В цоколе находятся двухуровневые отапливаемые паркинги на 458 мест. В составе объекта предусмотрены три детских сада на 450 мест, школа на 825 мест, медицинский центр и фитнес-клуб. Придомовая территория благоустроена зелеными зонами, местами для прогулок, спортивными и тематическими детскими площадками. Через центр комплекса проходит бульвар с магазинами, кафе, булочными и другими объектами инфраструктуры.
Жилой комплекс находится на Мякининском шоссе. В районе расположены продуктовые магазины, отделения почты и банков, а также медицинские учреждения. Выезд на МКАД находится в двух минутах транспортом, метро «Строгино» – в 10 минутах транспортом.
Жилой квартал «Спутник» – проект архитектурных бюро Москвы «Резерв» и «Остоженка». Яркие фасады создают настроение и придают кварталу индивидуальность. Вентилируемая система продлевает долговечность фасадов и наделяет их высокими эксплуатационными характеристиками, а расцветка сохраняет единый архитектурный облик домов. Дизайн отделки просторных входных групп с высокими потолками оформлен в современном стиле.
Из окон квартир открываются виды на Живописную бухту и Липовую рощу. Застройщик предлагает более 40 разнообразных планировочных решений, в том числе совмещенные XL-планировки с возможностью объединения пространств. Квартиры передаются дольщикам с отделкой «Современная классика».
Входы в подъезды находятся на уровне земли, благодаря чему легко вернуться домой с коляской или велосипедом. В каждом корпусе предусмотрено по четыре лифта грузоподъемностью 1250 кг каждый. Один из них спускается к паркингу и кладовым в подземной части. В цоколе находятся двухуровневые отапливаемые паркинги на 458 мест. В составе объекта предусмотрены три детских сада на 450 мест, школа на 825 мест, медицинский центр и фитнес-клуб. Придомовая территория благоустроена зелеными зонами, местами для прогулок, спортивными и тематическими детскими площадками. Через центр комплекса проходит бульвар с магазинами, кафе, булочными и другими объектами инфраструктуры.
Жилой комплекс находится на Мякининском шоссе. В районе расположены продуктовые магазины, отделения почты и банков, а также медицинские учреждения. Выезд на МКАД находится в двух минутах транспортом, метро «Строгино» – в 10 минутах транспортом.
Жилой квартал «Спутник» – проект архитектурных бюро Москвы «Резерв» и «Остоженка». Яркие фасады создают настроение и придают кварталу индивидуальность. Вентилируемая система продлевает долговечность фасадов и наделяет их высокими эксплуатационными характеристиками, а расцветка сохраняет единый архитектурный облик домов. Дизайн отделки просторных входных групп с высокими потолками оформлен в современном стиле.
Из окон квартир открываются виды на Живописную бухту и Липовую рощу. Застройщик предлагает более 40 разнообразных планировочных решений, в том числе совмещенные XL-планировки с возможностью объединения пространств. Квартиры передаются дольщикам с отделкой «Современная классика».
Входы в подъезды находятся на уровне земли, благодаря чему легко вернуться домой с коляской или велосипедом. В каждом корпусе предусмотрено по четыре лифта грузоподъемностью 1250 кг каждый. Один из них спускается к паркингу и кладовым в подземной части. В цоколе находятся двухуровневые отапливаемые паркинги на 458 мест. В составе объекта предусмотрены три детских сада на 450 мест, школа на 825 мест, медицинский центр и фитнес-клуб. Придомовая территория благоустроена зелеными зонами, местами для прогулок, спортивными и тематическими детскими площадками. Через центр комплекса проходит бульвар с магазинами, кафе, булочными и другими объектами инфраструктуры.
Жилой комплекс находится на Мякининском шоссе. В районе расположены продуктовые магазины, отделения почты и банков, а также медицинские учреждения. Выезд на МКАД находится в двух минутах транспортом, метро «Строгино» – в 10 минутах транспортом.
Жилой квартал «Спутник» – проект архитектурных бюро Москвы «Резерв» и «Остоженка». Яркие фасады создают настроение и придают кварталу индивидуальность. Вентилируемая система продлевает долговечность фасадов и наделяет их высокими эксплуатационными характеристиками, а расцветка сохраняет единый архитектурный облик домов. Дизайн отделки просторных входных групп с высокими потолками оформлен в современном стиле.
Из окон квартир открываются виды на Живописную бухту и Липовую рощу. Застройщик предлагает более 40 разнообразных планировочных решений, в том числе совмещенные XL-планировки с возможностью объединения пространств. Квартиры передаются дольщикам с отделкой «Современная классика».
Входы в подъезды находятся на уровне земли, благодаря чему легко вернуться домой с коляской или велосипедом. В каждом корпусе предусмотрено по четыре лифта грузоподъемностью 1250 кг каждый. Один из них спускается к паркингу и кладовым в подземной части. В цоколе находятся двухуровневые отапливаемые паркинги на 458 мест. В составе объекта предусмотрены три детских сада на 450 мест, школа на 825 мест, медицинский центр и фитнес-клуб. Придомовая территория благоустроена зелеными зонами, местами для прогулок, спортивными и тематическими детскими площадками. Через центр комплекса проходит бульвар с магазинами, кафе, булочными и другими объектами инфраструктуры.
Жилой комплекс находится на Мякининском шоссе. В районе расположены продуктовые магазины, отделения почты и банков, а также медицинские учреждения. Выезд на МКАД находится в двух минутах транспортом, метро «Строгино» – в 10 минутах транспортом.
Проект «Алхимово» представляет собой жилой комплекс из нескольких корпусов высотой до 15 этажей. Лаконичные фасады корпусов выполнены в светлых и темных оттенках. Всего проект занимает площадь 44,6 га.
Покупателям в ЖК «Алхимово» предложено множество планировочных решений: в наличии квартиры, как классического типа, так и европланировки. Они передаются дольщикам с чистовой отделкой и без отделки.
Проект включает в себя детские сады и школы. Архитектурное расположение домов образует закрытый двор от машин и случайных прохожих. Для автовладельцев предусмотрены подземные паркинги. На первых этажах находятся кафе, магазины, салоны красоты и аптеки. На придомовой территории располагаются детские и спортивные площадки, пешеходные дорожки и места для отдыха.
Проект реализуется в экологически чистом районе на юге Новой Москвы. Ближайшее окружение квартала — поселение Знамя Октября, лесные массивы и берег реки Десны. В пешей доступности от дома – магазины, поликлиники, детские сады и школы. В 20 минутах ходьбы находится ж/д станция Силикатная, с которой можно за час доехать до центра Москвы. В радиусе 15 км расположено большое количество торгово-развлекательных центров: Бутово Молл, ТРЦ Акварель, ТЦ Капитолий, Карусель и гипермаркет Глобус.
Проект «Алхимово» представляет собой жилой комплекс из нескольких корпусов высотой до 15 этажей. Лаконичные фасады корпусов выполнены в светлых и темных оттенках. Всего проект занимает площадь 44,6 га.
Покупателям в ЖК «Алхимово» предложено множество планировочных решений: в наличии квартиры, как классического типа, так и европланировки. Они передаются дольщикам с чистовой отделкой и без отделки.
Проект включает в себя детские сады и школы. Архитектурное расположение домов образует закрытый двор от машин и случайных прохожих. Для автовладельцев предусмотрены подземные паркинги. На первых этажах находятся кафе, магазины, салоны красоты и аптеки. На придомовой территории располагаются детские и спортивные площадки, пешеходные дорожки и места для отдыха.
Проект реализуется в экологически чистом районе на юге Новой Москвы. Ближайшее окружение квартала — поселение Знамя Октября, лесные массивы и берег реки Десны. В пешей доступности от дома – магазины, поликлиники, детские сады и школы. В 20 минутах ходьбы находится ж/д станция Силикатная, с которой можно за час доехать до центра Москвы. В радиусе 15 км расположено большое количество торгово-развлекательных центров: Бутово Молл, ТРЦ Акварель, ТЦ Капитолий, Карусель и гипермаркет Глобус.
Проект «Мытищи Парк» предусматривает строительство 7 кварталов жилых домов переменой этажности. Входные группы расположены на уровне земли, без ступеней и пандусов. Дизайном мест общего пользования занимались специалисты архитектурных бюро Gren, GAFA и «Олимпроект». На первых этажах обустроены места для хранения колясок и велосипедов.
В ЖК «Мытищи Парк» предложено множество планировочных решений: в наличии квартиры, как классического типа, так иевропланировки. Квартиры сдаются с чистовой отделкой.
Проект «Мытищи Парк»включает 3 детских сада, 2 школы ифизкультурно-оздоровительныйкомплекс. На первых этажах размещены кафе, пекарни, магазины, детские кружки, бытовые услуги. Территория комплекса ограждена. Обустроен пешеходный бульвар с центральной площадью для проведения мероприятий. Детские площадки комплекса всесезонные и рассчитаны на детей разного возраста.
Комплекс с двух сторон окружает Пироговский лесопарк площадью 1800 га. До национального парка «Лосиный остров» и Пироговского водохранилища — 15 минут на автомобиле. В 10–15 минутах езды от «Мытищи Парк» расположены крупные ТРЦ и супермаркеты, а также школы, поликлиники, развивающие центры и спортклубы. Ближайшая ж/д станция «Строитель» расположена в 25 минутах пешком. МКАД находится в 10 км от комплекса.
Проект «Мытищи Парк» предусматривает строительство 7 кварталов жилых домов переменой этажности. Входные группы расположены на уровне земли, без ступеней и пандусов. Дизайном мест общего пользования занимались специалисты архитектурных бюро Gren, GAFA и «Олимпроект». На первых этажах обустроены места для хранения колясок и велосипедов.
В ЖК «Мытищи Парк» предложено множество планировочных решений: в наличии квартиры, как классического типа, так иевропланировки. Квартиры сдаются с чистовой отделкой.
Проект «Мытищи Парк»включает 3 детских сада, 2 школы ифизкультурно-оздоровительныйкомплекс. На первых этажах размещены кафе, пекарни, магазины, детские кружки, бытовые услуги. Территория комплекса ограждена. Обустроен пешеходный бульвар с центральной площадью для проведения мероприятий. Детские площадки комплекса всесезонные и рассчитаны на детей разного возраста.
Комплекс с двух сторон окружает Пироговский лесопарк площадью 1800 га. До национального парка «Лосиный остров» и Пироговского водохранилища — 15 минут на автомобиле. В 10–15 минутах езды от «Мытищи Парк» расположены крупные ТРЦ и супермаркеты, а также школы, поликлиники, развивающие центры и спортклубы. Ближайшая ж/д станция «Строитель» расположена в 25 минутах пешком. МКАД находится в 10 км от комплекса.
Проект «Мытищи Парк» предусматривает строительство 7 кварталов жилых домов переменой этажности. Входные группы расположены на уровне земли, без ступеней и пандусов. Дизайном мест общего пользования занимались специалисты архитектурных бюро Gren, GAFA и «Олимпроект». На первых этажах обустроены места для хранения колясок и велосипедов.
В ЖК «Мытищи Парк» предложено множество планировочных решений: в наличии квартиры, как классического типа, так иевропланировки. Квартиры сдаются с чистовой отделкой.
Проект «Мытищи Парк»включает 3 детских сада, 2 школы ифизкультурно-оздоровительныйкомплекс. На первых этажах размещены кафе, пекарни, магазины, детские кружки, бытовые услуги. Территория комплекса ограждена. Обустроен пешеходный бульвар с центральной площадью для проведения мероприятий. Детские площадки комплекса всесезонные и рассчитаны на детей разного возраста.
Комплекс с двух сторон окружает Пироговский лесопарк площадью 1800 га. До национального парка «Лосиный остров» и Пироговского водохранилища — 15 минут на автомобиле. В 10–15 минутах езды от «Мытищи Парк» расположены крупные ТРЦ и супермаркеты, а также школы, поликлиники, развивающие центры и спортклубы. Ближайшая ж/д станция «Строитель» расположена в 25 минутах пешком. МКАД находится в 10 км от комплекса.
Жилой комплекс «Подольские Кварталы» — современный проект переменной этажности, возведенный по технологии кирпично-монолитного строительства. Для удобства жителей спроектирована полностью безбарьерная среда. Входы в сквозные подъезды выполнены на уровне земли, без ступеней и порогов. Также в подъезде предусмотрены отдельные помещения для хранения колясок и велосипедов. Первые этажи здания отведены под коммерческие помещения.
Жилой комплекс «Подольские Кварталы» предлагает множество планировочных решений — от студий до просторных 4х-комнатных квартир с высотой потолков от 2,78 до 3,98 метров. Все квартиры сдаются без внутренних стен.
Территория комплекса находится под круглосуточным видеонаблюдением. Имеется детский сад, школа, учебно-воспитательный комплекс. Для быстрого шоппинга построен торговый центр.
«Подольские Кварталы» находятся в 15 километрах от МКАД вблизи Дубровицкого леса. До станции МЦД-2 «Силикатная» дорога займет 10 минут на автомобиле. В окрестностях расположено множество парков и усадьб — Остафьево, Плещеево, Дубровицы.
Жилой комплекс «Подольские Кварталы» — современный проект переменной этажности, возведенный по технологии кирпично-монолитного строительства. Для удобства жителей спроектирована полностью безбарьерная среда. Входы в сквозные подъезды выполнены на уровне земли, без ступеней и порогов. Также в подъезде предусмотрены отдельные помещения для хранения колясок и велосипедов. Первые этажи здания отведены под коммерческие помещения.
Жилой комплекс «Подольские Кварталы» предлагает множество планировочных решений — от студий до просторных 4х-комнатных квартир с высотой потолков от 2,78 до 3,98 метров. Все квартиры сдаются без внутренних стен.
Территория комплекса находится под круглосуточным видеонаблюдением. Имеется детский сад, школа, учебно-воспитательный комплекс. Для быстрого шоппинга построен торговый центр.
«Подольские Кварталы» находятся в 15 километрах от МКАД вблизи Дубровицкого леса. До станции МЦД-2 «Силикатная» дорога займет 10 минут на автомобиле. В окрестностях расположено множество парков и усадьб — Остафьево, Плещеево, Дубровицы.
Жилой комплекс «Подольские Кварталы» — современный проект переменной этажности, возведенный по технологии кирпично-монолитного строительства. Для удобства жителей спроектирована полностью безбарьерная среда. Входы в сквозные подъезды выполнены на уровне земли, без ступеней и порогов. Также в подъезде предусмотрены отдельные помещения для хранения колясок и велосипедов. Первые этажи здания отведены под коммерческие помещения.
Жилой комплекс «Подольские Кварталы» предлагает множество планировочных решений — от студий до просторных 4х-комнатных квартир с высотой потолков от 2,78 до 3,98 метров. Все квартиры сдаются без внутренних стен.
Территория комплекса находится под круглосуточным видеонаблюдением. Имеется детский сад, школа, учебно-воспитательный комплекс. Для быстрого шоппинга построен торговый центр.
«Подольские Кварталы» находятся в 15 километрах от МКАД вблизи Дубровицкого леса. До станции МЦД-2 «Силикатная» дорога займет 10 минут на автомобиле. В окрестностях расположено множество парков и усадьб — Остафьево, Плещеево, Дубровицы.
Жилой комплекс «Подольские Кварталы» — современный проект переменной этажности, возведенный по технологии кирпично-монолитного строительства. Для удобства жителей спроектирована полностью безбарьерная среда. Входы в сквозные подъезды выполнены на уровне земли, без ступеней и порогов. Также в подъезде предусмотрены отдельные помещения для хранения колясок и велосипедов. Первые этажи здания отведены под коммерческие помещения.
Жилой комплекс «Подольские Кварталы» предлагает множество планировочных решений — от студий до просторных 4х-комнатных квартир с высотой потолков от 2,78 до 3,98 метров. Все квартиры сдаются без внутренних стен.
Территория комплекса находится под круглосуточным видеонаблюдением. Имеется детский сад, школа, учебно-воспитательный комплекс. Для быстрого шоппинга построен торговый центр.
«Подольские Кварталы» находятся в 15 километрах от МКАД вблизи Дубровицкого леса. До станции МЦД-2 «Силикатная» дорога займет 10 минут на автомобиле. В окрестностях расположено множество парков и усадьб — Остафьево, Плещеево, Дубровицы.
Проект «Остафьево» включает в себя шесть корпусов высотой до 14 этажей в первой очереди строительства. Фасад каждого корпуса облицован кирпичом и выполнен в светлых и темных оттенках. Входные группы спроектированы с высокими потолками, дизайнерской отделкой, витражным остеклением и двумя входами: со двора и улицы. Входы расположены на уровне земли, без ступеней и пандусов. В холлах выполнена дизайнерская отделка.
Покупателям квартир в ЖК «Остафьево» предложено множество планировочных решений: в наличии квартиры, как классического типа, так и европланировки. Квартиры сдаются с чистовой отделкой.
Проект включает в себя пять детских садов и три школы. Архитектурное расположение домов образует закрытый двор от машин и случайных прохожих. Для автовладельцев предусмотрены подземные паркинги. На первых этажах находятся кафе, магазины, салоны красоты и аптеки. На придомовой территории располагаются детские и спортивные площадки, пешеходные дорожки и места для отдыха.
ЖК «Остафьево» расположен между аэропортом, который находится сразу за Остафьевским шоссе, и сосновым лесом. В 15 минутах ходьбы от новостройки парк-усадьба «Остафьево». За 10 минут можно дойти до Молодцевского пруда. Метро «Бунинская аллея» находится в 15 минутах транспортом и 11 км до выезда на МКАД.
Проект «Остафьево» включает в себя шесть корпусов высотой до 14 этажей в первой очереди строительства. Фасад каждого корпуса облицован кирпичом и выполнен в светлых и темных оттенках. Входные группы спроектированы с высокими потолками, дизайнерской отделкой, витражным остеклением и двумя входами: со двора и улицы. Входы расположены на уровне земли, без ступеней и пандусов. В холлах выполнена дизайнерская отделка.
Покупателям квартир в ЖК «Остафьево» предложено множество планировочных решений: в наличии квартиры, как классического типа, так и европланировки. Квартиры сдаются с чистовой отделкой.
Проект включает в себя пять детских садов и три школы. Архитектурное расположение домов образует закрытый двор от машин и случайных прохожих. Для автовладельцев предусмотрены подземные паркинги. На первых этажах находятся кафе, магазины, салоны красоты и аптеки. На придомовой территории располагаются детские и спортивные площадки, пешеходные дорожки и места для отдыха.
ЖК «Остафьево» расположен между аэропортом, который находится сразу за Остафьевским шоссе, и сосновым лесом. В 15 минутах ходьбы от новостройки парк-усадьба «Остафьево». За 10 минут можно дойти до Молодцевского пруда. Метро «Бунинская аллея» находится в 15 минутах транспортом и 11 км до выезда на МКАД.
Проект «Остафьево» включает в себя шесть корпусов высотой до 14 этажей в первой очереди строительства. Фасад каждого корпуса облицован кирпичом и выполнен в светлых и темных оттенках. Входные группы спроектированы с высокими потолками, дизайнерской отделкой, витражным остеклением и двумя входами: со двора и улицы. Входы расположены на уровне земли, без ступеней и пандусов. В холлах выполнена дизайнерская отделка.
Покупателям квартир в ЖК «Остафьево» предложено множество планировочных решений: в наличии квартиры, как классического типа, так и европланировки. Квартиры сдаются с чистовой отделкой.
Проект включает в себя пять детских садов и три школы. Архитектурное расположение домов образует закрытый двор от машин и случайных прохожих. Для автовладельцев предусмотрены подземные паркинги. На первых этажах находятся кафе, магазины, салоны красоты и аптеки. На придомовой территории располагаются детские и спортивные площадки, пешеходные дорожки и места для отдыха.
ЖК «Остафьево» расположен между аэропортом, который находится сразу за Остафьевским шоссе, и сосновым лесом. В 15 минутах ходьбы от новостройки парк-усадьба «Остафьево». За 10 минут можно дойти до Молодцевского пруда. Метро «Бунинская аллея» находится в 15 минутах транспортом и 11 км до выезда на МКАД.
Жилой комплекс «Квартал Строгино» — современный проект, возведенный по технологии кирпично-монолитного строительства с комбинированными фасадами. Первые этажи здания отведены под коммерческие помещения.
В проекте представлены классические студии, а также 2х-комнатные и 3х-комнатные квартиры евроформата с гардеробными и постирочными. Высота потолков варьируется от 3 до 3,6 метров. Все квартиры сдаются с чистовой отделкой.
Территория комплекса благоустроена — имеются спортивные площадки, зоны для отдыха и прогулок, велосипедные дорожки, школа и 2 детских сада. Для детей построены площадки с песочницами, качелями и каруселями. Для автовладельцев предусмотрена парковка. Все общественные пространства выполнены в натуральных оттенках: песочном, пепельном и терракотовом.
ЖК «Квартал Строгино» расположен рядом со Строгино. Рядом с комплексом находится Ромашковый лес и заповедник «Серебряный бор». До «Липовой рощи» дорога займет 20 минут пешком. В районе создана комфортная среда для жизни: скверы, торговые и спортивные центры.
Жилой комплекс «Квартал Строгино» — современный проект, возведенный по технологии кирпично-монолитного строительства с комбинированными фасадами. Первые этажи здания отведены под коммерческие помещения.
В проекте представлены классические студии, а также 2х-комнатные и 3х-комнатные квартиры евроформата с гардеробными и постирочными. Высота потолков варьируется от 3 до 3,6 метров. Все квартиры сдаются с чистовой отделкой.
Территория комплекса благоустроена — имеются спортивные площадки, зоны для отдыха и прогулок, велосипедные дорожки, школа и 2 детских сада. Для детей построены площадки с песочницами, качелями и каруселями. Для автовладельцев предусмотрена парковка. Все общественные пространства выполнены в натуральных оттенках: песочном, пепельном и терракотовом.
ЖК «Квартал Строгино» расположен рядом со Строгино. Рядом с комплексом находится Ромашковый лес и заповедник «Серебряный бор». До «Липовой рощи» дорога займет 20 минут пешком. В районе создана комфортная среда для жизни: скверы, торговые и спортивные центры.
Жилой комплекс «Квартал Строгино» — современный проект, возведенный по технологии кирпично-монолитного строительства с комбинированными фасадами. Первые этажи здания отведены под коммерческие помещения.
В проекте представлены классические студии, а также 2х-комнатные и 3х-комнатные квартиры евроформата с гардеробными и постирочными. Высота потолков варьируется от 3 до 3,6 метров. Все квартиры сдаются с чистовой отделкой.
Территория комплекса благоустроена — имеются спортивные площадки, зоны для отдыха и прогулок, велосипедные дорожки, школа и 2 детских сада. Для детей построены площадки с песочницами, качелями и каруселями. Для автовладельцев предусмотрена парковка. Все общественные пространства выполнены в натуральных оттенках: песочном, пепельном и терракотовом.
ЖК «Квартал Строгино» расположен рядом со Строгино. Рядом с комплексом находится Ромашковый лес и заповедник «Серебряный бор». До «Липовой рощи» дорога займет 20 минут пешком. В районе создана комфортная среда для жизни: скверы, торговые и спортивные центры.
Жилой комплекс «Квартал Строгино» — современный проект, возведенный по технологии кирпично-монолитного строительства с комбинированными фасадами. Первые этажи здания отведены под коммерческие помещения.
В проекте представлены классические студии, а также 2х-комнатные и 3х-комнатные квартиры евроформата с гардеробными и постирочными. Высота потолков варьируется от 3 до 3,6 метров. Все квартиры сдаются с чистовой отделкой.
Территория комплекса благоустроена — имеются спортивные площадки, зоны для отдыха и прогулок, велосипедные дорожки, школа и 2 детских сада. Для детей построены площадки с песочницами, качелями и каруселями. Для автовладельцев предусмотрена парковка. Все общественные пространства выполнены в натуральных оттенках: песочном, пепельном и терракотовом.
ЖК «Квартал Строгино» расположен рядом со Строгино. Рядом с комплексом находится Ромашковый лес и заповедник «Серебряный бор». До «Липовой рощи» дорога займет 20 минут пешком. В районе создана комфортная среда для жизни: скверы, торговые и спортивные центры.
Жилой комплекс «Квартал Строгино» — современный проект, возведенный по технологии кирпично-монолитного строительства с комбинированными фасадами. Первые этажи здания отведены под коммерческие помещения.
В проекте представлены классические студии, а также 2х-комнатные и 3х-комнатные квартиры евроформата с гардеробными и постирочными. Высота потолков варьируется от 3 до 3,6 метров. Все квартиры сдаются с чистовой отделкой.
Территория комплекса благоустроена — имеются спортивные площадки, зоны для отдыха и прогулок, велосипедные дорожки, школа и 2 детских сада. Для детей построены площадки с песочницами, качелями и каруселями. Для автовладельцев предусмотрена парковка. Все общественные пространства выполнены в натуральных оттенках: песочном, пепельном и терракотовом.
ЖК «Квартал Строгино» расположен рядом со Строгино. Рядом с комплексом находится Ромашковый лес и заповедник «Серебряный бор». До «Липовой рощи» дорога займет 20 минут пешком. В районе создана комфортная среда для жизни: скверы, торговые и спортивные центры.
Жилой комплекс «Квартал Строгино» — современный проект, возведенный по технологии кирпично-монолитного строительства с комбинированными фасадами. Первые этажи здания отведены под коммерческие помещения.
В проекте представлены классические студии, а также 2х-комнатные и 3х-комнатные квартиры евроформата с гардеробными и постирочными. Высота потолков варьируется от 3 до 3,6 метров. Все квартиры сдаются с чистовой отделкой.
Территория комплекса благоустроена — имеются спортивные площадки, зоны для отдыха и прогулок, велосипедные дорожки, школа и 2 детских сада. Для детей построены площадки с песочницами, качелями и каруселями. Для автовладельцев предусмотрена парковка. Все общественные пространства выполнены в натуральных оттенках: песочном, пепельном и терракотовом.
ЖК «Квартал Строгино» расположен рядом со Строгино. Рядом с комплексом находится Ромашковый лес и заповедник «Серебряный бор». До «Липовой рощи» дорога займет 20 минут пешком. В районе создана комфортная среда для жизни: скверы, торговые и спортивные центры.
Жилой комплекс «Квартал Строгино» — современный проект, возведенный по технологии кирпично-монолитного строительства с комбинированными фасадами. Первые этажи здания отведены под коммерческие помещения.
В проекте представлены классические студии, а также 2х-комнатные и 3х-комнатные квартиры евроформата с гардеробными и постирочными. Высота потолков варьируется от 3 до 3,6 метров. Все квартиры сдаются с чистовой отделкой.
Территория комплекса благоустроена — имеются спортивные площадки, зоны для отдыха и прогулок, велосипедные дорожки, школа и 2 детских сада. Для детей построены площадки с песочницами, качелями и каруселями. Для автовладельцев предусмотрена парковка. Все общественные пространства выполнены в натуральных оттенках: песочном, пепельном и терракотовом.
ЖК «Квартал Строгино» расположен рядом со Строгино. Рядом с комплексом находится Ромашковый лес и заповедник «Серебряный бор». До «Липовой рощи» дорога займет 20 минут пешком. В районе создана комфортная среда для жизни: скверы, торговые и спортивные центры.
Жилой комплекс «Квартал Строгино» — современный проект, возведенный по технологии кирпично-монолитного строительства с комбинированными фасадами. Первые этажи здания отведены под коммерческие помещения.
В проекте представлены классические студии, а также 2х-комнатные и 3х-комнатные квартиры евроформата с гардеробными и постирочными. Высота потолков варьируется от 3 до 3,6 метров. Все квартиры сдаются с чистовой отделкой.
Территория комплекса благоустроена — имеются спортивные площадки, зоны для отдыха и прогулок, велосипедные дорожки, школа и 2 детских сада. Для детей построены площадки с песочницами, качелями и каруселями. Для автовладельцев предусмотрена парковка. Все общественные пространства выполнены в натуральных оттенках: песочном, пепельном и терракотовом.
ЖК «Квартал Строгино» расположен рядом со Строгино. Рядом с комплексом находится Ромашковый лес и заповедник «Серебряный бор». До «Липовой рощи» дорога займет 20 минут пешком. В районе создана комфортная среда для жизни: скверы, торговые и спортивные центры.
Жилой комплекс «Богдановский Лес» — современный проект ГК Самолет, возведенный по технологии кирпично-монолитного строительства с фасадами, облицованными кирпичом. Первые этажи отведены под коммерческие помещения.
В проекте представлено множество планировочных решений — от студий до просторных 4х-комнатных квартир. Лоты сдаются с чистовой отделкой, увеличенными окнами с угловым остеклением, высотой потолков 3 метра.
Территория комплекса благоустроена и закрыта от автомобилей. Имеются площадки для воркаута, игр в баскетбол и пинг-понг, велодорожки, бульвар для неспешных прогулок, поликлиника, физкультурно-оздоровительный комплекс и торгово-развлекательный центр. Для автовладельцев предусмотрены многоуровневые паркинги.
Жилой комплекс «Богдановский Лес» расположен в окружении зеленых зон, в районе с хорошо развитой инфраструктурой. В пешей доступности от комплекса находятся продовольственные магазины, аптеки, кафе и рестораны. До метро «Домодедовская» дорога на автомобиле занимает 10 минут.
Жилой комплекс «Богдановский Лес» — современный проект ГК Самолет, возведенный по технологии кирпично-монолитного строительства с фасадами, облицованными кирпичом. Первые этажи отведены под коммерческие помещения.
В проекте представлено множество планировочных решений — от студий до просторных 4х-комнатных квартир. Лоты сдаются с чистовой отделкой, увеличенными окнами с угловым остеклением, высотой потолков 3 метра.
Территория комплекса благоустроена и закрыта от автомобилей. Имеются площадки для воркаута, игр в баскетбол и пинг-понг, велодорожки, бульвар для неспешных прогулок, поликлиника, физкультурно-оздоровительный комплекс и торгово-развлекательный центр. Для автовладельцев предусмотрены многоуровневые паркинги.
Жилой комплекс «Богдановский Лес» расположен в окружении зеленых зон, в районе с хорошо развитой инфраструктурой. В пешей доступности от комплекса находятся продовольственные магазины, аптеки, кафе и рестораны. До метро «Домодедовская» дорога на автомобиле занимает 10 минут.
Жилой комплекс «Богдановский Лес» — современный проект ГК Самолет, возведенный по технологии кирпично-монолитного строительства с фасадами, облицованными кирпичом. Первые этажи отведены под коммерческие помещения.
В проекте представлено множество планировочных решений — от студий до просторных 4х-комнатных квартир. Лоты сдаются с чистовой отделкой, увеличенными окнами с угловым остеклением, высотой потолков 3 метра.
Территория комплекса благоустроена и закрыта от автомобилей. Имеются площадки для воркаута, игр в баскетбол и пинг-понг, велодорожки, бульвар для неспешных прогулок, поликлиника, физкультурно-оздоровительный комплекс и торгово-развлекательный центр. Для автовладельцев предусмотрены многоуровневые паркинги.
Жилой комплекс «Богдановский Лес» расположен в окружении зеленых зон, в районе с хорошо развитой инфраструктурой. В пешей доступности от комплекса находятся продовольственные магазины, аптеки, кафе и рестораны. До метро «Домодедовская» дорога на автомобиле занимает 10 минут.
Жилой комплекс «Богдановский Лес» — современный проект ГК Самолет, возведенный по технологии кирпично-монолитного строительства с фасадами, облицованными кирпичом. Первые этажи отведены под коммерческие помещения.
В проекте представлено множество планировочных решений — от студий до просторных 4х-комнатных квартир. Лоты сдаются с чистовой отделкой, увеличенными окнами с угловым остеклением, высотой потолков 3 метра.
Территория комплекса благоустроена и закрыта от автомобилей. Имеются площадки для воркаута, игр в баскетбол и пинг-понг, велодорожки, бульвар для неспешных прогулок, поликлиника, физкультурно-оздоровительный комплекс и торгово-развлекательный центр. Для автовладельцев предусмотрены многоуровневые паркинги.
Жилой комплекс «Богдановский Лес» расположен в окружении зеленых зон, в районе с хорошо развитой инфраструктурой. В пешей доступности от комплекса находятся продовольственные магазины, аптеки, кафе и рестораны. До метро «Домодедовская» дорога на автомобиле занимает 10 минут.
Жилой комплекс «Богдановский Лес» — современный проект ГК Самолет, возведенный по технологии кирпично-монолитного строительства с фасадами, облицованными кирпичом. Первые этажи отведены под коммерческие помещения.
В проекте представлено множество планировочных решений — от студий до просторных 4х-комнатных квартир. Лоты сдаются с чистовой отделкой, увеличенными окнами с угловым остеклением, высотой потолков 3 метра.
Территория комплекса благоустроена и закрыта от автомобилей. Имеются площадки для воркаута, игр в баскетбол и пинг-понг, велодорожки, бульвар для неспешных прогулок, поликлиника, физкультурно-оздоровительный комплекс и торгово-развлекательный центр. Для автовладельцев предусмотрены многоуровневые паркинги.
Жилой комплекс «Богдановский Лес» расположен в окружении зеленых зон, в районе с хорошо развитой инфраструктурой. В пешей доступности от комплекса находятся продовольственные магазины, аптеки, кафе и рестораны. До метро «Домодедовская» дорога на автомобиле занимает 10 минут.
Жилой комплекс «Богдановский Лес» — современный проект ГК Самолет, возведенный по технологии кирпично-монолитного строительства с фасадами, облицованными кирпичом. Первые этажи отведены под коммерческие помещения.
В проекте представлено множество планировочных решений — от студий до просторных 4х-комнатных квартир. Лоты сдаются с чистовой отделкой, увеличенными окнами с угловым остеклением, высотой потолков 3 метра.
Территория комплекса благоустроена и закрыта от автомобилей. Имеются площадки для воркаута, игр в баскетбол и пинг-понг, велодорожки, бульвар для неспешных прогулок, поликлиника, физкультурно-оздоровительный комплекс и торгово-развлекательный центр. Для автовладельцев предусмотрены многоуровневые паркинги.
Жилой комплекс «Богдановский Лес» расположен в окружении зеленых зон, в районе с хорошо развитой инфраструктурой. В пешей доступности от комплекса находятся продовольственные магазины, аптеки, кафе и рестораны. До метро «Домодедовская» дорога на автомобиле занимает 10 минут.
ЖК «Верейская 41» — это урбан-блоки средней этажности. Дома возведены по долговечной кирпично-монолитной технологии. В облицовке фасадов зданий используется навесной вентилируемый фасад. В домах выполнена дизайнерская отделка входных групп и установлены современные лифты.
В ЖК «Верейская 41» предложено множество планировочных решений: от студий до четырехкомнатных апартаментов евроформата. Можно подобрать планировку с патио или террасой, а на верхних этажах расположены пентхаусы с роскошными видами на парк и потолками высотой 4,8 метра.
Вход на территорию ЖК «Верейская 41» осуществляется только по смарт-картам и системе распознавания лиц. Во дворах предусмотрены детские площадки, воркаут, зоны отдыха. Также в жилом комплексе организовано общественное пространство на крыше и продуманы коммерческие помещения. За пределами дворов раскинулись городская площадь, прогулочные аллеи и центральный бульвар, велосипедные дорожки и тихий сад под перголой.
ЖК «Верейская 41» расположен в Можайском районе. В пешей доступности находятся станция метро «Давыдково» и остановки общественного транспорта. До Москва-Сити всего 20 минут транспортом.
ЖК «Верейская 41» — это урбан-блоки средней этажности. Дома возведены по долговечной кирпично-монолитной технологии. В облицовке фасадов зданий используется навесной вентилируемый фасад. В домах выполнена дизайнерская отделка входных групп и установлены современные лифты.
В ЖК «Верейская 41» предложено множество планировочных решений: от студий до четырехкомнатных апартаментов евроформата. Можно подобрать планировку с патио или террасой, а на верхних этажах расположены пентхаусы с роскошными видами на парк и потолками высотой 4,8 метра.
Вход на территорию ЖК «Верейская 41» осуществляется только по смарт-картам и системе распознавания лиц. Во дворах предусмотрены детские площадки, воркаут, зоны отдыха. Также в жилом комплексе организовано общественное пространство на крыше и продуманы коммерческие помещения. За пределами дворов раскинулись городская площадь, прогулочные аллеи и центральный бульвар, велосипедные дорожки и тихий сад под перголой.
ЖК «Верейская 41» расположен в Можайском районе. В пешей доступности находятся станция метро «Давыдково» и остановки общественного транспорта. До Москва-Сити всего 20 минут транспортом.
ЖК «Верейская 41» — это урбан-блоки средней этажности. Дома возведены по долговечной кирпично-монолитной технологии. В облицовке фасадов зданий используется навесной вентилируемый фасад. В домах выполнена дизайнерская отделка входных групп и установлены современные лифты.
В ЖК «Верейская 41» предложено множество планировочных решений: от студий до четырехкомнатных апартаментов евроформата. Можно подобрать планировку с патио или террасой, а на верхних этажах расположены пентхаусы с роскошными видами на парк и потолками высотой 4,8 метра.
Вход на территорию ЖК «Верейская 41» осуществляется только по смарт-картам и системе распознавания лиц. Во дворах предусмотрены детские площадки, воркаут, зоны отдыха. Также в жилом комплексе организовано общественное пространство на крыше и продуманы коммерческие помещения. За пределами дворов раскинулись городская площадь, прогулочные аллеи и центральный бульвар, велосипедные дорожки и тихий сад под перголой.
ЖК «Верейская 41» расположен в Можайском районе. В пешей доступности находятся станция метро «Давыдково» и остановки общественного транспорта. До Москва-Сити всего 20 минут транспортом.
ЖК «Верейская 41» — это урбан-блоки средней этажности. Дома возведены по долговечной кирпично-монолитной технологии. В облицовке фасадов зданий используется навесной вентилируемый фасад. В домах выполнена дизайнерская отделка входных групп и установлены современные лифты.
В ЖК «Верейская 41» предложено множество планировочных решений: от студий до четырехкомнатных апартаментов евроформата. Можно подобрать планировку с патио или террасой, а на верхних этажах расположены пентхаусы с роскошными видами на парк и потолками высотой 4,8 метра.
Вход на территорию ЖК «Верейская 41» осуществляется только по смарт-картам и системе распознавания лиц. Во дворах предусмотрены детские площадки, воркаут, зоны отдыха. Также в жилом комплексе организовано общественное пространство на крыше и продуманы коммерческие помещения. За пределами дворов раскинулись городская площадь, прогулочные аллеи и центральный бульвар, велосипедные дорожки и тихий сад под перголой.
ЖК «Верейская 41» расположен в Можайском районе. В пешей доступности находятся станция метро «Давыдково» и остановки общественного транспорта. До Москва-Сити всего 20 минут транспортом.
ЖК «Верейская 41» — это урбан-блоки средней этажности. Дома возведены по долговечной кирпично-монолитной технологии. В облицовке фасадов зданий используется навесной вентилируемый фасад. В домах выполнена дизайнерская отделка входных групп и установлены современные лифты.
В ЖК «Верейская 41» предложено множество планировочных решений: от студий до четырехкомнатных апартаментов евроформата. Можно подобрать планировку с патио или террасой, а на верхних этажах расположены пентхаусы с роскошными видами на парк и потолками высотой 4,8 метра.
Вход на территорию ЖК «Верейская 41» осуществляется только по смарт-картам и системе распознавания лиц. Во дворах предусмотрены детские площадки, воркаут, зоны отдыха. Также в жилом комплексе организовано общественное пространство на крыше и продуманы коммерческие помещения. За пределами дворов раскинулись городская площадь, прогулочные аллеи и центральный бульвар, велосипедные дорожки и тихий сад под перголой.
ЖК «Верейская 41» расположен в Можайском районе. В пешей доступности находятся станция метро «Давыдково» и остановки общественного транспорта. До Москва-Сити всего 20 минут транспортом.
ЖК «Верейская 41» — это урбан-блоки средней этажности. Дома возведены по долговечной кирпично-монолитной технологии. В облицовке фасадов зданий используется навесной вентилируемый фасад. В домах выполнена дизайнерская отделка входных групп и установлены современные лифты.
В ЖК «Верейская 41» предложено множество планировочных решений: от студий до четырехкомнатных апартаментов евроформата. Можно подобрать планировку с патио или террасой, а на верхних этажах расположены пентхаусы с роскошными видами на парк и потолками высотой 4,8 метра.
Вход на территорию ЖК «Верейская 41» осуществляется только по смарт-картам и системе распознавания лиц. Во дворах предусмотрены детские площадки, воркаут, зоны отдыха. Также в жилом комплексе организовано общественное пространство на крыше и продуманы коммерческие помещения. За пределами дворов раскинулись городская площадь, прогулочные аллеи и центральный бульвар, велосипедные дорожки и тихий сад под перголой.
ЖК «Верейская 41» расположен в Можайском районе. В пешей доступности находятся станция метро «Давыдково» и остановки общественного транспорта. До Москва-Сити всего 20 минут транспортом.
ЖК «Верейская 41» — это урбан-блоки средней этажности. Дома возведены по долговечной кирпично-монолитной технологии. В облицовке фасадов зданий используется навесной вентилируемый фасад. В домах выполнена дизайнерская отделка входных групп и установлены современные лифты.
В ЖК «Верейская 41» предложено множество планировочных решений: от студий до четырехкомнатных апартаментов евроформата. Можно подобрать планировку с патио или террасой, а на верхних этажах расположены пентхаусы с роскошными видами на парк и потолками высотой 4,8 метра.
Вход на территорию ЖК «Верейская 41» осуществляется только по смарт-картам и системе распознавания лиц. Во дворах предусмотрены детские площадки, воркаут, зоны отдыха. Также в жилом комплексе организовано общественное пространство на крыше и продуманы коммерческие помещения. За пределами дворов раскинулись городская площадь, прогулочные аллеи и центральный бульвар, велосипедные дорожки и тихий сад под перголой.
ЖК «Верейская 41» расположен в Можайском районе. В пешей доступности находятся станция метро «Давыдково» и остановки общественного транспорта. До Москва-Сити всего 20 минут транспортом.
Жилой комплекс «Квартал Герцена» — это современные кирпично-монолитные дома переменной этажности высотой от 6 до 55 этажей в европейском стиле. В оформлении фасадов использовано сочетание панелей бежевых и кофейных оттенков. На фасадах установлены корзины для кондиционеров. Входы в подъезды расположены на уровне земли, без порогов и препятствий, а благодаря панорамному остеклению входные группы наполнены естественным светом. На первом этаже предусмотрены места для хранения колясок и велосипедов. На техническом этаже размещены индивидуальные кладовые с прямым доступом на лифте.
В ЖК «Квартал Герцена» предложено множество планировочных решений: от компактных студий до четырехкомнатных квартир европейского формата. Есть варианты с гардеробными, угловым остеклением, а также квартиры с просторными террасами на вторых и последних этажах. Все квартиры сдаются с готовой чистовой отделкой в светлых и нейтральных тонах, есть возможность заказать кухню, мебель, текстиль и аксессуары. Все лоты — с увеличенными окнами и высокими потолками от 3,15 метра.
Комплекс имеет собственную инфраструктуру, которая включает: школу на 1075 учеников, 2 детских сада на 200 и 350 мест и поликлинику. Первые этажи корпусов занимают коммерческие помещения. Для владельцев автомобилей предусмотрен подземный паркинг на 333 места.
ЖК «Квартал Герцена» находится в Районе Восточное Бирюлево с развитой социальной инфраструктурой: рядом есть магазины, рестораны, аптеки, супермаркет «Лента», торговые центры «Брендсити», «Конструктор», «Vegas». Рядом с комплексом находятся Бирюлевский лесопарк, Герценский парк и пруд с благоустроенной пляжной зоной. Расстояние от жилого комплекса до МКАД менее 1 километра. В 10 минутах пути на автомобиле распложена ж/д станция «Бирюлево пассажирская». До международного аэропорта «Домодедово» — 30 минут езды, до ближайшего метро «Царицыно» — 15 минут. В 2025-2026 году в пешей доступности от комплекса планируется открытие новой станции метро «Лебедянская».
Жилой комплекс «Квартал Герцена» — это современные кирпично-монолитные дома переменной этажности высотой от 6 до 55 этажей в европейском стиле. В оформлении фасадов использовано сочетание панелей бежевых и кофейных оттенков. На фасадах установлены корзины для кондиционеров. Входы в подъезды расположены на уровне земли, без порогов и препятствий, а благодаря панорамному остеклению входные группы наполнены естественным светом. На первом этаже предусмотрены места для хранения колясок и велосипедов. На техническом этаже размещены индивидуальные кладовые с прямым доступом на лифте.
В ЖК «Квартал Герцена» предложено множество планировочных решений: от компактных студий до четырехкомнатных квартир европейского формата. Есть варианты с гардеробными, угловым остеклением, а также квартиры с просторными террасами на вторых и последних этажах. Все квартиры сдаются с готовой чистовой отделкой в светлых и нейтральных тонах, есть возможность заказать кухню, мебель, текстиль и аксессуары. Все лоты — с увеличенными окнами и высокими потолками от 3,15 метра.
Комплекс имеет собственную инфраструктуру, которая включает: школу на 1075 учеников, 2 детских сада на 200 и 350 мест и поликлинику. Первые этажи корпусов занимают коммерческие помещения. Для владельцев автомобилей предусмотрен подземный паркинг на 333 места.
ЖК «Квартал Герцена» находится в Районе Восточное Бирюлево с развитой социальной инфраструктурой: рядом есть магазины, рестораны, аптеки, супермаркет «Лента», торговые центры «Брендсити», «Конструктор», «Vegas». Рядом с комплексом находятся Бирюлевский лесопарк, Герценский парк и пруд с благоустроенной пляжной зоной. Расстояние от жилого комплекса до МКАД менее 1 километра. В 10 минутах пути на автомобиле распложена ж/д станция «Бирюлево пассажирская». До международного аэропорта «Домодедово» — 30 минут езды, до ближайшего метро «Царицыно» — 15 минут. В 2025-2026 году в пешей доступности от комплекса планируется открытие новой станции метро «Лебедянская».
Жилой квартал «Люберцы» – один из самых масштабных жилых комплексов в Подмосковье, который включает в себя порядка 50 корпусов. Строительство ведется по кирпично-монолитной технологии. В оформлении фасадов применяется облицовочный кирпич природных оттенков.
Из окон некоторых домов открываются виды на озеро Черное. В комплексе представлены квартиры от студий до трехкомнатных площадью от 25,4 до 80,65 кв.м. В них предусмотрена чистовая отделка, что позволит покупателям сразу после заселения приступить к созданию интерьера и расстановке мебели. Три корпуса будут сдаваться без отделки – клиенты смогут выполнить отделку по своему выбору.
Входные группы и места общего пользования оформлены в современном стиле. На первых этажах расположены коммерческие помещения. В составе объекта предусмотрены три детских сада и пять школ. Во дворе расположены четыре тематических детских городка с игровыми и спортивными площадками. Придомовая территория благоустроена ландшафтным дизайном.
Жилой квартал расположен в 8 км от МКАД и 1,5 км от строящейся станции метро «Некрасовка». В 20 минутах на автомобиле находится Салтыковский лесопарк, а напротив комплекса – берега реки Пехорка и озера Чёрное. В пешей доступности расположены продуктовые магазины и медицинский центр, в Люберцах работают различные объекты инфраструктуры. Метро «Лермонтовский проспект» находится в 25 минутах транспортом.
ЖК «Пятницкие Луга» — монолитные дома не выше 12 этажей с оригинальным авторским дизайном и системой «Умный дом». Входные группы сквозные — можно выйти и во двор, и на улицу. Это безбарьерное пространство со входами на уровне земли. Благодаря панорамному остеклению подъезд наполнен естественным светом и прекрасно просматривается с улицы. Внутри обустроены отдельные помещения для колясок и велосипедов. Оформление соответствует дизайн-коду проекта и выполнено в натуральных оттенках с применением природных материалов. Для работает круглосуточное видеонаблюдение общественных мест с функциями видеоаналитики.
В жилом комплексе «Пятницкие Луга» предложено множество планировочных решений: в наличии квартиры, как классического типа, так и европланировки. По умолчанию в каждой квартире установлен пакет опций «Умный дом».
Внутренний двор в ЖК «Пятницкие Луга» — это тихий зеленый парк, свободный от автомобилей. Здесь находятся тематические зоны отдыха, отдельный сад со столами для пинг-понга, семейный сад с детскими площадками и зоной воркаута. На территории ЖК высажены цветники, многолетние кустарники и разные деревья. В районе обустроены пешеходные бульвары и скверы с арт-объектами. Берег реки Банька на границе с жилым комплексом превратился в большое пространство для отдыха со спортивными и детскими площадками в эко стиле из натурального дерева. На первых этажах находятся коммерческие помещения. Для владельцев автомобилей обустроены плоскостные и многоуровневые паркинги за пределами двора
Окружение ЖК «Пятницкие Луга» — густые леса и благоустроенные лесопарки: Захаринская пойма, Митинский лесопарк. В 5 км расположена живописная усадьба Середниково. В 7 км — загородный комплекс «Отрада», где можно покататься на лошадях, сходить на рыбалку, посетить зоопарк. Расстояние до торговых центров «Отрада», и гипермаркета «О'кей» — 7 км, до ТРЦ Vegas Крокус Сити с собственным океанариумом и яхт-клуба Just Crazy — 15 км. Полноценная инфраструктура жилого комплекса развивается — предусмотрены 2 школы, 4 детских сада и поликлиники, магазины, салоны красоты, кафе.
ЖК «Пятницкие Луга» — монолитные дома не выше 12 этажей с оригинальным авторским дизайном и системой «Умный дом». Входные группы сквозные — можно выйти и во двор, и на улицу. Это безбарьерное пространство со входами на уровне земли. Благодаря панорамному остеклению подъезд наполнен естественным светом и прекрасно просматривается с улицы. Внутри обустроены отдельные помещения для колясок и велосипедов. Оформление соответствует дизайн-коду проекта и выполнено в натуральных оттенках с применением природных материалов. Для работает круглосуточное видеонаблюдение общественных мест с функциями видеоаналитики.
В жилом комплексе «Пятницкие Луга» предложено множество планировочных решений: в наличии квартиры, как классического типа, так и европланировки. По умолчанию в каждой квартире установлен пакет опций «Умный дом».
Внутренний двор в ЖК «Пятницкие Луга» — это тихий зеленый парк, свободный от автомобилей. Здесь находятся тематические зоны отдыха, отдельный сад со столами для пинг-понга, семейный сад с детскими площадками и зоной воркаута. На территории ЖК высажены цветники, многолетние кустарники и разные деревья. В районе обустроены пешеходные бульвары и скверы с арт-объектами. Берег реки Банька на границе с жилым комплексом превратился в большое пространство для отдыха со спортивными и детскими площадками в эко стиле из натурального дерева. На первых этажах находятся коммерческие помещения. Для владельцев автомобилей обустроены плоскостные и многоуровневые паркинги за пределами двора
Окружение ЖК «Пятницкие Луга» — густые леса и благоустроенные лесопарки: Захаринская пойма, Митинский лесопарк. В 5 км расположена живописная усадьба Середниково. В 7 км — загородный комплекс «Отрада», где можно покататься на лошадях, сходить на рыбалку, посетить зоопарк. Расстояние до торговых центров «Отрада», и гипермаркета «О'кей» — 7 км, до ТРЦ Vegas Крокус Сити с собственным океанариумом и яхт-клуба Just Crazy — 15 км. Полноценная инфраструктура жилого комплекса развивается — предусмотрены 2 школы, 4 детских сада и поликлиники, магазины, салоны красоты, кафе.
ЖК «Прибрежный Парк» состоит из нескольких очередей монолитных домов с оформлением из кирпича и керамогранита. В проекте реализуется концепция безбарьерной среды. Вход в подъезд — на уровне земли, в холлах — крупная навигация и естественное освещение. На первых этажах есть колясочные, и места для хранения велосипедов. Дизайн входных групп повторяет тему реки. На стенах — композиции в виде водопадов, светильники имитируют водную рябь.
В проекте «Прибрежный Парк»» предложено множество планировочных решений: в наличии квартиры, как классического типа,так и европланировки. Сдаются квартиры с чистовой отделкой, высота потолков 2.75 метра. Из окон открываются живописные виды на излучину водоема и лес.
Дворы жилого комплекса закрытые — сюда нельзя заехать на машине, а доступ во двор есть только у жителей. ЖК «Прибрежный Парк» находится под охраной и видеонаблюдением. На первых этажах расположены коммерческие помещения. На территории комплекса спроектированы 3 детских сада на 800 мест, школа на 1650 мест и поликлиника. Всю территорию проекта огибает благоустроенная набережная. В центральной части жилого комплекса находится прогулочный бульвар «Речной берег» со стрит-ритейлом, а также сеть велодорожек и пешеходных аллей. Для детей спроектирован всесезонный тематический плей хаб “Волна” со скалодромом, горками и игровыми площадками из дерева и безопасных материалов. Для занятий спортом — современная воркаут-площадка, лужайки для йоги, футбольное и баскетбольное поле. Для автовладельцев предусмотрен многоуровневый паркинг.
ЖК «Прибрежный Парк» находится в ГО Домодедово. ТЦ «Торговый квартал» находится в 10 минутах транспортом, в соседнем городе Домодедово. Гипермаркет «Лента» — в 15 минутах транспортом, торговый центр «Вегас» — в 20 минутах транспортом. До железнодорожной станции «Ленинская» можно дойти за 15 минут. До метро «Домодедовская» — в 25 минутах транспортом.
Жилой комплекс «Квартал Авиаторов» — Современный проект, возведенный по технологии кирпично-монолитного строительства с комбинированными фасадами. Входы в подъезды расположены на уровне земли, что обеспечивает легкий доступ в здание с колясками, чемоданами и велосипедами, для которых имеется помещение для их хранения. Первые этажи отведены под коммерческие помещения.
В проекте предусмотрено множество планировок — от студий до просторных 4х-комнатных квартир. Все лоты сдаются с чистовой отделкой, высотой потолков до 3,95 метров и панорамными окнами.
Территория жилого комплекса закрыта от машин, ведется видеонаблюдение. Для детей предусмотрены игровые площадки, спортивные зоны.
Жилой комплекс расположен в районе с хорошо развитой инфраструктурой — в пешей доступности имеется все необходимое: продовольственные магазины, аптеки, поликлиника, детский сад, рестораны и кафе. Выезд на МКАД находится в 8 километрах от жилого комплекса, дорога до центра города займет 20 минут на автомобиле.
Жилой комплекс «Квартал Авиаторов» — Современный проект, возведенный по технологии кирпично-монолитного строительства с комбинированными фасадами. Входы в подъезды расположены на уровне земли, что обеспечивает легкий доступ в здание с колясками, чемоданами и велосипедами, для которых имеется помещение для их хранения. Первые этажи отведены под коммерческие помещения.
В проекте предусмотрено множество планировок — от студий до просторных 4х-комнатных квартир. Все лоты сдаются с чистовой отделкой, высотой потолков до 3,95 метров и панорамными окнами.
Территория жилого комплекса закрыта от машин, ведется видеонаблюдение. Для детей предусмотрены игровые площадки, спортивные зоны.
Жилой комплекс расположен в районе с хорошо развитой инфраструктурой — в пешей доступности имеется все необходимое: продовольственные магазины, аптеки, поликлиника, детский сад, рестораны и кафе. Выезд на МКАД находится в 8 километрах от жилого комплекса, дорога до центра города займет 20 минут на автомобиле.

