











Жилой комплекс бизнес-класса состоит из 2 корпусов: 35-этажная башня и 2-секционный дом переменной этажности высотой 19–20 этажей. Здания возводятся по монолитной технологии, вентилируемые фасады облицованы керамогранитом. В архитектуре зданий гармонично сочетаются современные геометрические формы и волнообразные линии фасадов. Для удобства жильцов предусмотрены входные группы, расположенные на уровне земли, без ступеней. Также в проекте есть пассажирские и грузовые лифты, и 2-уровневый подземный паркинг.
В жилом комплексе представлен широкий выбор планировочных решений — от уютных студий площадью от 28 кв. м до просторных квартир с 4 спальнями площадью 95 кв. м, включая эргономичные евроформаты. В помещениях установлены панорамные окна, высота потолков варьируется от 2,85 до 3,4 метров. Квартиры идут без стен, что дает владельцам возможность реализовать индивидуальные дизайнерские решения.
На территории комплекса представлены ресепшен с консьерж-сервисом, дизайнерские входные группы, благоустроенный двор с ландшафтным озеленением, детскими и спортивными площадками. В здании оборудованы колясочные и лапомойки, а в квартирах установлена система умного дома. Безбарьерная среда делает пространство доступным для всех категорий жителей.
Проект расположен в Можайском районе. В пределах 10–15 минут пешком есть вся необходимая инфраструктура: школы, детские сады, медицинские учреждения, парки, а также торговый центр Вегас. До центра Москвы можно добраться за 20 минут транспортом, а до Арбата — за 30 минут. В 10 минутах пешком находится МЦД Сетунь.

Жилой комплекс представляет собой 2 двенадцатиэтажных монолитно-кирпичных жилых дома. Фасады корпусов облицованы кирпичом и выдержаны в теплых природных оттенках желтого и коричневого.
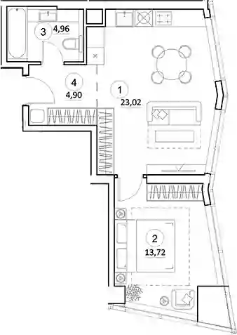
В проекте предложены однокомнатные и двухкомнатные квартиры, различные по площади и планировке. В некоторых квартирах предусмотрены лоджии с панорамным остеклением, есть планировки с 2 санузлами, изолированными гостиными и спальнями, местами для шкафов-купе. Из части квартир на верхних этажах открывается вид на Москву-реку.
Придомовая территория комплекса благоустроена и озеленена. Во дворе оборудованы детские игровые площадки, для владельцев автомобилей предусмотрены открытые наземные парковки.
Жилой комплекс находится в одном из наиболее экологически чистых районов Подмосковья — Звенигороде. Район отличается развитой инфраструктурой и хорошей транспортной доступностью. Поблизости находятся детские сады, школы, медицинские учреждения, торговые комплексы, магазины, культурный центр, спорткомплекс, бассейн и экопарк. Всего в 500 метрах от микрорайона протекает Москва-река. Центр Звенигорода находится буквально в 15 минутах ходьбы. Из Москвы до комплекса можно добраться на автомобиле, электричке или автобусе. Время в пути на общественном транспорте до ближайшей станции метро «Строгино» займет около 40 минут.
Жилой комплекс представляет собой 2 двенадцатиэтажных монолитно-кирпичных жилых дома. Фасады корпусов облицованы кирпичом и выдержаны в теплых природных оттенках желтого и коричневого.
В проекте предложены однокомнатные и двухкомнатные квартиры, различные по площади и планировке. В некоторых квартирах предусмотрены лоджии с панорамным остеклением, есть планировки с 2 санузлами, изолированными гостиными и спальнями, местами для шкафов-купе. Из части квартир на верхних этажах открывается вид на Москву-реку.
Придомовая территория комплекса благоустроена и озеленена. Во дворе оборудованы детские игровые площадки, для владельцев автомобилей предусмотрены открытые наземные парковки.
Жилой комплекс находится в одном из наиболее экологически чистых районов Подмосковья — Звенигороде. Район отличается развитой инфраструктурой и хорошей транспортной доступностью. Поблизости находятся детские сады, школы, медицинские учреждения, торговые комплексы, магазины, культурный центр, спорткомплекс, бассейн и экопарк. Всего в 500 метрах от микрорайона протекает Москва-река. Центр Звенигорода находится буквально в 15 минутах ходьбы. Из Москвы до комплекса можно добраться на автомобиле, электричке или автобусе. Время в пути на общественном транспорте до ближайшей станции метро «Строгино» займет около 40 минут.
Жилой комплекс «Emotion» — современный проект архитектурного бюро «KAMEN», возведенный по технологии монолитного строительства с вентилируемыми панельными фасадами. В лобби выполнена дизайнерская отделка.
В проекте представлено множество планировочных решений — от студий до просторных 4х-комнатных квартир с балконами и террасами. Все лоты сдаются с базовой отделкой, высотой потолков 3 метра и панорамными окнами.
Территория комплекса благоустроена — имеется СПА-комплекс с открытым бассейном, озелененные зоны для отдыха. Здание оборудовано системой «Умный Дом», для автовладельцев предусмотрен подземный паркинг.
Жилой комплекс «Emotion» расположен в районе с хорошо развитый инфраструктурой, в пешей доступности имеется все необходимое: продовольственные магазины, аптеки, медицинские и образовательные учреждения, кафе и рестораны.
Жилой комплекс «Emotion» — современный проект архитектурного бюро «KAMEN», возведенный по технологии монолитного строительства с вентилируемыми панельными фасадами. В лобби выполнена дизайнерская отделка.
В проекте представлено множество планировочных решений — от студий до просторных 4х-комнатных квартир с балконами и террасами. Все лоты сдаются с базовой отделкой, высотой потолков 3 метра и панорамными окнами.
Территория комплекса благоустроена — имеется СПА-комплекс с открытым бассейном, озелененные зоны для отдыха. Здание оборудовано системой «Умный Дом», для автовладельцев предусмотрен подземный паркинг.
Жилой комплекс «Emotion» расположен в районе с хорошо развитый инфраструктурой, в пешей доступности имеется все необходимое: продовольственные магазины, аптеки, медицинские и образовательные учреждения, кафе и рестораны.
Жилой комплекс «Emotion» — современный проект архитектурного бюро «KAMEN», возведенный по технологии монолитного строительства с вентилируемыми панельными фасадами. В лобби выполнена дизайнерская отделка.
В проекте представлено множество планировочных решений — от студий до просторных 4х-комнатных квартир с балконами и террасами. Все лоты сдаются с базовой отделкой, высотой потолков 3 метра и панорамными окнами.
Территория комплекса благоустроена — имеется СПА-комплекс с открытым бассейном, озелененные зоны для отдыха. Здание оборудовано системой «Умный Дом», для автовладельцев предусмотрен подземный паркинг.
Жилой комплекс «Emotion» расположен в районе с хорошо развитый инфраструктурой, в пешей доступности имеется все необходимое: продовольственные магазины, аптеки, медицинские и образовательные учреждения, кафе и рестораны.
Квартал «Мираполис» состоит из 4 башен с авторскими стеклянными фасадами. В лобби выполнена дизайнерская отделка и обустроены места для отдыха.
В проекте «Мираполис» доступен большой выбор планировочных решений: от студий до пятикомнатных апартаментов с высокими потолками, панорамными окнами и системой кондиционирования для каждого лота. Проект оснащен системой «Умный дом».
Под открытым небом расположится Lounge-rooftop. Озеленение и благоустройство периметра и внутренней территории создают дополнительные возможности для прогулок, детских игр и занятий спортом на свежем воздухе. Уникальная концепция проекта предлагает все преимущества современного бизнес-класса: круглосуточный консьерж-сервис, подземный паркинг, торговые и деловые центры, фитнес, бассейн и спа.
Квартал «Мираполис» расположен на Проспекте мира, в 500 метрах от национального парка «Лосиный остров». Развитая инфраструктура, близость к крупным торговым и бизнес-центрам, вузам и медицинским клиникам создает особенный комфорт. Удобная локация в 400 метров от МЦК «Ростокино» и быстрый выезд на главные транспортные магистрали позволяет всего за 30 минут добраться до центра Москвы.
Квартал «Мираполис» состоит из 4 башен с авторскими стеклянными фасадами. В лобби выполнена дизайнерская отделка и обустроены места для отдыха.
В проекте «Мираполис» доступен большой выбор планировочных решений: от студий до пятикомнатных апартаментов с высокими потолками, панорамными окнами и системой кондиционирования для каждого лота. Проект оснащен системой «Умный дом».
Под открытым небом расположится Lounge-rooftop. Озеленение и благоустройство периметра и внутренней территории создают дополнительные возможности для прогулок, детских игр и занятий спортом на свежем воздухе. Уникальная концепция проекта предлагает все преимущества современного бизнес-класса: круглосуточный консьерж-сервис, подземный паркинг, торговые и деловые центры, фитнес, бассейн и спа.
Квартал «Мираполис» расположен на Проспекте мира, в 500 метрах от национального парка «Лосиный остров». Развитая инфраструктура, близость к крупным торговым и бизнес-центрам, вузам и медицинским клиникам создает особенный комфорт. Удобная локация в 400 метров от МЦК «Ростокино» и быстрый выезд на главные транспортные магистрали позволяет всего за 30 минут добраться до центра Москвы.
Квартал «Мираполис» состоит из 4 башен с авторскими стеклянными фасадами. В лобби выполнена дизайнерская отделка и обустроены места для отдыха.
В проекте «Мираполис» доступен большой выбор планировочных решений: от студий до пятикомнатных апартаментов с высокими потолками, панорамными окнами и системой кондиционирования для каждого лота. Проект оснащен системой «Умный дом».
Под открытым небом расположится Lounge-rooftop. Озеленение и благоустройство периметра и внутренней территории создают дополнительные возможности для прогулок, детских игр и занятий спортом на свежем воздухе. Уникальная концепция проекта предлагает все преимущества современного бизнес-класса: круглосуточный консьерж-сервис, подземный паркинг, торговые и деловые центры, фитнес, бассейн и спа.
Квартал «Мираполис» расположен на Проспекте мира, в 500 метрах от национального парка «Лосиный остров». Развитая инфраструктура, близость к крупным торговым и бизнес-центрам, вузам и медицинским клиникам создает особенный комфорт. Удобная локация в 400 метров от МЦК «Ростокино» и быстрый выезд на главные транспортные магистрали позволяет всего за 30 минут добраться до центра Москвы.
Квартал «Мираполис» состоит из 4 башен с авторскими стеклянными фасадами. В лобби выполнена дизайнерская отделка и обустроены места для отдыха.
В проекте «Мираполис» доступен большой выбор планировочных решений: от студий до пятикомнатных апартаментов с высокими потолками, панорамными окнами и системой кондиционирования для каждого лота. Проект оснащен системой «Умный дом».
Под открытым небом расположится Lounge-rooftop. Озеленение и благоустройство периметра и внутренней территории создают дополнительные возможности для прогулок, детских игр и занятий спортом на свежем воздухе. Уникальная концепция проекта предлагает все преимущества современного бизнес-класса: круглосуточный консьерж-сервис, подземный паркинг, торговые и деловые центры, фитнес, бассейн и спа.
Квартал «Мираполис» расположен на Проспекте мира, в 500 метрах от национального парка «Лосиный остров». Развитая инфраструктура, близость к крупным торговым и бизнес-центрам, вузам и медицинским клиникам создает особенный комфорт. Удобная локация в 400 метров от МЦК «Ростокино» и быстрый выезд на главные транспортные магистрали позволяет всего за 30 минут добраться до центра Москвы.
Жилой комплекс «Very на Миклухо-Маклая» включает в себя 3 корпуса высотой в 19 этажей с панорамным угловым остеклением, объединенных общим одноэтажным стилобатом. Все корпуса имеют оригинальный архитектурный объем и свой акцентный цвет. В проекте предусмотрено дизайнерское лобби с комфортабельными мягкими зонами. Дизайнерские интерьеры вдохновлены оттенками драгоценных камней. Первые этажи зданий отведены под коммерческие помещения. Также предусмотрены кладовые помещения для хранения вещей.
В проекте «Very на Миклухо-Маклая» собрана коллекция функциональных планировочных решений: от эргономичных евроформатов и уютных студий площадью от 23 кв. метров до просторных квартир более 122 кв. метров, хайфлеты с потолками от 3,4 до 5,5 м, квартиры с террасами, балконами, лоджиями и остеклением от пола до потолка.
Территория комплекса «Very на Миклухо-Маклая» оборудована системой «Умный Дом». Установлены современные системы контроля доступа, по всему периметру ведется видеонаблюдение. Для автомобилистов предусмотрен подземный паркинг. Места отдыха благоустроены: территория закрыта от машин, имеются тематические зеленые зоны для приготовления барбекю.
Комплекс «Very на Миклухо-Маклая» расположен в районе Обручевский, в окружении государственных университетов и лесопарков. До метро «Университет дружбы народов» 2 минуты пешим ходом. До МКАД дорога на автомобиле займет 10 минут.
Жилой комплекс «Very на Миклухо-Маклая» включает в себя 3 корпуса высотой в 19 этажей с панорамным угловым остеклением, объединенных общим одноэтажным стилобатом. Все корпуса имеют оригинальный архитектурный объем и свой акцентный цвет. В проекте предусмотрено дизайнерское лобби с комфортабельными мягкими зонами. Дизайнерские интерьеры вдохновлены оттенками драгоценных камней. Первые этажи зданий отведены под коммерческие помещения. Также предусмотрены кладовые помещения для хранения вещей.
В проекте «Very на Миклухо-Маклая» собрана коллекция функциональных планировочных решений: от эргономичных евроформатов и уютных студий площадью от 23 кв. метров до просторных квартир более 122 кв. метров, хайфлеты с потолками от 3,4 до 5,5 м, квартиры с террасами, балконами, лоджиями и остеклением от пола до потолка.
Территория комплекса «Very на Миклухо-Маклая» оборудована системой «Умный Дом». Установлены современные системы контроля доступа, по всему периметру ведется видеонаблюдение. Для автомобилистов предусмотрен подземный паркинг. Места отдыха благоустроены: территория закрыта от машин, имеются тематические зеленые зоны для приготовления барбекю.
Комплекс «Very на Миклухо-Маклая» расположен в районе Обручевский, в окружении государственных университетов и лесопарков. До метро «Университет дружбы народов» 2 минуты пешим ходом. До МКАД дорога на автомобиле займет 10 минут.
Жилой комплекс «Very на Миклухо-Маклая» включает в себя 3 корпуса высотой в 19 этажей с панорамным угловым остеклением, объединенных общим одноэтажным стилобатом. Все корпуса имеют оригинальный архитектурный объем и свой акцентный цвет. В проекте предусмотрено дизайнерское лобби с комфортабельными мягкими зонами. Дизайнерские интерьеры вдохновлены оттенками драгоценных камней. Первые этажи зданий отведены под коммерческие помещения. Также предусмотрены кладовые помещения для хранения вещей.
В проекте «Very на Миклухо-Маклая» собрана коллекция функциональных планировочных решений: от эргономичных евроформатов и уютных студий площадью от 23 кв. метров до просторных квартир более 122 кв. метров, хайфлеты с потолками от 3,4 до 5,5 м, квартиры с террасами, балконами, лоджиями и остеклением от пола до потолка.
Территория комплекса «Very на Миклухо-Маклая» оборудована системой «Умный Дом». Установлены современные системы контроля доступа, по всему периметру ведется видеонаблюдение. Для автомобилистов предусмотрен подземный паркинг. Места отдыха благоустроены: территория закрыта от машин, имеются тематические зеленые зоны для приготовления барбекю.
Комплекс «Very на Миклухо-Маклая» расположен в районе Обручевский, в окружении государственных университетов и лесопарков. До метро «Университет дружбы народов» 2 минуты пешим ходом. До МКАД дорога на автомобиле займет 10 минут.
Комплекс апартаментов «RED7» представляет собой двухсекционный кирпично-монолитный дом высотой 19 этажей, внешний облик которого выполнен по индивидуальному архитектурному проекту голландской студии MVRDV. Для наружной облицовки фасадов здания используется долговечный и эстетически привлекательный декоративный кирпич в сочетании с клинкерной плиткой.
В комплексе спроектировано 289 апартаментов, в числе которых есть как компактные студии, так и просторные двухуровневые лоты с уникальными видовыми характеристиками. Дизайн апартаментов выполнен в современном и неоклассическом стилях, каждый из которых реализован в двух цветовых гаммах.
ЖК расположен в центре Москвы, на первой линии Садового кольца. Нежилая часть комплекса разделена на клубные зоны и места общественного пользования. В вестибюлях обеих секций круглосуточно дежурят портье, готовые в любую минуту помочь постояльцам. Доступ в жилую часть апартаментов доступен только по индивидуальным смарт-картам. Новостройка оснащена скоростными бесшумными лифтами с интеллектуальным управлением и возможностью спуска в паркинг, автоматической системой пожаротушения и централизованными системами кондиционирования воздуха и фильтрации воды. На высоте 15 метров над уровнем земли расположена «Небесная гостиная», которая представляет собой клубное пространство для резидентов комплекса. Здесь разместятся коворкинг, кинотеатр, детская комната, бильярдная, тренажерный зал и другие объекты.
Жилой комплекс состоит из 2 башен высотой 17 и 21 этаж со встроенно-пристроенной одноэтажной стилобатной частью. Дома возведены по монолитной технологии строительства с вентилируемыми фасадами из панелей. Выполнена дизайнерская отделка входных групп, установлены современные скоростные лифты. В лобби расположены стойки ресепшен, мягкие зоны отдыха, комнаты матери и ребенка, комнаты для хранения детских колясок и велосипедов, на подземном уровне комплекса расположены индивидуальные кладовые помещения.
В жилом комплексе предложено множество планировочных решений: студии, 2-х, 3-х и 4-х комнатные варианты евроформата, а также 2-х комнатные квартиры классического формата. Сдаются они с панорамными окнами и высотой потолков 3 метра.
Общая площадь озеленения на территории проекта составляет более 1,8 тыс. кв. метров. На благоустроенной территории расположены спортивная и детская игровая площадка, места для отдыха. В стилобатной части и на первых этажах корпусов находятся коммерческие помещения. В комплексе предусмотрено 155 машиномест, 129 из которых расположены в подземном паркинге, а 26 — на плоскостной парковке.
Жилой комплекс расположен в районе Соколиная гора, где есть вся необходимая инфраструктура: детские сады и школы, поликлиники, вузы, спортивный комплекс, места для досуга и прогулок. В 350 метрах находится Измайловский парк, где предусмотрены спортивные площадки, аттракционы, кафе и рестораны. До метро «Соколиная Гора» можно дойти за 5 минут, а до «Шоссе Энтузиастов» за 5 минут на транспорте.
Жилой комплекс состоит из 2 башен высотой 17 и 21 этаж со встроенно-пристроенной одноэтажной стилобатной частью. Дома возведены по монолитной технологии строительства с вентилируемыми фасадами из панелей. Выполнена дизайнерская отделка входных групп, установлены современные скоростные лифты. В лобби расположены стойки ресепшен, мягкие зоны отдыха, комнаты матери и ребенка, комнаты для хранения детских колясок и велосипедов, на подземном уровне комплекса расположены индивидуальные кладовые помещения.
В жилом комплексе предложено множество планировочных решений: студии, 2-х, 3-х и 4-х комнатные варианты евроформата, а также 2-х комнатные квартиры классического формата. Сдаются они с панорамными окнами и высотой потолков 3 метра.
Общая площадь озеленения на территории проекта составляет более 1,8 тыс. кв. метров. На благоустроенной территории расположены спортивная и детская игровая площадка, места для отдыха. В стилобатной части и на первых этажах корпусов находятся коммерческие помещения. В комплексе предусмотрено 155 машиномест, 129 из которых расположены в подземном паркинге, а 26 — на плоскостной парковке.
Жилой комплекс расположен в районе Соколиная гора, где есть вся необходимая инфраструктура: детские сады и школы, поликлиники, вузы, спортивный комплекс, места для досуга и прогулок. В 350 метрах находится Измайловский парк, где предусмотрены спортивные площадки, аттракционы, кафе и рестораны. До метро «Соколиная Гора» можно дойти за 5 минут, а до «Шоссе Энтузиастов» за 5 минут на транспорте.
ЖК «Very» возводится на территории бывшей гостиницы «Останкино» на участке 2,89 Га, из которых лишь 23% отдано под здания. Всего в рамках VERY построено 4 жилых дома высотой в 31 этаж. Во всех корпусах выполнена дизайнерская отделка входных групп и установлены современные лифты.
В проекте «Very» предложено множество планировочных решений: в наличии квартиры, как классического типа, так и европланировки. В эко-квартале 85% квартир – видовые, с роскошными видами на Главный Ботанический сад, Малый Ботанический сад и город. Видовые квартиры в проекте начинаются уже с уровня первого жилого этажа.
На территории комплекса «Very» выполнено авторское двухуровневое благоустройство и озеленение. В центре двора-парка расположена площадь с фонтаном. Особенная проекта – огромный прогулочный мост – парящая над землей конструкция длиной более 200 метров, с горками и смотровыми площадками. Всего на территории VERY 5 детских площадок, 2 большие спортивные зоны с площадками для игры в волейбол, баскетбол, мини-футбол и зонами фитнеса и воркаута. Общая площадь этих площадок составляет 2,5 тыс. кв. метров. По периметру всего двора сделана велосипедная дорожка. Элементами благоустройства также являются беседки с качелями, навесы и многоуровневая подсветка. На первых этажах находится социально и общественно значимая инфраструктура, а также проектом предусмотрен отдельно стоящий двухэтажный спортивный комплекс с бассейном и детский сад на 100 мест. Для владельцев автомобилей предусмотрен подземный паркинг.
ЖК «Very» находится в районе Марфино. Внешняя инфраструктура развита, в пешей доступности: детские сады, школы, кафе, магазины, медицинские учреждения. Ботанический сад и парк Останкино всего в 5 минутах пешком. До метро «ВДНХ» — 10 минут транспортом.
ЖК «Very» возводится на территории бывшей гостиницы «Останкино» на участке 2,89 Га, из которых лишь 23% отдано под здания. Всего в рамках VERY построено 4 жилых дома высотой в 31 этаж. Во всех корпусах выполнена дизайнерская отделка входных групп и установлены современные лифты.
В проекте «Very» предложено множество планировочных решений: в наличии квартиры, как классического типа, так и европланировки. В эко-квартале 85% квартир – видовые, с роскошными видами на Главный Ботанический сад, Малый Ботанический сад и город. Видовые квартиры в проекте начинаются уже с уровня первого жилого этажа.
На территории комплекса «Very» выполнено авторское двухуровневое благоустройство и озеленение. В центре двора-парка расположена площадь с фонтаном. Особенная проекта – огромный прогулочный мост – парящая над землей конструкция длиной более 200 метров, с горками и смотровыми площадками. Всего на территории VERY 5 детских площадок, 2 большие спортивные зоны с площадками для игры в волейбол, баскетбол, мини-футбол и зонами фитнеса и воркаута. Общая площадь этих площадок составляет 2,5 тыс. кв. метров. По периметру всего двора сделана велосипедная дорожка. Элементами благоустройства также являются беседки с качелями, навесы и многоуровневая подсветка. На первых этажах находится социально и общественно значимая инфраструктура, а также проектом предусмотрен отдельно стоящий двухэтажный спортивный комплекс с бассейном и детский сад на 100 мест. Для владельцев автомобилей предусмотрен подземный паркинг.
ЖК «Very» находится в районе Марфино. Внешняя инфраструктура развита, в пешей доступности: детские сады, школы, кафе, магазины, медицинские учреждения. Ботанический сад и парк Останкино всего в 5 минутах пешком. До метро «ВДНХ» — 10 минут транспортом.
ЖК «Very» возводится на территории бывшей гостиницы «Останкино» на участке 2,89 Га, из которых лишь 23% отдано под здания. Всего в рамках VERY построено 4 жилых дома высотой в 31 этаж. Во всех корпусах выполнена дизайнерская отделка входных групп и установлены современные лифты.
В проекте «Very» предложено множество планировочных решений: в наличии квартиры, как классического типа, так и европланировки. В эко-квартале 85% квартир – видовые, с роскошными видами на Главный Ботанический сад, Малый Ботанический сад и город. Видовые квартиры в проекте начинаются уже с уровня первого жилого этажа.
На территории комплекса «Very» выполнено авторское двухуровневое благоустройство и озеленение. В центре двора-парка расположена площадь с фонтаном. Особенная проекта – огромный прогулочный мост – парящая над землей конструкция длиной более 200 метров, с горками и смотровыми площадками. Всего на территории VERY 5 детских площадок, 2 большие спортивные зоны с площадками для игры в волейбол, баскетбол, мини-футбол и зонами фитнеса и воркаута. Общая площадь этих площадок составляет 2,5 тыс. кв. метров. По периметру всего двора сделана велосипедная дорожка. Элементами благоустройства также являются беседки с качелями, навесы и многоуровневая подсветка. На первых этажах находится социально и общественно значимая инфраструктура, а также проектом предусмотрен отдельно стоящий двухэтажный спортивный комплекс с бассейном и детский сад на 100 мест. Для владельцев автомобилей предусмотрен подземный паркинг.
ЖК «Very» находится в районе Марфино. Внешняя инфраструктура развита, в пешей доступности: детские сады, школы, кафе, магазины, медицинские учреждения. Ботанический сад и парк Останкино всего в 5 минутах пешком. До метро «ВДНХ» — 10 минут транспортом.
Комплекс апартаментов «Nametkin Tower» формирует композицию из разноэтажных перпендикулярных объемов. Здание имеет п-образную форму с четырьмя возвышающимися блоками высотностью 29 этажей. Лобби выполнены по индивидуальному дизайну Нидерландского архитектурного бюро MECANOO. В проекте предусмотрена зона ресепшен с консьержем.
С верхних этажей «Nametkin Tower» открываются потрясающие панорамные виды на город. Окна выходят сразу на три стороны света. Высота окон составляет 2,7 метра. Система вентиляции создает благоприятную атмосферу в любое время года, а приборы высокой очистки увлажняют воздух, избавляя его от городской пыли и аллергенов.
Благоустройство территории «Nametkin Tower» разделено на 2 пространства — общественное и приватное. Проезд для автомобилей во внутренний двор закрыт. На придомовой территории оборудованы дорожки для прогулок, уединенные беседки среди высаженного сада крупномерных деревьев и безопасные детские площадки. Для резидентов на 25 этаже предусмотрена уникальная терраса с коворкингом, приватными лаунж зонами, баром, игровыми комнатами, залом для занятия спортом и танцами. Все корпуса объединяет двухуровневый подземный паркинг.
Комплекс апартаментов «Nametkin Tower» расположен в районе Черемушки. В пешей доступности находятся магазины, кафе, рестораны, салоны красоты, детские сады, школы, банки, Воронцовский парк. До метро «Калужская», «Воронцовская» и «Новые Черемушки» — 10 минут пешком.
Комплекс «ФизтехСити» состоит из двух 20 этажных секций, объединенных двухэтажным стилобатом. На 454 кв. метрах организовано функциональное лобби с дизайнерским оформлением интерьера, с 4-метровыми потолками и панорамными окнами. Здесь расположены удобные зоны с мягкой мебелью и столиками для онлайн переговоров, встреч офлайн и работы за ноутбуком. Стойка администрации, общественные комнаты для хранения крупногабаритных вещей, гостевые санузлы и комнаты для мытья лап домашних животных – все это предусмотрено в комплексе. Приятную атмосферу создают островки вертикального озеленения.
Проект «ФизтехСити» включает 488 апартаментов с панорамным остеклением. Сдаются они без стен и высотой потолков от 2.97 до 3.15 метров. Можно установить систему «умный дом».
В комплексе «ФизтехСити» предусмотрены собственный подземный паркинг и гостевые парковки, на первых этажах разнообразная инфраструктура и инновационный детский сад с бассейном. А на стилобате продуман уютный закрытый двор с доступом только для резидентов. На территории комплекса спроектированы бассейн с пляжной зоной и ФОК. Интеллектуальная система «умный дом» контролирует рациональное использование электроэнергии и отопления в общественных зонах.
Проект «ФизтехСити» находится в Северном районе. Всего в 5 минутах пешком проходит МЦД-1 «Новодачная», а также станция «Физтех». Комплекс буквально окружен парками – 5 парков в шаговой доступности. И конечно же, развитая социальная инфраструктура района – включающая в себя Физтех лицей, развивающийся научно-учебный кластер МФТИ всего в 20 минутах от комплекса. В 10 минутах пешком ТЦ Метро. В 3 минутах на машине торговый центр РИО. Фитнес на территории ФИЗТЕХПАРКА. В 4 км от комплекса находятся яхт-клубы. В 45 км горнолыжный курорт Яхрома.
Комплекс «ФизтехСити» состоит из двух 20 этажных секций, объединенных двухэтажным стилобатом. На 454 кв. метрах организовано функциональное лобби с дизайнерским оформлением интерьера, с 4-метровыми потолками и панорамными окнами. Здесь расположены удобные зоны с мягкой мебелью и столиками для онлайн переговоров, встреч офлайн и работы за ноутбуком. Стойка администрации, общественные комнаты для хранения крупногабаритных вещей, гостевые санузлы и комнаты для мытья лап домашних животных – все это предусмотрено в комплексе. Приятную атмосферу создают островки вертикального озеленения.
Проект «ФизтехСити» включает 488 апартаментов с панорамным остеклением. Сдаются они без стен и высотой потолков от 2.97 до 3.15 метров. Можно установить систему «умный дом».
В комплексе «ФизтехСити» предусмотрены собственный подземный паркинг и гостевые парковки, на первых этажах разнообразная инфраструктура и инновационный детский сад с бассейном. А на стилобате продуман уютный закрытый двор с доступом только для резидентов. На территории комплекса спроектированы бассейн с пляжной зоной и ФОК. Интеллектуальная система «умный дом» контролирует рациональное использование электроэнергии и отопления в общественных зонах.
Проект «ФизтехСити» находится в Северном районе. Всего в 5 минутах пешком проходит МЦД-1 «Новодачная», а также станция «Физтех». Комплекс буквально окружен парками – 5 парков в шаговой доступности. И конечно же, развитая социальная инфраструктура района – включающая в себя Физтех лицей, развивающийся научно-учебный кластер МФТИ всего в 20 минутах от комплекса. В 10 минутах пешком ТЦ Метро. В 3 минутах на машине торговый центр РИО. Фитнес на территории ФИЗТЕХПАРКА. В 4 км от комплекса находятся яхт-клубы. В 45 км горнолыжный курорт Яхрома.
Жилой комплекс бизнес-класса представляет собой корпус, состоящий из двух секций переменной этажности 13-19-20 этажей. Дом возводится по кирпично-монолитной технологии и облицован вентилируемыми фасадами в светлых материалах, создавая легкий, парящий вид. Внутри комплекса находится дизайнерское лобби с зонами отдыха, мягкой мебелью и столиками для проведения встреч. На первых этажах размещены комната матери и ребенка, зал для мероприятий, коворкинг, ресепшен, гостевые санузлы и колясочная. В лобби установлены бесшумные пассажирские и грузовые лифты, а также мойка для лап животных.
Комплекс предлагает широкий выбор апартаментов: от уютных студий площадью 23,8 кв. метров до 4-комнатных апартаментов. Также есть апартаменты с видовыми террасами на парк «Сокольники» на западной стороне дома. Квартиры, как классического типа, так и европланировки, сдаются без отделки, с высокими потолками 3,1 метров и панорамными окнами, начиная с 4 этажа и выше.
В комплексе предусмотрены различные зоны отдыха: детские игровые пространства, площадка для воркаута, прогулочные зоны, амфитеатр и кафе. На территории двора выполнен ландшафтный дизайн, создающий спокойное пространство для отдыха. Особенностью комплекса является смотровая площадка на реку Яузу и парк «Сокольники». Пространство двора является зоной без машин, для автомобилей предусмотрен подземный паркинг.
Проект располагается в историческом районе Преображенское с развитой инфраструктурой и удобной транспортной доступностью. Рядом находится несколько школ, детские сады, поликлиники, аптеки, спортивный комплекс, фитнес-клубы, банки и супермаркеты. В 300 метрах от комплекса находится парк «Сокольники». Удобный выезд на улицу Стромынка и ТТК позволяет доехать до центра за 15 минут. Метро «Преображенская площадь» находится в 15 минутах пешком.
Жилой комплекс бизнес-класса представляет собой корпус, состоящий из двух секций переменной этажности 13-19-20 этажей. Дом возводится по кирпично-монолитной технологии и облицован вентилируемыми фасадами в светлых материалах, создавая легкий, парящий вид. Внутри комплекса находится дизайнерское лобби с зонами отдыха, мягкой мебелью и столиками для проведения встреч. На первых этажах размещены комната матери и ребенка, зал для мероприятий, коворкинг, ресепшен, гостевые санузлы и колясочная. В лобби установлены бесшумные пассажирские и грузовые лифты, а также мойка для лап животных.
Комплекс предлагает широкий выбор апартаментов: от уютных студий площадью 23,8 кв. метров до 4-комнатных апартаментов. Также есть апартаменты с видовыми террасами на парк «Сокольники» на западной стороне дома. Квартиры, как классического типа, так и европланировки, сдаются без отделки, с высокими потолками 3,1 метров и панорамными окнами, начиная с 4 этажа и выше.
В комплексе предусмотрены различные зоны отдыха: детские игровые пространства, площадка для воркаута, прогулочные зоны, амфитеатр и кафе. На территории двора выполнен ландшафтный дизайн, создающий спокойное пространство для отдыха. Особенностью комплекса является смотровая площадка на реку Яузу и парк «Сокольники». Пространство двора является зоной без машин, для автомобилей предусмотрен подземный паркинг.
Проект располагается в историческом районе Преображенское с развитой инфраструктурой и удобной транспортной доступностью. Рядом находится несколько школ, детские сады, поликлиники, аптеки, спортивный комплекс, фитнес-клубы, банки и супермаркеты. В 300 метрах от комплекса находится парк «Сокольники». Удобный выезд на улицу Стромынка и ТТК позволяет доехать до центра за 15 минут. Метро «Преображенская площадь» находится в 15 минутах пешком.
Комплекс апартаментов представляет собой 18-этажный дом с подземным паркингом. Здание выполнено в современном архитектурном стиле. Сочетание вертикальных и горизонтальных «поясов» на фасадах подчеркивает строгую геометрию объема и лаконичный облик дома, а французские балконы и панорамные окна с алюминиевыми профилями облегчают силуэт, делая его более прозрачным и воздушным. В комплексе создано функциональное лобби с дизайнерским интерьером, приватными зонами с мягкой мебелью для деловых и личных встреч, местами для хранения велосипедов и детских колясок, зоной коворкинга и комнатой матери и ребенка. В комплексе предложены планировки от компактных студий до просторных двухкомнатных апартаментов европейского формата. Во всех апартаментах выполнено панорамное остекление с французскими балконами. Все апартаменты сдаются без отделки. Высота потолков составляет 2,9 метра, а из окон открывается вид на парк. Во всех апартаментах предусмотрена возможность установки системы «умный дом». На прилегающей территории комплекса организованы уютные благоустроенные зоны для отдыха и прогулок, игровые пространства для детей разных возрастов с современным оборудованием, воркаут-площадки и амфитеатр. Территория двора с разнообразными деревьями и растениями создает спокойное пространство и дарит ощущение гармонии. Для владельцев автомобилей в комплексе предусмотрен подземный паркинг на 49 машиномест, спуститься на который с жилых этажей или из лобби позволят четыре грузопассажирских лифта. Комплекс апартаментов располагается в районе Перово, где собраны все преимущества для комфортной городской жизни: отличная транспортная доступность, развитая инфраструктура и лесопарковые зоны для прогулок, занятий спортом, отдыха и развлечений. Комплекс располагается всего в 600 метрах от одного из самых больших и зеленых парков Москвы — Измайловского, и в 200 метрах оот Владимирского пруда и сквера. В ближайшие несколько лет район Перово кардинально преобразится: здесь, рядом с Владимирским прудом и Измайловским парком, появятся современные общественные пространства, жилье и инфраструктура, включая новые школы, детские сады и медицинские учреждения. В 3 минутах пешком находится метро «Шоссе Энтузиастов», и в 6 минутах — МЦК «Шоссе Энтузиастов». Из комплекса предусмотрен быстрый выезд на шоссе Энтузиастов и СВХ.

