











Жилой комплекс «Very на Миклухо-Маклая» включает в себя 3 корпуса высотой в 19 этажей с панорамным угловым остеклением, объединенных общим одноэтажным стилобатом. Все корпуса имеют оригинальный архитектурный объем и свой акцентный цвет. В проекте предусмотрено дизайнерское лобби с комфортабельными мягкими зонами. Дизайнерские интерьеры вдохновлены оттенками драгоценных камней. Первые этажи зданий отведены под коммерческие помещения. Также предусмотрены кладовые помещения для хранения вещей.
В проекте «Very на Миклухо-Маклая» собрана коллекция функциональных планировочных решений: от эргономичных евроформатов и уютных студий площадью от 23 кв. метров до просторных квартир более 122 кв. метров, хайфлеты с потолками от 3,4 до 5,5 м, квартиры с террасами, балконами, лоджиями и остеклением от пола до потолка.
Территория комплекса «Very на Миклухо-Маклая» оборудована системой «Умный Дом». Установлены современные системы контроля доступа, по всему периметру ведется видеонаблюдение. Для автомобилистов предусмотрен подземный паркинг. Места отдыха благоустроены: территория закрыта от машин, имеются тематические зеленые зоны для приготовления барбекю.
Комплекс «Very на Миклухо-Маклая» расположен в районе Обручевский, в окружении государственных университетов и лесопарков. До метро «Университет дружбы народов» 2 минуты пешим ходом. До МКАД дорога на автомобиле займет 10 минут.

Жилой комплекс бизнес-класса состоит из 2 корпусов: 35-этажная башня и 2-секционный дом переменной этажности высотой 19–20 этажей. Здания возводятся по монолитной технологии, вентилируемые фасады облицованы керамогранитом. В архитектуре зданий гармонично сочетаются современные геометрические формы и волнообразные линии фасадов. Для удобства жильцов предусмотрены входные группы, расположенные на уровне земли, без ступеней. Также в проекте есть пассажирские и грузовые лифты, и 2-уровневый подземный паркинг.
В жилом комплексе представлен широкий выбор планировочных решений — от уютных студий площадью от 28 кв. м до просторных квартир с 4 спальнями площадью 95 кв. м, включая эргономичные евроформаты. В помещениях установлены панорамные окна, высота потолков варьируется от 2,85 до 3,4 метров. Квартиры идут без стен, что дает владельцам возможность реализовать индивидуальные дизайнерские решения.
На территории комплекса представлены ресепшен с консьерж-сервисом, дизайнерские входные группы, благоустроенный двор с ландшафтным озеленением, детскими и спортивными площадками. В здании оборудованы колясочные и лапомойки, а в квартирах установлена система умного дома. Безбарьерная среда делает пространство доступным для всех категорий жителей.
Проект расположен в Можайском районе. В пределах 10–15 минут пешком есть вся необходимая инфраструктура: школы, детские сады, медицинские учреждения, парки, а также торговый центр Вегас. До центра Москвы можно добраться за 20 минут транспортом, а до Арбата — за 30 минут. В 10 минутах пешком находится МЦД Сетунь.
Комплекс апартаментов «Nametkin Tower» формирует композицию из разноэтажных перпендикулярных объемов. Здание имеет п-образную форму с четырьмя возвышающимися блоками высотностью 29 этажей. Лобби выполнены по индивидуальному дизайну Нидерландского архитектурного бюро MECANOO. В проекте предусмотрена зона ресепшен с консьержем.
С верхних этажей «Nametkin Tower» открываются потрясающие панорамные виды на город. Окна выходят сразу на три стороны света. Высота окон составляет 2,7 метра. Система вентиляции создает благоприятную атмосферу в любое время года, а приборы высокой очистки увлажняют воздух, избавляя его от городской пыли и аллергенов.
Благоустройство территории «Nametkin Tower» разделено на 2 пространства — общественное и приватное. Проезд для автомобилей во внутренний двор закрыт. На придомовой территории оборудованы дорожки для прогулок, уединенные беседки среди высаженного сада крупномерных деревьев и безопасные детские площадки. Для резидентов на 25 этаже предусмотрена уникальная терраса с коворкингом, приватными лаунж зонами, баром, игровыми комнатами, залом для занятия спортом и танцами. Все корпуса объединяет двухуровневый подземный паркинг.
Комплекс апартаментов «Nametkin Tower» расположен в районе Черемушки. В пешей доступности находятся магазины, кафе, рестораны, салоны красоты, детские сады, школы, банки, Воронцовский парк. До метро «Калужская», «Воронцовская» и «Новые Черемушки» — 10 минут пешком.
Жилой комплекс бизнес-класса представляет собой корпус, состоящий из двух секций переменной этажности 13-19-20 этажей. Дом возводится по кирпично-монолитной технологии и облицован вентилируемыми фасадами в светлых материалах, создавая легкий, парящий вид. Внутри комплекса находится дизайнерское лобби с зонами отдыха, мягкой мебелью и столиками для проведения встреч. На первых этажах размещены комната матери и ребенка, зал для мероприятий, коворкинг, ресепшен, гостевые санузлы и колясочная. В лобби установлены бесшумные пассажирские и грузовые лифты, а также мойка для лап животных.
Комплекс предлагает широкий выбор апартаментов: от уютных студий площадью 23,8 кв. метров до 4-комнатных апартаментов. Также есть апартаменты с видовыми террасами на парк «Сокольники» на западной стороне дома. Квартиры, как классического типа, так и европланировки, сдаются без отделки, с высокими потолками 3,1 метров и панорамными окнами, начиная с 4 этажа и выше.
В комплексе предусмотрены различные зоны отдыха: детские игровые пространства, площадка для воркаута, прогулочные зоны, амфитеатр и кафе. На территории двора выполнен ландшафтный дизайн, создающий спокойное пространство для отдыха. Особенностью комплекса является смотровая площадка на реку Яузу и парк «Сокольники». Пространство двора является зоной без машин, для автомобилей предусмотрен подземный паркинг.
Проект располагается в историческом районе Преображенское с развитой инфраструктурой и удобной транспортной доступностью. Рядом находится несколько школ, детские сады, поликлиники, аптеки, спортивный комплекс, фитнес-клубы, банки и супермаркеты. В 300 метрах от комплекса находится парк «Сокольники». Удобный выезд на улицу Стромынка и ТТК позволяет доехать до центра за 15 минут. Метро «Преображенская площадь» находится в 15 минутах пешком.
Жилой комплекс бизнес-класса представляет собой корпус, состоящий из двух секций переменной этажности 13-19-20 этажей. Дом возводится по кирпично-монолитной технологии и облицован вентилируемыми фасадами в светлых материалах, создавая легкий, парящий вид. Внутри комплекса находится дизайнерское лобби с зонами отдыха, мягкой мебелью и столиками для проведения встреч. На первых этажах размещены комната матери и ребенка, зал для мероприятий, коворкинг, ресепшен, гостевые санузлы и колясочная. В лобби установлены бесшумные пассажирские и грузовые лифты, а также мойка для лап животных.
Комплекс предлагает широкий выбор апартаментов: от уютных студий площадью 23,8 кв. метров до 4-комнатных апартаментов. Также есть апартаменты с видовыми террасами на парк «Сокольники» на западной стороне дома. Квартиры, как классического типа, так и европланировки, сдаются без отделки, с высокими потолками 3,1 метров и панорамными окнами, начиная с 4 этажа и выше.
В комплексе предусмотрены различные зоны отдыха: детские игровые пространства, площадка для воркаута, прогулочные зоны, амфитеатр и кафе. На территории двора выполнен ландшафтный дизайн, создающий спокойное пространство для отдыха. Особенностью комплекса является смотровая площадка на реку Яузу и парк «Сокольники». Пространство двора является зоной без машин, для автомобилей предусмотрен подземный паркинг.
Проект располагается в историческом районе Преображенское с развитой инфраструктурой и удобной транспортной доступностью. Рядом находится несколько школ, детские сады, поликлиники, аптеки, спортивный комплекс, фитнес-клубы, банки и супермаркеты. В 300 метрах от комплекса находится парк «Сокольники». Удобный выезд на улицу Стромынка и ТТК позволяет доехать до центра за 15 минут. Метро «Преображенская площадь» находится в 15 минутах пешком.
Квартал «Мираполис» состоит из 4 башен с авторскими стеклянными фасадами. В лобби выполнена дизайнерская отделка и обустроены места для отдыха.
В проекте «Мираполис» доступен большой выбор планировочных решений: от студий до пятикомнатных апартаментов с высокими потолками, панорамными окнами и системой кондиционирования для каждого лота. Проект оснащен системой «Умный дом».
Под открытым небом расположится Lounge-rooftop. Озеленение и благоустройство периметра и внутренней территории создают дополнительные возможности для прогулок, детских игр и занятий спортом на свежем воздухе. Уникальная концепция проекта предлагает все преимущества современного бизнес-класса: круглосуточный консьерж-сервис, подземный паркинг, торговые и деловые центры, фитнес, бассейн и спа.
Квартал «Мираполис» расположен на Проспекте мира, в 500 метрах от национального парка «Лосиный остров». Развитая инфраструктура, близость к крупным торговым и бизнес-центрам, вузам и медицинским клиникам создает особенный комфорт. Удобная локация в 400 метров от МЦК «Ростокино» и быстрый выезд на главные транспортные магистрали позволяет всего за 30 минут добраться до центра Москвы.
Квартал «Мираполис» состоит из 4 башен с авторскими стеклянными фасадами. В лобби выполнена дизайнерская отделка и обустроены места для отдыха.
В проекте «Мираполис» доступен большой выбор планировочных решений: от студий до пятикомнатных апартаментов с высокими потолками, панорамными окнами и системой кондиционирования для каждого лота. Проект оснащен системой «Умный дом».
Под открытым небом расположится Lounge-rooftop. Озеленение и благоустройство периметра и внутренней территории создают дополнительные возможности для прогулок, детских игр и занятий спортом на свежем воздухе. Уникальная концепция проекта предлагает все преимущества современного бизнес-класса: круглосуточный консьерж-сервис, подземный паркинг, торговые и деловые центры, фитнес, бассейн и спа.
Квартал «Мираполис» расположен на Проспекте мира, в 500 метрах от национального парка «Лосиный остров». Развитая инфраструктура, близость к крупным торговым и бизнес-центрам, вузам и медицинским клиникам создает особенный комфорт. Удобная локация в 400 метров от МЦК «Ростокино» и быстрый выезд на главные транспортные магистрали позволяет всего за 30 минут добраться до центра Москвы.
Квартал «Мираполис» состоит из 4 башен с авторскими стеклянными фасадами. В лобби выполнена дизайнерская отделка и обустроены места для отдыха.
В проекте «Мираполис» доступен большой выбор планировочных решений: от студий до пятикомнатных апартаментов с высокими потолками, панорамными окнами и системой кондиционирования для каждого лота. Проект оснащен системой «Умный дом».
Под открытым небом расположится Lounge-rooftop. Озеленение и благоустройство периметра и внутренней территории создают дополнительные возможности для прогулок, детских игр и занятий спортом на свежем воздухе. Уникальная концепция проекта предлагает все преимущества современного бизнес-класса: круглосуточный консьерж-сервис, подземный паркинг, торговые и деловые центры, фитнес, бассейн и спа.
Квартал «Мираполис» расположен на Проспекте мира, в 500 метрах от национального парка «Лосиный остров». Развитая инфраструктура, близость к крупным торговым и бизнес-центрам, вузам и медицинским клиникам создает особенный комфорт. Удобная локация в 400 метров от МЦК «Ростокино» и быстрый выезд на главные транспортные магистрали позволяет всего за 30 минут добраться до центра Москвы.
Квартал «Мираполис» состоит из 4 башен с авторскими стеклянными фасадами. В лобби выполнена дизайнерская отделка и обустроены места для отдыха.
В проекте «Мираполис» доступен большой выбор планировочных решений: от студий до пятикомнатных апартаментов с высокими потолками, панорамными окнами и системой кондиционирования для каждого лота. Проект оснащен системой «Умный дом».
Под открытым небом расположится Lounge-rooftop. Озеленение и благоустройство периметра и внутренней территории создают дополнительные возможности для прогулок, детских игр и занятий спортом на свежем воздухе. Уникальная концепция проекта предлагает все преимущества современного бизнес-класса: круглосуточный консьерж-сервис, подземный паркинг, торговые и деловые центры, фитнес, бассейн и спа.
Квартал «Мираполис» расположен на Проспекте мира, в 500 метрах от национального парка «Лосиный остров». Развитая инфраструктура, близость к крупным торговым и бизнес-центрам, вузам и медицинским клиникам создает особенный комфорт. Удобная локация в 400 метров от МЦК «Ростокино» и быстрый выезд на главные транспортные магистрали позволяет всего за 30 минут добраться до центра Москвы.
ЖК «Very» возводится на территории бывшей гостиницы «Останкино» на участке 2,89 Га, из которых лишь 23% отдано под здания. Всего в рамках VERY построено 4 жилых дома высотой в 31 этаж. Во всех корпусах выполнена дизайнерская отделка входных групп и установлены современные лифты.
В проекте «Very» предложено множество планировочных решений: в наличии квартиры, как классического типа, так и европланировки. В эко-квартале 85% квартир – видовые, с роскошными видами на Главный Ботанический сад, Малый Ботанический сад и город. Видовые квартиры в проекте начинаются уже с уровня первого жилого этажа.
На территории комплекса «Very» выполнено авторское двухуровневое благоустройство и озеленение. В центре двора-парка расположена площадь с фонтаном. Особенная проекта – огромный прогулочный мост – парящая над землей конструкция длиной более 200 метров, с горками и смотровыми площадками. Всего на территории VERY 5 детских площадок, 2 большие спортивные зоны с площадками для игры в волейбол, баскетбол, мини-футбол и зонами фитнеса и воркаута. Общая площадь этих площадок составляет 2,5 тыс. кв. метров. По периметру всего двора сделана велосипедная дорожка. Элементами благоустройства также являются беседки с качелями, навесы и многоуровневая подсветка. На первых этажах находится социально и общественно значимая инфраструктура, а также проектом предусмотрен отдельно стоящий двухэтажный спортивный комплекс с бассейном и детский сад на 100 мест. Для владельцев автомобилей предусмотрен подземный паркинг.
ЖК «Very» находится в районе Марфино. Внешняя инфраструктура развита, в пешей доступности: детские сады, школы, кафе, магазины, медицинские учреждения. Ботанический сад и парк Останкино всего в 5 минутах пешком. До метро «ВДНХ» — 10 минут транспортом.
ЖК «Very» возводится на территории бывшей гостиницы «Останкино» на участке 2,89 Га, из которых лишь 23% отдано под здания. Всего в рамках VERY построено 4 жилых дома высотой в 31 этаж. Во всех корпусах выполнена дизайнерская отделка входных групп и установлены современные лифты.
В проекте «Very» предложено множество планировочных решений: в наличии квартиры, как классического типа, так и европланировки. В эко-квартале 85% квартир – видовые, с роскошными видами на Главный Ботанический сад, Малый Ботанический сад и город. Видовые квартиры в проекте начинаются уже с уровня первого жилого этажа.
На территории комплекса «Very» выполнено авторское двухуровневое благоустройство и озеленение. В центре двора-парка расположена площадь с фонтаном. Особенная проекта – огромный прогулочный мост – парящая над землей конструкция длиной более 200 метров, с горками и смотровыми площадками. Всего на территории VERY 5 детских площадок, 2 большие спортивные зоны с площадками для игры в волейбол, баскетбол, мини-футбол и зонами фитнеса и воркаута. Общая площадь этих площадок составляет 2,5 тыс. кв. метров. По периметру всего двора сделана велосипедная дорожка. Элементами благоустройства также являются беседки с качелями, навесы и многоуровневая подсветка. На первых этажах находится социально и общественно значимая инфраструктура, а также проектом предусмотрен отдельно стоящий двухэтажный спортивный комплекс с бассейном и детский сад на 100 мест. Для владельцев автомобилей предусмотрен подземный паркинг.
ЖК «Very» находится в районе Марфино. Внешняя инфраструктура развита, в пешей доступности: детские сады, школы, кафе, магазины, медицинские учреждения. Ботанический сад и парк Останкино всего в 5 минутах пешком. До метро «ВДНХ» — 10 минут транспортом.
ЖК «Very» возводится на территории бывшей гостиницы «Останкино» на участке 2,89 Га, из которых лишь 23% отдано под здания. Всего в рамках VERY построено 4 жилых дома высотой в 31 этаж. Во всех корпусах выполнена дизайнерская отделка входных групп и установлены современные лифты.
В проекте «Very» предложено множество планировочных решений: в наличии квартиры, как классического типа, так и европланировки. В эко-квартале 85% квартир – видовые, с роскошными видами на Главный Ботанический сад, Малый Ботанический сад и город. Видовые квартиры в проекте начинаются уже с уровня первого жилого этажа.
На территории комплекса «Very» выполнено авторское двухуровневое благоустройство и озеленение. В центре двора-парка расположена площадь с фонтаном. Особенная проекта – огромный прогулочный мост – парящая над землей конструкция длиной более 200 метров, с горками и смотровыми площадками. Всего на территории VERY 5 детских площадок, 2 большие спортивные зоны с площадками для игры в волейбол, баскетбол, мини-футбол и зонами фитнеса и воркаута. Общая площадь этих площадок составляет 2,5 тыс. кв. метров. По периметру всего двора сделана велосипедная дорожка. Элементами благоустройства также являются беседки с качелями, навесы и многоуровневая подсветка. На первых этажах находится социально и общественно значимая инфраструктура, а также проектом предусмотрен отдельно стоящий двухэтажный спортивный комплекс с бассейном и детский сад на 100 мест. Для владельцев автомобилей предусмотрен подземный паркинг.
ЖК «Very» находится в районе Марфино. Внешняя инфраструктура развита, в пешей доступности: детские сады, школы, кафе, магазины, медицинские учреждения. Ботанический сад и парк Останкино всего в 5 минутах пешком. До метро «ВДНХ» — 10 минут транспортом.
Комплекс апартаментов «RED7» представляет собой двухсекционный кирпично-монолитный дом высотой 19 этажей, внешний облик которого выполнен по индивидуальному архитектурному проекту голландской студии MVRDV. Для наружной облицовки фасадов здания используется долговечный и эстетически привлекательный декоративный кирпич в сочетании с клинкерной плиткой.
В комплексе спроектировано 289 апартаментов, в числе которых есть как компактные студии, так и просторные двухуровневые лоты с уникальными видовыми характеристиками. Дизайн апартаментов выполнен в современном и неоклассическом стилях, каждый из которых реализован в двух цветовых гаммах.
ЖК расположен в центре Москвы, на первой линии Садового кольца. Нежилая часть комплекса разделена на клубные зоны и места общественного пользования. В вестибюлях обеих секций круглосуточно дежурят портье, готовые в любую минуту помочь постояльцам. Доступ в жилую часть апартаментов доступен только по индивидуальным смарт-картам. Новостройка оснащена скоростными бесшумными лифтами с интеллектуальным управлением и возможностью спуска в паркинг, автоматической системой пожаротушения и централизованными системами кондиционирования воздуха и фильтрации воды. На высоте 15 метров над уровнем земли расположена «Небесная гостиная», которая представляет собой клубное пространство для резидентов комплекса. Здесь разместятся коворкинг, кинотеатр, детская комната, бильярдная, тренажерный зал и другие объекты.
Жилой комплекс представляет собой 2 двенадцатиэтажных монолитно-кирпичных жилых дома. Фасады корпусов облицованы кирпичом и выдержаны в теплых природных оттенках желтого и коричневого.
В проекте предложены однокомнатные и двухкомнатные квартиры, различные по площади и планировке. В некоторых квартирах предусмотрены лоджии с панорамным остеклением, есть планировки с 2 санузлами, изолированными гостиными и спальнями, местами для шкафов-купе. Из части квартир на верхних этажах открывается вид на Москву-реку.
Придомовая территория комплекса благоустроена и озеленена. Во дворе оборудованы детские игровые площадки, для владельцев автомобилей предусмотрены открытые наземные парковки.
Жилой комплекс находится в одном из наиболее экологически чистых районов Подмосковья — Звенигороде. Район отличается развитой инфраструктурой и хорошей транспортной доступностью. Поблизости находятся детские сады, школы, медицинские учреждения, торговые комплексы, магазины, культурный центр, спорткомплекс, бассейн и экопарк. Всего в 500 метрах от микрорайона протекает Москва-река. Центр Звенигорода находится буквально в 15 минутах ходьбы. Из Москвы до комплекса можно добраться на автомобиле, электричке или автобусе. Время в пути на общественном транспорте до ближайшей станции метро «Строгино» займет около 40 минут.
Жилой комплекс представляет собой 2 двенадцатиэтажных монолитно-кирпичных жилых дома. Фасады корпусов облицованы кирпичом и выдержаны в теплых природных оттенках желтого и коричневого.
В проекте предложены однокомнатные и двухкомнатные квартиры, различные по площади и планировке. В некоторых квартирах предусмотрены лоджии с панорамным остеклением, есть планировки с 2 санузлами, изолированными гостиными и спальнями, местами для шкафов-купе. Из части квартир на верхних этажах открывается вид на Москву-реку.
Придомовая территория комплекса благоустроена и озеленена. Во дворе оборудованы детские игровые площадки, для владельцев автомобилей предусмотрены открытые наземные парковки.
Жилой комплекс находится в одном из наиболее экологически чистых районов Подмосковья — Звенигороде. Район отличается развитой инфраструктурой и хорошей транспортной доступностью. Поблизости находятся детские сады, школы, медицинские учреждения, торговые комплексы, магазины, культурный центр, спорткомплекс, бассейн и экопарк. Всего в 500 метрах от микрорайона протекает Москва-река. Центр Звенигорода находится буквально в 15 минутах ходьбы. Из Москвы до комплекса можно добраться на автомобиле, электричке или автобусе. Время в пути на общественном транспорте до ближайшей станции метро «Строгино» займет около 40 минут.
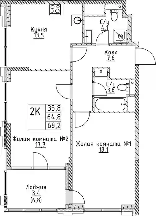
Жилой комплекс «Very на Миклухо-Маклая» включает в себя 3 корпуса высотой в 19 этажей с панорамным угловым остеклением, объединенных общим одноэтажным стилобатом. Все корпуса имеют оригинальный архитектурный объем и свой акцентный цвет. В проекте предусмотрено дизайнерское лобби с комфортабельными мягкими зонами. Дизайнерские интерьеры вдохновлены оттенками драгоценных камней. Первые этажи зданий отведены под коммерческие помещения. Также предусмотрены кладовые помещения для хранения вещей.
В проекте «Very на Миклухо-Маклая» собрана коллекция функциональных планировочных решений: от эргономичных евроформатов и уютных студий площадью от 23 кв. метров до просторных квартир более 122 кв. метров, хайфлеты с потолками от 3,4 до 5,5 м, квартиры с террасами, балконами, лоджиями и остеклением от пола до потолка.
Территория комплекса «Very на Миклухо-Маклая» оборудована системой «Умный Дом». Установлены современные системы контроля доступа, по всему периметру ведется видеонаблюдение. Для автомобилистов предусмотрен подземный паркинг. Места отдыха благоустроены: территория закрыта от машин, имеются тематические зеленые зоны для приготовления барбекю.
Комплекс «Very на Миклухо-Маклая» расположен в районе Обручевский, в окружении государственных университетов и лесопарков. До метро «Университет дружбы народов» 2 минуты пешим ходом. До МКАД дорога на автомобиле займет 10 минут.
Жилой комплекс «Very на Миклухо-Маклая» включает в себя 3 корпуса высотой в 19 этажей с панорамным угловым остеклением, объединенных общим одноэтажным стилобатом. Все корпуса имеют оригинальный архитектурный объем и свой акцентный цвет. В проекте предусмотрено дизайнерское лобби с комфортабельными мягкими зонами. Дизайнерские интерьеры вдохновлены оттенками драгоценных камней. Первые этажи зданий отведены под коммерческие помещения. Также предусмотрены кладовые помещения для хранения вещей.
В проекте «Very на Миклухо-Маклая» собрана коллекция функциональных планировочных решений: от эргономичных евроформатов и уютных студий площадью от 23 кв. метров до просторных квартир более 122 кв. метров, хайфлеты с потолками от 3,4 до 5,5 м, квартиры с террасами, балконами, лоджиями и остеклением от пола до потолка.
Территория комплекса «Very на Миклухо-Маклая» оборудована системой «Умный Дом». Установлены современные системы контроля доступа, по всему периметру ведется видеонаблюдение. Для автомобилистов предусмотрен подземный паркинг. Места отдыха благоустроены: территория закрыта от машин, имеются тематические зеленые зоны для приготовления барбекю.
Комплекс «Very на Миклухо-Маклая» расположен в районе Обручевский, в окружении государственных университетов и лесопарков. До метро «Университет дружбы народов» 2 минуты пешим ходом. До МКАД дорога на автомобиле займет 10 минут.
Комплекс апартаментов представляет собой 18-этажный дом с подземным паркингом. Здание выполнено в современном архитектурном стиле. Сочетание вертикальных и горизонтальных «поясов» на фасадах подчеркивает строгую геометрию объема и лаконичный облик дома, а французские балконы и панорамные окна с алюминиевыми профилями облегчают силуэт, делая его более прозрачным и воздушным. В комплексе создано функциональное лобби с дизайнерским интерьером, приватными зонами с мягкой мебелью для деловых и личных встреч, местами для хранения велосипедов и детских колясок, зоной коворкинга и комнатой матери и ребенка. В комплексе предложены планировки от компактных студий до просторных двухкомнатных апартаментов европейского формата. Во всех апартаментах выполнено панорамное остекление с французскими балконами. Все апартаменты сдаются без отделки. Высота потолков составляет 2,9 метра, а из окон открывается вид на парк. Во всех апартаментах предусмотрена возможность установки системы «умный дом». На прилегающей территории комплекса организованы уютные благоустроенные зоны для отдыха и прогулок, игровые пространства для детей разных возрастов с современным оборудованием, воркаут-площадки и амфитеатр. Территория двора с разнообразными деревьями и растениями создает спокойное пространство и дарит ощущение гармонии. Для владельцев автомобилей в комплексе предусмотрен подземный паркинг на 49 машиномест, спуститься на который с жилых этажей или из лобби позволят четыре грузопассажирских лифта. Комплекс апартаментов располагается в районе Перово, где собраны все преимущества для комфортной городской жизни: отличная транспортная доступность, развитая инфраструктура и лесопарковые зоны для прогулок, занятий спортом, отдыха и развлечений. Комплекс располагается всего в 600 метрах от одного из самых больших и зеленых парков Москвы — Измайловского, и в 200 метрах оот Владимирского пруда и сквера. В ближайшие несколько лет район Перово кардинально преобразится: здесь, рядом с Владимирским прудом и Измайловским парком, появятся современные общественные пространства, жилье и инфраструктура, включая новые школы, детские сады и медицинские учреждения. В 3 минутах пешком находится метро «Шоссе Энтузиастов», и в 6 минутах — МЦК «Шоссе Энтузиастов». Из комплекса предусмотрен быстрый выезд на шоссе Энтузиастов и СВХ.
Комплекс «ФизтехСити» состоит из двух 20 этажных секций, объединенных двухэтажным стилобатом. На 454 кв. метрах организовано функциональное лобби с дизайнерским оформлением интерьера, с 4-метровыми потолками и панорамными окнами. Здесь расположены удобные зоны с мягкой мебелью и столиками для онлайн переговоров, встреч офлайн и работы за ноутбуком. Стойка администрации, общественные комнаты для хранения крупногабаритных вещей, гостевые санузлы и комнаты для мытья лап домашних животных – все это предусмотрено в комплексе. Приятную атмосферу создают островки вертикального озеленения.
Проект «ФизтехСити» включает 488 апартаментов с панорамным остеклением. Сдаются они без стен и высотой потолков от 2.97 до 3.15 метров. Можно установить систему «умный дом».
В комплексе «ФизтехСити» предусмотрены собственный подземный паркинг и гостевые парковки, на первых этажах разнообразная инфраструктура и инновационный детский сад с бассейном. А на стилобате продуман уютный закрытый двор с доступом только для резидентов. На территории комплекса спроектированы бассейн с пляжной зоной и ФОК. Интеллектуальная система «умный дом» контролирует рациональное использование электроэнергии и отопления в общественных зонах.
Проект «ФизтехСити» находится в Северном районе. Всего в 5 минутах пешком проходит МЦД-1 «Новодачная», а также станция «Физтех». Комплекс буквально окружен парками – 5 парков в шаговой доступности. И конечно же, развитая социальная инфраструктура района – включающая в себя Физтех лицей, развивающийся научно-учебный кластер МФТИ всего в 20 минутах от комплекса. В 10 минутах пешком ТЦ Метро. В 3 минутах на машине торговый центр РИО. Фитнес на территории ФИЗТЕХПАРКА. В 4 км от комплекса находятся яхт-клубы. В 45 км горнолыжный курорт Яхрома.
Комплекс «ФизтехСити» состоит из двух 20 этажных секций, объединенных двухэтажным стилобатом. На 454 кв. метрах организовано функциональное лобби с дизайнерским оформлением интерьера, с 4-метровыми потолками и панорамными окнами. Здесь расположены удобные зоны с мягкой мебелью и столиками для онлайн переговоров, встреч офлайн и работы за ноутбуком. Стойка администрации, общественные комнаты для хранения крупногабаритных вещей, гостевые санузлы и комнаты для мытья лап домашних животных – все это предусмотрено в комплексе. Приятную атмосферу создают островки вертикального озеленения.
Проект «ФизтехСити» включает 488 апартаментов с панорамным остеклением. Сдаются они без стен и высотой потолков от 2.97 до 3.15 метров. Можно установить систему «умный дом».
В комплексе «ФизтехСити» предусмотрены собственный подземный паркинг и гостевые парковки, на первых этажах разнообразная инфраструктура и инновационный детский сад с бассейном. А на стилобате продуман уютный закрытый двор с доступом только для резидентов. На территории комплекса спроектированы бассейн с пляжной зоной и ФОК. Интеллектуальная система «умный дом» контролирует рациональное использование электроэнергии и отопления в общественных зонах.
Проект «ФизтехСити» находится в Северном районе. Всего в 5 минутах пешком проходит МЦД-1 «Новодачная», а также станция «Физтех». Комплекс буквально окружен парками – 5 парков в шаговой доступности. И конечно же, развитая социальная инфраструктура района – включающая в себя Физтех лицей, развивающийся научно-учебный кластер МФТИ всего в 20 минутах от комплекса. В 10 минутах пешком ТЦ Метро. В 3 минутах на машине торговый центр РИО. Фитнес на территории ФИЗТЕХПАРКА. В 4 км от комплекса находятся яхт-клубы. В 45 км горнолыжный курорт Яхрома.
Жилой комплекс «Emotion» — современный проект архитектурного бюро «KAMEN», возведенный по технологии монолитного строительства с вентилируемыми панельными фасадами. В лобби выполнена дизайнерская отделка.
В проекте представлено множество планировочных решений — от студий до просторных 4х-комнатных квартир с балконами и террасами. Все лоты сдаются с базовой отделкой, высотой потолков 3 метра и панорамными окнами.
Территория комплекса благоустроена — имеется СПА-комплекс с открытым бассейном, озелененные зоны для отдыха. Здание оборудовано системой «Умный Дом», для автовладельцев предусмотрен подземный паркинг.
Жилой комплекс «Emotion» расположен в районе с хорошо развитый инфраструктурой, в пешей доступности имеется все необходимое: продовольственные магазины, аптеки, медицинские и образовательные учреждения, кафе и рестораны.
Жилой комплекс «Emotion» — современный проект архитектурного бюро «KAMEN», возведенный по технологии монолитного строительства с вентилируемыми панельными фасадами. В лобби выполнена дизайнерская отделка.
В проекте представлено множество планировочных решений — от студий до просторных 4х-комнатных квартир с балконами и террасами. Все лоты сдаются с базовой отделкой, высотой потолков 3 метра и панорамными окнами.
Территория комплекса благоустроена — имеется СПА-комплекс с открытым бассейном, озелененные зоны для отдыха. Здание оборудовано системой «Умный Дом», для автовладельцев предусмотрен подземный паркинг.
Жилой комплекс «Emotion» расположен в районе с хорошо развитый инфраструктурой, в пешей доступности имеется все необходимое: продовольственные магазины, аптеки, медицинские и образовательные учреждения, кафе и рестораны.
Жилой комплекс «Emotion» — современный проект архитектурного бюро «KAMEN», возведенный по технологии монолитного строительства с вентилируемыми панельными фасадами. В лобби выполнена дизайнерская отделка.
В проекте представлено множество планировочных решений — от студий до просторных 4х-комнатных квартир с балконами и террасами. Все лоты сдаются с базовой отделкой, высотой потолков 3 метра и панорамными окнами.
Территория комплекса благоустроена — имеется СПА-комплекс с открытым бассейном, озелененные зоны для отдыха. Здание оборудовано системой «Умный Дом», для автовладельцев предусмотрен подземный паркинг.
Жилой комплекс «Emotion» расположен в районе с хорошо развитый инфраструктурой, в пешей доступности имеется все необходимое: продовольственные магазины, аптеки, медицинские и образовательные учреждения, кафе и рестораны.
Жилой комплекс состоит из 2 башен высотой 17 и 21 этаж со встроенно-пристроенной одноэтажной стилобатной частью. Дома возведены по монолитной технологии строительства с вентилируемыми фасадами из панелей. Выполнена дизайнерская отделка входных групп, установлены современные скоростные лифты. В лобби расположены стойки ресепшен, мягкие зоны отдыха, комнаты матери и ребенка, комнаты для хранения детских колясок и велосипедов, на подземном уровне комплекса расположены индивидуальные кладовые помещения.
В жилом комплексе предложено множество планировочных решений: студии, 2-х, 3-х и 4-х комнатные варианты евроформата, а также 2-х комнатные квартиры классического формата. Сдаются они с панорамными окнами и высотой потолков 3 метра.
Общая площадь озеленения на территории проекта составляет более 1,8 тыс. кв. метров. На благоустроенной территории расположены спортивная и детская игровая площадка, места для отдыха. В стилобатной части и на первых этажах корпусов находятся коммерческие помещения. В комплексе предусмотрено 155 машиномест, 129 из которых расположены в подземном паркинге, а 26 — на плоскостной парковке.
Жилой комплекс расположен в районе Соколиная гора, где есть вся необходимая инфраструктура: детские сады и школы, поликлиники, вузы, спортивный комплекс, места для досуга и прогулок. В 350 метрах находится Измайловский парк, где предусмотрены спортивные площадки, аттракционы, кафе и рестораны. До метро «Соколиная Гора» можно дойти за 5 минут, а до «Шоссе Энтузиастов» за 5 минут на транспорте.
Жилой комплекс состоит из 2 башен высотой 17 и 21 этаж со встроенно-пристроенной одноэтажной стилобатной частью. Дома возведены по монолитной технологии строительства с вентилируемыми фасадами из панелей. Выполнена дизайнерская отделка входных групп, установлены современные скоростные лифты. В лобби расположены стойки ресепшен, мягкие зоны отдыха, комнаты матери и ребенка, комнаты для хранения детских колясок и велосипедов, на подземном уровне комплекса расположены индивидуальные кладовые помещения.
В жилом комплексе предложено множество планировочных решений: студии, 2-х, 3-х и 4-х комнатные варианты евроформата, а также 2-х комнатные квартиры классического формата. Сдаются они с панорамными окнами и высотой потолков 3 метра.
Общая площадь озеленения на территории проекта составляет более 1,8 тыс. кв. метров. На благоустроенной территории расположены спортивная и детская игровая площадка, места для отдыха. В стилобатной части и на первых этажах корпусов находятся коммерческие помещения. В комплексе предусмотрено 155 машиномест, 129 из которых расположены в подземном паркинге, а 26 — на плоскостной парковке.
Жилой комплекс расположен в районе Соколиная гора, где есть вся необходимая инфраструктура: детские сады и школы, поликлиники, вузы, спортивный комплекс, места для досуга и прогулок. В 350 метрах находится Измайловский парк, где предусмотрены спортивные площадки, аттракционы, кафе и рестораны. До метро «Соколиная Гора» можно дойти за 5 минут, а до «Шоссе Энтузиастов» за 5 минут на транспорте.

