Нарисуйте на карте нужную область
1 / 7
ЖК ФизтехСити Корпус А2
Москва, Долгопрудненское шоссе
Новодачная
10 мин
Сдача
4 кв. 2024 г.
Застройщик
ГК Основа
Показать минимальную цену
от 11 199 999 ₽
3-комнатные квартиры
5+-комнатные квартиры
Студии
2-комнатные квартиры
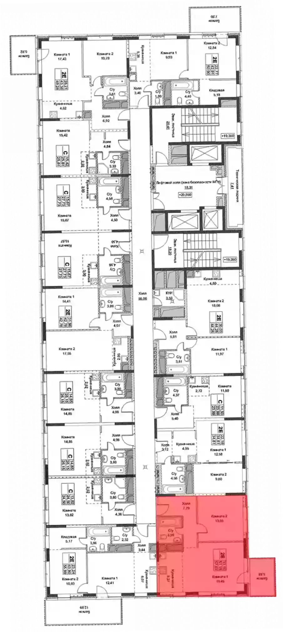
2-к.квартира, 51.15 м², 14 эт.
743749. ФизтехСити Корпус А2
Цена
15 120 080
С нами надежно. Мы совершаем все сделки в офисе по ценам и на условиях застройщика без комиссии
Оставить заявку на квартиру
Характеристики
- Количество комнат 2
- Общая площадь 51.15 м²
- Стоимость за м² 295 603
- Жилая площадь 13.65 м²
- Площадь кухни 25.72 м²
- Этаж 14
- Этажей в доме 20
- Тип санузла Совмещенный
- Наличие балкона/лоджии есть
- Тип отделки Без стен
- Высота потолков 2.97 м




















































