|
Этаж
Секция 1.1
Этаж
|
|---|
|
Этаж
Секция 1.3
Этаж
|
||||||||||||||||||||||||||||||||||||||||||||||||||||||||||||||||||||||||||||||||||||||||||||||||||||||||||||||||||||||||||||||||||||||||||||||||||||||||||||||||||||||||||||||||||||||||||||||||||||||||||||||||||
|---|---|---|---|---|---|---|---|---|---|---|---|---|---|---|---|---|---|---|---|---|---|---|---|---|---|---|---|---|---|---|---|---|---|---|---|---|---|---|---|---|---|---|---|---|---|---|---|---|---|---|---|---|---|---|---|---|---|---|---|---|---|---|---|---|---|---|---|---|---|---|---|---|---|---|---|---|---|---|---|---|---|---|---|---|---|---|---|---|---|---|---|---|---|---|---|---|---|---|---|---|---|---|---|---|---|---|---|---|---|---|---|---|---|---|---|---|---|---|---|---|---|---|---|---|---|---|---|---|---|---|---|---|---|---|---|---|---|---|---|---|---|---|---|---|---|---|---|---|---|---|---|---|---|---|---|---|---|---|---|---|---|---|---|---|---|---|---|---|---|---|---|---|---|---|---|---|---|---|---|---|---|---|---|---|---|---|---|---|---|---|---|---|---|---|---|---|---|---|---|---|---|---|---|---|---|---|---|---|---|---|
|
Студии
2-комнатные квартиры
3-комнатные квартиры
4-комнатные квартиры
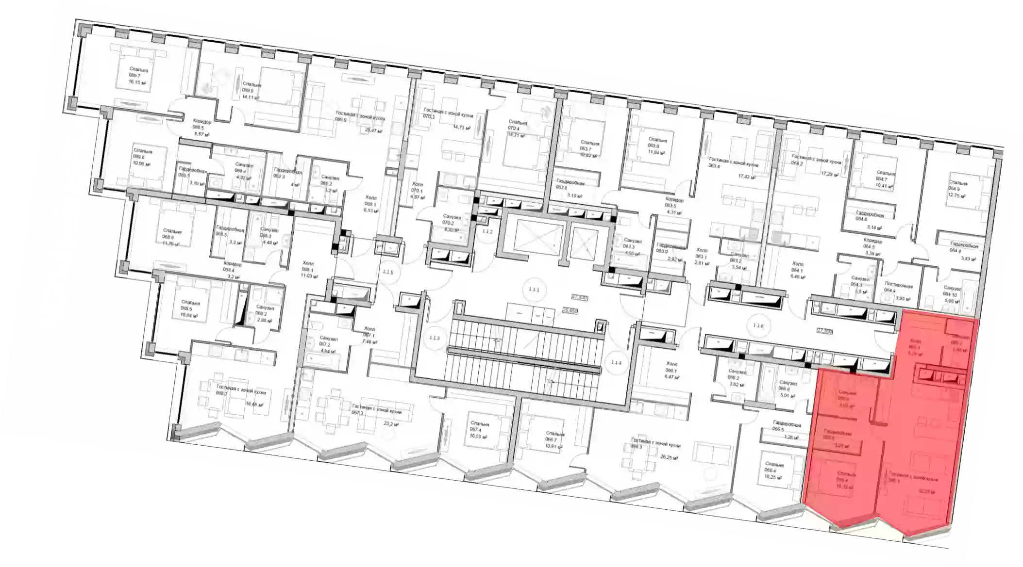
2-к.квартира, 48.4 м², 11 эт.
753019. Insider Корпус 1
Характеристики
- Количество комнат 2
- Общая площадь 48.4 м²
- Стоимость за м² 537 259
- Жилая площадь 10.68 м²
- Площадь кухни 15.13 м²
- Этаж 11
- Этажей в доме 16
- Тип санузла 3
- Наличие балкона/лоджии нет
- Тип отделки Без отделки
- Высота потолков 2.95 м




















































