Нарисуйте на карте нужную область
1 / 7
ЖК Пироговская ривьера. СЗ КОМФОРТИНВЕСТ Корпус 15
ул Сурикова,
Медведково
25 мин
Сдача
4 кв. 2023 г.
Застройщик
СЗ КОМФОРТИНВЕСТ
Показать минимальную цену
от 4 918 151 ₽
|
Этаж
Секция 1
Этаж
|
||||||||||||||||||||
|---|---|---|---|---|---|---|---|---|---|---|---|---|---|---|---|---|---|---|---|---|
|
|
Этаж
Секция 2
Этаж
|
||||||||||||||||||||||||
|---|---|---|---|---|---|---|---|---|---|---|---|---|---|---|---|---|---|---|---|---|---|---|---|---|
|
|
Этаж
Секция 3
Этаж
|
||||||||||||||||||||||||
|---|---|---|---|---|---|---|---|---|---|---|---|---|---|---|---|---|---|---|---|---|---|---|---|---|
|
|
Этаж
Секция 5
Этаж
|
||||||||||||||||||||||||||||||||||||||||||||||||||||||||||||||||||||||||||||||||||||||||||||||||||||||||||||||||
|---|---|---|---|---|---|---|---|---|---|---|---|---|---|---|---|---|---|---|---|---|---|---|---|---|---|---|---|---|---|---|---|---|---|---|---|---|---|---|---|---|---|---|---|---|---|---|---|---|---|---|---|---|---|---|---|---|---|---|---|---|---|---|---|---|---|---|---|---|---|---|---|---|---|---|---|---|---|---|---|---|---|---|---|---|---|---|---|---|---|---|---|---|---|---|---|---|---|---|---|---|---|---|---|---|---|---|---|---|---|---|---|---|
|
|
Этаж
Секция 6
Этаж
|
||||||||||||||||||||||||||||||||||||||||||||||||||||||||||||||||||||||||||||||||||||||||||||||||
|---|---|---|---|---|---|---|---|---|---|---|---|---|---|---|---|---|---|---|---|---|---|---|---|---|---|---|---|---|---|---|---|---|---|---|---|---|---|---|---|---|---|---|---|---|---|---|---|---|---|---|---|---|---|---|---|---|---|---|---|---|---|---|---|---|---|---|---|---|---|---|---|---|---|---|---|---|---|---|---|---|---|---|---|---|---|---|---|---|---|---|---|---|---|---|---|---|
|
|
Этаж
Секция 7
Этаж
|
||||||||||||||||||||||||||||||||||||||||||||||||||||||||
|---|---|---|---|---|---|---|---|---|---|---|---|---|---|---|---|---|---|---|---|---|---|---|---|---|---|---|---|---|---|---|---|---|---|---|---|---|---|---|---|---|---|---|---|---|---|---|---|---|---|---|---|---|---|---|---|---|
|
Студии
1-комнатные квартиры
2-комнатные квартиры
3-комнатные квартиры
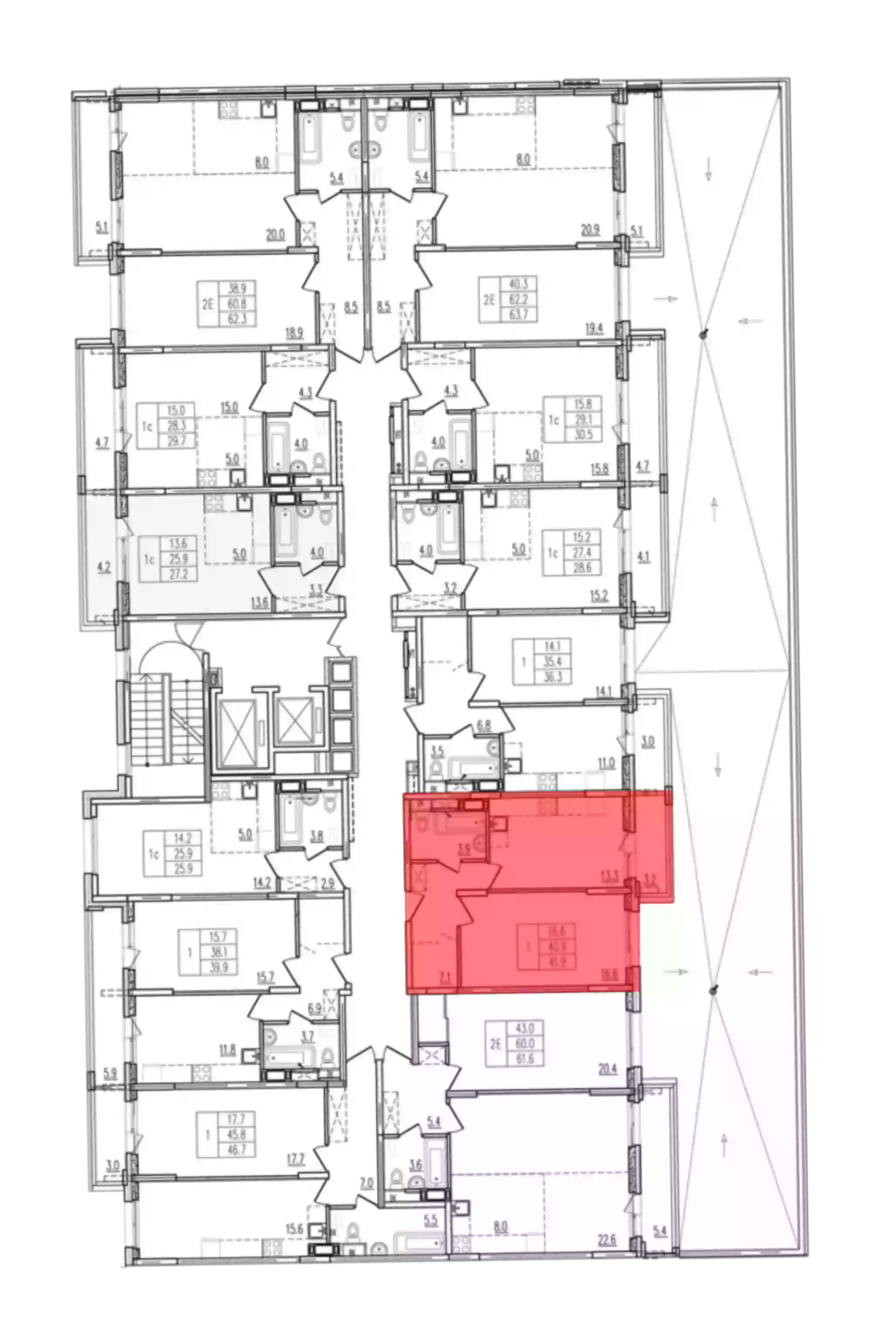
1-к.квартира, 40.94 м², 9 эт.
659272. Пироговская ривьера. СЗ КОМФОРТИНВЕСТ Корпус 15
Цена
7 969 437
С нами надежно. Мы совершаем все сделки в офисе по ценам и на условиях застройщика без комиссии
Оставить заявку на квартиру
Характеристики
- Количество комнат 1
- Общая площадь 40.94 м²
- Стоимость за м² 194 661
- Жилая площадь 16.6 м²
- Площадь кухни 13.3 м²
- Этаж 9
- Этажей в доме 9
- Тип санузла Совмещенный
- Наличие балкона/лоджии есть
- Тип отделки Без стен
- Высота потолков 3.17 м




















































